Enebolig 2122 treff

Fasadetegning som viser oppriss av en eksisterende og en tilbygget enebolig sett fra fronten.
Extension Enebolig

Tilbygg med heis og universell utforming i Storvassveien 671

Ny to-etasjes tilbygg på eksisterende enebolig i Storvassveien 671 med et samlet bruksareal på ca. 70 m². Tilbygget ink…

πŸ“ Storvassveien 671 Indre Fosen
Situasjonsplan som viser tomtegrenser, høydeforhold (konturlinjer), naboeiendom og planlagt inngangsplassering.
NewConstruction Enebolig

Planering og opparbeiding av bustadtomt i Masfjorden, Gnr 5 Bnr 58

Prosjektet omfatter planering av tomt for framtidig enebolig på eiendommen Gnr 5 Bnr 58 i Masfjorden kommune. Tiltaket …

Masfjorden
🏠
NewConstruction Enebolig

Ny enebolig på Ytterhaugen 45

Ny frittstående enebolig planlegges oppført på eiendommen Ytterhaugen 45. Prosjektet omfatter et boligbygg med tilhøren…

πŸ“ Ytterhaugen 45 Flatanger
🏠
NewConstruction Enebolig

Oppføring og oppgradering av enebolig i Martha Cochs vei 42

Ny enebolig oppført på eiendommen Martha Cochs vei 42, opprinnelig bygget i 1985, med påfølgende oppgraderinger og tilb…

πŸ“ Martha Cochs vei 42 Bamble
Fotografi av to personer som monterer en rørrør på et tak.
Rehabilitation Enebolig

Rehabilitering av pipe på enebolig i Rådyrveien 46

Rehabilitering av pipe på enebolig i Rådyrveien 46 med fokus på det nordre av to pipeløp. Prosjektet inkluderer install…

πŸ“ Rådyrveien 46 Indre Østfold
3D-visualisering (rendering) av en ny bolig sett fra utsiden, med eksisterende bolig i bakgrunnen.
NewConstruction Enebolig

Ny enebolig med garasje i Aallsgate 28B, Porsgrunn

Ny enebolig i to etasjer med totalt 176,6 m² BRA og 117,9 m² BYA, oppført i tre med saltak og flatt tak på enkelte dele…

πŸ“ Aallsgate 10 Porsgrunn
3D-visualisering (rendering) av en industriell bygning sett fra to ulike vinkler. Bildet viser fasade, vinduer og ladeganger.
NewConstruction Enebolig

Ny enebolig med tilbygg og garasje på Tudalsvegen, Sykkylven

Prosjektet omfatter oppføring av en ny enebolig med totalt 326,9 m² BRA fordelt på to etasjer, inkludert flere soverom,…

πŸ“ Tudalsvegen 101 Sykkylven
🏠
Demolition Enebolig

Riving av bolighus i Plasslia 33, Alvdal

Eksisterende eldre enebolig på Plasslia 33 i Alvdal rives i sin helhet for å frigjøre tomten til ny boligbygging. Bygge…

πŸ“ Plasslia 33 Alvdal
🏠
VerticalExtension Enebolig

Påbygg og fasadeendringer på enebolig i Vardeveien 22

Prosjektet omfatter påbygg på eksisterende enebolig i Vardeveien 22, inkludert endringer i fasaden og innvendig ombyggi…

πŸ“ Vardeveien 22A Oslo - Oslove
🏠
Extension Enebolig

Tilbygg større enn 50 m² på enebolig i Stavevegen 4

Ny utvendig tilbygg på over 50 m² til en eksisterende enebolig i Stavevegen 4. Tilbygget vil øke boligens areal betydel…

πŸ“ Stavevegen 4 Ål
🏠
Extension Enebolig

Tilbygg og påbygg av enebolig med garasje på Nordstranda 187

Ny utvidelse av eksisterende enebolig på Nordstranda 187 med tilbygg av garasje på hovedplanet som gir innvendig forbin…

πŸ“ Nordstranda 187 Vanylven
Fasadetegning som viser fronten av en bygning med vinduer, tak og trapp.
Extension Enebolig

Tilbygg og fasadeendringer på våningshus, Ihlevegen 86

To tilbygg i to etasjer oppføres på eksisterende våningshus i Ihlevegen 86, med ett tilbygg mot nord og ett mot sør. Ti…

πŸ“ Ihlevegen 86 Vestre Toten
Flyfoto av eiendom og omgivelsene, med tomt markert med rødt.
NewConstruction Enebolig

Ny enebolig med sekundærleilighet og garasje i Myhrersvingen 43

Ny enebolig i to etasjer med liggende trekledning og saltak med 27 graders takvinkel oppføres på Myhrersvingen 43. Boli…

πŸ“ Myhrersvingen 43A Eidsvoll
Bildet viser en tegning av et hageannex (Palmako Lisa). Det inneholder både en 3D-visualisering av fasaden og en planutsnitt med mål for bygningen.
Extension Enebolig

Tilbygg (anneks) på enebolig i Soløylia 9, Bodø

Ny frittstående anneks på 19,4 m² ved enebolig i Soløylia 9, Bodø. Anneksbyggverket er en Palmako Lisa hagestue med ett…

πŸ“ Soløylia 9 Bodø
Fasadetegning (opprikk) av en eksisterende bygning sett fra sør.
ChangeOfUse Enebolig

Bruksendring i enebolig på Hammerstadvegen 78, Eidsvoll

Bruksendring av eksisterende rom i underetasjen i enebolig på Hammerstadvegen 78 fra tilleggsdel til hoveddel. Endringe…

πŸ“ Hammerstadvegen 78 Eidsvoll
🏠
FacadeChange Enebolig

Fasadeendring og bruksendring på enebolig, Lars Tønsagers veg 34

Endring av fasaden og samtidig bruksendring på en eksisterende enebolig. Prosjektet innebærer fysiske modifikasjoner av…

πŸ“ Lars Tønsagers veg 34 Eidsvoll
🏠
FacadeChange Enebolig

Endring av tak og vegger over platting i Rådyrvegen 31

Endring av utvendig tak og vegger over en eksisterende platting på en enebolig. Tiltaket omfatter modifikasjon av bygni…

πŸ“ Rådyrvegen 31 Eidsvoll
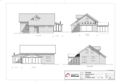
Fasadetegning som viser bygningens utseende fra alle fire sider (Nord, Sør, Øst, Vest).
Extension Enebolig

Tilbygg vinterhage med stålpipe på Sopelimkroken 52

Ny vinterhage som tilbygg til eksisterende enebolig på 19,3 m² BRA og 15 m² BYA med grunnflate på 15 m². Tilbygget skal…

πŸ“ Sopelimkroken 52 Indre Østfold
Fotografier av en elektrisk boks og fasade på en bygning
NewConstruction Enebolig

Ny enebolig med utomhusanlegg i Tumyrvegen 7, Askøy

Ny enebolig i ett plan på 235,7 m² BYA og 220,1 m² BRA oppføres på eiendommen Tumyrvegen 7, 5307 Askøy, som erstatning …

πŸ“ Tumyrvegen 7 Askøy
🏠
ChangeOfUse Enebolig

Bruksendring og kjellertrapp i enebolig, Grorudveien 107B

Bruksendring av kjeller i en eksisterende enebolig med etablering av ny kjellertrapp og tilhørende fasadeendringer. Til…

πŸ“ Grorudveien 107B Oslo - Oslove
Håndtegnet fasadetegning som viser et nytt tak over en terrasse, med mål på 5,5 meter bredde og 4,5 meter ut fra husveggen.
VerticalExtension Enebolig

Takoverbygg over terrasse i Furuveien 14, Hokksund

Ny terrasse med takoverbygg på ca. 25 m² oppføres på eiendommen i Furuveien 14. Takoverbygget bygges i samme stil og me…

πŸ“ Furuveien 14 Øvre Eiker
🏠
Demolition Enebolig

Riving av brannskadd enebolig på Mjåtveitflaten 14

Full riving av en brannskadd enebolig fra 1983 med grunnflate på ca. 160 m² fordelt på to plan. Hele bygget, inkludert …

πŸ“ Mjåtveitflaten 14 Alver
🏠
Other Enebolig

Endring av heisinstallasjon i enebolig, Torggata 21

Endring av tekniske installasjoner i en eksisterende enebolig med utskifting av heis i eksisterende heissjakt. Prosjekt…

πŸ“ Torggata 17 Sortland - Suortá
Fotografier av et utgravd hull (merket 'hull nr 3') i bakken, sannsynligvis fra en geoteknisk undersøkelse eller grunnundersøkelse.
NewConstruction Enebolig

Ny enebolig med sekundærleilighet på Lyngenfjordveien 199

Ny enebolig av typen Älvsbyhus MAJA+ med sekundærleilighet oppføres på eiendommen Lyngenfjordveien 199, Gnr 82 Bnr 18 i…

πŸ“ Lyngenfjordveien 199A Lyngen - Ivgu - Yykeä