Enebolig 2123 treff

🏠
NewConstruction Enebolig

Ny enebolig etter fradeling i Helgerødveien 300

Ny enebolig skal oppføres på en nylig fradelt tomt i Helgerødveien 300. Prosjektet omfatter bygging av en frittliggende…

πŸ“ Helgerødveien 300 Færder
🏠
Extension Enebolig

Tilbygg og fasadeendring på enebolig, Spydebergveien 223

Tilbygg på en eksisterende enebolig med tilhørende endring av fasaden. Prosjektet innebærer fysisk utvidelse av boligen…

πŸ“ Spydebergveien 223 Skiptvet
🏠
Extension Enebolig

Tilbygg og ombygging av enebolig på Gnr 428 Bnr 157

Tilbygg og ombygging av eksisterende enebolig på eiendommen Gnr 428 Bnr 157. Prosjektet omfatter fysisk utvidelse av bo…

πŸ“ Konsmoheiveien 48 Lyngdal
🏠
NewConstruction Enebolig

Ny erstatningsbolig i Modumveien 1742

Ny enebolig oppføres som erstatning på eiendommen i Modumveien 1742. Boligen vil erstatte en tidligere bygning og bygge…

πŸ“ Øst-Modumveien 1742 Modum
Bildet viser fire ulike fasadetegninger for en bygning, med tekst 'FASEDE' under hver tegning og en tegningsliste i bunnen.
Extension Enebolig

Tilbygg til enebolig på Høgahaug 106, Førresfjorden

Ny tilbygg på 25,2 m² BYA (22,4 m² BRA) til eksisterende enebolig på Høgahaug 106, som utvider stuearealet i 2. etasje …

πŸ“ Høgahaug 106 Tysvær
🏠
Extension Enebolig

Større tilbygg på enebolig, Bodøveien 1345

Ny utvendig tilbygg på enebolig med et bruksareal på 175 m² ved Bodøveien 1345. Tilbygget er større enn 50 m² og omfatt…

πŸ“ Bodøveien 1345 Bodø
3D-visualisering av et garasje/uthus med angitte mål (8 m * 17 m) og høyde, sett fra en vinkel som viser fasade og situasjon.
NewConstruction Enebolig

Ny bolig og uthus på Nævestadbakken 26, Tvedestrand

Ny enebolig med tilhørende uthus på eiendommen Nævestadbakken 26. Uthuset har et areal på 8 x 17 meter med mønehøyde 5,…

πŸ“ Nævestadbakken 26 Tvedestrand
🏠
Extension Enebolig

Tilbygg til enebolig i SSS-veien 149, Risør

Ny tilbygg på enebolig i SSS-veien 149 i Risør kommune. Tilbygget vil utvide boligens areal og funksjonalitet, og vil t…

πŸ“ SSS-veien 149 Risør
Etasjeplan som viser romfordeling (stue, soverom, kjøkken, bad) og dimensjoner for en bolig.
Extension Enebolig

Oppføring av ny stålpipe på Enebolig, Førresbrekka 29

Ny stålpipe skal monteres på en enebolig med totalt 64,5 m² BRA på adressen Førresbrekka 29. Den eksisterende pipen ska…

πŸ“ Førresbrekka 29 Tysvær
🏠
NewConstruction Enebolig

Ny enebolig i Ole Vigs veg 1

Ny enebolig oppført på eiendommen i Ole Vigs veg 1. Boligen er frittstående og beregnet for en familie. Detaljer om stø…

πŸ“ Fabritiusvegen 3C Levanger - Levangke
🏠
Extension Enebolig

Oppføring av terrasse og altandør i Tømtevegen 155

Ny terrasse bygges på eneboligen i Tømtevegen 155, sammen med innsetting av en ny altandør. Terrassen vil fungere som e…

πŸ“ Tømtevegen 155 Levanger - Levangke
🏠
NewConstruction Enebolig

Ny enebolig på eiendom Gnr 100 Bnr 198

Ny enebolig skal oppføres på eiendommen Gnr 100 Bnr 198. Prosjektet omfatter et frittstående boligbygg beregnet for en …

Vinje
Håndtegnet fasadetegning av en bygning sett fra øst.
ChangeOfUse Enebolig

Bruksendring i enebolig på Kjølnekløva 2, Hvaler

Bruksendring av kjellerrom i en enebolig på Kjølnekløva 2 fra tilleggsdel til hoveddel med innredning av bad, gang, sov…

πŸ“ Kjølnekløva 2 Hvaler
En aksonometrisk visualisering (3D-illustrasjon) av en bygning med utsnittet av fasade og innvendig romfordeling.
Extension Enebolig

Endring, tilbygg og garasje på enebolig i Gjerdsvikvegen 369

Prosjektet omfatter en omfattende ombygging og modernisering av en eksisterende enebolig med sokkel fra 1952, beliggend…

πŸ“ Gjerdsvikvegen 369 Sande
3D-visualisering av en bygning sett fra to vinkler (NØ og NV) med tegningsinformasjon i bunnen.
Extension Enebolig

Tilbygg og fasadeendring på enebolig i Kurefjordveien 80

Prosjektet omfatter oppføring av to takarker på loftet i 2. etasje på en enebolig fra 1800-tallet i Kurefjordveien 80, …

πŸ“ Kurefjordveien 78 Moss
3D-visualisering (perspektiv) av en nybyggning sett fra ulike vinkler (Nord/øst, Sør/vest, Sør/øst).
FacadeChange Enebolig

Ombygging og fasadeendring av mesanin i Skyttarvegen 5

Ombygging og utvidelse av eksisterende mesanin på ca. 180 m² i en enebolig ved Skyttarvegen 5. Prosjektet inkluderer ny…

πŸ“ Skyttarvegen 5 Sunnfjord
🏠
NewConstruction Enebolig

Ny enebolig i Røslyngveien 8

Ny enebolig skal oppføres på eiendommen i Røslyngveien 8. Prosjektet omfatter et frittstående boligbygg beregnet for en…

πŸ“ Svarttrostveien 13 Oslo - Oslove
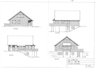
Bildet viser fire fasadetegninger (mot V, S, N og Ø) for en bygning, med tegningsnummer 71 og arkitektstempel.
ChangeOfUse Enebolig

Bruksendring og fasadeendringer på enebolig i Høgliflata 19, Bodø

Eneboligen på Høgliflata 19 gjennomgår en bruksendring hvor tidligere vaskerom i sokkel omgjøres til soverom, tidligere…

πŸ“ Høgliflata 19 Bodø
Fotografier av en hvit hytte med tekstbeskrivelse om overbygg og vanning på bakside.
NewConstruction Enebolig

Ny enebolig med loft og overbygg i Østeråveien 231A

Nyoppført enebolig i to etasjer med saltak på Østeråveien 231A. Boligen inneholder stue, kjøkken, bad, soverom og bod i…

πŸ“ Østeråveien 231 Tvedestrand
🏠
Extension Enebolig

Tilbygg og rehabilitering av enebolig i Skågsetvegen 46

Prosjektet omfatter et tilbygg og rehabilitering av en eksisterende enebolig på adressen Skågsetvegen 46. Det innebærer…

πŸ“ Skågsetvegen 46 Levanger - Levangke
🏠
Extension Enebolig

Tilbygg og oppgradering av avløpsanlegg på SSS-veien 149

Tilbygg til eksisterende enebolig på SSS-veien 149 med samtidig oppgradering av boligens avløpsanlegg. Prosjektet omfat…

πŸ“ SSS-veien 149 Risør
Fasadetegning som viser fronten på en eksisterende bygning med en planlagt tilbygg på 2. etasje.
Extension Enebolig

Tilbygg på enebolig i Bøvegen 36, Torvastad

Ny to-etasjes tilbygg på 44,1 m² til eksisterende enebolig i Bøvegen 36, Torvastad. Tilbygget har saltak og er utført i…

πŸ“ Bøvegen 36 Karmøy
🏠
NewConstruction Enebolig

Ny enebolig i Stokkalandskroken 43

Ny enebolig planlegges oppført på eiendommen Stokkalandskroken 43, Gnr 107, Bnr 340. Prosjektet omfatter oppføring av e…

πŸ“ Stokkalandskroken 43
Bildet viser en tegning med fasadeopprikk for en bolig sett fra fire forskjellige sider (nordvest, nordøst, sørvest, sørøst), samt en 3D-perspektivvisning av bygningen.
Extension Enebolig

Påbygg, tilbygg og fasadeendring på enebolig i Nermarka 6, Sandnessjøen

Ny påbygg og tilbygg på totalt 52,4 m² til en eksisterende enebolig i Nermarka 6, Sandnessjøen. Tilbygget på ca. 20 m² …

πŸ“ Nermarka 6 Alstahaug