Enebolig 2122 treff

Bildet viser en tegning av en eksisterende fasade (Fasade øst) med en markert del som skal gjenoppbygges.
Other Enebolig

Innvendig gjenoppbygging i enebolig med utleie, Brekkaveien 9

Prosjektet omfatter gjenoppbygging av en utleieleilighet i en enebolig på Brekkaveien 9, Sortland, etter brannskader og…

πŸ“ Brekkaveien 9 Sortland - Suortá
🏠
NewConstruction Enebolig

Oppføring av to mikrohus på Vasshaugen 41, Sortland

To mindre frittstående mikrohus (domer) med samlet areal inntil 30 m² bygges på eiendommen Vasshaugen 41 i Sortland. Mi…

πŸ“ Vasshaugen 41 Sortland - Suortá
Fotografi av en bygningsside med hvite paneler, en betongfundament, og en metallkonstruksjon (scaffolding) foran. Bildet viser også en del av en rød fasade i bakgrunnen.
FacadeChange Enebolig

Etablering av ny port i fasade, Vesterålsgata 140

Ny port med dimensjoner ca. 3500 x 3200 mm etableres i eksisterende fasade på verkstedlokale i Vesterålsgata 140. Porte…

πŸ“ Vesterålsgata 140 Sortland - Suortá
Håndtegnet fasadetegning som viser oppriss av en nybygning sett fra fire sider (Nord, Sør, Vest og en del av Øst), med angitte mål og retninger.
Extension Enebolig

Tilbygg på enebolig i Vesterålsveien 1577

Nytt tilbygg på 49 m² til en eksisterende enebolig med flatt tak på nord- og sørfasade og saltak på vestfasade. Tilbygg…

πŸ“ Vesterålsveien 1577 Sortland - Suortá
Fasadetegning som viser bygningens utseende sett fra siden, inkludert takform, vinduer, balkonger og høydeangivelser.
ChangeOfUse Enebolig

Bruksendring, terrasseutvidelse og parkeringsplass på Vågshaugen 30

Bruksendring av del av eksisterende kjeller i en enebolig til utleieareal med etablering av soverom og tilhørende romfu…

πŸ“ Vågshaugen 30 Bjørnafjorden
Fasadetegning som viser bygningens utseende fra nord og øst, samt en 3D-visualisering av fasaden.
Extension Enebolig

Tilbygg og renovering av terrasse på Hovinvegen 1, Hernes

Ny overbygget terrasse og tilbygg ved inngangspartiet på eksisterende enebolig i Hovinvegen 1, Hernes. Terrassen erstat…

πŸ“ Hovinvegen 1 Elverum
🏠
Extension Enebolig

Tilbygg på enebolig i Falkvegen 5

Ny tilbygg på eksisterende enebolig i Falkvegen 5. Tilbygget vil utvide boligens areal og funksjonalitet, men detaljer …

πŸ“ Falkvegen 5 Vefsn
Bildet viser en håndtegnet fasadetekning (opprikk) av en bygning sett fra flere vinkler (vest, nord, øst).
Extension Enebolig

Tilbygg på enebolig i Strandvegen 9, Nesna

Ny utvidelse av eksisterende enebolig i Strandvegen 9 med et tilbygg på ca. 60 m². Tilbygget tilpasses eksisterende byg…

πŸ“ Strandvegen 9 Nesna
Fasadetegning som viser bygningens utseende sett fra sør.
NewConstruction Enebolig

Ferdigattest for boligbygg i Rødvingetunet 25, Nannestad

Boligprosjektet består av et nyoppført boligbygg med totalt 234,5 m² BRA fordelt på flere etasjer, inkludert stue, kjøk…

πŸ“ Rødvingetunet 1 Nannestad
Fasadetegning som viser bygningens utseende mot øst-sør-øst, inkludert vinduer, dører, trapp og takform.
NewConstruction Enebolig

Ny enebolig i Jerpevegen 3, Elverum

Ny enebolig i to etasjer med totalt 100,4 m² BRA oppføres i Jerpevegen 3, Elverum. Boligen har saltak med teglstein, tr…

πŸ“ Jerpevegen 3 Elverum
Fasadetegning som viser bygningens utseende fra fire sider (nord, sør, vest og øst).
Extension Enebolig

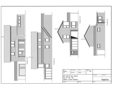
Tilbygg hagestue på Melkevikvegen 12, Tysvær

Ny hagestue som tilbygg på eksisterende enebolig på Melkevikvegen 12 i Tysvær. Tilbygget har et areal på 24 m² og er ut…

πŸ“ Melkevikvegen 12 Tysvær
3D-visualisering av en planlagt bolig sett fra utsiden.
VerticalExtension Enebolig

Påbygg og utvendig tilbygg på enebolig i Solfjellveien 44

Ny påbygg og utvendig tilbygg på til sammen 50 m² til en eksisterende enebolig i Solfjellveien 44. Tilbygget har mål 7,…

πŸ“ Solfjellveien 44 Dønna
Bildet viser fire fasadetegninger av en bolig, merket som vest, nord, sør og nord.
Extension Enebolig

Tilbygg og renovering av enebolig i Bøveien 629

Ny utvidelse av eksisterende tilbygg på enebolig i Bøveien 629 med en økning i bebygd areal på ca. 3 m², totalt ca. 13,…

πŸ“ Bøveien 629
🏠
FacadeChange Enebolig

Fasade- og bruksendring på enebolig i Preståsvegen 35

Endring av fasade og bruk av eksisterende enebolig i Preståsvegen 35. Prosjektet innebærer modifikasjoner på bygningens…

πŸ“ Preståsvegen 35 Nannestad
Et sammensatt bilde (collage) som viser flere fotografier av en liten hvit bygning, både utsiden og innvendig.
Extension Enebolig

Tilbygg og fasadeendringer på enebolig i Nordmarkveien 19

Ny tilbygg på 26,4 m² med gang, bad og vaskerom bygges på langsiden mot nord av en tidligere bedehusbygning som konvert…

πŸ“ Nordmarkveien 19 Rødøy
Kommunekart fra Elverum kommune som viser to bygninger (en i rødt og en i grått) på en tomte med omgivende terreng.
Demolition Enebolig

Riving av brannskadet enebolig i Hamarvegen 386, Elverum

Riving av et brannskadet våningshus som er en enebolig beliggende i Hamarvegen 386, Elverum. Bygget er skadet av brann …

πŸ“ Hamarvegen 386 Elverum
🏠
NewConstruction Enebolig

Ferdigattest for enebolig i Klegstadveien 5

Enebolig oppført på eiendommen Klegstadveien 5, Gnr 139 Bnr 17. Bygget er ferdigstilt og det gjenstår kun mindre arbeid…

πŸ“ Klegstadveien 5 Modum
🏠
NewConstruction Enebolig

Riving og ny enebolig i Homsveien 304

Prosjektet omfatter riving av et eksisterende bygg på eiendommen og oppføring av en ny enebolig. Den nye boligen skal e…

πŸ“ Homsveien 304 Lyngdal
🏠
Extension Enebolig

Tilbygg til eksisterende enebolig på Gnr 162 Bnr 301

To tilbygg bygges på en eksisterende enebolig på eiendommen Gnr 162 Bnr 301. Prosjektet innebærer utvidelse av boligens…

πŸ“ Furuveien 13 Lyngdal
Illustrasjon som viser en slamtømningstank under bakken med en lastebil som tømmer den.
NewConstruction Enebolig

Ny enebolig med minirenseanlegg i Landingveien 16, Røyrvik

Ny enebolig i ett plan med saltak og integrert garasje oppføres på samme sted som tidligere bolig i Landingveien 16, Rø…

πŸ“ Landingveien 16 Raarvihke - Røyrvik
🏠
FacadeChange Enebolig

Endring innvendig, våtrom og fasade på enebolig i Risasjøvegen 297

Endring av innvendige rom med oppgradering eller ombygging av våtrom, i tillegg til fasadeendring på eneboligen. Brukse…

πŸ“ Risasjøvegen 297 Alver
🏠
Extension Enebolig

Tilbygg og utvendig trapp til kjeller i Arne Garborgs vei 19 B

Ny tilbygg på en eksisterende enebolig med tillegg av utvendig trapp til kjeller og endringer i fasaden. Prosjektet inn…

πŸ“ Arne Garborgs vei 19B Oslo - Oslove
Tre perspektivtegninger (3D-visualiseringer) av et hus i ulike vinkler.
VerticalExtension Enebolig

Påbygg med vindfang, bad og balkonginnkledning i Breivikvegen 8

Påbygg på eksisterende enebolig i Breivikvegen 8 med en total økning i BRA på 9,8 m² til 107,2 m² eksklusiv kjeller. På…

πŸ“ Dalanesvegen 66 Bømlo
Fasadetegning som viser utsiden av en bygning sett fra flere vinkler.
Extension Enebolig

Tilbygg

Søknad om tillatelse for et tilbygg på eiendommen Øksningvegen 32.

πŸ“ Øksningvegen 32 Nærøysund