Garasje 835 treff

Fasadetegning som viser oppriss av bygningen sett fra fire sider: øst, sør, vest og nord.
NewConstruction Garasje

Ny frittliggende garasje med terrengarbeid i Furutoppveien 22, Røyken

Ny frittliggende garasje på 64 m² med saltak og mønehøyde på 4,8 meter og gesimshøyde på 2,2 meter, delvis nedsenket i …

πŸ“ Furutoppveien 22 Asker
Fasadetegning som viser bygningens utseende fra flere vinkler (vest, nord, syd) med detaljer om tak, vinduer og fasadepanel.
Extension Garasje

Tilbygg av hagestue på Myklandvegen 108B

Ny hagestue på 6 m² bygges som et tilbygg på eksisterende terrasse ved Myklandvegen 108B. Tilbygget består av større gl…

πŸ“ Myklandvegen 100A Karmøy
🅿️
Rehabilitation Garasje

Renovering av garasje

Renovering av eksisterende garasje som innebærer oppgradering og forbedring av bygningsstrukturen. Prosjektet omfatter …

Gáivuotna - Kåfjord - Kaivuono
Fasadetegning (opprikk) av en rød bygning sett fra nord, med angitte mål på høyder og bredder.
NewConstruction Garasje

Ny uthus på 42 kvm i Krokgutua 9

Ny frittliggende uthusbygning på 42 m² med saltak teglstein. Bygget har én etasje og er kledd med trepanel malt i rødt.…

πŸ“ Krokgutua 9 Eidsvoll
Markedsføringsmateriale som viser 3D-visualiseringer av en garasje med tilhørende tekniske oppriss.
NewConstruction Garasje

Ny frittstående garasje i Korsnesvegen 34, Sula

Ny frittstående garasje på 69,3 m² med saltak i 34 graders takvinkel og mønehøyde på 5,4 meter. Garasjen bygges med tre…

πŸ“ Korsnesvegen 34 Sula
Fasadetegninger og 3D-visualiseringer av en garasje med nordvest, nordest, sørvest og sørøst fasade.
NewConstruction Garasje

Ny frittstående garasje i Korsbakkvegen 24, Elverum

Ny frittstående garasje på 45,3 m² med flatt pulttak og trepanel som fasademateriale. Garasjen har en garasjeport, to v…

πŸ“ Korsbakkvegen 24 Elverum
3D-visualisering (rendering) av en husmodell med to utsikter (utsikt 1 og utsikt 2) som viser fasade, takform og omgivelser.
Extension Garasje

Ny garasje og tilbygg til bolig i Åsanveien 14, Sortland

Prosjektet omfatter oppføring av en ny frittstående garasje på 87,4 m² med to dører og uten vinduer, samt et tilbygg ti…

πŸ“ Åsanveien 14 Sortland - Suortá
Fasadetegning som viser bygningens utseende fra alle fire sider (Nord, Vest, Sør, Øst).
NewConstruction Garasje

Ny garasje i Odins Veg 11, Elverum

Ny frittstående garasje i tre på 68,6 m² BYA med flatt tak mot nord og sør, og saltak mot vest og øst. Garasjen har en …

πŸ“ Odins veg 11 Elverum
Kart fra Eiendomsregisteret som viser eiendomsnummer 112/230 i Tynset med eiendomsareal og nabolagsgrenser.
NewConstruction Garasje

Ny frittliggende garasje på eiendom 112/230, Tynset

Ny frittliggende garasje/uthus på 39,7 m² BRA med et bebygd areal på 49,9 m² og bruttoareal på 44 m² er oppført på eien…

πŸ“ 112/230 Tynset
Fasadetegning som viser front- og sideutsikt på en garasje med dører og paneling.
NewConstruction Garasje

Ny garasje med riving av eksisterende på Nordre Torv 5, Hønefoss

Ny frittstående garasje på ca. 110 m² med pulttak og trekledning oppføres på eiendommen Nordre Torv 5 i Hønefoss. Garas…

Ringerike
3D-visualisering av et hus med garasje, inkludert detaljer som hekk, trær, sykler og fasadebehandling.
NewConstruction Garasje

Ny frittstående garasje med bod på Strandvegen 17, Øvre Årdal

Ny frittstående garasje på ca. 32 m² med tilhørende bod og sykkelbod oppføres på eiendommen Strandvegen 17 i Øvre Årdal…

πŸ“ Strandvegen 17 Årdal
Fasadetegninger som viser bygningens utseende fra fire ulike sider (SV, NØ, SØ, NV) med merknader om terreng og detaljer.
Extension Garasje

Endring av carport til lukket garasje i Johannes Larsens vei 10B

Eksisterende carport med to tette vegger skal bygges om ved å tette igjen den siste åpne veggen og montere en garasjepo…

πŸ“ Johannes Larsens vei 10B Bodø
To foton av en eksisterende, gammel trebygning ved vannet, sett fra to ulike vinkler (sør og vest).
Extension Garasje

Oppussing av båthus på Epleviktangen 10, Tvedestrand

Oppussing av eksisterende båthus i dårlig forfatning på Epleviktangen 10. Bygget skal beholdes med samme høyde, lengde …

πŸ“ Epleviktangen 10 Tvedestrand
🅿️
NewConstruction Garasje

Ny garasje på eiendom Gnr 434 Bnr 3

Ny frittstående garasje skal oppføres på eiendommen Gnr 434 Bnr 3. Garasjen vil fungere som et frittstående bygg for op…

πŸ“ Strislandsveien 82 Lyngdal
🅿️
Extension Garasje

Tilbygg og bruksendring av garasje med terrasse, Gnr 74 Bnr 16

Tilbygg på eksisterende garasje og carport med tilhørende terrasse. Prosjektet innebærer endring av bruksformål for del…

πŸ“ Bjørnevågsveien 80 Lyngdal
🅿️
NewConstruction Garasje

Ny garasje med carport på Sørgrenda 484

Ny frittstående garasje på 98 m² med lukket garasjedel og åpen carport i nordenden. Garasjen plasseres i det sørøstlige…

πŸ“ Sørgrenda 484 Levanger - Levangke
🅿️
NewConstruction Garasje

Ny garasje på Hagekleiva 20, Tvedestrand

Ny frittstående garasje planlegges oppført på eiendommen Hagekleiva 20 i Tvedestrand kommune. Garasjen skal plasseres p…

πŸ“ Hagekleiva 20 Tvedestrand
Fasadetegning som viser bygningens utseende fra alle fire sider (Nord, Sør, Øst, Vest) med mål 1:100.
NewConstruction Garasje

Ny frittliggende garasje i Sørliveien 373, Harstad

Ny frittliggende garasje på ca. 27 m² BYA med saltak og trepanel som fasademateriale. Garasjen har en grunnflate på ca.…

πŸ“ Sørliveien 373 Harstad - Hárstták
🅿️
NewConstruction Garasje

Ny garasje i Molandsveien 906, Arendal

Ny frittstående garasje oppføres på eiendommen i Molandsveien 906, Arendal. Garasjen er et enkelt bygg beregnet for opp…

πŸ“ Kystveien 1447 Arendal
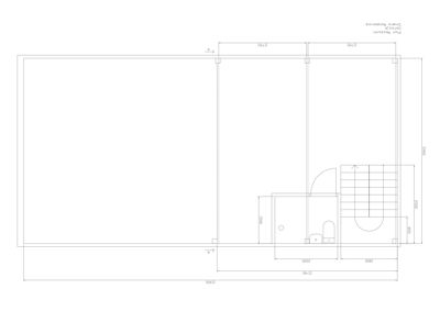
Etasjeplan (snitt A-A) som viser romfordeling, dører, vinduer og dimensjoner for et interiør.
Extension Garasje

Bygg av mesanin dekk i garasje, Storehølvegen 38

Ny mesanin dekk bygges inne i eksisterende garasje på 69,8 m² i Storehølvegen 38. Mesaninen består av bjelker i dimensj…

πŸ“ Storehølvegen 38 Ulstein
Håndtegnet fasadeoppvisning med to utsnitt av en bygning (Sør/Aust og Sør/Vest) inkludert skisse av trapp og grunnmur.
NewConstruction Garasje

Ny garasje med boenhet på Gnr 70 Bnr 2

Ny frittstående garasje på 70 m² med tilhørende boder og teknisk rom. Garasjen inneholder et hovedgarasjeareal på 56 m²…

πŸ“ Berleneset 593 Bremanger
3D-visualisering av et takkonstruksjon (sannsynligvis et dobbelttak) med tydelig visning av taklister, takplater og takramme.
NewConstruction Garasje

Ny dobbel garasje i Formoveien 120, Modum

Ny frittstående dobbel garasje på ca. 35-48,4 m² med saltak og trepanel som fasademateriale. Garasjen har en gesimshøyd…

πŸ“ Formoveien 120 Modum
Illustrasjon som viser hvordan man måler bebygd areal (BYA), bruksareal (BRA) og bruttoareal (BTA) på en bygning.
NewConstruction Garasje

Ny frittliggende hagestue i Onsøyveien 58, Fredrikstad

Ny frittliggende hagestue oppføres på eiendommen i Onsøyveien 58. Bygningen er mindre enn 50 m² og skal ikke benyttes t…

πŸ“ Onsøyveien 58 Fredrikstad
🅿️
ChangeOfUse Garasje

Bruksendring og ny takterrasse med carport i Ove Ramms Gate 17

Prosjektet omfatter bruksendring av eksisterende bygningsmasse samt oppføring av en ny takterrasse og en carport/garasj…

πŸ“ Ove Ramms gate 17 Fredrikstad