Garasje 833 treff

Fotografier av et innendørs rom (spisestue) med møbler, gulv og utsikt gjennom vinduer.
Extension Garasje

Oppføring av bod/reidskapshus ved Gate 3, Nr 124

Ny bod/reidskapshus på ca. 12 m² oppføres som tilbygg til eksisterende altan ved enebolig på Gate 3, Nr 124. Bygget er …

πŸ“ Gate 3 124 Kinn
🅿️
Unknown Garasje

Nedgravd garasje og støttemur

Saken handler om klager på igangsettingstillatelse og prosjekteringsansvar, som er avslått av Statsforvalteren. Ingen b…

πŸ“ Ragna Wettergreens gate 8 Stavanger
Fotografi av en hvit enebolig plassert på en kystlinje med steinete strand og skog i bakgrunnen.
Extension Garasje

Flytting og gjenreising av naust på Forevegen 145

Naustet på eiendommen Forevegen 145 er flyttet fra nordlig til sørlig del av eiendommen, hvor det er gjenreist på ny pl…

πŸ“ Forevegen 145 Tysvær
Fasadetegning som viser bygningens utseende fra ulike vinkler (mot nabogrense, mot hus, malskisse) med plassering i forhold til nabolinjer.
NewConstruction Garasje

Ny garasje med pulttak på Årskogsteinen 13, Ulsteinvik

Ny frittstående garasje på 49 m² med loftsetasje, opprinnelig med saltak, senere endret til pulttak med 12 graders takv…

πŸ“ Årskogsteinen 13 Ulstein
3D-visualisering av en bygning sett fra vest og sør, med tydelig visning av fasadematerialer (trepanel, betong) og vinduer.
NewConstruction Garasje

Ny frittstående garasje i Rundavegen 195, Runde

Ny frittstående garasje på totalt 95 m² fordelt på to etasjer bygges på eiendommen Rundavegen 195, gnr 9 bnr 12 (senere…

πŸ“ Rundavegen 11 Herøy (Møre og Romsdal)
En håndtegnet fasadeopprikk (opprikk) av en garasje, med angitte mål i millimeter.
Extension Garasje

Garasjetilbygg på Aurhølå 3, Mauseidvåg

Nybygg av garasjetilbygg med saltak på eiendommen Aurhølå 3 i Mauseidvåg. Tilbygget har et bebygd areal på 49,8 m² og e…

πŸ“ Aurhølå 3 Sula
Situasjonskart som viser tomtens grenser, naboeiendommer og bygningers plassering.
NewConstruction Garasje

Ny garasje på Vågen 31, Ulsteinvik

Ny frittstående garasje på 46 m² BRA og 49 m² BYA med mønehøyde på 5,2 meter oppføres på eiendommen Vågen 31 i Ulsteinv…

πŸ“ Vågen 31 Vestnes
Fotografier av en Airbnb-hytte i Sula, inkludert utsikt over havet og strand, samt interiørbilder.
Rehabilitation Garasje

Rehabilitering av eldre naust i Bjørkavågvegen, Eidsnes

Rehabilitering av et eldre naust på ca. 32 m² bebygd areal og 29 m² bruksareal i Bjørkavågvegen, Eidsnes. Tiltaket omfa…

Sula
Fotografi av en bygning med terrasse og hekk, inkludert postnummer og adresse.
Extension Garasje

Garasje, vinterhage og terrasse i Vikheimsveien 2, Hønefoss

Tiltaket omfatter oppføring av en frittliggende dobbelgarasje med saltak over to etasjer på 49,6 m² BYA og 67,9 m² BRA,…

πŸ“ Vikheimsveien 2 Ringerike
Fotografi av en eksisterende eller ferdig bygning sett fra siden, med bil og gatelys i forgrunnen.
NewConstruction Garasje

Ny dobbelgarasje med flatt tak på Åsen 40, Ulsteinvik

Ny frittstående dobbelgarasje på 69 m² BRA med flatt tak og gesimshøyde på 3 meter, plassert på eiendommen Åsen 40 i Ul…

πŸ“ Tresfjordvegen 31 Vestnes
Tegning som viser situasjonsplan, etasjeplan og fasadeopprikk for en liten bygning (garasje/avlastningsrom).
NewConstruction Garasje

Ny sjøbu med toalett og kontor på Dypedal Marina, Hvaler

Ny sjøbu på 15 m² oppføres på Dypedal Marina i Hvaler kommune. Bygget har saltak og er utformet i tradisjonell sjøbodst…

πŸ“ Dypedal 30 Hvaler
Fasadetegning (opprikk) av en bygning sett fra nord.
Extension Garasje

Tilbygg og brannsikret garasje på Varden 6, Hvaler

To tilbygg til enebolig på Varden 6, Hvaler kommune, med samlet BYA på 26,6 m² og BRA på ca. 46,65 m², fordelt på tilby…

πŸ“ Varden 6 Hvaler
🅿️
Extension Garasje

Ny garasje med dispensasjon ved Dimnasund 3, Ulsteinvik

Ny frittstående garasje på ca. 45,3 m² BRA oppført på eiendommen Dimnasund 3 i Ulsteinvik. Garasjen er plassert i et LN…

πŸ“ Dimnasund 3 Vestnes
Bildet viser to kart fra SkredAtlas som illustrerer skredfare og kvartærgeologiske forhold i et område.
Extension Garasje

Riving og nytt tilbygg på bolig i Fløvegen 645

Prosjektet omfatter riving av eksisterende garasjetilbygg på ca. 36 m² og oppføring av et nytt tilbygg på ca. 146 m² ru…

πŸ“ Fløvegen 645 Vestnes
🅿️
NewConstruction Garasje

Ny garasje i Hestehovvegen 6B, Jørpeland

Ny frittstående garasje oppført på eiendommen Hestehovvegen 6B i Jørpeland. Garasjen er bygget i henhold til tillatelse…

πŸ“ Hestehovvegen 6B Strand
🅿️
NewConstruction Garasje

Oppføring av garasje

Søknad om tillatelse til oppføring av ny garasje på eiendommen Synnavika 56.

πŸ“ Synnavika 56 Orkland
🅿️
NewConstruction Garasje

Oppføring av carport

Søknad om tillatelse til oppføring av carport med dispensasjon.

πŸ“ Harald Grønningens vei 6 Orkland
🅿️
NewConstruction Garasje

Oppføring av bolig og garasje

Saken inneholder administrative vedtak (midlertidig brukstillatelse og varsel om overtredelsesgebyr) uten tilgjengelig …

πŸ“ Forusskogen 88 Stavanger
Tegning som viser fasadeopprikk (øst) og detaljer for vinduer/vegger.
NewConstruction Garasje

Nybygg båthus i Øyren, Gnr 5 Bnr 35

Ny frittliggende båthus på én etasje med et samlet bebygd areal under 70 m², oppført i tre med saltak på østfasaden og …

πŸ“ Øyren 10 Bokn
🅿️
NewConstruction Garasje

Ny garasje i Mydlandsveien 611

Ny frittstående garasje oppføres på eiendommen i Mydlandsveien 611. Garasjen vil fungere som et tilbygg for biloppbevar…

πŸ“ Mydlandsveien 611 Sokndal
Oversiktskart og arealregnskap for et hyttefelt (Bjørkvikahyttefeltet).
ChangeOfUse Garasje

Bruksendring av uthus til anneks på Sprengberga 44

Eksisterende uthus på 11 m² med murgulv og innvendig panel bygges om til anneks/bolig ved å legge nytt gulv, isolere ve…

πŸ“ Sprengberga 42 Indre Fosen
En tegning som viser etasjeplan for en garasje (Berglia 26), inkludert romfordeling, dimensjoner og en snittegning av bygningens tverrsnitt.
NewConstruction Garasje

Ny frittliggende garasje med bod og støttemur på Berglia 26

Ny frittliggende dobbeltgarasje på totalt 86,2 m² BRA i to etasjer med grunnflate på 62 m². Garasjen har en gesimshøyde…

πŸ“ Berglia 26 Indre Østfold
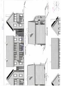
Fasadetegning som viser oppriss av bygningen sett fra fire sider: øst, sør, vest og nord.
NewConstruction Garasje

Ny frittliggende garasje med terrengarbeid i Furutoppveien 22, Røyken

Ny frittliggende garasje på 64 m² med saltak og mønehøyde på 4,8 meter og gesimshøyde på 2,2 meter, delvis nedsenket i …

πŸ“ Furutoppveien 22 Asker
Fasadetegning som viser bygningens utseende fra flere vinkler (vest, nord, syd) med detaljer om tak, vinduer og fasadepanel.
Extension Garasje

Tilbygg av hagestue på Myklandvegen 108B

Ny hagestue på 6 m² bygges som et tilbygg på eksisterende terrasse ved Myklandvegen 108B. Tilbygget består av større gl…

πŸ“ Myklandvegen 100A Karmøy