Naeringsbygg 760 treff

Etasjeplan (1. etasje) som viser romfordeling, arealer og funksjoner i et bygg.
Rehabilitation Naeringsbygg

Endring av bærende konstruksjon i hovedlager, Smelteverket 61, Odda

Prosjektet omfatter endring av bærende konstruksjon i hovedlageret på Smelteverket 61 i Odda, et eksisterende næringsby…

πŸ“ Smelteverket 57 Ullensvang
Flyfoto av et byggeområde med vannveier, inkludert en markert flomutsatt sone (grønnfarget område) og tilhørende tekst om F2-tiltak og klimapåslag.
NewConstruction Naeringsbygg

Ny produksjonshall for betong på Prestteigen 7, Støren

Ny produksjonshall på ca. 500 m² oppføres på Prestteigen 7 i Støren, som erstatning for en eksisterende hall fra 1970 s…

πŸ“ Prestteigen 7 Midtre Gauldal
Fasadetegning som viser bygningens utsyn mot de fire hovedretningene (N, S, E, V) samt en 3D-visualisering av fasaden.
NewConstruction Naeringsbygg

Ny lagerhall på 360 m² i Vindafjord, gnr 119 bnr 6

Ny frittstående lagerhall på 360 m² med flatt tak og betongfasader, plassert på opparbeidet industriområde i Vindafjord…

Vindafjord
🏬
Extension Naeringsbygg

Utviding av tilbygg på næringsbygg i Dalsfjordvegen 125

Utviding av eksisterende tilbygg på næringsbygg i Dalsfjordvegen 125 med to alternative løsninger, hvorav en utvider mo…

πŸ“ Dalsfjordvegen 125 Volda
Fotografi av et tak sett fra oven med overlagte tegninger og tekstbokser som viser plassering av utstyr og bjelker.
Extension Naeringsbygg

Nyanlegg av ventilasjons- og kjøleaggregat på tak, Borgarveien 19

Nytt ventilasjons- og kjøleaggregat installeres på stålbjelker plassert på taket over et eksisterende produksjonsbygg i…

πŸ“ Borgarveien 19 Fredrikstad
🏬
Extension Naeringsbygg

Tilbygg på næringsbygg i Grøndalsvegen 2

Ny utvendig tilbygg på bygg 107 ved Grøndalsvegen 2, et næringsbygg tilhørende Nammo. Tilbygget er større enn 50 m² og …

πŸ“ 13/665-1 Vestre Toten
Håndtegnet skisse som viser fasadeoppsett, situasjon og etasjeplan for en bygning.
Extension Naeringsbygg

Tilbygg og renovering av våningshus med gjestehus på Ripnes

Prosjektet omfatter renovering og oppgradering av et eksisterende våningshus på eiendommen Ripnes, inkludert utbedring …

πŸ“ Ripnes Bodø
🏬
Rehabilitation Naeringsbygg

Rehabilitering av pipe på næringsbygg, Bakkemoen 57

Rehabilitering av eksisterende pipe på næringsbygg ved Bakkemoen 57. Arbeidet omfatter teknisk oppgradering og utbedrin…

πŸ“ Bakkemoen 57 Evje og Hornnes
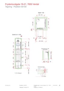
Snittegning (Snitt A-A) som viser bygningens tverrsnitt, inkludert etasjehøyder, dører og vinduer.
Extension Naeringsbygg

Utskifting av 6 heiser i Mikvold Østre, Tungata 6

Prosjektet omfatter utskifting av 6 heiser i Mikvold Østre Borettslag, et næringsbygg beliggende i Tungata 6, Verdal. H…

πŸ“ Tungata 6 Verdal
3D-visualisering (rendering) av et byggeprosjekt med flere bygninger, vei og terreng.
NewConstruction Naeringsbygg

Ny hall for oppdrettskar på Osland Brygge, Høyanger

Ny hall på 733 m² med flatt tak og betongfasader bygges som overbygg for eksisterende oppdrettskar på Osland Brygge. By…

πŸ“ Osland Brygge Høyanger
Fasadetegning som viser bygningens utseende fra alle fire sider (N, S, E, V) med mål og detaljer.
NewConstruction Naeringsbygg

Oppføring av nytt kyllinghus

Saken gjelder søknad om tillatelse i ett trinn for oppføring av et nytt kyllinghus på Valheim gard. Det er vurdert plas…

πŸ“ Valheimsvegen 216 Hjelmeland
Fasadetegning som viser bygningens utseende sett fra syd, inkludert vinduer, dører og fasadematerialer.
Extension Naeringsbygg

Tilbygg og ny avkjøring ved verksted, Gamle Dalsveg 160

Ny tilbygg på ca. 412 m² BYA til eksisterende verkstedbygning på næringseiendommen Gamle Dalsveg 160. Tilbygget har fla…

πŸ“ Gamle Dalsveg 160 Nannestad
Satellittbilde (kart) som viser et område med en fotballbane, en idrettshall og en tomte med en planlagt bygning (rødt).
NewConstruction Naeringsbygg

Ny treningshall i Vågen 10, Sande kommune

Ny treningshall planlegges oppført på eiendommen Vågen 10 i Sande kommune. Bygget vil ligge 16,4 meter fra vegskulder l…

πŸ“ Vågen 10 Sande
🏬
NewConstruction Naeringsbygg

Oppføring av driftsbygning på Lykkjavegen 212

Ny driftsbygning for næringsformål oppføres på eiendommen Lykkjavegen 212. Bygningen skal fungere som et driftsbygg, ty…

πŸ“ Lykkjavegen 212 Hemsedal
🏬
NewConstruction Naeringsbygg

Ny driftsbygning (rubbhall) i Austarheimsvegen 274

Ny driftsbygning (rubbhall) på 900 m² BRA oppføres med stålramme og dukoverbygg fundamentert på støpt ringmur. Bygget s…

πŸ“ Austarheimsvegen 274 Sauda
Fotografi av fasaden på Unilabs Bodø med skilt og foliedekor.
ChangeOfUse Naeringsbygg

Ombygging og bruksendring til radiologisk senter i Storgata 27, Bodø

Ombygging og tilpasning av eksisterende kontor- og forretningslokaler i Storgata 27, Bodø, til et radiologisk senter fo…

πŸ“ Storgata 27 Bodø
🏬
NewConstruction Naeringsbygg

Ny produksjonshall med kontor og undervisning på Fiskåvegen

Ny produksjonshall med tilhørende administrasjonsdel og undervisningsarealer for Strand videregående skole oppføres på …

πŸ“ 16/551 Strand
Luftfoto av et område med en bygning, parkeringsplass og omgivende natur. Bildet er brukt i en rapport for å illustrere plassering av sluk og samlingsfelt.
NewConstruction Naeringsbygg

Hovedombygging og nybygg næringsbygg i Per Helgesens vei 99, Bodø

Prosjektet omfatter hovedombygging og rehabilitering av et eksisterende næringsbygg på ca. 4100 m² med tilbygg, inklude…

πŸ“ Per Helgesens vei 99 Bodø
Etasjeplan (Plan 1) med symbolforklaring for brannsikring, utganger og nødsted.
Extension Naeringsbygg

Oppgradering av ledelys og nødlys i næringsbygg, Bedriftsvegen 21

Oppgradering og nyetablering av ledelys og nødlys i eksisterende næringsbygg på 1250 m² i Bedriftsvegen 21. Tiltaket om…

πŸ“ Bedriftsvegen 21 Skien
🏬
Extension Naeringsbygg

Tilbygg av garderobe og flerbruksbygg ved Rota stadion

Ny tilbygg med garderobe- og flerbruksbygg i to etasjer ved Rota stadion på Vigra. Første etasje inneholder to garderob…

πŸ“ Rota stadion Giske
🏬
FacadeChange Naeringsbygg

Fasadeendring på næringsbygg i Øvrevegen 17

Fasadeendring på eksisterende næringsbygg i Øvrevegen 17. Endringen omfatter oppgradering eller modifisering av byggets…

πŸ“ Øvrevegen 17 Volda
3D-visualisering av fasaden på en planlagt bygning
FacadeChange Naeringsbygg

Fasadeendring og reparasjon av yttervegg i Torvgata 8A, Bodø

Reparasjon av brannskadet yttervegg mot vest på næringsbygg i Torvgata 8A. Den skadede veggen utlektes og kles med plat…

πŸ“ Torvgata 8A Bodø
Fotografi av en hvit bygning med svart tak ved Smidsrødveien 15 i Færder kommune.
ChangeOfUse Naeringsbygg

Bruksendring fra næring til bolig i Smidsrødveien 15, Færder

Bruksendring av 2. etasje i eksisterende næringsbygg fra ca. 1927 til boligformål. Bygget har et totalt areal på ca. 52…

πŸ“ Smidsrødveien 15 Færder
🏬
NewConstruction Naeringsbygg

Nytt industribygg på Gnr 4, Bnr 97

Nytt bygg for industriformål skal oppføres på eiendommen Gnr 4, Bnr 97. Bygget vil være tilpasset industribruk med hens…

πŸ“ Hodlebrautsvegen 9 Osterøy