Naeringsbygg 758 treff

Etasjeplan (Ground Floor) for en lagerbygning som viser romfordeling, arealer og enhetssammensetning.
ChangeOfUse Naeringsbygg

Bruksendring til lagerboks i Fjordveien 1, Høvik

Bruksendring av deler av underetasjen i eksisterende næringsbygg til selvbetjent lagerboks (self-storage) med totalt ca…

πŸ“ Fjordveien 1 Bærum
Situasjonsplan som viser bygningenes plassering i forhold til terrenget og veier i Hustadvika kommune.
Rehabilitation Naeringsbygg

Rehabilitering av piperelementer i næringsbygg, Sørsidevegen 1199

Rehabilitering av eksisterende piperelementer i et næringsbygg på Sørsidevegen 1199. Arbeidet omfatter reparasjon og op…

πŸ“ Sørsidevegen 1199 Hustadvika
🏬
ChangeOfUse Naeringsbygg

Bruksendring fra kontor til hotell i Markveien 35B

Bruksendring av 3. etasje i næringsbygg fra kontor til hotell. Prosjektet innebærer tilpasning av eksisterende lokaler …

πŸ“ Markveien 35A Oslo - Oslove
🏬
ChangeOfUse Naeringsbygg

Ombygging og bruksendring til kantine og møteromsenter i Rådhusgata 25

Ombygging og bruksendring av eksisterende næringsbygg i Rådhusgata 25 til kantine og møteromsenter. Prosjektet innebære…

πŸ“ Øvre Vollgate 2 Oslo - Oslove
🏬
Rehabilitation Naeringsbygg

Rehabilitering og påbygg av hotell i Munchs gate 5

Prosjektet omfatter omfattende rehabilitering av et eksisterende hotellbygg, inkludert tilbygg og påbygg for å utvide o…

πŸ“ Munchs gate 5 Oslo - Oslove
🏬
VerticalExtension Naeringsbygg

Etablering og utvidelse av åpninger i teglvegger, Meltzers gate 5

Prosjektet omfatter etablering og utvidelse av åpninger i bærende teglvegger i et næringsbygg. Dette innebærer struktur…

πŸ“ Meltzers gate 5 Oslo - Oslove
🏬
ChangeOfUse Naeringsbygg

Bruksendring og fasadeendring på næringsbygg, Østbyfaret 33

Prosjektet omfatter bruksendring og fasadeendring på et eksisterende næringsbygg i Østbyfaret 33. Endringene innebærer …

πŸ“ Østbyfaret 33 Oslo - Oslove
🏬
Extension Naeringsbygg

Tilbygg til Kiwi-butikk i Hagevegen 8B

Nybygg av et tilbygg til eksisterende Kiwi-butikk i Hagevegen 8B. Tilbygget utvider butikkarealet og tilpasses eksister…

πŸ“ Hagevegen 8B Lillehammer
Tegning som viser fasadeopprikk for en bygning (vest, nord og sør) samt et snitt av tilbygg.
Extension Naeringsbygg

Tilbygg på verkstedbygning i Håvikvegen 141

Ny tilbygg på 40 m² i ett plan på eksisterende verkstedbygning i Håvikvegen 141. Tilbygget skal fungere som lager med s…

πŸ“ Håvikvegen 141 Karmøy
🏬
NewConstruction Naeringsbygg

Ny kiosk og lagerbygg på Høddvoll, Ulsteinvik

Ny frittstående kiosk- og lagerbygg på 77,4 m² oppført på eiendommen Høddvoll, Gnr 10 Bnr 14 i Ulsteinvik. Bygget har e…

πŸ“ Høddvoll Vestnes
Situasjonsplan som viser eiendomsområde, bygning og vei i Wecyveien.
NewConstruction Naeringsbygg

Ny industribygning for eggpakkeri i Wecyveien, Slitu

Ny industribygning på 2128 m² BRA oppføres i Skogholt Næringsområde, Wecyveien, Slitu. Bygget skal brukes til produksjo…

πŸ“ Wecyveien 1 Indre Østfold
Tegning som viser fasadeoppsett og snitt for en bygning (Lagerbrygning).
NewConstruction Naeringsbygg

Ny lagerhall på Voren 45, Sandsøya

Ny lagerhall på 450 m² oppføres på eiendommen Voren 45, gnr 68 bnr 37, Sandsøya. Bygget er en næringsbygning med saltak…

πŸ“ Voren 45 Sande
🏬
NewConstruction Naeringsbygg

Ny bulkhall i General Holms veg

Ny bulkhall for næringsformål oppføres på eiendommen i General Holms veg 42/668. Bygget er et ikke-boligbygg med et are…

πŸ“ General Holms veg 27 Evje og Hornnes
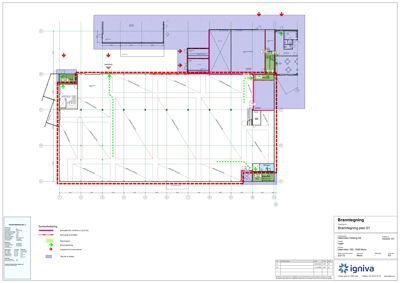
Etasjeplan (branntegning) som viser romfordeling, vegger, dører og brannsikringstiltak.
ChangeOfUse Naeringsbygg

Bruksendring fra kontor til minilager i Vålerveien 180, Moss

Bruksendring av 165,8 m² kontorlokaler i 2. etasje, seksjon 5, i næringsbygget Vålerveien 180 i Moss til minilager. Lok…

πŸ“ Vålerveien 180 Moss
🏬
NewConstruction Naeringsbygg

Nytt restaurantanlegg med brannalarmanlegg i Storgata 1B

Nytt næringsbygg oppføres som et restaurantanlegg i Storgata 1B. Prosjektet inkluderer bygging av selve restaurantbygni…

πŸ“ Storgata 1A Ullensaker
🏬
FacadeChange Naeringsbygg

Fasadeendring på næringsbygg i Sandfærhus 24

Fasadeendring på eksisterende næringsbygg i Sandfærhus 24. Prosjektet omfatter endringer i byggets ytre fasade, som kan…

πŸ“ Sandfærhus 24 Stjørdal
Flyfoto av et utbyggingsområde med parkeringsplasser og bygninger.
NewConstruction Naeringsbygg

Nytt næringsbygg med uteareal på Digernes næringsområde 9, Skodje

Nytt næringsbygg i tre etasjer med inntrukken 3. etasje og flatt tak, plassert på Digernes næringsområde 9 i Skodje. By…

πŸ“ 531/113 Ålesund
🏬
NewConstruction Naeringsbygg

Oppføring av kontor- og industribygg i Stålfjæra 27

Ny oppføring av et kontor- og industribygg på eiendommen Stålfjæra 27. Bygget skal benyttes til næringsformål med kombi…

πŸ“ Stålfjæra 27 Oslo - Oslove
🏬
Extension Naeringsbygg

Tilbygg til eksisterende kontorer i Strandgata 25

Ny tilbyggsdel til eksisterende kontorbygg i Strandgata 25. Prosjektet omfatter grunnarbeider, betongarbeider og oppfør…

πŸ“ Strandgata 25 Hareid
Fotografi av en bensinstasjon med tankpumper, søyler og en bil.
Extension Naeringsbygg

Tilbygg og fasadeendring på næringsbygg i Øyvind Lambes vei 10

Tiltaket omfatter et nytt tilbygg på 100 m² til eksisterende lagerbygg i Øyvind Lambes vei 10, Sandnessjøen, med fasade…

πŸ“ Øyvind Lambes vei 10 Alstahaug
Fotografier av en bygning (garasje) og asfaltflater med markerte lavpunkter for overvannsundersøkelse.
NewConstruction Naeringsbygg

Oppføring av lagerbygg i Isdamveien 10-24, Holmestrand

Prosjektet omfatter oppføring av åtte lagerbygg (bygg A-H) i Isdamveien 10-24 i Holmestrand kommune. Byggene er nærings…

πŸ“ Isdamveien 12A Holmestrand
🏬
Extension Naeringsbygg

Utvidelse av eksisterende Coop bygg i Villbergvegen 130

Utvidelse av et eksisterende næringsbygg som tilhører Coop på Villbergvegen 130. Prosjektet innebærer fysisk påbygging …

πŸ“ Vilbergvegen 130 Ullensaker
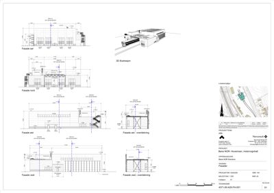
Bildet viser en samling fasadetegninger (Fasade sør, nord, øst, vest) samt en 3D-illustrasjon av bygningens utseende.
NewConstruction Naeringsbygg

Ny motorvognhall med tekniske installasjoner i Hovemovegen 55, Lillehammer

Ny motorvognhall på totalt 2116,5 m² fordelt på to etasjer bygges på Hovemovegen 55 i Lillehammer. Bygget består av en …

πŸ“ Hovemovegen 55 Lillehammer
🏬
NewConstruction Naeringsbygg

Oppføring av kombinasjonsbygg bolig/næring i Fåberggata 131

Nyoppført kombinasjonsbygg som inneholder både bolig- og næringsarealer. Bygget er planlagt og godkjent med dispensasjo…

πŸ“ Nordre gate 10A Lillehammer