Offentlig 329 treff

🏛️
Extension Offentlig

Tilbygg av lærerrom ved Sunnfjordskulen

Ny tilbyggsdel til eksisterende skolebygning som skal romme et lærerrom. Tilbygget vil være integrert med eksisterende …

πŸ“ Sunnfjordskulen Sunnfjord
Bildet viser en side fra et saksutredning eller søknad for Moss kommune. Det inneholder to tegninger: 'Utomhusplan' (som er en fasade/oppriks) og 'Situasjonsplan'. Under tegningene finnes også tabeller med tekniske opplysninger om tiltaket.
Extension Offentlig

Midlertidig asylmottak med modulbygg på Storebaug 5, Moss

Prosjektet omfatter midlertidig plassering av to modulbygg og bruksendring av eksisterende motell- og kontorbygninger t…

πŸ“ Storebaug 3 Moss
Et bilde fra en rapport som viser prøver av byggematerialer (betongvegg, rørisolasjon, gulvbelegg, lysstoffrør) og rørisolasjon av cellegummi.
Rehabilitation Offentlig

Ombygging av Gjerpen sykehjem til dagsenter, Håvundvegen 17

Ombygging av Gjerpen sykehjem til dagsenter omfatter to sammenkoblede bygg med totalt over 5 500 m² bruttoareal. Bygg 1…

πŸ“ Valhallvegen 29 Skien
Bildet viser en kartutsnitt fra en kommunedelplan for Ørsta kommune, med en tilhørende tekstbeskrivelse av området.
ChangeOfUse Offentlig

Bruksendring av Bjørke skole til bolig og næring, Hjørundfjordvegen 45

Tidligere skolebygning fra 1960-tallet på Hjørundfjordvegen 45 ombygges til boligformål med en privat bolig i andre eta…

πŸ“ Hjørundfjordvegen 45 Volda
Bildet viser en tegning med både etasjeplan (1. etasje) og tre perspektivtegninger (renderinger) av kjøkkenet i et barnehjem.
NewConstruction Offentlig

Ny barneskole med tilbygg i Rogneståvegen 6, Notodden

Ny barneskole for 1.-7. trinn med totalt ca. 2 670 m² bruttoareal fordelt på flere tilbygg og ombygginger. Bygget inneh…

Notodden
Fotografi av en bygning sett fra siden (fasade), med håndskrevet tekst på veggen.
NewConstruction Offentlig

Nybygg av Ørsta kultur- og kompetansesenter i Holmegata, Ørsta

Nybygg av Ørsta kultur- og kompetansesenter bestående av fem sammensatte volum med ulikt arkitektonisk uttrykk. Bygget …

πŸ“ Ørsta kultur og kompetansesenter Ørsta
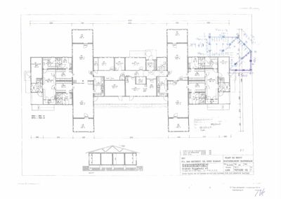
Etasjeplan (plan og snitt) som viser romfordeling, dører, vinduer og mål for en bygning.
Extension Offentlig

Utvidelse av tak og utesoveplass ved Stavåsbakken barnehage, Solbærvegen 88

Utvidelse av eksisterende tak over utesoveplass ved Stavåsbakken barnehage med ca. 7,2 meter mot vest og ca. 5,0 meter …

πŸ“ Solbærvegen 88 Elverum
🏛️
Rehabilitation Offentlig

Ombygging av Skånevik omsorgssenter

Saken gjelder søknad om rammeløyve for ombygging av Skånevik omsorgssenter, inkludert planer for ulike etasjer, fasadee…

πŸ“ Skånevikvegen 61 Etne
🏛️
ChangeOfUse Offentlig

Ombygging og fasadeendring av politistasjon i Rådhusvegen 3, Fiskå

Ombygging av eksisterende kontor- og administrasjonsbygg til politistasjon med et samlet bruksareal på 174,5 m² og tilh…

πŸ“ Rådhusvegen 1 Vanylven
🏛️
NewConstruction Offentlig

Ny kommunal bolig, adresse ukjent

Ny kommunal bolig skal oppføres som et nytt bygg innen offentlig sektor. Detaljer om byggets størrelse, materialer og r…

Modum
🏛️
Extension Offentlig

Tilbygg ved Lærer Marikollen ungdomskole, Rælingen

Tilbygg til Lærer Marikollen ungdomskole i Rælingen kommune. Prosjektet omfatter en fysisk utvidelse av eksisterende sk…

Rælingen
🏛️
NewConstruction Offentlig

Ny heldøgns omsorgsbolig i Bodø kommune

Ny heldøgns omsorgsbolig skal oppføres i Bodø kommune som et offentlig bygg. Prosjektet omfatter et bygg tilpasset held…

Bodø
🏛️
Extension Offentlig

Tilbygg på Løvenstad skole, Rælingen kommune

Ny tilbyggsdel til Løvenstad skole i Rælingen kommune. Tilbygget skal utvide skolens eksisterende bygningsmasse for å g…

Rælingen
🏛️
Other Offentlig

Byggtekniske installasjoner i ungdomsskole, Bankgata 26

Teknisk installasjon i ungdomsskolebygget i Bankgata 26, Bodø. Prosjektet omfatter oppgradering eller nyinstallasjon av…

πŸ“ Bankgata 26 Bodø
🏛️
Rehabilitation Offentlig

Oppgradering av klimaskjell og varmepumpe ved Mørkved sykehjem, Bodø

Prosjektet omfatter etterisolering av yttervegger og yttertak, utskifting av vinduer, samt installasjon av væske-vann v…

Bodø
🏛️
NewConstruction Offentlig

Ny kommunal bolig, adresse ukjent

Ny kommunal bolig skal oppføres som et offentlig bygg. Detaljer om boligtype, størrelse og materialvalg er ikke tilgjen…

Gjerdrum
🏛️
Extension Offentlig

Nyanlegg av trappeheis i Bodø videregående skole, Torvgata 30

Ny installasjon av trappeheis mellom 3. og 4. etasje i Bodø videregående skole på Torvgata 30. Prosjektet omfatter pros…

πŸ“ Torvgata 30 Bodø
3D-visualisering av et skole- og flerbrukshallprosjekt med omgivelser, inkludert tekstbeskrivelse og sidefot.
NewConstruction Offentlig

Oppføring av barnehage og fotballbane med tilhørende infrastruktur

Saken gjelder et omfattende byggeprosjekt for oppføring av en barnehage og en fotballbane på eiendommen. Prosjektet ink…

πŸ“ Brådalsgutua 10 Gjerdrum
Bildet viser en tegning med fire forskjellige fasadeoppsett (Fasade vest 1-4) for et nytt bygg, inkludert detaljer om vinduer, materialer og høyder.
NewConstruction Offentlig

Ny helikopterhangar og teknisk bygg på Bodø Flystasjon

Ny beredskapsbase for redningshelikopter bestående av en stor helikopterhangar og tilhørende teknisk bygg på Bodø Flyst…

πŸ“ Bodø Flystasjon 1A Bodø
🏛️
FacadeChange Offentlig

Avskjerming på Froland sykehjem, Froland kommune

Avskjerming monteres på fasaden til Froland sykehjem for å skjerme uteområder eller vinduer. Tiltaket innebærer endring…

Froland
🏛️
Rehabilitation Offentlig

Rehabilitering av garderobeanlegg i skolebygg

Konkurransegrunnlag og anbud for rehabilitering av garderobeanlegg (bygg 300) ved Årdal skule, inkludert riveteikninger…

Hjelmeland
Etasjeplan som viser romfordeling, arealer og plassering av nye/toalett i en skolebygning.
Extension Offentlig

Ombygging for universell utforming ved Mykland skole, Froland

Ombygging av deler av Mykland skole for å sikre minimum universell utforming. Tiltakene inkluderer utskifting av eksist…

Froland
🏛️
NewConstruction Offentlig

Ny kommunal bolig, adresse ukjent

Ny kommunal bolig skal oppføres som et offentlig bygg. Detaljer om størrelse, materialer og tekniske løsninger er ikke …

Fauske - Fuossko
Fasadetegning av en bygning (Lyehallen) med to utsnitt: mot øst og mot nord. Tegningen viser fasadens utseende, materialer, vinduer og innganger.
Extension Offentlig

Tilbygg til idrettshall

Søknad om tillatelse til oppføring av tilbygg til eksisterende idrettshall (Lyehallen) med tilhørende vann- og avløpsar…

πŸ“ Sentervollen 29 Time