Offentlig 329 treff

🏛️
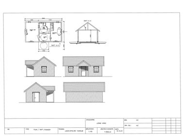
NewConstruction Offentlig

Ny beredskapsstasjon, offentlig bygg

Ny beredskapsstasjon skal oppføres som et offentlig bygg. Prosjektet omfatter etablering av en ny bygning til beredskap…

Gausdal
Fasadetegning som viser bygningens utseende fra fronten, med oppriss av vinduer, inngang og etasjer.
ChangeOfUse Offentlig

Bruksendring og tilbygg på Thon Hotel Oslo Airport, Balder Alle 2

Prosjektet omfatter bruksendring av kontor- og næringsarealer til hotellrom i hele bygg 1, samt bruksendring av møterom…

πŸ“ Balder alle 2 Ullensaker
Situasjonsplan som viser tomtegrenser, bygninger, veier (Saltnesveien, Grendehusveien) og arealbruk (fargekodet).
Extension Offentlig

Tilbygg på forsamlingslokalet i Råde Frikirke, Gnr 93 Bnr 287

Ny tilbygg til forsamlingslokalet ved Råde Frikirke som innebærer å flytte gavlveggen noen meter mot fylkesveien for å …

πŸ“ Grendehusveien 2 Råde
🏛️
NewConstruction Offentlig

Oppgradering og videre drift av modulbygg for barnehage i Nyenga, Bodø

Modulbygget i Nyenga består av et midlertidig modulbygg for barnehage med fire avdelinger og et bruksareal på ca. 740 m…

πŸ“ Nyenga Bodø
🏛️
FacadeChange Offentlig

Innglassing av eksisterende arkade i Mariboes gate 6

Prosjektet omfatter innglassing av en eksisterende arkade på en offentlig bygning i Mariboes gate 6. Dette innebærer mo…

πŸ“ Mariboes gate 6 Oslo - Oslove
Fasadetegning som viser bygningens utseende fra en bestemt vinkel, inkludert takform, vinduer, balkong og garasje.
ChangeOfUse Offentlig

Bruksendring og fasadeendring på Vik Pensjonat, Simadalsvegen 10A

Tiltaket omfatter bruksendring av to lagerrom i 2. etasje til soveværelser med totalt 13,5 m² BRA, fasadeendring med ut…

πŸ“ Simadalsvegen 10A Eidfjord
Fotografi av et eksisterende bygg (Sparebankbygget) med bil foran.
ChangeOfUse Offentlig

Bruksendring og fasadeendring av Sparebankbygget i Larsnesvegen 65

Eksisterende Sparebankbygg på Larsnesvegen 65 gjennomgår bruksendring hvor deler av bygget omgjøres til boligformål. De…

πŸ“ Larsnesvegen 65 Sande
🏛️
Rehabilitation Offentlig

Ombygning av ventilasjonssystem i Sandefjord Rådhus

Ombygging av ventilasjonssystemet i Sandefjord Rådhus, et offentlig bygg. Prosjektet innebærer utskifting og oppgraderi…

πŸ“ Sandefjord Rådhus Sandefjord
Fotografi av en hvit bygning med skiltet 'HOTEL' på taket, sett fra foran.
Extension Offentlig

Oppføring av heisbygg og utskifting av heis på Stryn Hotel, Visnesvegen 1

Ny heisbygg på ca. 9 m² oppføres ved Stryn Hotel med samme plassering og høyde som eksisterende heis. Eksisterende heis…

πŸ“ Visnesvegen 1 Stryn
🏛️
Extension Offentlig

Installasjon av personheis i offentlig bygg, Sørengkaia 30 - 42

Ny installasjon av en personheis i et eksisterende offentlig bygg på Sørengkaia 30 - 42. Prosjektet omfatter montering …

πŸ“ Sørengkaia 30 - 42 Oslo - Oslove
Bildet viser en tegning med fasadeoppvisning (front- og sideveier) og et snitt (SNITT A-A) av en bygning, sannsynligvis en liten kirke eller uthus.
NewConstruction Offentlig

Nytt servicebygg ved Tunnsjø kirke, Lierne

Nytt servicebygg i tre med saltak oppføres ved Tunnsjø kirke i Lierne kommune. Bygget har et oppvarmet areal med isoler…

Lierne
Utsnitt av et utomhusplan som viser plassering av bygninger, veier, parkeringsplasser og heis i forhold til reguleringer.
Extension Offentlig

Midlertidig skolepaviljong og riving av kontorrigg, Hernesveien 22B

Ny midlertidig skolepaviljong i to etasjer på 430 m² BRA oppføres på Hernesveien 22B. Bygget består av prefabrikerte mo…

πŸ“ Hernesveien 22B Bodø
🏛️
NewConstruction Offentlig

Ny barneskole, barnehage og flerbrukshall i Brådalsgutua 10

Prosjektet omfatter oppføring av en ny barneskole, en barnehage, en flerbrukshall, samt et parkeringsanlegg og tilhøren…

πŸ“ Brådalsgutua 10 Gjerdrum
🏛️
Extension Offentlig

Utskifting av heis i offentlig bygg, Søren R Thornæs veg 11

Utskifting av eksisterende heis i en offentlig bygning på Søren R Thornæs veg 11. Prosjektet innebærer demontering av g…

πŸ“ Søren R Thornæs veg 11 Namsos - Nåavmesjenjaelmie
3D-visualisering av et innvendig rom (gym) med utstyr, gulv, vegger og tak.
NewConstruction Offentlig

Ny idrettshall med klatrevegg og aktivitetssaler på Lye

Ny idrettshall på totalt 1602 m² oppføres som tilbygg til eksisterende anlegg på Lye. Bygget får en klatrehall med 500 …

πŸ“ Vestlyvegen 6 Time
🏛️
Rehabilitation Offentlig

Innvendig lettriving og miljøsanering ved Langbølgen 22

Innvendig lettriving og miljøsanering av paviljonger og hovedbygning på eiendommen Langbølgen 22. Arbeidet omfatter dem…

πŸ“ Langbølgen 22 Oslo - Oslove
🏛️
Rehabilitation Offentlig

Rehabilitering med taktekking og vindusskifte i Slottsgate 11

Rehabilitering av et offentlig bygg i Slottsgate 11 som omfatter utskifting av taktekking og utbedring samt utskifting …

πŸ“ Øvre Slottsgate 11 Oslo - Oslove
Et kartutsnitt som viser sikringssoner (1, 2 og 3) rundt Dalen Vassverk i forhold til eiendommen Rundtomvegen.
Extension Offentlig

Tilbygg til kufjøs ved Dalen vassverk, Folldal

Ny tilbygg til eksisterende kufjøs innenfor sikringssonene for Dalen vassverk i Folldal kommune. Tilbygget skal utvide …

Folldal
🏛️
Rehabilitation Offentlig

Restaurering og endring av kirkerom

Saken gjelder søknad om tillatelse i ett trinn for restaurering og endring av kirkerom i Trefoldighetskirken.

πŸ“ Akersgata 60 Oslo - Oslove
🏛️
NewConstruction Offentlig

Oppføring av nytt tak på Veståsen Skole, Fjellvegen 40

Nytt tak bygges på Veståsen Skole, en offentlig bygning. Prosjektet omfatter fullstendig oppføring av taket, sannsynlig…

πŸ“ Fjellvegen 40 Gjerdrum
Fotografi av teknisk utstyr (ventilasjon og rør) i en teknisk rom eller kjeller.
Extension Offentlig

Etablering av ventilasjonskjøling i Årdal omsorgssenter, Melevegen 136

Prosjektet omfatter etablering av et komplett kjøleanlegg integrert i det eksisterende ventilasjonsanlegget ved Årdal o…

Hjelmeland
3D-visualisering (rendering) av en hallbygning (Larsnes Idrottslag) sett fra en vinkel.
NewConstruction Offentlig

Oppføring av fotballhall

Saken gjelder søknad om tillatelse i ett trinn og løyve til oppføring av en fotballhall på Vardane 20. Prosjektet inklu…

πŸ“ Vardane 20 Sande
🏛️
Extension Offentlig

Innvendig ombygging og ventilasjonsanlegg i Universitetsgata 20

Innvendig ombygging i offentlig bygg i Universitetsgata 20 med tilhørende installasjon av nytt ventilasjonsanlegg. Pros…

πŸ“ Universitetsgata 20 Oslo - Oslove
🏛️
NewConstruction Offentlig

Ny kommunal bolig i offentlig sektor

Ny kommunal bolig skal oppføres som et offentlig bygg. Detaljer om størrelse, materialer og romfordeling er ikke tilgje…

Færder