Other 1752 treff

🏗️
FacadeChange Other

Fasadeendringer ved inngangsparti i Parkveien 50

Fasadeendringer ved inngangspartiet på bygning i Parkveien 50. Prosjektet omfatter oppgradering eller modifisering av f…

πŸ“ Wergelandsveien 2 Oslo - Oslove
🏗️
NewConstruction Other

Endringer i branncelleinndeling og konstruksjon, Gjerdrums vei 10 G

Prosjektet omfatter endringer i branncelleinndeling og konstruksjon ved eiendommen i Gjerdrums vei 10 G. Detaljer om by…

πŸ“ Gjerdrums vei 10G Oslo - Oslove
🏗️
Rehabilitation Other

Åpninger i bærevegger og fjerning av pipe, Fossveien 9

Prosjektet omfatter strukturelle endringer i eksisterende bygg ved Fossveien 9, inkludert etablering av åpninger i bære…

πŸ“ Fossveien 9 Oslo - Oslove
🏗️
NewConstruction Other

Oppføring av carport

Ny frittstående carport oppføres som et enkelt bygg for parkering av kjøretøy. Carporten vil ha åpen konstruksjon med t…

Salangen
3D-visualisering av en planlagt bygning med garasje og tilhørende bygninger.
Extension Other

Tilbygg og fasadeendring på Sundsvegen 162, Sunde

Ny lagerdel/garasje på eiendommen Sundsvegen 162 i Sunde, med tilbygg større enn 50 m² og omfattende fasadeendringer. B…

πŸ“ Sundsvegen 162 Kvinnherad
Fasadetegning (opprikk) av bygningens østgavl med mål på høyder og bredde.
NewConstruction Other

Ny plasthall for avfallshåndtering på Sundveien 195, Røros

Ny plasthall med et bebygd areal på 540 m² og totalt bruksareal på 2160 m² fordelt på fire imaginære plan oppføres på e…

πŸ“ Sundveien 195 Røros - Rosse
Fasadetegning som viser bygningens utseende fra alle fire sider (Sør, Øst, Nord og Vest).
NewConstruction Other

Nyoppføring av naust i Reppaveien, Rødøy

Nyoppføring av et frittliggende naust med et bebygd areal på 48,6 m² plassert ca. 5–6 meter fra sjøen i Reppaveien, Rød…

πŸ“ Reppaveien 54 Rødøy
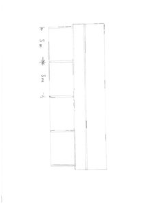
En tegning som viser en fasade eller en sidevindu av en bygning med angitte mål på 5 meter.
NewConstruction Other

Ny driftsbygning i landbruket på Kyrkjevegen 101

Ny driftsbygning for landbruk med samlet areal under 1000 m² oppføres på eiendommen Kyrkjevegen 101. Bygget er en lager…

πŸ“ Kyrkjevegen 101 Kvinnherad
Fotografi av en bygning med en butikkfront (Søndagsåpen) og vinduer med reklamefolie.
FacadeChange Other

Oppføring av fasadeskilt på næringsbygg, Onarheimsvegen 4

Nye fasadeskilt og folieprofilering monteres på næringsbygget i Onarheimsvegen 4, Husnes. Skiltene består av flere stor…

πŸ“ Onarheimsvegen 4 Kvinnherad
🏗️
Extension Other

Oppføring av flytebrygge ved Kviteseidvegen 1807C

Ny flytebrygge skal oppføres ved eiendommen Kviteseidvegen 1807C. Prosjektet omfatter etablering av en flytende konstru…

πŸ“ Kviteseidvegen 1807C Nissedal
🏗️
Extension Other

Tilbygg under 50 m² på Venneslavegen 225

Ny tilbygg med samlet areal mindre enn 50 m² på eiendommen Venneslavegen 225. Tilbygget innebærer en utvidelse av eksis…

πŸ“ Venneslavegen 225 Vennesla
🏗️
FacadeChange Other

Innsetting av fire takvinduer i Arilds vei 30

Innsetting av fire nye takvinduer i eksisterende tak på bygningen i Arilds vei 30. Prosjektet innebærer modifikasjon av…

πŸ“ Arilds vei 30 Oslo - Oslove
Fotografi av en grønn hage med et grått hus, en hvit bil og en gate i bakgrunnen.
NewConstruction Other

Bygging av avløpsanlegg på Kolbulinna 1272, Østre Toten

Ny grunn infiltrasjonsbasert avløpsløsning for én bolig på eiendommen Kolbulinna 1272 i Østre Toten kommune. Anlegget b…

πŸ“ Kolbulinna 1272 Østre Toten
🏗️
Demolition Other

Riving av deler av bygg i Granlivegen 26, Vennesla

Delvis riving av eksisterende bygg på eiendommen Granlivegen 26 i Vennesla kommune. Prosjektet omfatter demontering og …

πŸ“ Granlivegen 26 Vennesla
3D-visualisering av to hvite biler ved en lade-/brennstoffstasjon med 'Uno X'-merking.
NewConstruction Other

Oppføring av prismast for el-billading i Strandavegen 335, Voss

Ny frittstående prismast for el-billading med en total høyde på 7,2 meter plassert på et betongfundament. Fundamentet e…

πŸ“ Strandavegen 335 Voss
3D-visualisering av en bygning sett fra flere vinkler, med farge og skygger.
Extension Other

Tilbygg til driftsbygning i landbruk på Øygardsvegen 21

Tilbygg på ca. 137 m² til eksisterende driftsbygning på landbrukseiendommen Øygardsvegen 21 i Dovre kommune. Bygget har…

πŸ“ Øygardsvegen 21 Dovre
Fasadetegning som viser bygningens utseende sett fra øst (fasade mot øst), inkludert farger, materialer, vinduer og carport.
Extension Other

Ny carport og bod i Rådhusveien 21, Rissa

Ny frittstående carport på 9 m² med flatt glass-tak og tilhørende søppeldunk-bod oppføres på eiendommen i Rådhusveien 2…

πŸ“ Rådhusveien 21 Indre Fosen
🏗️
FacadeChange Other

Fasadeendringer på Åkvågveien 916, Risør

Fasadeendringer på eksisterende bygg i Åkvågveien 916 i Risør kommune. Prosjektet innebærer endringer i byggets ytre ut…

πŸ“ Åkvågveien 916 Risør
Dette bildet er en rapportomslag med flere foton av en bygning (ØRAS IKS) og omgivelsene, inkludert en tunnel og vannløp.
NewConstruction Other

Ny deponicelle med VA-anlegg i Ørasvegen, Ullensaker

Ny deponicelle i område BAS4 ved Ørasvegen i Ullensaker kommune etableres som en utvidelse av eksisterende avfallsdepon…

πŸ“ Ørasvegen 118 Ullensaker
Bildet viser en tegning med 3D-visualiseringer (perspektiv) og 2D-opprikk (fasader) av en bygning.
Rehabilitation Other

Oppføring av stålpipe på Soltunet 15, Moss

Ny stålpipe installeres på eiendommen Soltunet 15 i Moss. Pipa består av modulære skorsteinskomponenter med diameter Ø1…

πŸ“ Soltunet 10 Moss
🏗️
Extension Other

Oppføring av markiser på Sandefjordgata 4K

Oppføring av markiser på bygning i Sandefjordgata 4K. Markisene skal monteres på fasaden og vil fungere som solskjermin…

πŸ“ Sandefjordgata 4H Oslo - Oslove
🏗️
NewConstruction Other

Oppføring av naust på Øyren, Gnr 5 Bnr 32

Ny oppføring av et naust på eiendommen Gnr 5 Bnr 32 ved Øyren. Naustet er et uthusbygg beregnet for lagring og båtoppla…

πŸ“ Øyren 10 Bokn
Fotografier av eksisterende gravitasjonsfeste og antenner på et tak, med tekster som forklarer utskiftingen av utstyr.
Unknown Other

Endring av antennesystem på Sundveien 10, Røros

Prosjektet omfatter utskifting av eksisterende antenner og radioenheter for telekommunikasjon på bygget Sundveien 10 i …

πŸ“ Sundveien 10 Røros - Rosse
Fire perspektivbilder (renderinger) av en planlagt bolig sett fra ulike vinkler (vest, sør, øst, nord).
Other Other

Flere byggesaker med tilbygg, bruksendring og nybygg i Tysvær kommune

Prosjektet omfatter flere byggesaker i Tysvær kommune, inkludert oppføring av tilbygg til boliger og driftsbygninger, b…

Tysvær