Fritidsbolig 734 treff

🏡
Extension Fritidsbolig

Tilbygg og bod til hytte i Løvikveien 109

Ny tilbygg og frittstående bod til eksisterende hytte på eiendommen i Løvikveien 109. Prosjektet omfatter utvidelse av …

πŸ“ Løvikveien 109 Vegårshei
Bildet viser en situasjonsplan (tomtekart) med bygningsplassering, stier og vannveier, samt en tekstbeskrivelse av saken.
Extension Fritidsbolig

Tilbygg og bod til fritidsbolig i Løvikveien 109

Ny tilbygg på 45 m² med to soverom, toalett og gang/inngang til eksisterende fritidsbolig. I tillegg oppføres en fritts…

πŸ“ Løvikveien 109 Vegårshei
🏡
Extension Fritidsbolig

Tilbygg og bod til eksisterende hytte i Løvikveien 109

Ny tilbygg og bod bygges som en utvidelse til en eksisterende fritidsbolig i Løvikveien 109. Prosjektet omfatter fysisk…

πŸ“ Løvikveien 109 Vegårshei
🏡
NewConstruction Fritidsbolig

Ny hytte med terrengheving i Lillehammervegen 835, Gjøvik

Ny hytte på ca. 90 m² oppføres på Lillehammervegen 835, Gjøvik, som erstatter en eksisterende hytte på 66 m² som rives …

πŸ“ Lillehammervegen 735 Gjøvik
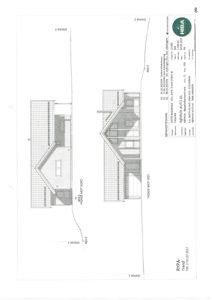
Fasadetegning som viser bygningens utseende fra to ulike vinkler (mot sør og mot vest).
NewConstruction Fritidsbolig

Ny fritidsbolig på Bjørkåker 62, Sirdal

Ny fritidsbolig i to etasjer med saltak og trekledning på Bjørkåker 62, Sirdal. Bygget har et bebygd areal på ca. 100 m…

πŸ“ Bjørkåker 62 Sirdal
Fasadetegning som viser bygningens utseende fra vest og sørøst.
NewConstruction Fritidsbolig

Ny fritidsbolig med hems i Liarbergvegen 79, Bjorli

Ny fritidsbolig på eiendommen Liarbergvegen 79 i Bjorli med totalt bebygd areal på 115,5 m² og samlet BYA inkludert par…

πŸ“ Liarbergvegen 79 Lesja
🏡
Extension Fritidsbolig

Tilbygg til fritidsbolig i Sølevikvegen 52

Ny tilbygg til eksisterende fritidsbolig i Sølevikvegen 52. Prosjektet omfatter en fysisk utvidelse av boligen for å øk…

πŸ“ Sølevikvegen 52 Hemsedal
🏡
Extension Fritidsbolig

Oppføring av badehus på Kviteseidvegen 1807B

Ny frittstående badehus på eiendommen Kviteseidvegen 1807B. Bygget er tilknyttet en fritidsbolig og skal fungere som et…

πŸ“ Kviteseidvegen 1807B Nissedal
Fotografi av et kystlandskap med bratt berg, havlinje og bustader. Bildet illustrerer landskapet og bygningsmiljøet nevnt i teksten.
Extension Fritidsbolig

Tilbygg og terrasse på fritidsbolig i Brennsdalsvegen 437

Ny utvidelse av eksisterende fritidsbolig på Brennsdalsvegen 437 med et tilbygg på 40,5 m² og en terrasseforlengelse på…

πŸ“ Brennsdalsvegen 437 Hyllestad
3D-visualisering (rendering) av en planlagt hytte sett fra to ulike vinkler.
NewConstruction Fritidsbolig

Ny fritidsbolig med tilkomstveg i Greplandsvegen 93, Svanøy

Ny fritidsbolig på totalt 149,7 m² BRA fordelt på hovedplan og hems, plassert i kupert terreng på Greplandsvegen 93, Sv…

πŸ“ Greplandsvegen 93 Kinn
Fasadetegning av en bygning sett fra vest og nord.
NewConstruction Fritidsbolig

Ny fritidsbolig med garasje i Børgefjellsenteret vest

Ny fritidsbolig på totalt 160,4 m² fordelt på to etasjer med saltak og trepanel som fasademateriale. Første etasje inne…

πŸ“ Børgefjellsenteret vest Raarvihke - Røyrvik
Perspektivtegning (rendering) av en planlagt bygning i et terreng. Tegningen viser fasade, takform og omgivelser.
Extension Fritidsbolig

Tilbygg med garasje på fritidsbolig, Tveitasjøen 4

Ny tilbygg på 87 m² BYA med garasje, bad, gang og soverom til eksisterende fritidsbolig på Tveitasjøen 4. Tilbygget er …

πŸ“ Tveitasjøen 4 Suldal
🏡
NewConstruction Fritidsbolig

Oppføring av ny fritidsbolig

Saken gjelder søknad om tillatelse til å oppføre en ny fritidsbolig, inkludert vedtak om tillatelse, gebyrklage og søkn…

πŸ“ Haugstranda 38B Kragerø
🏡
NewConstruction Fritidsbolig

Oppføring av fritidsbolig på Leirpollen 1

Ny fritidsbolig skal oppføres på eiendommen Leirpollen 1, Gnr 32, Bnr 117. Prosjektet omfatter bygging av en frittståen…

πŸ“ Leirpollen 1 Austevoll
Fotografier av vinduer og en hytte/bod i forbindelse med en antikvarisk tilstandsvurdering.
NewConstruction Fritidsbolig

Riving og ny fritidsbolig med anneks i Langøyveien 186, Fredrikstad

Prosjektet omfatter riving av en eksisterende fritidsbolig av typen Kråkerøyhytte fra 1924, samt oppføring av en ny fri…

πŸ“ Langøyveien 186 Fredrikstad
🏡
Demolition Fritidsbolig

Riving og ny hytte i Sildnesveien 99, Risør

Prosjektet omfatter riving av eksisterende hytte og oppføring av en ny hytte på eiendommen i Sildnesveien 99, Risør kom…

πŸ“ Sildnesveien 99 Risør
🏡
NewConstruction Fritidsbolig

Ny fritidsbolig på Vågsdalsfjorden 162, Froland

Ny fritidsbolig oppføres på eiendommen Vågsdalsfjorden 162 i Froland kommune. Prosjektet omfatter bygging av en frittli…

πŸ“ Vågsdalsfjorden 162 Froland
Fotografier av eiendom med tekster under som beskriver tilstand (f.eks. 'Innkjørsvei ved eldre låve', 'Sjøfront ved rorbuer – ikke ferdigstilt', 'Uferdig uteområde', 'Store – til dels farlege steinhaugar').
NewConstruction Fritidsbolig

Oppføring av 14 fritidsboliger i Hellandshamna, Ålesund

Prosjektet omfatter oppføring av 14 fritidsboliger i Hellandshamna, Ålesund kommune, på eiendommen gnr 384, bnr 177. By…

πŸ“ Hellandshamna 58A Haram
🏡
Extension Fritidsbolig

Oppføring av anneks og tilbygg til fritidsbolig i Hydalsvegen 142

Ny oppføring av anneks og tilbygg til eksisterende fritidsbolig i Hydalsvegen 142. Prosjektet omfatter utvidelse av bol…

πŸ“ Hydalsvegen 142 Hemsedal
🏡
NewConstruction Fritidsbolig

Ny fritidsbolig med bod på Veresvegen 1886, Vuku

Ny fritidsbolig i én etasje med hems oppføres på Veresvegen 1886 i Vuku. Bygget har saltak med gesims- og mønehøyde på …

πŸ“ Veresvegen 1880 Verdal
🏡
NewConstruction Fritidsbolig

Ny fritidsbolig i Nedre Hammarveien 23

Ny fritidsbolig oppført på eiendommen Nedre Hammarveien 23. Bygget er et frittstående fritidsbygg som har fått midlerti…

πŸ“ Nedre Hammarveien 23 Krødsherad
🏡
NewConstruction Fritidsbolig

Ny fritidsbolig med anneks i Bogvika 10

Ny fritidsbolig med tilhørende anneks oppføres på eiendommen i Bogvika 10. Prosjektet omfatter hovedhytte og et mindre …

πŸ“ Bogvika 10 Hurdal
3D-visualisering av en hytte på et skrått terreng med gitterlinjer i bakgrunnen.
Extension Fritidsbolig

Tilbygg til fritidsbolig på Lilletorgnes 21

Ny tilbygg til fritidsbolig på Lilletorgnes 21 med en grunnflate på ca. 73 m², som øker byggets totale areal til 97,7 m…

πŸ“ Lilletorgnes 21 Brønnøy
Fasadetegning som viser bygningens utseende før og etter en tilbygg-tiltak.
VerticalExtension Fritidsbolig

Påbygg med takopplett og fasadeendring på fritidsbolig, Hellevikvegen 50

Påbygg med takopplett og løfting av taket mot øst på en fritidsbolig i Hellevikvegen 50. Bygget har et bebodd areal på …

πŸ“ Hellevikvegen 50 Karmøy