Fritidsbolig 734 treff

Oversiktskart (situasjonsplan) som viser tomtens beliggenhet, grenser, høydeforskjeller og plassering av bygninger.
Extension Fritidsbolig

Tilbygg til fritidsbolig i Sundførvågen 27, Tysvær

Ny tilbygg på ca. 32 m² til eksisterende fritidsbolig på 58 m², som gir en total BYA på 90 m². Tilbygget er plassert ba…

πŸ“ Sundførvågen 27 Tysvær
🏡
NewConstruction Fritidsbolig

Ny hytte på Håkonsholmen, Gnr 38 Bnr 2

Ny fritidsbolig på 83 m² oppført på eiendommen Håkonsholmen, Gnr 38 Bnr 2. Hytta er bygget i henhold til godkjent bygge…

πŸ“ Kroksetvegen 86 Vestnes
🏡
Extension Fritidsbolig

Tilbygg til fritidsbolig i Evardalen

Tilbygg til eksisterende fritidsbolig i Evardalen. Prosjektet omfatter en fysisk utvidelse av hytten, som øker boligens…

πŸ“ Evardalen, 63/52 Valle
Fotografi av en bygning (ett hus) sett fra siden, med omgivende terreng og himmel.
Extension Fritidsbolig

Tilbygg og endring av hytte på Hvalane 56, Hvaler

Ny utvidelse og ombygging av fritidsbolig på Hvalane 56, Hvaler. Eksisterende hytte på 82 m² BRA får et tilbygg på 8 m²…

πŸ“ Hvalane 56 Hvaler
To 3D-visualiseringer (renderinger) av et planlagt hus, vist fra vest og sør.
Extension Fritidsbolig

Tilbygg med pipe og ildsted på fritidsbolig i Indre Foldhaugen 66, Aure

Tilbygg på fritidsbolig med montering av pipe og Scan 67 1600 vedovn, utført med Tolmer Vision ventilert stålskorstein.…

πŸ“ Nils Bakkes vei 1 Kristiansund
🏡
NewConstruction Fritidsbolig

Oppføring av fritidsbolig

Byggesøknad for oppføring av en ny fritidsbolig på eiendommen 714/17 i Agdenes.

Orkland
🏡
NewConstruction Fritidsbolig

Ny fritidsbolig i Viamyrvegen 23, Bortelid

Ny fritidsbolig oppført på eiendommen i Viamyrvegen 23, Bortelid. Prosjektet omfatter oppføring av en frittliggende fri…

πŸ“ Viamyrvegen 23 Åseral
🏡
Extension Fritidsbolig

Oppføring av tilbygg på fritidsbolig

Tillatelse til oppføring av tilbygg på fritidsbolig i Breivikveien 47.

πŸ“ Breivikveien 47 Orkland
Fasadetegning som viser oppriss av bygningen sett fra nord og vest, inkludert mål og terrassering.
ChangeOfUse Fritidsbolig

Bruksendring og fasadeendring på fritidsbolig i Lerdalsveien 37, Hvaler

Eksisterende fritidsbolig på 96,8 m² i Lerdalsveien 37 gjennomgår bruksendring fra tilleggsdel til hoveddel ved innbygg…

πŸ“ Lerdalsveien 37 Hvaler
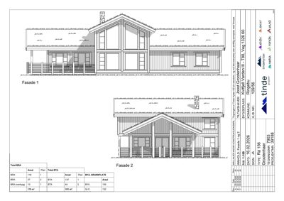
Fasadetegning som viser fronten på en bygning med detaljer om vinduer, tak og fasadematerialer.
NewConstruction Fritidsbolig

Ny fritidsbolig med terrasse på Veg 1326 60, Fåvang

Ny fritidsbolig på ett plan med oppstue-del, oppført i bindingsverk og kledd med trepanel. Bygget har saltak med 25 gra…

πŸ“ Veg 1326 17 Ringebu
Fotografi av en hytte som er inkludert i en e-post om byggesak.
NewConstruction Fritidsbolig

Ny fritidsbolig med garasje i Friarfjordveien 44, Lebesby

Ny frittstående fritidsbolig på 53,2 m² BRA og 71 m² BYA oppføres på eiendommen Friarfjordveien 44 i Lebesby kommune. B…

πŸ“ Friarfjordveien 44 Lebesby
Fasadetegning som viser front- og sideopprikk av en hytte (Aursunden Hellerud).
NewConstruction Fritidsbolig

Ny laftet visnings- og utleiehytte i Siksjølia 174

Ny laftet tømmerhytte på 130 m² BRA med hems, tradisjonelt saltak med torvtekking og takvinkler på 22 og 24 grader. Byg…

πŸ“ Holla, Siksjølia 172 Os
🏡
Extension Fritidsbolig

Riving og ny stølsbu i Flævassvegen 1802

Prosjektet omfatter riving av en eksisterende stølsbu og oppføring av en ny stølsbu på samme eiendom. I tillegg inngår …

πŸ“ Øvre-Ålsvegen 205 Ål
En linjetegning (rendering) som viser fasaden på en planlagt bygning sett fra en vinkel.
Extension Fritidsbolig

Tilbygg til anneks og riving av uthus på Bernhus 7, Ørje

Ny tilbygg på ca. 15 m² til eksisterende anneks på fritidsboligeiendommen Bernhus 7, Ørje, med riving av et forfallent …

πŸ“ Bernhus 1 Marker
3D-visualisering (perspektivtegning) av en planlagt hytte sett fra to ulike vinkler.
ChangeOfUse Fritidsbolig

Bruksendring og fasadeendring på fritidsbolig, Varpet 33

Eksisterende fritidsbolig på ca. 53 m² isolert bruksareal fra 1984 får innbygget overdekket veranda på ca. 13,5 m², som…

πŸ“ Varpet 33 Bamble
En samling av flere fotografier som viser et kystlandskap med klipper, vann og en båt.
NewConstruction Fritidsbolig

Ny fritidsbolig og driftsbygg på Såsteinsundet 130, Bamble

Ny fritidsbolig på 99 m² BRA med saltak og tradisjonelt arkitektonisk formspråk, inkludert hems, oppføres som erstatnin…

πŸ“ Såsteinsundet 130 Bamble
Fasadetegning for et hus i Jernheiaugen 30, Oslo, som viser utsiden sett fra nord og vest med mål.
Extension Fritidsbolig

Tilbygg på hytte i Jarenhaugen 39, Modum

Ny tilbygg på 42,2 m² til eksisterende hytte på Jarenhaugen 39 i Modum. Tilbygget er i én etasje med saltak og trekledn…

πŸ“ Jarenhaugen 39 Modum
🏡
NewConstruction Fritidsbolig

Ny hytte i Sprenåsgrenda 19

Ny frittliggende hytte oppføres på eiendommen Sprenåsgrenda 19. Hytten er et fritidsbygg som skal etableres som nybygg …

πŸ“ Sprenåsgrenda 19 Flå
🏡
NewConstruction Fritidsbolig

Ny hytte i Sprenåsvegen 136

Ny frittliggende hytte oppføres på eiendommen Sprenåsvegen 136, Gnr 10 Bnr 352. Hytten skal fungere som fritidsbolig og…

πŸ“ Turufjellvegen 424A Flå
🏡
NewConstruction Fritidsbolig

Ny hytte i Sprenåsvegen 136

Ny frittstående hytte planlegges oppført på eiendommen Sprenåsvegen 136. Hytten skal fungere som fritidsbolig og bygges…

πŸ“ Turufjellvegen 424A Flå
🏡
FacadeChange Fritidsbolig

Reparasjon, fasadeendring og mindre tilbygg på hytte i Gåsvatn 176

Eksisterende hytte fra tidlig 1970-tall med tilhørende uthus/utedo gjennomgår reparasjon og vedlikehold for å utbedre s…

πŸ“ Tverrbrennstua 1 Bodø
Bildet viser to fotografier av en hytte; øverst et utsidessyn og nederst et innvendig syn på entré.
NewConstruction Fritidsbolig

Fritidsbolig med uthus og naust på Gamstøbakkan 12, Bodø

Fritidsboligen er en Saltdalshytte oppført i 2005 med et bruksareal på 69 m² fordelt på ett plan med hems. Bygningen ha…

πŸ“ Gamstøbakkan 12 Bodø
🏡
NewConstruction Fritidsbolig

Ny fritidsbolig i Bommyrveien 16, Risør

Ny fritidsbolig skal oppføres på eiendommen i Bommyrveien 16, Risør kommune. Prosjektet omfatter et frittstående bygg b…

πŸ“ Bommyrveien 16 Risør
🏡
NewConstruction Fritidsbolig

Gjenoppbygging av hytte i Borøyveien 287, Tvedestrand

Ny hytte skal gjenoppføres på eiendommen i Borøyveien 287 etter at den tidligere hytten brant ned. Prosjektet omfatter …

πŸ“ Borøyveien 287 Tvedestrand