Fritidsbolig 734 treff

3D-visualisering av en liten hytte sett fra et vinklet perspektiv.
NewConstruction Fritidsbolig

Gjenoppføring og tilbygg av fritidsbolig i Bastoveien 20, Hvaler

Ny fritidsbolig på ca. 51,2 m² BRA med tilbygg og terrasse oppføres på Bastoveien 20 i Hvaler kommune. Den nye hytten e…

πŸ“ Bastoveien 20 Hvaler
🏡
NewConstruction Fritidsbolig

Ny fritidsbolig for utleie i Fagervikveien 172, Herøy

Ny fritidsbolig i to etasjer med totalt bruksareal på 125 m² oppføres på eiendommen i Fagervikveien 172, Herøy. Bygget …

πŸ“ Fagervikveien 172 Herøy (Nordland)
🏡
NewConstruction Fritidsbolig

Ny fritidsbolig på Gnr 5, Bnr 16

Ny fritidsbolig skal oppføres på eiendommen Gnr 5, Bnr 16. Prosjektet omfatter et frittstående bygg beregnet for fritid…

πŸ“ Krikmyrvegen 16 Flesberg
🏡
Extension Fritidsbolig

Tilbygg på hytte ved Ustaosvegen 567, Ustaoset

Ny tilbygg på 16,2 m² til eksisterende hytte på 66,5 m² ved Ustaosvegen 567, Ustaoset. Tilbygget skal inneholde en skib…

πŸ“ Ustaosvegen 567 Hol
Fotografi av en gassmåler og tilhørende rørleggerutstyr (ventiler, kobber- og plastrør) montert på en vegg.
NewConstruction Fritidsbolig

Ny fritidsbolig med tekniske installasjoner i Rytterveien 121

Ny fritidsbolig oppført på eiendommen Rytterveien 121, Drangedal, med komplett byggteknisk installasjon inkludert funda…

πŸ“ Rytterveien 121 Drangedal
Fotografi av en ferdig eller nesten ferdig bygning (hus) sett fra siden, med utsikt over vann og skog i bakgrunnen.
Extension Fritidsbolig

Tilbygg og flytting av fritidsbolig i Botenkollveien 4, Røros

Prosjektet omfatter flytting av eksisterende fritidsbolig på 48 m² og oppføring av et tilbygg på 19 m², totalt 67 m² BR…

πŸ“ Botnkollveien 4 Røros - Rosse
Fasadetegning (opprikk) av bygningen sett fra foran, med nummererte punkter som viser detaljer.
NewConstruction Fritidsbolig

Ny fritidsbolig med parkering og avkjørsel på Skoglia 2

Ny fritidsbolig oppført på eiendommen Skoglia 2 med et samlet bebygd areal på 86 m², supplert med parkeringsareal på 36…

πŸ“ Skoglia 2 Os
🏡
Extension Fritidsbolig

Tilbygg på fritidsbolig i Nyestølvegen 195, Ustaoset

Ny tilbygg på 41 m² BYA til eksisterende fritidsbolig på ca. 105 m², med samlet bebygd areal på ca. 150 m² etter utvide…

πŸ“ Nyestølvegen 195 Hol
Et kart (Plankart) som viser eiendommen gnr./bnr. 142/9 i Tysvær kommune, inkludert bygningens plassering og omgivelsene.
Extension Fritidsbolig

Tilbygg med bad og bod på fritidsbolig, Toftøysundvegen 221

Ny tilbygg på 16,5 m² BYA til eksisterende fritidsbolig på Toftøysundvegen 221, bestående av inngangsparti, bad og bod.…

πŸ“ Toftøysundvegen 221 Tysvær
🏡
Extension Fritidsbolig

Tilbygg på 38 m² til fritidsbolig i Søterotvegen 3, Haugastøl

Ny tilbygg på 38 m² BYA til eksisterende fritidsbolig på 110 m² BYA i Søterotvegen 3, Haugastøl. Tilbygget inneholder t…

πŸ“ Søterotvegen 3 Hol
3D-visualisering av en villa med tilhørende utemøbler og lekeplass.
Extension Fritidsbolig

Ny fritidsbolig med adkomstveg i Hamraveien 85, Rørvik

Ny fritidsbolig på ca. 245 m² BRA i én etasje med saltak og grå/brun stående trekledning, plassert ca. 110 meter fra sj…

πŸ“ Hamraveien 81 Nærøysund
3D-visualisering (rendering) av en utendørs terrasse med bord, stoler og en steinmur.
ChangeOfUse Fritidsbolig

Bruksendring og bryggeutvidelse ved Nedstrandsvegen 136/15

Bruksendring av et eldre naust/næringsbygg fra 1950-tallet til fritidsbolig, med ombygging av 2. etasje til oppholdsrom…

πŸ“ Nedstrandsvegen 101 Tysvær
3D-visualisering (perspektiv) av eksisterende hus og tomt med terrenglinjer.
Extension Fritidsbolig

Tilbygg, nytt anneks og renovering av fritidsbolig i Åmlandsveien 145

Prosjektet omfatter riving av tre eksisterende boder og et enkelt anneks på eiendommen Åmlandsveien 145, samt oppføring…

πŸ“ Åmlandsveien 145 Lillesand
🏡
NewConstruction Fritidsbolig

Ny fritidsbolig med uthus på Fånesvegen 524, Frosta

Ny fritidsbolig på 110 m² BRA oppføres med saltak med takvinkel på 33 grader, gesims- og mønehøyde på henholdsvis 2,996…

πŸ“ Fåneshamna 10 Frosta
3D-visualisering (3D-scan) av et stovas interiør med isometrisk visning av romfordeling og konstruksjon.
Demolition Fritidsbolig

Riving av gammel bygning og ny hagestue i Dalavegen 25, Årdal

Prosjektet omfatter riving av et gammelt SEFRAK-registrert våningshus kalt Gamlestova, med et areal på ca. 34,6 m², som…

πŸ“ Dalavegen 25 Årdal
🏡
NewConstruction Fritidsbolig

Ny fritidsbolig ved Vågsdalsfjorden 123, Froland

Ny fritidsbolig oppført på eiendommen Vågsdalsfjorden 123 i Froland kommune. Bygget er et frittstående fritidsbygg som …

πŸ“ Vågsdalsfjorden 123 Froland
3D-visualisering av en moderne bolig med uteplass og møbler, sett fra en vinkel som viser fasade og terreng.
NewConstruction Fritidsbolig

Ny fritidsbolig med vei og minirenseanlegg i Nedstrandsvegen 221

Ny fritidsbolig over to plan med et bebygd areal på 89,8 m² og totalt bruksareal på 124,4 m² oppføres i Nedstrandsvegen…

πŸ“ Nedstrandsvegen 221 Tysvær
🏡
NewConstruction Fritidsbolig

Oppføring av fritidsbolig og anneks

Saken gjelder søknad om tillatelse og ferdigattest for oppføring av en ny fritidsbolig og et anneks på eiendommen.

πŸ“ Tapptjønnvegen 31 Sør-Fron
🏡
NewConstruction Fritidsbolig

Oppføring av dagsturhytte og sanitæranlegg i Nissedal

Ny dagsturhytte og tilhørende sanitæranlegg bygges i Nissedal kommune. Prosjektet omfatter oppføring av en fritidsrelat…

Nissedal
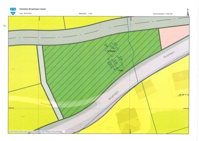
Situasjonsplan som viser tomtens beliggenhet i forhold til veier (Bergshagen), nabotomter og planlagt plassering av grilling og trafikk.
NewConstruction Fritidsbolig

Oppføring av grillhytte på lekeplass i Bergshagen, Røldal

Ny frittstående grillhytte skal oppføres på lekeplassen i Bergshagen, Røldal. Grillhytta er planlagt som et åpent bygg …

πŸ“ Bergshagen 18 Ullensvang
Luftfoto av et fjellområde med flere hytter og stier, med en hvit pil som peker på en spesifikk hytte.
NewConstruction Fritidsbolig

Ny mikrohytte på Fjellvegen, Haugastøl

Ny mikrohytte på 29 m² BYA med tilhørende utebod på 9 m² BYA oppføres på en ubygget fritidseiendom i Fjellvegen, Haugas…

πŸ“ Fjellvegen 100 Hol
🏡
NewConstruction Fritidsbolig

Riving og ny fritidsbolig på Hønstadvegen 70

Eksisterende hytte på eiendommen rives for å gi plass til en ny fritidsbolig. Den nye bygningen vil være en frittståend…

πŸ“ Hønstadvegen 70 Malvik
Fasadetegning som viser bygningens utsyn fra alle fire sider (Nord, Sør, Øst, Vest) med vindus- og dørplassering.
ChangeOfUse Fritidsbolig

Bruksendring og tilbygg til anneks på Mørkeset 43

Bruksendring av eksisterende bod til anneks med mulighet for overnatting, samt oppføring av et tilbygg på totalt 25,7 m…

πŸ“ Mørkeset 43 Ålesund
🏡
VerticalExtension Fritidsbolig

Påbygg og fasadeendring på fritidsbolig, Haslerudodden 55

Påbygg på ca. 56 m² til eksisterende fritidsbolig på Haslerudodden 55 med nye rom som soverom, bad, loftstue og bod. By…

πŸ“ Haslerudodden 55 Krødsherad