Leilighetsbygg 511 treff

🏢
Rehabilitation Leilighetsbygg

Endring av bærekonstruksjoner i leilighetsbygg, Jens Bjelkes Gate 37 A

Endring av bærekonstruksjoner i et eksisterende leilighetsbygg på Jens Bjelkes Gate 37 A. Prosjektet innebærer modifika…

πŸ“ Jens Bjelkes gate 37A Oslo - Oslove
🏢
ChangeOfUse Leilighetsbygg

Bruksendring av kjeller til bolig i Hellerudsvingen 20

Kjellerarealet i leilighetsbygget på Hellerudsvingen 20 ombygges til boligformål. Prosjektet inkluderer fysisk åpning i…

πŸ“ Hellerudsvingen 1 Oslo - Oslove
🏢
FacadeChange Leilighetsbygg

Fasadeendring og påbygg på boligbygg i Gislesvingen 5A

Fasadeendring og påbygg på eksisterende boligbygg i Gislesvingen 5A. Prosjektet innebærer endringer i byggets ytre fasa…

πŸ“ Gislesvingen 5A Ullensaker
🏢
Extension Leilighetsbygg

Tilbygg med 2. etasje i eksisterende enebolig

Søknad om ett-trinns byggesak for oppføring av nytt 2. etasje i enebolig på Snøheimvegen 1474, inkludert dispensasjon f…

πŸ“ Snøheimvegen 1474 Dovre
🏢
ChangeOfUse Leilighetsbygg

Oppdeling til tre boenheter i Grønlihøgda 24

Eksisterende bolig i Grønlihøgda 24 endres til å inneholde tre separate boenheter. Prosjektet innebærer fysisk tilpasni…

πŸ“ Grønlihøgda 22 Namsos - Nåavmesjenjaelmie
🏢
ChangeOfUse Leilighetsbygg

Bruksendring av loft til bolig i Fossveien 9

Bruksendring av loft i eksisterende leilighetsbygg til boligformål. Prosjektet innebærer ombygging av loftsarealet for …

πŸ“ Fossveien 9 Oslo - Oslove
Fotografi av eksisterende bygning (Torvet 1A) i Arendal, tatt som del av en brannkonsept-rapport.
ChangeOfUse Leilighetsbygg

Bruksendring og opprettelse av to boenheter i Torvet 1A, Arendal

Bruksendring i eksisterende leilighetsbygg på Torvet 1A i Arendal, hvor 2. etasje ombygges til to separate boenheter me…

πŸ“ Torvet 1A Arendal
🏢
ChangeOfUse Leilighetsbygg

Bruksendring og fasadeendring i leilighetsbygg

Saken gjelder rammesøknad for bruksendring og fasadeendring i enebolig eller leilighetsbygg i Prinsens gate 2. Prosjekt…

πŸ“ Prinsens gate 2 Moss
Fasadetegning som viser bygningens utseende sett fra nord og øst.
Extension Leilighetsbygg

Endring med heissjakt og fasade på leilighetsbygg, Bjørnhollo 21, Bodø

Prosjektet omfatter endring av rammetillatelse for tre 3-mannsboliger og tilhørende garasjer på Bjørnhollo 21 i Bodø. E…

πŸ“ Bjørnhollo 21A Bodø
Fasadetegning som viser bygningens utseende fra fire ulike sider (Sør, Øst, Nord, Vest).
Rehabilitation Leilighetsbygg

Rehabilitering av leilighetsbygg etter brann på Øvre Hamna 28A, Finnsnes

Rehabilitering av et eksisterende leilighetsbygg med fire leiligheter på Øvre Hamna 28A-D i Finnsnes etter brannskade. …

πŸ“ Øvre Hamna 28A Senja
🏢
NewConstruction Leilighetsbygg

Nybygg med 4 leiligheter i Kyrkleiva 8, Åmli

Nybygg bestående av fire separate leiligheter på eiendommen Kyrkleiva 8 i Åmli kommune. Prosjektet omfatter oppføring a…

πŸ“ Kyrkjekleiva 8 Åmli
🏢
NewConstruction Leilighetsbygg

Oppføring av boligblokker og carportanlegg i Gullknappveien 159

Prosjektet omfatter oppføring av to boligblokker med seks boenheter hver, en boligblokk med åtte boenheter, samt et til…

πŸ“ Hurveheia 39 Froland
🏢
ChangeOfUse Leilighetsbygg

Ombygging til 4 leiligheter på Kyrkleiva 8, Åmli

Eksisterende bygning fra 1960-tallet, tidligere brukt som bedehus og skole, ombygges til en firemannsbolig med 4 separa…

πŸ“ Kyrkjekleiva 8 Åmli
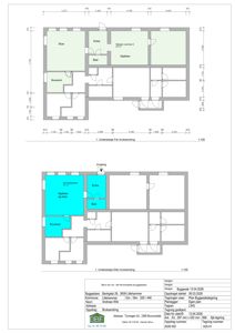
Bildet viser to etasjeplaner (før og etter bruksendring) for en bolig, med romnavn og mål.
ChangeOfUse Leilighetsbygg

Bruksendring til to bruksenheter i Bankgata 29B, Lillehammer

Oppdeling av eksisterende leilighet i Bankgata 29B i to separate bruksenheter. Den nye bruksenheten får etablert eget k…

πŸ“ Bankgata 29A Lillehammer
🏢
Extension Leilighetsbygg

Sprinkling av kjeller og 4. etasje i leilighetsbygg, Storgata 93

Sprinklingsanlegg installeres i plan kjeller og 4. etasje i et eksisterende leilighetsbygg i Storgata 93. Tiltaket omfa…

πŸ“ Storgata 93 Lillehammer
🏢
ChangeOfUse Leilighetsbygg

Bruksendring og tilbygg på leilighetsbygg i Saturnveien 23B

Bruksendring av kjellerareal til boligformål kombinert med oppføring av nytt tilbygg på eksisterende leilighetsbygg i S…

πŸ“ Saturnveien 23B Oslo - Oslove
Fasadetegning som viser bygningens utseende sett fra øst, inkludert vinduer, balkonger, trapp og takform.
ChangeOfUse Leilighetsbygg

Bruksendring og etablering av tre boenheter i Knapstadveien 2A

Bruksendring av underetasjen i et eksisterende leilighetsbygg til tre separate boenheter med tilhørende soverom, bad, k…

πŸ“ Knapstadveien 2A Indre Østfold
🏢
FacadeChange Leilighetsbygg

Endring av hovedinngangsdør på leilighetsbygg, Løkkaskogen 8 D

Endring av fasaden på et leilighetsbygg ved å flytte hovedinngangsdøren til en ny plassering. Prosjektet innebærer fysi…

πŸ“ Løkkaskogen 8D Oslo - Oslove
🏢
ChangeOfUse Leilighetsbygg

Bruksendring av kjeller i leilighetsbygg, Refstadveien 28

Bruksendring av kjellerareal i et leilighetsbygg fra tilleggsdel til hoveddel. Dette innebærer at kjelleren endres til …

πŸ“ Refstadveien 28 Oslo - Oslove
🏢
FacadeChange Leilighetsbygg

Fasadeendring med vindusutskifting og etterisolering i Reinslettveien 92, Bodø

Fasadeendring på Saltvern Skole, fløy AB og F, som inkluderer utskifting av vinduer, etterisolering av yttervegger med …

πŸ“ Reinslettveien 92 Bodø
🏢
Rehabilitation Leilighetsbygg

Riving av bærevegger og dørflytting i Osterhaus' gate 9 B

Prosjektet omfatter riving av bærevegger og flytting av dør i 2. og 3. etasje i et eksisterende leilighetsbygg. Arbeide…

πŸ“ Osterhaus' gate 9A Oslo - Oslove
Situasjonsplan som viser tomtens plassering i forhold til nabotomter og bygninger, med angitte avstander til grenser.
Extension Leilighetsbygg

Tilbygg og balkonger på leilighetsbygg i Strandgata 11, Florø

Prosjektet omfatter tilbygg og fasadeendring på et eksisterende leilighetsbygg i Strandgata 11, Florø. Det bygges to ba…

πŸ“ Strandgata 11 Kinn
Etasjeplan for 2. etasje som viser romfordeling og bruksendring til leiligheter.
ChangeOfUse Leilighetsbygg

Bruksendring av flerboligbygg i Telegata 3, Notodden

Bruksendring av 2. etasje i flerboligbygget i Telegata 3 fra kontor til boligformål med to leiligheter, samt bruksendri…

πŸ“ Telegata 3 Notodden
3D-modellering (rendering) av bygningens volum og konstruksjoner, sannsynligvis for å illustrere energitilstand eller bygningsdeling.
NewConstruction Leilighetsbygg

Gjenoppføring av leilighetsbygg i Bruveien 1, Bodø

Prosjektet omfatter gjenoppføring og rehabilitering av leilighetsbygget Bruveien 1 i Bodø etter brannskader. Totalt 14 …

πŸ“ Bruveien 1 Bodø