Other 1742 treff

En anmelde- og tegningspakke som viser etasjeplan (PLAN 1. ETG), fasader (MOT ØST og SØR) og et snitt (SNITT A-A) for en tilbygg.
Extension Other

Tilbygg med balkongforlengelse i Stadionveien 5, Andenes

Ny forlengelse av eksisterende balkong mot sør-øst på bolig i Stadionveien 5, utformet som et tilbygg i samme stil som …

πŸ“ Stadionveien 5 Andøy
Tegning som viser et tverrsnitt (snitt) gjennom bygningen og terrenget, med oppgitt høyder og grenser.
Extension Other

Natursteinsmur og flytting av lyktestolpe ved Skeidsbakkane 65, Ulsteinvik

Ny natursteinsmur i forkant av en enebolig under oppføring på Skeidsbakkane 65, Ulsteinvik, med formål å bedre utnyttin…

Vestnes
Et fotografi som viser en 3D-visualisering av et nytt byutviklingsprosjekt i Nygårdsgaten 6, inkludert nye bygninger, gatelys og trafikk.
ChangeOfUse Other

Bruksendring til bolig med fasadeendring i Nygårdsgaten 6, Bergen

Bruksendring av eksisterende kontorbygg i Nygårdsgaten 6, Bergen, til boligformål med totalt 19 nye boenheter fordelt p…

πŸ“ Nygårdsgaten 6 Bergen
Oversiktsbilde (flyfoto) av eiendom ved Fanafjelsvegen 356, som viser huset, tomme og omgivelser.
NewConstruction Other

Oppføring av Biovac minirenseanlegg i Fanafjellsvegen 356, Bergen

Ny installasjon av et Biovac Dynamic 1 minirenseanlegg for behandling av sanitært avløpsvann på eiendommen Fanafjellsve…

πŸ“ Fanafjellsvegen 356 Bergen
3D-visualisering av en planlagt bolig med tre ulike vinkler.
Extension Other

Tilbygg, fasadeendringer og nybygg i Fredrikstad kommune

Prosjektet omfatter flere byggeprosjekter i Fredrikstad kommune, inkludert tilbygg, fasadeendringer, nybygg av boliger …

Fredrikstad
Fotografi av en eksisterende steinmur med overlagte tegninger som illustrerer planlagt oppføring av tørrmur og forankring med betongmur.
Other Other

Rehabilitering av utrast støttemur i Nye Sandviksveien 17A, Bergen

Prosjektet omfatter gjenoppbygging av en delvis utrast tørrmur/støttemur ved eiendommen Nye Sandviksveien 17A i Bergen.…

πŸ“ Nye Sandviksveien 17A Bergen
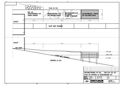
Fasadetegning som viser oppriss av KAI med detaljer om materialer (betong, murstein, stein) og dimensjoner.
Other Other

Rehabilitering av betongkai og trekai i Såtevika, Bergen

Rehabilitering av eksisterende betongkai, trekai og skrått betongdekke med båtopptrekk og skinner i Såtevika, Bergen ko…

πŸ“ Såtevika Bergen
Fotografi av en utgravd grøft ved en bygning med grønne markeringer og tekstbeskrivelse om fundamentering.
Unknown Other

Reparasjon og refundamentering av Salhus kirke, Vikavegen 14

Prosjektet omfatter reparasjon og delvis refundamentering av Salhus kirke, en teglbygning fra 1924 med gråsteinsfundame…

πŸ“ Vikavegen 14 Bergen
Fotografi av en bygning (Øvregaten 14) tatt fra Google Maps, inkludert tekstbeskrivelse og arkitektfirmaets logo.
ChangeOfUse Other

Bruksendring til restaurant i Øvregaten 14, Bergen

Bruksendring av kjeller og deler av 1. etasje i en bygård fra 1910 til restaurantvirksomhet. Prosjektet omfatter innven…

πŸ“ Øvregaten 14 Bergen
Flyfoto av eiendom med overlagte tegninger for vannledninger og eiendomsgrenser
NewConstruction Other

Ny vannpost med tilførselsledning på Nygårdstangen, Bergen

Ny vannpost for fylling av tankbiler til vei- og tunnelvedlikehold etableres under viadukten til E39 ved Nygårdstangen …

Bergen
Luftfoto av et ladested med flere lastebiler parkert, med en bygning i forgrunnen.
NewConstruction Other

Oppføring av ladestasjoner for lastebil i Espehaugen, Bergen

Ny ladestasjon for lastebiler på en ubebygd næringstomt på 4552 m² i Espehaugen næringsområde i Bergen. Anlegget omfatt…

Bergen
Fotografi av en bygning (Porche Center Bergen) med en stor 'MECA'-skilt i forgrunnen.
FacadeChange Other

Frittstående virksomhetsskilt på Kokstaddalen 5, Bergen

Ny frittstående ubelyst plateskilt med MECA-logo montert på stålrør Ø60 mm, plassert i parkeringsområdet ved Kokstaddal…

πŸ“ Kokstaddalen 5 Bergen
Situasjonsplan som viser eiendomsgrenser, sikker grenser, eiendomstilkister og bygningsplassering med mål.
Other Other

Etablering av kjørevei og støttemurer på Tømmervågen 3, Bergen

Ny kjørevei etableres ned til eksisterende tomannsbolig på Tømmervågen 3, som i dag mangler kjørevei og parkeringsplass…

πŸ“ Tømmervågen 3 Bergen
3D-visualisering av en restaurantbygning med terrasse og pergola, sett fra utsiden mot havet.
Other Other

Midlertidig pergola og plantekasser på Fløyfjellet 2, Bergen

Ny midlertidig pergola på ca. 4 x 7 meter og 2,7 meters høyde plassert på eksisterende terrasse over avfalls- og lagerb…

πŸ“ Fløyfjellet 2 Bergen
Detaljtegning som viser snitt gjennom en forankringsmur med kulvert, inkludert armering, isolasjon og konstruksjonsdetaljer.
Other Other

Omlegging av VA-ledninger i Morvikveien 56, Bergen

Omlegging og flytting av eksisterende private spillvannsledninger på eiendommen Morvikveien 56 i Bergen som følge av ko…

πŸ“ Morvikveien 56 Bergen
Et fotografi av en side fra en rapport som viser en illustrasjonsplan (situasjonsplan) for Fysak på Melkeplassen.
NewConstruction Other

Oppføring av støyskjerm ved Fysak Melkeplassen, Øvre Fyllingsveien 35

Ny støyskjerm på ca. 25 meter lengde og 2,5 meter høyde oppføres i nordenden av gårdsplassen ved Fysak Melkeplassen i Ø…

πŸ“ Øvre Fyllingsveien 33 Bergen
Situasjonsplan som viser tomt, bygninger, veier og vannveier med tilhørende symboler og legender.
NewConstruction Other

Etablering av Biovac renseanlegg i Titlestadvegen 234, Bergen

Ny installasjon av et biologisk-kjemisk minirenseanlegg av typen Biovac på eiendommen Titlestadvegen 234, dimensjonert …

πŸ“ Titlestadvegen 234 Bergen
Fasadetegning som viser bygningens utseende sett fra nord og sør, inkludert tak, vegger og terrengforhold.
NewConstruction Other

Nyoppført naust med kai på Gnr 41 Bnr 439, Bergen

Nyoppført naust i tre med flatt teglbelagt tak på én etasje, plassert på eiendommen Gnr 41 Bnr 439 i Paradis, Bergen. B…

Bergen
En illustrasjon (rendering) av en stålkonstruksjon (hall) med angitte mål og dimensjoner.
NewConstruction Other

Flere byggeprosjekter i Bodø kommune, bl.a. Nedre Bjørkåsen og Parkveien 61

Prosjektet omfatter flere byggeprosjekter i Bodø kommune med totalt ca. 4000 m² bygningsareal. Det inkluderer oppføring…

Bodø
En 3D-visualisering (rendering) av et toalettbygg på Fana Golfklubb, vist fra fire ulike perspektiver med omgivelser og personer.
NewConstruction Other

Ny toalettbygning i Vestre Rå 82, Bergen

Ny frittstående toalettbygning på 34 m² BRA (40 m² brutto) med flatt tak og trekledning, plassert lavt i terrenget ved …

πŸ“ Vestre Rå 82 Bergen
Fotografi av en fasade med et nytt skilt (Mekonomen) og en bil i forgrunnen.
Other Other

Oppføring av virksomhetsskilt på Storaneset 24, Bergen

Ny oppføring av ett frittstående fasadeskilt for Mekonomen på Storaneset 24 i Bergen. Skiltet består av sorte bokstaver…

πŸ“ Storaneset 24 Bergen
Luftfoto av eksisterende situasjon med flytebrygger og eiendom ved sjø.
Extension Other

Utvidelse av flytebryggeanlegg i Harald Skjolds veg 63, Bergen

Utvidelse av eksisterende flytebryggeanlegg ved Nordås Marina med inntil 24 nye båtplasser fordelt på tre piranlegg. Ut…

πŸ“ Harald Skjolds veg 65 Bergen
Fasadetegning av bygning HUS R4 sett fra vest.
NewConstruction Other

Oppføring av utvendig stålpipe i Vindharpevegen 40C

Ny utvendig stålpipe monteres på bolig i Vindharpevegen 40C. Pipa er en teknisk installasjon knyttet til ildsted som sk…

πŸ“ Vindharpevegen 40C Bergen
Situasjonsplan som viser tomt, naboeiendommer og en planlagt ny høyspent trasé.
NewConstruction Other

Ny frittstående nettstasjon i Østre Nesttunvegen 8, Bergen

Ny frittstående nettstasjon med grunnflate på ca. 8,75 m² og høyde 2,86 meter oppføres på eiendommen Østre Nesttunvegen…

πŸ“ Østre Nesttunvegen 8 Bergen