Alle byggesaker 7500 treff

Fotografi av en kystbygd med hus på en skråning, med overlagte oransje piler og tekst som peker på 'Vegbane' og 'Tilbygg'.
Extension Fritidsbolig

Tilbygg til fritidsbolig på Justøyveien 230, Lillesand

Ny tilbygg på ca. 48 m² BRA til eksisterende fritidsbolig på Justøyveien 230 i Lillesand kommune. Tilbygget er plassert…

πŸ“ Justøyveien 230 Lillesand
Bildet viser to bilder: øverst en 3D-illustrasjon (rendering) av et landskap med tiltak, og nederst et fotografi av et skogstomt med en markert plassering for en telemast.
NewConstruction Other

Oppføring av 30 m telemast og utstyrshytte på Nedre Holtet 35

Ny 30 meter høy selvbærende telemast i metallfagverk med et lite fundamentert fotavtrykk på ca. 25 m² plassert på eiend…

πŸ“ Nedre Holtet 35 Eidsvoll
🌾
NewConstruction Landbruk

Ny låvebygning med silokran på Ytste Kilsti Gard

Ny låvebygning oppføres på Ytste Kilsti Gard med tilrettelegging for en skinnegående silokran og ekstra tårnsilo. Bygni…

πŸ“ Ytste Kilsti Gard Fjord
🏠
NewConstruction Enebolig

Ferdigattest for enebolig i Mobergvegen 3

Ferdigstilt enebolig på eiendommen Mobergvegen 3, Gnr 125 Bnr 110, hvor alle nødvendige dokumenter for driftsfasen er o…

πŸ“ Mobergvegen 3 Eidsvoll
Situasjonsplan som viser tomtens grenser, bygningsplassering og høydemålinger (AB-punkter) for beliggenhetskontroll.
NewConstruction Enebolig

Ny enebolig i Råholtvegen 85, Råholt

Ny enebolig oppføres i Råholtvegen 85 med elektriske varmekabler og energiforsyning basert på elektrisitet og biobrense…

πŸ“ Råholtvegen 85B Eidsvoll
3D-visualisering av en stålkonstruksjon for Jondal brannstasjon.
NewConstruction Offentlig

Ny brannstasjon med tekniske anlegg i Jonavegen 115, Jondal

Ny brannstasjon på 246,2 m² BRA oppføres som tilbygg til eksisterende bygg på eiendommen Jonavegen 115 i Jondal. Bygget…

πŸ“ Jonavegen 115 Ullensvang
Fotografi av en mørk, trolig svart, trebygning sett fra fronten. Bygningen har hvite vinduer, en hvit inngangsparti med dekorativt tak, og en røykstak. Bakgrunnen består av bar trær og en grå himmel.
Rehabilitation Other

Rehabilitering av skorstein med stålrør i Bjørnstadgutua 43

Rehabilitering av en eksisterende teglskorstein ved innsetting av et nytt stålrør Ø200 Schiedel Prima Plus. Prosjektet …

πŸ“ Bjørnstadgutua 43 Eidsvoll
En håndtegnet snittegning som viser et tverrsnitt gjennom en bygning eller struktur, med angitte høyder (mur 49cm, åpning 100cm) og nivåer (Els Gårds plass, Plan Ludvikbakken 22).
Other Other

Oppføring av forstøtningsmur og gjerde på Ludvikbakken 20

Ny forstøtningsmur oppføres på fast fjell med systemblokker eller tilsvarende, forankret i gneisfjell. Muren plasseres …

πŸ“ Ludvikbakken 20 Eidsvoll
Fotografi av en hage med en rød bod, en terrasse og en hekk.
Extension Enebolig

Tilbygg og riving av bod på Fagertunveien 1, Lillesand

Tiltaket omfatter riving av en eksisterende frittstående bod på ca. 6,5 m² og oppføring av et nytt tilbygg til en eksis…

πŸ“ Fagertunveien 1 Lillesand
🏠
Extension Enebolig

Tilbygg med soverom på Styrivegen 61

Ny tilbyggsdel til eksisterende enebolig på Styrivegen 61 som skal inneholde et soverom. Tilbygget vil utvide boligens …

πŸ“ Styrivegen 61 Eidsvoll
Fasadetegning med oppriss av bygning sett fra fire sider (øst, vest, nord, sør) samt en eksisterende etasjeplan.
Extension Other

Tilbygg og ventilasjonsanlegg på Skarsmoen 13 renseanlegg

Ny utvidelse på 21 m² BYA på eksisterende renseanlegg i Skarsmoen 13, Ullensvang kommune, med formål å installere et ny…

πŸ“ Tjøreskarv 34 Ullensvang
Fotografi av et innendørs rom med utsikt gjennom store, rundede vinduer mot en fjord og fjell. Bildet viser en sengerom med møbler og tekst på norsk om et prosjekt for «BirdBox»-hytter.
NewConstruction Other

Oppføring av Birdbox overnattingsmoduler i Reisetevegen 6

Prosjektet omfatter oppføring av fire frittstående Birdbox-moduler for korttidsutleie på eiendommen Reisetevegen 6, Sto…

πŸ“ Reisetevegen 6 Ullensvang
🏠
NewConstruction Enebolig

Ny enebolig på Malthøl 12

Ny enebolig oppført på eiendommen Malthøl 12. Boligen er et frittstående boligbygg med standard funksjoner for enebolig…

πŸ“ Malthøl 10 Ullensvang
Håndtegnet 3D-visualisering (rendering) av en fleretasjes bygning sett fra siden, med bakgrunn av fjell.
Extension Enebolig

Nye altaner og markterrasser på Røldalsvegen 58, Odda

Prosjektet omfatter oppføring av nye altaner på 3. etasje og markterrasser på 1. etasje på en eksisterende enebolig i R…

πŸ“ Røldalsvegen 58 Ullensvang
Kartutsnitt (situasjonsplan) som viser tomtene 205/1, 205/8 og 5/10, samt plassering av eksisterende bygninger og et antatt annekset.
Extension Fritidsbolig

Ny anneks på fritidseiendom i Tronesvegen 77

Ny frittstående anneks på ca. 15-20 m² plassert nær eksisterende fritidshus på eiendommen i Tronesvegen 77. Annekset sk…

πŸ“ Tronesvegen 77 Ullensvang
3D-visualisering av et minirenseanlegg i glassfiber (GRP) med snitt for å vise innvendig konstruksjon.
NewConstruction Enebolig

Ny enebolig med minirenseanlegg og infiltrasjonsfilter på Røtevegen

Ny enebolig på eiendommen Gnr 242, Bnr 44 på Røtevegen med tilhørende avløpsløsning bestående av et biologisk/kjemisk m…

πŸ“ Røtevegen 11 Ullensvang
3D-visualisering (rendering) av en hytte i et skrått terreng, med omgivende hus og topografi.
NewConstruction Fritidsbolig

Ny fritidsbolig med bod på Øvre Lontjørnshaugane 47

Ny fritidsbolig på 99,1 m² BYA med integrert bodareal på 26,2 m² under samme saltak med 30° takvinkel og torvtak. Bygge…

πŸ“ Seljestad, Øvre Lontjørnshaugane 47 Ullensvang
Situasjonsplan som viser bygningenes plassering på tomten i forhold til terrenget, veier og vann. Bildet inneholder også en informasjonsboks med eiendomsdata.
Rehabilitation Other

Rehabilitering av pipe på Jøsendal 36, Ullensvang

Rehabilitering av eksisterende pipe på boligbygning ved Jøsendal 36, Ullensvang kommune. Prosjektet omfatter installeri…

πŸ“ Jøsendal 36 Ullensvang
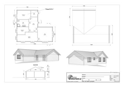
Bildet viser en tegning med fasadeopprikk (perspektiv) og snittegning (Snitt B-B) av et hus, samt en plantegning i øvre venstre hjørne.
Extension Fritidsbolig

Tilbygg på 26,5 m² til fritidsbolig i Svorastranda 26

Ny tilbygg på 26,5 m² til eksisterende fritidsbolig på Svorastranda 26. Tilbygget inneholder to soverom, et bad og tilh…

πŸ“ Vikasætrevegen 151 Volda
🏗️
NewConstruction Other

Etablering av ny avfallsstasjon i Borgenveien 5

Ny avfallsstasjon etableres på eiendommen Borgenveien 5. Prosjektet omfatter opparbeidelse av anleggsareal for avfallsh…

πŸ“ Reidar Kobros vei 3 Oslo - Oslove
🏬
Extension Naeringsbygg

Ombygging og tilbygg av næringsbygg til bolig, Smedgata 29

Eksisterende bygg i Smedgata 29, tidligere brukt til forretning og kontor, ombygges og får fasadeendring for å tilpasse…

πŸ“ Smedgata 19 Oslo - Oslove
🏛️
Extension Offentlig

Innvendig ombygging og fasadeendringer på Hammersborg torg 1

Prosjektet omfatter omfattende innvendige ombygginger og endringer av fasaden på en offentlig bygning ved Hammersborg t…

πŸ“ Hammersborg torg 1 Oslo - Oslove
🏬
FacadeChange Naeringsbygg

Fasadeendring og bruksendring av kontorbygg i Gjerdrums vei 19

Endring av fasaden og bruksendring i et eksisterende kontorbygg i Gjerdrums vei 19. Prosjektet innebærer oppgradering o…

πŸ“ Gjerdrums vei 19 Oslo - Oslove
🏛️
Extension Offentlig

Tilbygg til Døvekirken i Fagerborggata 12

Tilbygg til Døvekirken, en offentlig bygning, lokalisert i Fagerborggata 12. Prosjektet innebærer en fysisk utvidelse a…

πŸ“ Fagerborggata 12 Oslo - Oslove