Alle byggesaker 7500 treff

Fasadetegning som viser oppriss av bygningens nord- og vestside.
NewConstruction Garasje

Ny garasje med hobbyrom på Ishusbakken 15, Kragerø

Ny frittstående garasje på ca. 36 m² med saltak og takvinkel på 36 grader oppføres på eiendommen Ishusbakken 15 i Krage…

πŸ“ Ishusbakken 15 Kragerø
Fasadetegning som viser etasjeplaner (opprikk) av en bygning med glassfasade og detaljer om grunnmur og tak.
NewConstruction Naeringsbygg

Ny veksthus på Krikkenveien 12A, Skåtøy

Ny frittstående veksthus på 48,1 m² BRA og 54 m² BYA med glassfasader og saltak, oppført i tilknytning til gårdsdrift p…

πŸ“ Krikkenveien 11 Kragerø
Snittegning som viser bygningens indre oppbygning (kjeller, 1. etasje, loft) og plassering av en ny innføringsrør.
Rehabilitation Other

Rehabilitering av pipekonstruksjon på Frydensborgbakken 2

Rehabilitering av eksisterende pipekonstruksjon i enebolig på Frydensborgbakken 2, Kragerø. Tiltaket omfatter montering…

πŸ“ Frydensborgbakken 2 Kragerø
Fasadetegning som viser bygningens utseende fra fire sider: Sør, Øst, Nord og Vest.
Extension Fritidsbolig

Ferdigattest for fritidsbolig med tilbygg i Storseilveien 29

Fritidsboligen i Storseilveien 29 består av et opprinnelig nybygg fra 1995 med flere påfølgende tilbygg og endringer: t…

πŸ“ Storseilveien 29 Kragerø
Fotografi av eiendom og gate med biltekst som forklarer bildet.
NewConstruction Garasje

Ny frittliggende garasje i Natthusveien 15, Harstad

Ny frittliggende garasje på 46,8 m² med saltak og mønehøyde på ca. 4 meter planlegges oppført på eiendommen Natthusveie…

πŸ“ Natthusveien 15 Harstad - Hárstták
Fotografi av en mørk trehytte sett fra siden, med fokus på en trapp og en veranda som går nedover en skråning.
Extension Enebolig

Utvidelse av terrasse og utvendige trapper på Morildveien 2

Prosjektet omfatter utvidelse av eksisterende terrasse og oppføring av nye utvendige trapper til enebolig på Morildveie…

πŸ“ Morildveien 2 Harstad - Hárstták
Fotodokumentasjon av en eksisterende bygning med balkonger og en båt i forgrunnen.
FacadeChange Garasje

Innglassing av veranda i Edvard Munchs vei 23, Kragerø

Ny innglassing av eksisterende overbygd veranda ved seksjon 34 i Seniorsenteret, Edvard Munchs vei 23. Tiltaket består …

πŸ“ Edvard Munchs vei 23 Kragerø
🏗️
Rehabilitation Other

Rehabilitering av pipe i Våglandsvegen 339

Rehabilitering av eksisterende pipe i bolig på Våglandsvegen 339. Prosjektet omfatter utbedring og oppgradering av pipe…

πŸ“ Våglandsvegen 339 Heim
🏬
NewConstruction Naeringsbygg

Ny driftsbygning på Nesveien 55

Ny driftsbygning oppføres på landbrukseiendommen Nesveien 55. Bygningen skal fungere som produksjons- og driftsbygg for…

πŸ“ Nesveien 51 Heim
🏬
Extension Naeringsbygg

Ombygging av butikklokaler i Bårnakkveien 1A, Harstad

Tiltaket omfatter ombygging av eksisterende butikkbygg på 800 m² i Bårnakkveien 1A, Harstad, for etablering av apotekvi…

πŸ“ Bårnakkveien 1A Harstad - Hárstták
🏛️
NewConstruction Offentlig

Oppføring av avskjermet kommunal bolig

Ny oppføring av en avskjermet kommunal bolig som skal fungere som et selvstendig boenhet for kommunale formål. Boligen …

Sunndal
Fotografi av en betongkonstruksjon (kanskje en kai eller bro) i vann, sett fra under. Bildet er rotert 90 grader mot høyre.
Extension Uthus

Oppføring av uthus, riving av fundamenter og plastring av veifylling mot sjø

Saken gjelder dispensasjon og tillatelser for oppføring av uthus, riving av eksisterende fundamenter samt utfylling og …

πŸ“ Barøya 100 Åfjord
Bildet viser en situasjonsplan øverst, og nedenfor dette fire fasadetegninger (to mot sør og to mot nord) med mål og skala.
Extension Garasje

Tilbygg garasje og eiendomsdeling på Bygdeveien 26, Borkenes

Ny tilbygg på eksisterende garasje i tre med saltak på Bygdeveien 26, 9475 Borkenes. Tilbygget inneholder oppholdsrom, …

πŸ“ Bygdeveien 26 Harstad - Hárstták
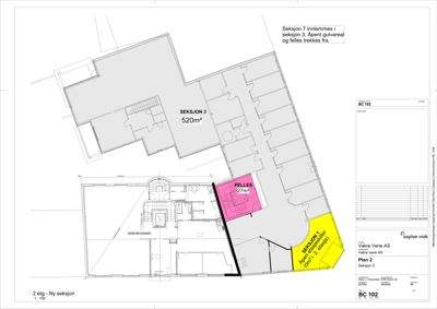
Etasjeplan (2. etasje) som viser romfordeling og arealer for Seksjon 1, 3 og fellesareal.
ChangeOfUse Leilighetsbygg

Oppføring av innvendig brann- og lydskille i Strandgata 1, Harstad

Prosjektet omfatter oppføring av en branncellebegrensende vegg som skiller to seksjoner i andre etasje i et eksisterend…

πŸ“ Strandgata 1 Harstad - Hárstták
Bildet viser en collage med to bilder: øverst et flyfoto over et kystområde med eiendomsinndelinger, og nederst et fotografi av en rød bygning.
NewConstruction Other

Ny platting ved naust på Bremnesveien 614, Kvæfjord

Det planlegges oppføring av en ny platting på ca. 30 m² på naustets sørsiden på eiendommen Bremnesveien 614, Gnr 61 Bnr…

πŸ“ Bremnesveien 614 Kvæfjord
3D-visualisering (rendering) av et husalternativ (Alternativ 4) sett fra ulike vinkler.
Extension Enebolig

Tilbygg og utvidelse av enebolig i Vesteråsveien 7, Harstad

Ny tilbygg og utvidelse av eksisterende enebolig i Vesteråsveien 7, Harstad, med et samlet tilbygg på over 50 m². Tilby…

πŸ“ Vesteråsveien 7 Harstad - Hárstták
Fotografi av et landskap med hus, skog og vann, illustrerende plassering av slamavskilleren.
Extension Other

Ny 4 m³ slamavskiller ved Vikeveien 35, Kvæfjord

Ny 4 m³, 3-kammer slamavskiller (Lyngentank) installeres på eiendommen Vikeveien 35, Gnr 51 Bnr 6, som en del av repara…

πŸ“ Osnesveien 6 Harstad - Hárstták
Fotografi av Alfheim svømmehall i Tromsø med snø på bakken og et tre i forgrunnen.
Rehabilitation Enebolig

Utskifting av taktekke på enebolig i Seljestadveien 41

Eksisterende skifertak på enebolig fra 1910 i Seljestadveien 41 skal byttes ut med Decra takpanner i svart eller grå. T…

πŸ“ Seljestadveien 41 Harstad - Hárstták
Fasadetegning som viser bygningens utseende fra nord og sør.
Extension Enebolig

Tilbygg på enebolig i Stordalsveien 434, Åfjord

Ny tilbygg på eksisterende enebolig i Stordalsveien 434, Åfjord, med et bruttoareal på ca. 45,9 m². Tilbygget består av…

πŸ“ Stordalsveien 434 Åfjord
Fasadetegning som viser oppriss av bygningens sider (Nord, Syd, Vest, Øst) med vinduer og takform.
NewConstruction Other

Ny anneks på 39 m² i Linesmarka 73, Linesøya

Ny frittliggende anneks på 39 m² BRA med saltak og trepanel som fasademateriale. Bygget har ett plan og inneholder opph…

πŸ“ Linesmarka 73 Åfjord
Fasade tegning som viser bygningens utseende sett fra vest og sør.
NewConstruction Naeringsbygg

Ny lagerhall i Norddalsveien 593, Åfjord

Ny lagerhall på 632,4 m² BRA oppføres på eiendommen Norddalsveien 593, Gnr 58 Bnr 249 i Åfjord kommune. Bygget er en en…

πŸ“ Norddalsveien 593 Åfjord
Tre 3D-visualiseringer (renderinger) av en planlagt bygning (våningshus og fjøs) med tekstbeskrivelser over og under.
ChangeOfUse Naeringsbygg

Bruksendring og ombygging til kafe og kurslokale i Austerfjordveien 32

Bruksendring av eksisterende våningshus til kafe og gårdsbutikk med sitteplasser på loftet, samt ombygging av tilstøten…

πŸ“ Austerfjordveien 32 Kvæfjord
Bildet viser en fotodokumentasjon av et kvikkleireskred i Lyngen fra 2010, inkludert en illustrasjon av skredmekanismen.
NewConstruction Garasje

Ny frittstående garasje i Finnsetveien 129, Åfjord

Ny frittstående garasje på ca. 62 m² BRA og 67 m² BYA oppføres på eiendommen Finnsetveien 129 i Åfjord kommune. Garasje…

πŸ“ Finnsetveien 129 Åfjord
Fotografier av to jordprøver (Prøve #1 og Prøve #2) i plastposer, tatt på byggeplass eller utgravning.
Extension Naeringsbygg

Tilbygg til lagerbygg i Østsideveien 2274, Smøla

Nybygg av tilbygg på ca. 230 m² til eksisterende lagerbygg i Østsideveien 2274, Smøla kommune. Tilbygget oppføres i én …

πŸ“ Sætran, Østsideveien 2274 Smøla