Alle byggesaker 7500 treff

Fotografi av en rekkehusbebyggelse med fokus på takkonstruksjon, takfliser, skorsteiner og en steinlagt hagevei.
Rehabilitation Other

Ny stålpipe og ildsted på Mælan 76, Røros

Ny Tolmer Vision stålpipe på ca. 8 meter oppføres på eiendommen Mælan 76 i Røros, som erstatter en eksisterende element…

πŸ“ Mælan 76 Røros - Rosse
Fotografi av en tomt med en tegnet bygningsoversikt (situasjonsplan) overlagt på bildet.
Extension Garasje

Tilbygg og utedo til uthus i Blomåsveien 123

Ny utvidelse av tidligere godkjent frittliggende uthus på eiendommen Blomåsveien 123, med et tilbygg på ca. 1,5 m² som …

πŸ“ Blomåsveien 123 Kvæfjord
Fotografi av to personer som monterer et rørsystem på et tak.
Rehabilitation Other

Rehabilitering av skorstein på Kveøyveien 923

Rehabilitering av skorstein i et eldre våningshus som benyttes som fritidsbolig på eiendommen Kveøyveien 923. Prosjekte…

πŸ“ Kveøyveien 923 Kvæfjord
Fotografier av et tak sett fra luften. Bildene viser takflaten, takrenner, og omgivelsene med vei og berg.
NewConstruction Naeringsbygg

Ny byggevarebutikk med støttemur i Nordåsveien 14, Kristiansand

Ny byggevarebutikk på totalt 3 727 m² BRA fordelt på hovedbygg og lagerskur, med tilhørende utearealer inkludert parker…

πŸ“ Nordåsveien 14 Kristiansand
Fotografier av vindusprofiler og fasadeelementer med tilhørende tekniske spesifikasjoner for aluminiumssystemer.
Extension Other

Tilbygg med stål- og betongkonstruksjon i Tollbodgata 5, Kristiansand

Ny tilbyggskonstruksjon i Tollbodgata 5 i Kristiansand med bæresystemer i stål og betong. Bygget omfatter klimaskjerm m…

πŸ“ Tollbodgata 5 Kristiansand
3D-visualisering (rendering) av en terrasse med omgivende bygninger og terreng.
NewConstruction Leilighetsbygg

Riving og ny leilighetsbygning i Tollbodgata 3, Kristiansand

Ny leilighetsbygning oppføres i Tollbodgata 3 i Kristiansand, med fem etasjer inkludert teknisk rom på taket. Bygget ha…

πŸ“ Tollbodgata 3 Kristiansand
Landskapsplan med 3D-visualisering av beplantning, terrengform og bygningssilhuett for byggetomta.
NewConstruction Leilighetsbygg

Ny leilighetsbygg med parkeringskjeller i Hamresandveien 30, Kristiansand

Ny blokkbebyggelse med parkeringskjeller oppføres i Hamresandveien 30, Kristiansand, på eiendom gnr 98, bnr 550. Bygget…

πŸ“ Hamresandveien 20 Kristiansand
Perspektivtegning (rendering) som viser en 3D-modell av en bygning i et terreng. Tegningen illustrerer en tilbyggingsplan med tekstnotater om endringer i plattinger og tak.
Extension Fritidsbolig

Tilbygg bad på fritidsbolig i Buerstadveien 53

Ny tilbygg på ca. 8,4 m² BRA for bad bygges på eksisterende fritidsbolig i Buerstadveien 53. Tilbygget plasseres på eks…

πŸ“ Buerstadveien 53 Færder
3D-visualisering (rendering) av et bygningsfelt sett fra en høyde, med skisseaktig stil.
Extension Enebolig

Tilbygg til eksisterende enebolig i Skyttaveien 17, Nittedal

Ny tilbygg på ca. 64,8 m² til eksisterende enebolig i Skyttaveien 17, Nittedal. Tilbygget har saltak og er prosjektert …

πŸ“ Skyttaveien 17 Nittedal
🏗️
Rehabilitation Other

Rehabilitering av skorstein på bolig, Nyveien 10

Rehabilitering av eksisterende skorstein på bolig i Nyveien 10, Gnr 56 Bnr 113. Tiltaket omfatter reparasjon og oppgrad…

πŸ“ Nyveien 10 Kvæfjord
🏡
Demolition Fritidsbolig

Riving og ny velforeningshytte i Ustrandmarka 239

Eksisterende seterbu på eiendommen rives for å gi plass til en ny velforeningshytte. Den nye hytten oppføres med tilhør…

πŸ“ Utstrandmarka 239 Kvæfjord
Fotografi av en hvit enebolig med terrasse og utemøbler, tatt som illustrasjon i en salgsoppgave.
FacadeChange Enebolig

Utskifting av vinduer og bruksendring i kjeller, Elgvegen 21

Prosjektet omfatter utskifting av vinduer i kjeller og balkong-/terrassevinduer på en enebolig i Elgvegen 21. Det inklu…

πŸ“ Elgvegen 21 Eidsvoll
Fotografi av en bygning med blå pilmerker som peker på spesifikke vinduer eller balkonger.
FacadeChange Leilighetsbygg

Innglassing av verandaer i leilighetsbygg, Feskarbyvegen 2, Kolvereid

Prosjektet omfatter innglassing av verandaer på flere leiligheter i leilighetsbygget Bakkalandet XO, Feskarbyvegen 2, K…

πŸ“ Feskarbyvegen 2 Nærøysund
Perspektivtegninger (renderinger) av en planlagt bygning sett fra fire ulike vinkler (NØ, VØ, NØ, SV).
VerticalExtension Enebolig

Påbygg av enebolig med nytt inngangsparti på Svingen 22

Eksisterende enebolig på Svingen 22 med grunnflate på ca. 138 m² får påbygg med en ny 2. etasje over den delen av bolig…

πŸ“ Svingen 22 Nittedal
3D-visualisering (rendering) av et byggeprosjekt sett fra en vinkel som viser både fasade og situasjon. Tegningen inneholder overlagte tekniske data og mål.
NewConstruction Leilighetsbygg

Nytt boligbygg med pergola og utomhusarealer i Rotneshagen, Nittedal

Prosjektet omfatter oppføring av boligbygg i Rotneshagen, Nittedal, bestående av flere leilighetsblokker (B1-B4) og små…

πŸ“ Hans Withs vei 14 Nittedal
3D-visualisering (rendering) av en eksisterende hytte og et tilbygg, inkludert omgivelsene (trær, terreng).
Extension Fritidsbolig

Tilbygg med bad og teknisk rom på Flekkenveien 122, Tjøme

Ny tilbygg på 17,1 m² til eksisterende hytte på Flekkenveien 122, bestående av bad, teknisk rom og bod. Tilbygget er pl…

πŸ“ Flekkenveien 122 Færder
3D-visualisering (rendering) som viser fasadehøyder og lydnivå (Lden) for en rekke hus i et boligfelt.
NewConstruction Tomannsbolig

Ny vertikaltdelt tomannsbolig i Føynveien 12D, Husøysund

Ny vertikaltdelt tomannsbolig på eiendommen Føynveien 12D i Husøysund, Færder kommune, med totalt bruttoareal på ca. 40…

πŸ“ Føynveien 12D Færder
🏘️
ChangeOfUse Tomannsbolig

Bruksendring fra enebolig til tomannsbolig i Brattfossveien 11

Bruksendring av eksisterende enebolig til tomannsbolig i Brattfossveien 11, Slattum. Prosjektet innebærer tilpasning av…

πŸ“ Brattfossveien 11 Nittedal
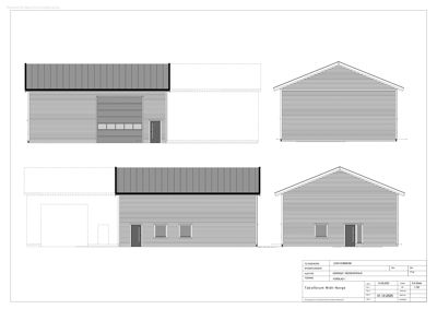
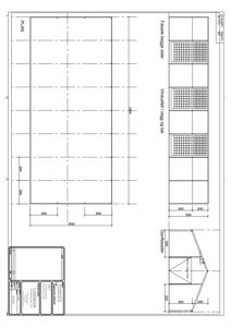
Fasadetegning som viser bygningens utseende fra to ulike vinkler (for- og sidefasade).
NewConstruction Offentlig

Ny kommunegarasje med verksted og lager i Leknesveien 63, Leka

Ny kommunegarasje på totalt 220 m² oppføres i én etasje over ringmur og støpt plate på mark. Bygget har saltak med takp…

Leka
Historisk flyfoto fra 1981 som viser et eksisterende bryggeanlegg med båtplasser.
NewConstruction Other

Utskifting og utvidelse av flytebrygge i Kirkeveien 538

Ny flytebrygge etableres som utskifting av eksisterende brygge på ca. 86 m², med ny forankring og utriggere. Bryggen ut…

πŸ“ Kirkeveien 490 Færder
Fotografi av en bygning sett fra siden, med synlig fasade, vindu, takrenne og utstyr under bygningen.
NewConstruction Garasje

Ny frittliggende garasje på 41 m² i Dølihagan 56, Eidsvoll

Ny frittliggende garasje på 41 m² oppført på eiendommen Dølihagan 56 i Eidsvoll kommune. Garasjen er plassert på vestsi…

πŸ“ Dølihagan 56A Eidsvoll
🏡
NewConstruction Fritidsbolig

Ny fritidsbolig på Ånundsbuoddane tomt 16 B

Ny fritidsbolig skal oppføres på Ånundsbuoddane tomt 16 B. Prosjektet omfatter et frittstående bygg beregnet for fritid…

πŸ“ Ånundsbuoddane tomt 16 B Nissedal
Fotografi av en tomt med en eksisterende liten bygning (troll), omgitt av en rød polygon som markerer et planlagt byggareal. Bildet inneholder også en overlay med tekst 'Ny PA001 Dønnum' og en liten kartinnsnitt i hjørnet.
Rehabilitation Other

Oppgradering og ny spillvannspumpestasjon på Carsten Ankers veg, Dønnum

Ny spillvannspumpestasjon PA001 på Dønnum i Eidsvoll kommune bygges som erstatning for en eldre og utilstrekkelig pumpe…

Eidsvoll
Fasadetegning som viser oppriss av gavelfasaden og vindusfelt i vegg og tak.
NewConstruction Other

Oppføring av sesongbasert salgstelt for hagesenter i Eidsvollvegen 2

Ny sesongbasert salgstelt på 24 x 10,5 meter med pulttak og fire vinduer, plassert på parkeringsareal ved Eidsvollvegen…

πŸ“ Eidsvollvegen 2 Eidsvoll