Tomannsbolig 269 treff

Fotografi av en steinmur (støttemur) og et grusområde med tilhørende tekstbeskrivelse om høyde, sikring og nabogrense.
FacadeChange Tomannsbolig

Fasadeendring og ny boenhet i underetasje, Fagerliveien 95

Eksisterende tomannsbolig i empirestil med trepanel og valmet saltak i tegl gjennomgår fasadeendringer inkludert utskif…

πŸ“ Fagerliveien 95 Fredrikstad
🏘️
NewConstruction Tomannsbolig

Ny tomannsbolig på Tjennheia 7, Vegårshei

Ny tomannsbolig bestående av to boenheter er oppført på eiendommen Tjennheia 7 i Vegårshei kommune. Bygget er fullført …

πŸ“ Tjennheia 7A Vegårshei
🏘️
NewConstruction Tomannsbolig

Ny tomannsbolig på Tjennheia 7, Vegårshei

Ny tomannsbolig bestående av to boenheter oppført på eiendommen Tjennheia 7 i Vegårshei kommune. Bygget er et boligbygg…

πŸ“ Tjennheia 7A Vegårshei
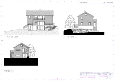
Fasadetegning som viser bygningens utseende sett fra nord og vest.
NewConstruction Tomannsbolig

Ny tomannsbolig med utomhusanlegg i Tveitevågvegen 73, Askøy

Ny tomannsbolig på totalt 188,2 m² BRA fordelt på to boenheter, hver med 2 etasjer, tre soverom, bad, sportsbod og gara…

πŸ“ Tveitevågvegen 73 Askøy
🏘️
VerticalExtension Tomannsbolig

Påbygg på tomannsbolig i Ingeborgskogen 10

Påbygg på eksisterende tomannsbolig i Ingeborgskogen 10. Prosjektet innebærer en vertikal utvidelse av boligen, som vil…

πŸ“ Ingeborgskogen 1 Ullensaker
Fasadetegning (opprikk) som viser bygningens utseende fra front og side, inkludert høyder, takform og terrengforhold.
NewConstruction Tomannsbolig

Ny tomannsbolig i Hjortetråkket 109 og 111, Vestfossen

Ny tomannsbolig på totalt 313 m² BRA fordelt på to boenheter, med to etasjer og saltak. Bygget er utført i trekonstruks…

πŸ“ Hjortetråkket 109 Øvre Eiker
Fasadetegning som viser bygningens utseende fra to sider (Sør og Øst) med detaljer om vinduer, balkonger og takform.
NewConstruction Tomannsbolig

Ny tomannsbolig i Hjortetråkket 105 og 107, Vestfossen

Ny tomannsbolig i to etasjer med totalt oppvarmet bruksareal på ca. 252 m² og totalt BRA på 313,4 m². Bygget har saltak…

πŸ“ Hjortetråkket 105 Øvre Eiker
Fasadetegning som viser bygningens utseende fra sør og øst.
NewConstruction Tomannsbolig

Ny tomannsbolig i Hjortetråkket 113 og 115, Vestfossen

Ny tomannsbolig på totalt 313 m² BRA fordelt på to boenheter, hver med ca. 126 m² oppvarmet areal. Bygget er to etasjer…

πŸ“ Hjortetråkket 113 Øvre Eiker
🏘️
NewConstruction Tomannsbolig

Oppføring av to tomannsboliger på Gnr 4 Bnr 101

To nye tomannsboliger skal oppføres på eiendommen Gnr 4 Bnr 101. Prosjektet innebærer bygging av boligbygg med to separ…

Askøy
🏘️
NewConstruction Tomannsbolig

Oppføring av vertikaldelt tomannsbolig i Selsøyvikveien 25, Rødøy

Ny vertikaldelt tomannsbolig med to boenheter oppføres på eiendommen gnr. 4, bnr. 9 i Selsøyvikveien 25, Rødøy kommune.…

πŸ“ Selsøyvikveien 36 Rødøy
Fasadetegning som viser bygningens utseende og høyder sett fra SØR og VEST.
NewConstruction Tomannsbolig

Ny tomannsbolig med garasje på Fosnanes, Karmøy

Ny tomannsbolig oppføres på eiendom Gnr. 106, Bnr. 99 i Fosnanes, Karmøy kommune, med samlet bebygd areal på 263,9 m² i…

πŸ“ Fosnanes Karmøy
🏘️
NewConstruction Tomannsbolig

Ny tomannsbolig på Tjennheia 44, Vegårshei

Ny tomannsbolig oppføres på eiendommen Tjennheia 44 i Vegårshei kommune. Bygget vil bestå av to boenheter i samme bygg,…

πŸ“ Tjennheia 44 Vegårshei
🏘️
NewConstruction Tomannsbolig

Ny tomannsbolig i Tjennheia 44, Vegårshei

Ny tomannsbolig med to boenheter på til sammen 187 m² BRA og et bebygd areal på 205,5 m² oppføres på tomt 23 i Tjennhei…

πŸ“ Tjennheia 44 Vegårshei
3D-visualiseringer (renderinger) av et planlagt småhusprosjekt med to ulike perspektiver.
NewConstruction Tomannsbolig

Oppføring av to tomannsboliger på Øvre Bjørkåsen 11A, Bodø

To nye tomannsboliger i to etasjer oppføres på Øvre Bjørkåsen 11A i Bodø kommune. Hver bolig har et bruksareal på ca. 1…

πŸ“ Øvre Bjørkåsen 11A Bodø
🏘️
ChangeOfUse Tomannsbolig

Bruksendring og oppdeling av boenhet i Terningbekk 2

Oppdeling av en eksisterende boenhet i en tomannsbolig samt bruksendring av kjellerarealet til boligformål. Prosjektet …

πŸ“ Terningbekk 2 Oslo - Oslove
🏘️
Extension Tomannsbolig

Tilbygg og støttemur i tomannsbolig

Saken gjelder søknad om tiltak for et tilbygg og oppføring av støttemur i en tomannsbolig på Fredsvolljordet 2 og 4. De…

πŸ“ Fredsvolljordet 2 og 4 Østre Toten
Etasjeplan (Plan 1. etasje) som viser romfordeling, mål og areal for et hus.
ChangeOfUse Tomannsbolig

Bruksendring fra kontor til bolig i Sperrevigveien 45, Arendal

Bruksendring av 1. etasje i tomannsbolig på 48 m² fra kontor/laboratorium til bolig. Etasjen inneholder soverom (7 m²),…

πŸ“ Sperrevigveien 1 Arendal
🏘️
ChangeOfUse Tomannsbolig

Innredning av andre etasje i tomannsbolig, Osetoppen 12A

Innredning av eksisterende andre etasje i tomannsbolig på Osetoppen 12A. Prosjektet omfatter opparbeidelse av boligrom …

πŸ“ Osetoppen 12A Froland
Fasadetegning som viser oppriss av bygningens nordøst- og syddøstside med detaljer om vinduer, dører og fasadematerialer.
NewConstruction Tomannsbolig

Riving og nybygg av to boliger med hybelleiligheter i Barbugårdsveien 30, Arend…

Prosjektet omfatter riving av en eksisterende enebolig og oppføring av to nye eneboliger med hver sin hybelleilighet på…

πŸ“ Barbugårdsveien 30 Arendal
Fasadetegning som viser bygningens utseende fra tre ulike sider (Vest, Nord og Syd).
VerticalExtension Tomannsbolig

Oppføring av takopplett på tomannsbolig i Myrastien 9, Fredrikstad

Ny takopplett over eksisterende horisontaldelt tilbygg på tomannsbolig i Myrastien 9. Takoppletten utvider bygningens v…

πŸ“ Myrastien 9 Fredrikstad
🏘️
Extension Tomannsbolig

Oppføring av tremannsbolig med garasje i Frognerseterveien 41

Ny tremannsbolig med underjordisk garasje og støyskjerm oppføres i Frognerseterveien 41. Bygget består av tre boenheter…

πŸ“ Frognerseterveien 41A Oslo - Oslove
🏘️
NewConstruction Tomannsbolig

Ny tremannsbolig med garasjekjeller på Leirskallhellinga 1

Ny tremannsbolig med underliggende garasjekjeller oppføres på eiendommen Leirskallhellinga 1. Bygget vil inneholde tre …

πŸ“ Leirskallhellinga 1 Oslo - Oslove
🏘️
NewConstruction Tomannsbolig

Oppføring av tomannsbolig i Munkerudkleiva 25

Ny tomannsbolig planlegges oppført på eiendommen Munkerudkleiva 25. Boligen vil bestå av to boenheter i samme bygg, til…

πŸ“ Munkerudkleiva 25 Oslo - Oslove
🏘️
NewConstruction Tomannsbolig

Oppføring av enebolig og tomannsbolig i Dalsveien 45

Prosjektet omfatter oppføring av en enebolig og en tomannsbolig på eiendommen i Dalsveien 45. Byggene vil være boligfor…

πŸ“ Dalsveien 43E Oslo - Oslove