Alle byggesaker 7532 treff

🅿️
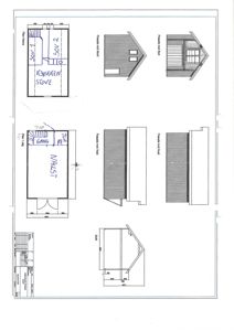
Demolition Garasje

Riving og gjenoppbygging av sjøbod i Molovegen 1

Prosjektet omfatter riving av eksisterende sjøbod og gjenoppbygging av denne som en utleiebolig på eiendommen Molovegen…

πŸ“ Molovegen 1 Karmøy
🅿️
Demolition Garasje

Riving og nybygg av uthus på Amdalsvegen 108

Prosjektet omfatter riving av eksisterende bod og oppføring av ny bygning med tilbygg til eksisterende uthus på eiendom…

πŸ“ Amdalsvegen 108 Sauda
🏘️
NewConstruction Tomannsbolig

Ny to-mannsbolig på Marketunet, Giske

Ny to-mannsbolig oppført på eiendommen Marketunet, Gnr 1, Bnr 682 i Giske kommune. Bygget består av to boenheter med se…

πŸ“ Marketunet Giske
🏠
Extension Enebolig

Tilbygg til enebolig i Glimmervegen 6, Raufoss

Ny tilbygg til eksisterende enebolig i Glimmervegen 6, Raufoss, er oppført og ferdigstilt. Tilbygget er en fysisk utvid…

πŸ“ Glimmervegen 6 Vestre Toten
Fotografi av en gul kum (spillvasspumpe) sett fra toppen, med en nordpil for orientering.
NewConstruction Tomannsbolig

Ny vertikaldelt tomannsbolig i Ramsdalen 20, Bømlo

Ny vertikaldelt tomannsbolig på totalt 144 m² BRA fordelt på to boenheter à 72 m² hver, med tilhørende boder og utvendi…

πŸ“ Ramsdalen 20A Bømlo
🏗️
NewConstruction Other

Oppføring av støyl på Reppan, Sordalshei

Ny oppføring av støyl på eiendommen Reppan, Gnr 7 Bnr 2, på Sordalshei. Prosjektet omfatter bygging av tradisjonell stø…

πŸ“ Sordal 413 Bygland
Tre 3D-visualiseringer (perspektivtegninger) av en planlagt bygning sett fra ulike vinkler.
NewConstruction Leilighetsbygg

Boligblokk med p-kjeller og forsamlingslokale i Furustubben 4, Askim

Prosjektet omfatter oppføring av en boligblokk bestående av fire sammenhengende bygg med til sammen 64 leiligheter, sam…

πŸ“ Furustubben 4 Indre Østfold
🏢
NewConstruction Leilighetsbygg

Oppføring av 12 boliger med utomhusanlegg i Hvetevegen 2-24

Prosjektet omfatter oppføring av 12 boliger i leilighetsbyggkategori, med tilhørende utomhusanlegg, carporter og parker…

πŸ“ Hvetevegen 10 Nannestad
Fasadetegning som viser bygningens utseende fra fire ulike vinkler (vest, øst, sør og nord).
NewConstruction Enebolig

Ny enebolig på Skinnhueneset, Bømlo kommune

Ny enebolig på 132,5 m² BRA med saltak oppføres på eiendom gnr 71, bnr 29 på Skinnhueneset. Boligen har ett plan med fl…

πŸ“ Skinnhueneset 88 Bømlo
🏬
NewConstruction Naeringsbygg

Oppføring av næringsbygg i Glimmerveien 7

Nytt næringsbygg oppføres på eiendommen Glimmerveien 7. Bygget er planlagt og gjennomført som et nybygg for næringsform…

πŸ“ Glimmerveien 7 Skiptvet
🅿️
NewConstruction Garasje

Oppføring og ferdigstillelse av garasje i Lyngrothveien 140

Ny frittstående garasje oppført på eiendommen i Lyngrothveien 140. Garasjen er et enkelt bygg i kategorien garasje, med…

πŸ“ Lyngrothveien 140 Froland
Fotografi av en betongponton (SF STD Betongponton 2,4m) i en naturlig omgivelse, sammen med en teknisk illustrasjon av produktet.
NewConstruction Other

Oppføring av fastbrygge og flytebrygge i Dr. Natvigs vei 10, Nesøya

Ny fastbrygge på 10 m² med dimensjoner 6,25 m lang og 1,6 m bred, utført i tre med plasstøpte betongfundamenter. I tilk…

πŸ“ Dr. Natvigs vei 10 Asker
🏗️
NewConstruction Other

Oppføring av flytebrygge ved Hestøya, Rødøy

Ny flytebrygge skal oppføres i sjøen ved Hestøya, tilknyttet eksisterende hytte på eiendommen Gnr 4, Bnr 4 i Rødøy komm…

πŸ“ 4/4 Rødøy
🏗️
Rehabilitation Other

Rehabilitering av pipe

Saken gjelder vedtak om rehabilitering av en pipe og søknad om ferdigattest for utskifting til ny stålpipe.

πŸ“ Ura 35 Sykkylven
Situasjonsplan som viser eiendomsinndeling, husnummer, arealer og koordinater for eiendommer i et område.
NewConstruction Tomannsbolig

Vertikaldelt tomannsbolig med integrert garasje i Brådalslia 26

Ny vertikaldelt tomannsbolig med integrert garasje på eiendommen Brådalslia 26 i Gjerdrum kommune. Boligen består av to…

πŸ“ Brådalslia 26A Gjerdrum
🏘️
NewConstruction Tomannsbolig

Vertikaldelt tomannsbolig med integrert garasje i Brådalslia 28

Ny vertikaldelt tomannsbolig med integrert garasje oppføres i Brådalslia 28, Gjerdrum. Boligen består av to boenheter m…

πŸ“ Brådalslia 28A Gjerdrum
Situasjonsplan som viser tomtedeling, eiendomsnummer (Hus nr 30, 35, 26), grenser, og koordinatliste for eiendommer.
NewConstruction Tomannsbolig

Oppføring av vertikaldelt tomannsbolig med garasje i Brådalslia 35

Ny vertikaldelt tomannsbolig med integrert garasje oppføres i Brådalslia 35. Boligen består av to boenheter som deler e…

πŸ“ Brådalslia 35A Gjerdrum
🏘️
NewConstruction Tomannsbolig

Vertikaldelt tomannsbolig med integrert garasje i Brådalslia 24

Ny vertikaldelt tomannsbolig med integrert garasje oppført i Brådalslia 24, Gjerdrum. Boligen består av to boenheter me…

πŸ“ Brådalslia 24A Gjerdrum
🏡
NewConstruction Fritidsbolig

Oppføring av to fritidsboligbygg med fire boenheter i Djupetjønn hyttegrend

To separate fritidsboligbygg oppført i Djupetjønn hyttegrend, hver med to boenheter, totalt fire boenheter. Byggene er …

πŸ“ Djupetjønn hyttegrend 6 Bykle
Situasjonsplan som viser tomtens grenser, nabolag (Hus nr 26), og koordinatliste for bygningens hjørner.
NewConstruction Tomannsbolig

Vertikaldelt tomannsbolig med integrert garasje i Brådalslia 22

Ny vertikaldelt tomannsbolig med integrert garasje på eiendommen Brådalslia 22 i Gjerdrum. Boligen består av to boenhet…

πŸ“ Brådalslia 22A Gjerdrum
Bildet viser en tegning med fasadeopprikk (fra fire sider) og en snittegning av en bygning.
ChangeOfUse Fritidsbolig

Bruksendring av naust til fritidsbolig i Gjerdsvikvegen, Gjerdsvika

Eksisterende naust på 120 m² med to etasjer og saltakskonstruksjon er ombygd til fritidsbolig. Bygningen har tre fasade…

πŸ“ Gjerdsvikvegen 103 Sande
🏠
NewConstruction Enebolig

Ny enebolig med garasje i Fagervollvegen 31

Ny enebolig med tilhørende garasje oppført på eiendommen i Fagervollvegen 31. Bygget er ferdigstilt og tatt i bruk med …

πŸ“ Fagervollvegen 31 Karmøy
🏡
NewConstruction Fritidsbolig

Ny fritidsbolig i Tjågevatn hyttefelt, Hovinvegen 504

Ny fritidsbolig på 148 m² bebygd areal og 114 m² bruksareal i ett plan oppføres i Tjågevatn hyttefelt, Gransherad. Boli…

πŸ“ Hovinvegen 504 Notodden
Fotografier fra en undersøkelse av havbunn som viser vegetasjon (gras) på ulike lokasjoner.
Demolition Other

Riving og nybygg av to naust med bryggeanlegg i Sørhåland, Karmøy

Prosjektet omfatter riving av et eksisterende naust på 40 m² og oppføring av to nye frittstående naust med samlet bebyg…

Karmøy