Alle byggesaker 7529 treff

Fasadetegning som viser bygningens utseende fra to vinkler (NVV og VSV) med detaljer om vinduer, dører og takform.
NewConstruction Tomannsbolig

Ny tomannsbolig med carporter på Farsundvegen 44/151, Sunnfjord

Ny tomannsbolig oppføres på eiendom gnr. 44, bnr. 151 i Sunnfjord kommune, med et samlet areal på 224,5 m² inkludert to…

Sunnfjord
3D-visualisering av en bygning (Havneportalen Horten) med belysning, vist i et snitt.
NewConstruction Naeringsbygg

Nytt næringsbygg Havneportalen i Strandpromenaden, Horten

Havneportalen er et nytt næringsbygg på eiendommen Strandpromenaden 1 og 3 i Horten, med fire etasjer og et bruksareal …

πŸ“ Tollbugata 1 Horten
Fasadetegning som viser bygningens ytre utseende sett fra sør (Fasade Sør), inkludert vinduer, takform og materialer.
Extension Enebolig

Tilbygg til våningshus i Svidalsvegen 363

Ny tilbygg på våningshus i Svidalsvegen 363 med totalt bruksareal på ca. 128 m² fordelt på to etasjer. Tilbygget har sa…

πŸ“ Svidalsvegen 358 Sunnfjord
Fotografi av en eksisterende bygning (hus) og en planlagt garasje med tilhørende terreng og vegger.
NewConstruction Garasje

Oppføring av garasje og arealoverføring på Skagevegen 119, Sande

Ny frittstående garasje på 69 m² med kjeller under bakkenivå bygges på eiendommen Skagevegen 119, 6973 Sande i Sunnfjor…

πŸ“ Skagevegen 119 Sunnfjord
3D-visualisering av et underjordisk avløpssystem (septiktank og filtergrøft) med en bygning i bakgrunnen.
NewConstruction Other

Oppføring av minirenseanlegg med infiltrasjon i Viksdalsvegen 73

Minirenseanlegg av typen August AT10 med kjemisk og biologisk rensing er oppført på eiendommen Viksdalsvegen 73. Anlegg…

πŸ“ Viksdalsvegen 73 Sunnfjord
Fasadetegning som viser oppriss av bygningens ytre form og høyder sett fra øst og vest.
VerticalExtension Naeringsbygg

Påbygg og ombygging av kafé- og servicebygg i Jølstravegen 3261

Ny 2. etasje påbygges over deler av eksisterende kafé- og servicebygg ved Skei Servicenter i Jølstravegen 3261. Påbygge…

πŸ“ Jølstravegen 3261 Sunnfjord
3D-perspektivtegning av en bygning (kveitehus) med innvendig og utvendig detaljering, inkludert maskiner og kjøretøy.
Extension Naeringsbygg

Tilbygg og ombygging av driftsbygning på Bjørkedalsvegen 98

Ny tilbygg på driftsbygning (fjøs) på Bjørkedalsvegen 98 med ombygging til lausdriftsfjøs og riving av eksisterende sil…

πŸ“ Bjørkedalsvegen 98 Sunnfjord
3D-visualisering av en modulær bygning (kanskje container) med angitte mål.
Extension Naeringsbygg

Ny aktivitetsanneks i Skomakerveien 50B, Horten

Ny frittliggende aktivitetsanneks på ca. 57,6 m² med en planlagt byggehøyde på ca. 3,15 meter oppføres på eiendommen Sk…

πŸ“ Skomakerveien 50A Horten
Fasadetegning som viser bygningens utseende sett fra nord-øst og syd-øst, med mål og vindusoppsett.
NewConstruction Enebolig

Ny enebolig med svømmebasseng i Eikveien 57, Horten

Ny enebolig i to etasjer på totalt 215 m² oppføres på en flat tomt på 936 m² i Eikveien 57, Horten. Boligen bygges i be…

πŸ“ Eikveien 57 Horten
Bildene viser en samling av fotografier og en teknisk illustrasjon av en antenneanlegg (mast) i en byggeplass. Det er to bilder av 'Eksisterende situasjon' og 'Ny situasjon' som viser området utenfra, og et bilde av 'Foto med ny masteseksjon' som viser masten i situasjon.
Extension Other

Forlenging og oppgradering av telekom-mast i Industrivegen 19

Eksisterende telekom-mast på Industrivegen 19 forlenges med en ny 6 meter høy modul, slik at total høyde blir 20,5 mete…

πŸ“ Industrivegen 19 Vik
Etasjeplan (Plan 1. Etasje 100) som viser romfordeling, møblering og konstruksjon for et hus.
NewConstruction Enebolig

Ny enebolig med garasje og pergola i Herman Smiths gate 20, Horten

Ny enebolig på 108,9 m² BRA med tilhørende frittliggende garasje og pergola på ca. 15 m² oppføres i Herman Smiths gate …

πŸ“ Herman Smiths gate 18C Horten
Fasadetegning av en garasje med oppriss fra fire ulike vinkler (front, side, og to perspektiviske utsnitt).
ChangeOfUse Enebolig

Bruksendring og tilbygg med garasje i Hans Heyerdahls vei 50C

Prosjektet omfatter sammenføyning av to boenheter til en enebolig med hybel/sokkelleilighet på ca. 300 m² BRA, inkluder…

πŸ“ Hans Heyerdahls vei 50C Horten
Et flyfoto (satellittbilde) av et kystområde med en strand, fjell og bebyggelse. Bildet er merket som 'Figur 3 Utklipp av flyfoto' og viser et geografisk område.
Extension Offentlig

Tilbygg til Nubben Barnehage i Flakstadveien 341, Ramberg

Ny utvidelse av Nubben Barnehage med et tilbygg på ca. 150-200 m² i én etasje, tilpasset eksisterende bygningsmasse. Ti…

πŸ“ Flakstadveien 341 Flakstad
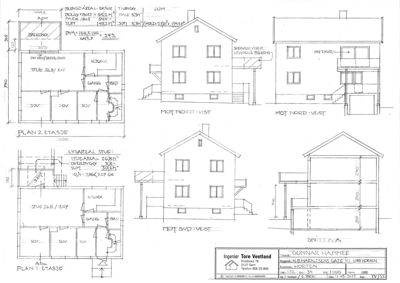
Bildet viser etasjeplaner (1. og 2. etasje) samt fasade- og snittegninger for en bolig.
FacadeChange Enebolig

Utvidelse av balkong på tomannsbolig i H B Haraldsens gate 10

Utvidelse av eksisterende balkong i andre etasje på tomannsbolig i H B Haraldsens gate 10. Balkongen plasseres nærmere …

πŸ“ H B Haraldsens gate 10 Horten
Fotografi av en bolig med garasje og en markert linje på grusflaten som indikerer plassering av garasjen på tomten.
NewConstruction Garasje

Ny frittstående garasje med loft på Halsevegen 26, Longva

Ny frittstående garasje på 64 m² (8x8 meter) med saltak og loft under mønehøyde 5,1 meter bygges på eiendommen Halseveg…

πŸ“ Halsevegen 26 Haram
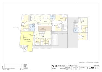
Etasjeplan (Plan 2. etasje) som viser romfordeling, vegger og innganger for et hus.
FacadeChange Leilighetsbygg

Fasadeendring og etasjeskille i leilighetsbygg, Langgata 27

Prosjektet omfatter fasadeendring på vestfasaden av et eksisterende leilighetsbygg i Langgata 27, hvor et eksisterende …

πŸ“ Thranes gate 3A Horten
Fasadetegning (opprikk) av en bygning sett fra fronten, med mål og detaljer.
Extension Naeringsbygg

Tilbygg til industribygg i Toralfvegen 105, Fjørtoft

Ny utvendig tilbygg på ca. 130 m² til eksisterende industribygg på Toralfvegen 105. Tilbygget oppføres i én etasje med …

πŸ“ Toralfvegen 103 Haram
Fotografi av en trapp med tretrinn og håndtak, sett fra inngangen nedover.
NewConstruction Enebolig

Ny enebolig med næringslokale i sokkeletasje på Øverbygdveien 1767

Ny enebolig på totalt 361 m² bruksareal fordelt på to etasjer og sokkeletasje med næringslokale. Bygget har saltak og t…

πŸ“ Øverbygdveien 1767 Målselv
🏠
Extension Enebolig

Tilbygg med ny fasade og vinterhage på enebolig i Øverli

Tilbygg på en eksisterende enebolig i Øverli som inkluderer en ny fasade og en vinterhage. Prosjektet innebærer fysisk …

πŸ“ Øverliveien 20A Målselv
🏠
Extension Enebolig

Renovering og tilbygg på enebolig, Gnr 67 Bnr 32

Prosjektet omfatter renovering av eksisterende enebolig samt oppføring av et tilbygg. Bygget er en enebolig hvor det er…

πŸ“ Rundmoveien 299 Målselv
🌾
NewConstruction Landbruk

Ny lagerhall for landbruksformål på Gnr 30 Bnr 10

Ny lagerhall oppføres på eiendommen Gnr 30 Bnr 10 med formål til landbruk. Bygget vil fungere som lager for landbruksut…

πŸ“ Mellombygdveien 1331 Målselv
Fotografi av Tittakshavet sett fra Stråkjølet, med et rødt sirkelmerke som markerer plasseringen av det planlagte tiltaket.
NewConstruction Other

Ny naust, molo og flytebrygge på Tennfjordneset 223

Ny naust på 45 m² med saltak og trevegger plassert i skrånende terreng ved Tennfjordneset 223. Naustet har mønehøyde 4,…

πŸ“ Tennfjordneset 223 Haram
Fotografi av en liten rød bygning med grønt tak (sannsynligvis et jordtak) sett fra en asfaltert overflate. Bakgrunnen viser et fjellandskap med skog og fjell.
NewConstruction Other

Nytt skytterhus med kontor, WC og lager i Vestrefjordvegen 481

Nytt skytterhus oppføres som en brakkerigg bestående av 24 fundamenterte moduler, med samlet bruksareal på ca. 99 m² og…

πŸ“ Vestrefjordvegen 481 Haram
🏠
NewConstruction Enebolig

Ferdigattest for enebolig på Ospevegen 23, Store Kalvøy

Ny enebolig oppført på eiendommen Ospevegen 23, Store Kalvøy. Boligen er prosjektert og bygget i henhold til gjeldende …

πŸ“ Ospevegen 23 Haram