Enebolig 1716 treff

En tegning som viser fasadeoppsett for en bolig (mot SØ, VEST, SØR, NORD) samt et snitt og et etasjeplan.
ChangeOfUse Enebolig

Bruksendring, fasadeendring og tilbygg på Enebolig, Østbakken 4

Eneboligen på Østbakken 4 gjennomgår en bruksendring fra tilleggsdel til hoveddel i deler av underetasjen, med tilhøren…

πŸ“ Østbakken 4 Fredrikstad
Fasadetegning som viser en ny enebolig med omgivende bebyggelse.
NewConstruction Enebolig

Ny enebolig og fasadeendring i Kråkerøyveien 37, Fredrikstad

Prosjektet omfatter oppføring av en ny frittstående enebolig på 114,6 m² BRA fordelt på to etasjer med saltak tekket me…

πŸ“ Kråkerøyveien 37 Fredrikstad
Fotografi av en underjordisk eller halvunderjordisk gang i en bygning under ombygging eller vedlikehold. Bildet viser råbetongvegger, gulv med grus, rør og byggemateriale.
Extension Enebolig

Tilbygg og ombygging av enebolig i Engelsvikenveien 108

Prosjektet omfatter tilbygg og ombygging av en eksisterende enebolig på Engelsvikenveien 108 i Fredrikstad kommune. Til…

πŸ“ Engelsvikenveien 108 Fredrikstad
Satellittbilde (Google Maps) av eiendom med to bygninger og en rød markør.
Extension Enebolig

Tilbygg inntil 50 m² på enebolig i Borgeveien 37A, Fredrikstad

Ny tilbygg på ca. 28-40 m² i én etasje med ringmurfundament, plassert ved gavlvegg mot sør på en eksisterende to-etasje…

πŸ“ Borgeveien 37A Fredrikstad
🏠
VerticalExtension Enebolig

Innbygging balkonger og tilbygg

Ferdigattest utstedt for innbygging av balkonger og et tilbygg på eiendom i Nabbetorpveien 157.

πŸ“ Nabbetorpveien 157A Fredrikstad
Perspektivtegning (rendering) av en bolig med to fasader, tegnet i arkitektkontor.
Extension Enebolig

Tilbygg og terrasse med rekkverk på Søndre Rekvin 1, Fredrikstad

Ny terrasse (veranda) i 2. etasje mot vest med tilhørende skyvedør og mindre fasadeendringer på eksisterende enebolig i…

πŸ“ Søndre Rekvin 1 Fredrikstad
Bildet viser to fasadetegninger (sør og øst) av en bolig, inkludert detaljer som vinduer, dører, takform og trapper. Det er også tegninger med menneskefigurer for skala.
ChangeOfUse Enebolig

Bruksendring og tilbygg med terrasse i Poul Rønns gate 8

Bruksendring av kjelleretasjen i en enebolig fra tilleggsdel til hoveddel, inkludert flytting av inngangsdør for intern…

πŸ“ Poul Rønns gate 8 Fredrikstad
Situasjonsplaner som viser bygningers plassering i forhold til nabogrenser, byggelinjer og høydemål.
Extension Enebolig

Tilbygg med utestue og glassvegger på Bratthammeren 20

Ny utestue på 14,7 m² bygges som tilbygg på eksisterende terrasse i sørenden av eneboligen på Bratthammeren 20. Utestue…

πŸ“ Bratthammeren 10 Fredrikstad
🏠
NewConstruction Enebolig

Ny enebolig i Blålyngveien 1, Rena

Ny enebolig oppført på eiendommen Blålyngveien 1, 2450 Rena. Bygget er et frittstående boligbygg som har gjennomgått et…

πŸ“ Blålyngveien 1 Åmot
🏠
VerticalExtension Enebolig

Påbygg og riving av uthus på Julussdalsveien 23

Ny påbygg/tilbygg på eksisterende enebolig med et areal på 98 m² oppføres med pulttak, som avviker fra eksisterende sal…

πŸ“ Gamle Julussdalsveien 23 Åmot
🏠
NewConstruction Enebolig

Ny enebolig på Blekmyrmoen 97

Ny enebolig skal oppføres på eiendommen Blekmyrmoen 97. Prosjektet omfatter et frittstående boligbygg beregnet for en f…

πŸ“ Blekmyrmoen 97 Åmot
🏠
Extension Enebolig

Utvendig tilbygg på enebolig i Vannverksveien 9

Ny utvidelse av enebolig med tilbygg som inkluderer utvidelse av stue og bad med tilhørende vaskerom, oppføring av nytt…

πŸ“ Vannverksveien 9 Åmot
🏠
NewConstruction Enebolig

Ny enebolig med fradeling i Fagratunveien 24

Ny enebolig planlegges oppført på en nyfradelt tomt i Fagratunveien 24. Prosjektet omfatter etablering av bolig på egen…

πŸ“ Fagratunvegen 24 Malvik
🏠
FacadeChange Enebolig

Fasadeendring på enebolig, Bjørnmyra 15

Endring av farge på fasaden til en eksisterende enebolig på Bjørnmyra 15. Prosjektet omfatter kun overflatebehandling a…

πŸ“ Bjørnmyra 15 Malvik
🏠
Extension Enebolig

Utvendig tilbygg under 50 m² på Uglevegen 10

Ny utvendig tilbygg på enebolig i Uglevegen 10 med et areal mindre enn 50 m². Tilbygget vil utvide boligens bruksareal …

πŸ“ Uglevegen 10 Stjørdal
Fotografi av en nordvegg med dusj, inkludert dusjhode, slange, veggventil og del av en rund speil eller badekar.
Extension Enebolig

Tilbygg på enebolig i Heiavegen 28, Snåsa

Ny tilbygg på enebolig i Heiavegen 28 med en etasje og saltak tekket med tegl. Tilbygget inkluderer oppgraderinger av v…

πŸ“ Heiavegen 28 Snåase - Snåsa
Tre 3D-visualiseringer (perspektivtegninger) av en planlagt hytte med terrasse og veranda.
Extension Enebolig

Innbygging og ny veranda på bolig, Frueskovegen 17

Eksisterende åpen veranda bygges inn som en del av boligens oppholdsareal, med en økning i P-rom på 8,34 m². Den gamle …

πŸ“ Frueskovegen 17 Snåase - Snåsa
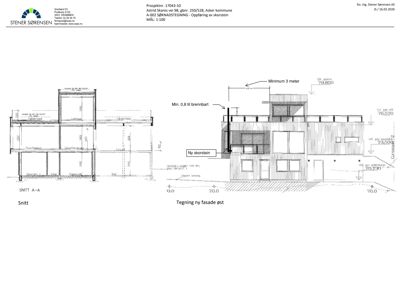
Tegning som viser snitt (Snitt A-A) og fasade (Tegning ny fasade øst) for en bygning med ny skorstein.
Extension Enebolig

Oppføring av stålpipe på enebolig, Astrid Skares vei 98

Ny stålpipe monteres på eksisterende enebolig i Astrid Skares vei 98. Pipa er en Jøtul NVI 2000 stålpipesystem, hel- og…

πŸ“ Astrid Skares vei 98 Asker
3D-visualisering (perspektiv) av en planlagt bolig med tre ulike vinkler.
NewConstruction Enebolig

Ny enebolig med garasje på Veldevegen 7, Avaldsnes

Ny enebolig på 165,2 m² BRA med tilhørende garasje på 18 m² oppføres på Veldevegen 7. Boligen har ett plan med rom som …

πŸ“ Veldevegen 7 Karmøy
3D-visualisering (rendering) som viser en bygning med garasje og omgivende natur i et landskap.
Extension Enebolig

Tilbygg, påbygg og nybygg på enebolig i Stølsbakken 27

Prosjektet omfatter omfattende endringer på eneboligen i Stølsbakken 27, inkludert riving av et eksisterende tilbygg, o…

πŸ“ Stølsbakken 27 Karmøy
Fasadetegning som viser bygningens utsyn fra alle fire sider (Nord, Vest, Syd, Øst).
Rehabilitation Enebolig

Endring av innvendig bærekonstruksjon i Fjellstadveien 13A

Prosjektet omfatter fjerning av en eksisterende bærende vegg i en bolig og etablering av ny bærekonstruksjon bestående …

πŸ“ Fjellstadveien 13A Asker
3D-visualisering av en moderne, svart og grå villa sett fra siden, plassert på en grønn bakke.
NewConstruction Enebolig

Ny enebolig med garasje, terrasse og mur i Torvastadvegen 592, Osnes

Ny enebolig på totalt 188,9 m² BRA fordelt på to etasjer med saltak og flatt tak, oppført i tre. Bygget inkluderer en g…

πŸ“ Torvastadvegen 592 Karmøy
Situasjonsplan som viser bygningens plassering i forhold til nabolaget, veier og grunneiergrenser.
Rehabilitation Enebolig

Rehabilitering av pipe på Hovedgaten 78 B, Kopervik

Rehabilitering av en gammel pipe i en enebolig på Hovedgaten 78 B i Kopervik. Prosjektet omfatter installasjon av pipef…

πŸ“ Hovedgaten 78B Karmøy
Snittegning som viser terrengprofilen (høydekurver) for området nordvest og nordøst for bygningen.
NewConstruction Enebolig

Ny enebolig med leilighet og garasje på Gamle Syrevegen 59A

Ny enebolig med tilhørende leilighet og frittstående garasje planlegges oppført på eiendommen Gamle Syrevegen 59A. Pros…

πŸ“ Gamle Syrevegen 59A Karmøy