Enebolig 1716 treff

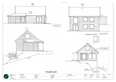
Fasadetegning som viser bygningens utseende fra fire sider (øst, nord, vest og syd) med mål og detaljer.
Extension Enebolig

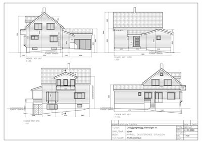
Tilbygg og fasadeendring på enebolig i Rønningen 41, Asker

Ny utvidet veranda og tilbygg på 25 m² BYA på en eksisterende enebolig i Rønningen 41, Asker. Tilbygget består av utven…

πŸ“ Rønningen 41 Asker
Fotografier (101-104) av befaringen i Furubakken 9B, som viser skredmasser, steinsprangblokker og vegetasjon.
NewConstruction Enebolig

Ny enebolig med to garasjer på Furubakken 9B, Hvalstad

Ny enebolig over to etasjer med integrert sekundær boenhet (hybel) i hovedetasjen på Furubakken 9B, Hvalstad. Boligen h…

πŸ“ Furubakken 9B Asker
Fotografi av en bygning under oppføring eller renovering, sett fra et lavt vinkel med trær i forgrunnen.
Extension Enebolig

Tilbygg, bruksendring og konstruksjonsendring i Røykenveien 189C

Prosjektet omfatter en omfattende oppgradering av en eksisterende enebolig med sokkelleilighet i Røykenveien 189C. Det …

πŸ“ Røykenveien 189C Asker
3D-visualisering (rendering) av et hus sett fra en vinkel som viser tak, fasade og omgivelser. Bildet inneholder også mindre detaljerte utsnitt av samme bygning.
Extension Enebolig

Tilbygg, ny garasje og støttemur på Ralph Tambs vei 1

Prosjektet omfatter oppføring av et tilbygg til eksisterende enebolig, ny frittstående dobbelgarasje med underetasje, s…

πŸ“ Ralph Tambs vei 1 Asker
3D-visualisering (rendering) av et utendørs aktivitetsområde med lekeplass og uteoppholdsareal.
VerticalExtension Enebolig

Endring av rekkverk og sportsbod på enebolig, Gjellumlia 3C, Asker

Ny enebolig med integrert garasje og sekundærleilighet på totalt ca. 332 m² BRA, oppført i tre med saltak teglstein. Bo…

πŸ“ Gjellumlia 3C Asker
Fasadetegning som viser bygningens utseende fra fire ulike vinkler (nordøst, nordvest, sørøst og sørvest).
ChangeOfUse Enebolig

Bruksendring av sportsbod og bod til soverom i Søndre vei 42

Bruksendring av eksisterende sportsbod og bod på til sammen ca. 9,5 m² i en enebolig til et soverom. Veggen mellom spor…

πŸ“ Søndre vei 42 Asker
Fugleperspektiv (3D-visualisering) av et hus på en tomt med omgivende bebyggelse og natur.
NewConstruction Enebolig

Nybygg av to eneboliger med underjordisk garasje i Sundveien 47, Nesøya

Prosjektet omfatter oppføring av to frittliggende eneboliger på Sundveien 47, Nesøya, hver med kjeller, underetasje, 1.…

πŸ“ Sundveien 47A Asker
Fasadetegning som viser fire sider av en bygning sett fra utsiden.
ChangeOfUse Enebolig

Bruksendring og fasadeendring på enebolig i Vollenlia 63

Bruksendring av kjeller i en enebolig på 147,7 m² fra tilleggsdel til hoveddel med etablering av bad, bod og kjellerstu…

πŸ“ Vollenlia 63 Asker
Håndskrevne prinsippskisser som viser ulike fasade- og takløsninger for en bygning, inkludert etasjeplaner og detaljer om glassvegger og takhøyder.
VerticalExtension Enebolig

Påbygg, fasadeendring og bruksendring på enebolig i Midtre Gunnaråsen 18

Prosjektet omfatter et påbygg over eksisterende integrert garasje på en enebolig i Midtre Gunnaråsen 18. Påbygget utvid…

πŸ“ Midtre Gunnaråsen 18 Asker
Fotografi av en moderne villa sett fra siden, plassert på en skråning.
NewConstruction Enebolig

Ny enebolig med garasje i Sjølystveien 41, Sætre

Ny enebolig med totalt bruttoareal på ca. 218,8 m² fordelt på underetasje (120,5 m²) og 1. etasje (98,3 m²). Boligen ha…

πŸ“ Sjølystveien 41 Asker
Fasadetegning som viser bygningens utsyn fra fire sider (Sør, Nord, Vest og Øst) med mål og detaljer.
FacadeChange Enebolig

Fasadeendring med utskifting av vinduer på Isveien 64

Fasadeendring på en enebolig i Isveien 64 som omfatter utskifting av eksisterende vinduer og dører som er ca. 38 år gam…

πŸ“ Isveien 64 Asker
Bildet viser to fotografier av en vei og et terreng med markerte områder for berggrunn, samt en situasjonskart under.
NewConstruction Enebolig

Ny enebolig med garasje i underetasje, Røykenveien 284

Ny enebolig på totalt 428,6 m² fordelt på tre etasjer med garasje i underetasjen på 38,3 m². Bygget har betongfasader o…

πŸ“ Røykenveien 284A Asker
Fasadetegning som viser en eksisterende bygning og en planlagt endring (nytt), med fokus på vinduer og inngang.
FacadeChange Enebolig

Fasadeendring med veranda og vindusskifte i Rosenkrantz vei 5E

Fasadeendring på en eksisterende enebolig fra 1986 med et samlet areal på 105 m². Prosjektet inkluderer innbygging av v…

πŸ“ Rosenkrantz vei 5E Asker
🏠
Extension Enebolig

Tilbygg til enebolig på Frøtvedtveien 30B

Ny utvidelse av eksisterende tilbygg på enebolig i to etasjer med et samlet bruksareal på 43 m². Tilbygget inkluderer e…

πŸ“ Frøtvedtveien 30A Asker
Fasadetegning som viser bygningens utseende fra nord og vest, inkludert takform, vinduer, dører og terrasser.
NewConstruction Enebolig

Ny enebolig med garasje i Transetkroken 4, Røyken

Ny enebolig i to etasjer med totalt 194 m² BRA og tilhørende dobbelgarasje med integrert sportsbod på 37,9 m² oppføres …

πŸ“ Transetkroken 4 Asker
Fotografi av en bygning under oppføring eller renovering, sett gjennom et vindu. Bildet viser fasaden med rødt tak, vinduer og deler av konstruksjonen.
ChangeOfUse Enebolig

Bruksendring og fasadeendring på enebolig, Trettestykket 66

Eksisterende enebolig på Trettestykket 66 gjennomgår bruksendring hvor underetasjen endres fra tilleggsdel til hoveddel…

πŸ“ Trettestykket 66 Asker
3D-visualisering (rendering) av en bygning sett fra en vinkel, med skyer og terreng i bakgrunnen.
NewConstruction Enebolig

Ny enebolig med garasje i Aumliveien, Tynset

Ny enebolig på ett plan med universell utforming og integrert garasje oppføres på tomt B5 i Arnemo boligområde, Tynset.…

πŸ“ Aumliveien 10 Tynset
🏠
Extension Enebolig

Tilbygg på enebolig i Leirbukt 6

Ny tilbygg på eksisterende enebolig på adressen Leirbukt 6. Tilbygget vil utvide boligens areal og funksjonalitet, og k…

πŸ“ Leirbukt 6 Nordreisa - Ráisa - Raisi
🏠
NewConstruction Enebolig

Ferdigattest for enebolig på Leirbukt 12

Ferdigattest for en ny enebolig på adressen Leirbukt 12. Prosjektet omfatter en frittstående bolig beregnet for en fami…

πŸ“ Fossvoll, Leirbukt 12 Nordreisa - Ráisa - Raisi
Fasadetegning som viser oppriss av en bygning sett fra utsiden, med merking av byggetrinn og takkonstruksjon.
Extension Enebolig

Riving og nytt tilbygg på enebolig i Heggeslåvegen 220

Nytt tilbygg på 30 m² oppføres på en enebolig i Heggeslåvegen 220, som erstatter et eldre tilbygg på ca. 15-19,5 m² som…

πŸ“ Heggeslåvegen 220 Nord-Fron
3D-visualisering (rendering) av en bolig med omgivelser, sett fra et bestemt perspektiv.
NewConstruction Enebolig

Ny enebolig med garasje i Arnemo, Tynset

Ny toetasjes enebolig med saltak og tilhørende frittliggende garasje med pulttak oppføres på tomt B4 i Arnemo boligfelt…

πŸ“ Aumliveien 39 Tynset
Bildet viser en tegning med to deler: øverst en grunnplan (5,8 m x 3,9 m) og nederst en utsjåning mot Haindalsveien (2,1 m bred).
Extension Enebolig

Fasadeendring, terrasse og garasjeutvidelse i Haukedalsveien 17

Prosjektet omfatter en fasadeendring på eksisterende enebolig i tre med saltak og teglstein, inkludert fornyelse av fas…

πŸ“ Haukedalsveien 17 Bergen
Fasadetegninger som viser bygningens utseende fra alle fire sider (Nord, Vest, Sør, Øst) med mål 1:100.
Extension Enebolig

Tilbygg, balkong og fasadeendring på enebolig i Standalshågen 18

Ny balkong på ca. 41 m² og tilbygg til eksisterende enebolig på Standalshågen 18 med samlet bebygd arealøkning på 41 m²…

πŸ“ Standalshågen 18 Øksnes
Fotografi av et eksisterende bygg (NAF-øvingsbanen) sett fra sør med bom i nord, inkludert tilhørende tekst og logo.
Extension Enebolig

Tilbygg med kontor og venterom på Torvmyrane 40, Ørsta

Ny tilbygg på ca. 50 m² til eksisterende bygning ved NAF Øvingsbaner på Torvmyrane 40 i Ørsta kommune. Tilbygget inneho…

πŸ“ Torvmyrane 40 Ørsta