Enebolig 2128 treff

🏠
NewConstruction Enebolig

Ny enebolig i kjede med garasje på Sørbøhagane B11 KS7

Ny enebolig i kjede med tilhørende garasje oppføres på eiendommen Sørbøhagane B11 KS7. Boligen er del av et kjedehuspro…

πŸ“ Sørbøhagane B11 KS7 Sandnes
🏠
Extension Enebolig

Flytting, rehabilitering og tilbygg til enebolig i Dansenveien 9

Prosjektet omfatter flytting av eksisterende enebolig, omfattende rehabilitering av bygningen, samt oppføring av et til…

πŸ“ Dansenveien 9 Sandnes
🏠
Extension Enebolig

Innglassing av balkong i Kaiveien 13

Innglassing av eksisterende balkong på en enebolig i Kaiveien 13. Prosjektet innebærer montering av glassfelt rundt bal…

πŸ“ Kaiveien 13 Sandnes
🏠
NewConstruction Enebolig

Oppføring av bolig med garasje og opparbeidelse av tomt

Søknad om tillatelse til oppføring av bolig med garasje og opparbeidelse av tomt, men ingen detaljert beskrivelse av ti…

πŸ“ Breivikbakken 38 Sandnes
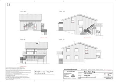
Fasadetegning som viser bygningens utseende fra fire sider: Nord, Vest, Sør og Øst.
Extension Enebolig

Tilbygg med verandaer på enebolig i Ryggaveien 15

To nye tilbygg med veranda/luftebalkonger i to etasjer bygges på en eksisterende enebolig i Ryggaveien 15. Tilbygget på…

πŸ“ Ryggaveien 15 Ørland
Bildet viser en side-til-side sammenligning. Øverst er et fotografi av en eksisterende bygning (Muusøya 36) i snø. Nederst er en 3D-visualisering (rendering) av den planlagte fasadeendringen mot vei, syd.
Extension Enebolig

Tilbygg og rehabilitering av enebolig på Muusøya 36, Drammen

Ny moderne tilbygg på 47 m² erstatter eldre tilbygg/anneks som rives, og hovedhuset fra 1882 med tilbygg fra 1956 bevar…

πŸ“ Muusøya 36 Drammen
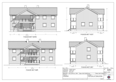
Fasadetegning som viser bygningens utseende fra fire sider (Nord, Vest, Sør, Øst) med detaljer om vinduer, dører og takform.
ChangeOfUse Enebolig

Bruksendring av loft til stue/soverom i Sørsundveien 26

Bruksendring av loft i en enebolig på Sørsundveien 26 til stue og/eller soverom. Loftet har fått satt inn to nye vindue…

πŸ“ Sørsundveien 26 Kristiansund
Fasadetegning som viser bygningens utseende fra fire ulike vinkler (Fasade 1-4).
ChangeOfUse Enebolig

Påbygg, tilbygg og bruksendring i Ivar Aasens gate 16, Kristiansund

Prosjektet omfatter påbygg med to takopplett mot nord, tilbygg som utvidelse av verandaer i plan 2 og 3, samt fasadeend…

πŸ“ Ivar Aasens gate 16 Kristiansund
🏠
Extension Enebolig

Tilbygg og bruksendring på enebolig i Lerpeveien 155

Prosjektet omfatter et tilbygg og bruksendring på en eksisterende enebolig i Lerpeveien 155 med et bruksareal på 180 m²…

πŸ“ Lerpeveien 155 Drammen
Illustrasjon som viser hvordan ulike arealer (bebygd, bruks og brutto) måles på en bygning.
Extension Enebolig

Tilbygg og bruksendring på enebolig i Snippen 34, Berger

Ny innredning av loftsetasje som bruksendring fra tilleggsdel til hoveddel med to soverom og gang/trapperom. Innlemming…

πŸ“ Snippen 34 Drammen
🏠
NewConstruction Enebolig

Ny enebolig med garasje og mur i Kapellanveien 30

Ny enebolig oppføres på eiendommen i Kapellanveien 30 etter riving av eksisterende bolig og garasje. Prosjektet inklude…

πŸ“ Kapellanveien 30 Sandnes
Luftfoto av en bygning med en annotasjon som peker på røyk- eller ventilasjonsrør som skal rehabiliteres.
Rehabilitation Enebolig

Rehabilitering av skorstein i Smedstuveien 3, Slattum

Rehabilitering av to eksisterende skorsteiner i en enebolig ved Smedstuveien 3 i Slattum. Arbeidet består i innvendig m…

πŸ“ Smedstuveien 1C Nittedal
🏠
Extension Enebolig

Oppgradering av enebolig i Ryfylkeveien 1211

Oppgradering av eksisterende enebolig i Ryfylkeveien 1211 med ulike tiltak som forbedrer boligens funksjonalitet og sta…

πŸ“ Ryfylkeveien 1211 Sandnes
Fasadetegning som viser bygningens utsyn fra fire ulike vinkler (for, bak, venstre og høyre side).
Extension Enebolig

Tilbygg soverom til enebolig på Veståsen 3

Ny tilbygg på 15 m² til eksisterende enebolig på Veståsen 3, bestående av et soverom som erstatter en tidligere gang på…

πŸ“ Veståsen 3 Aurskog-Høland
Fotografi av en enebolig med garasje og hage, tatt fra en eiendomsmegningsside.
ChangeOfUse Enebolig

Bruksendring av loft i enebolig på Nedre Nygård 2B

Bruksendring av loft i en eksisterende enebolig på Nedre Nygård 2B, hvor loftsarealet innredes til varig opphold med ba…

πŸ“ Nedre Nygård 2B Nittedal
Bildet viser en tegning av Øst fasaden med en planlagt endring øverst og en eksisterende situasjon nederst.
Extension Enebolig

Tilbygg og påbygg på enebolig i Stasjonsveien 23A

Prosjektet omfatter oppgradering og delvis ombygging av en eksisterende enebolig og garasje på Stasjonsveien 23A. Det i…

πŸ“ Stasjonsveien 23A Nittedal
Fasadetegning som viser utsiden av en bygning fra to vinkler (Nord-øst og Nord-vest).
NewConstruction Enebolig

Ny enebolig med garasje på Sørliveien 53C, Nittedal

Ny enebolig i to etasjer med saltak og takvinkel på 31 grader oppføres på Sørliveien 53C i Nittedal. Boligen har et bru…

Nittedal
En håndtegnet fasadetegning (opprikk) av en bygning sett fra nord, med angitte mål og grenser.
Extension Enebolig

Utvendig tilbygg vinterhage på Timoteivegen 18, Kleppe

Ny vinterhage på 21 m² bygges som et utvendig tilbygg til en eksisterende enebolig på Timoteivegen 18 i Kleppe. Tilbygg…

πŸ“ Timoteivegen 18 Klepp
Bildet viser fire 3D-visualiseringer (perspektivtegninger) av et planlagt hus og dets omgivelser.
NewConstruction Enebolig

Ny enebolig med garasje i Dynjarvegen, Klepp

Ny enebolig på 223,5 m² BRA fordelt på to etasjer med saltak og trefasade. Boligen har en hoveddel i to etasjer og en t…

πŸ“ Dynjarvegen 1 Klepp
Bildet viser en tegning med flere etasjeplaner (floor plans) og fasadetekninger for en bygning. Det er også synlig en teknisk detaljtegning av takkonstruksjon.
VerticalExtension Enebolig

Påbygg med balkong på enebolig i Solbakken 6

Påbygg på eksisterende enebolig i Solbakken 6 med oppføring av ny balkong. Prosjektet innebærer konstruksjonsmessige en…

πŸ“ Solbakken 6 Klepp
Fasadetegning som viser tre utsnitt av en hytte sett fra ulike sider (vest, øst og nord).
Extension Enebolig

Tilbygg på enebolig i Pollestadmyra 4

Ny tilbygg på 12,5 m² til eksisterende enebolig i Pollestadmyra 4. Tilbygget vil øke boligens bebygde areal fra 188,5 m…

πŸ“ Pollestadmyra 4 Klepp
3D-perspektivtegning (rendering) av en husmodell i et landskap.
ChangeOfUse Enebolig

Bruksendring og tilbygg på enebolig i Rudsteinveien 9B, Nittedal

Enebolig på Rudsteinveien 9B med totalt 277,5 m² BRA gjennomgår bruksendring fra bolig med sokkelleilighet til bolig me…

πŸ“ Rudsteinveien 9A Nittedal
Fasadetegning som viser bygningens utseende sett fra nord og øst.
NewConstruction Enebolig

Ny enebolig med garasje i Vuttuvegen 9, Ålvundfjord

Ny enebolig på totalt 269 m² BRA fordelt på to etasjer bygges i Vuttuvegen 9, Ålvundfjord. Bygget har saltak og trekled…

πŸ“ Vuttuvegen 9 Sunndal
🏠
Extension Enebolig

Utvendig tilbygg under 50 m² på Utsiktsvegen 11

Ny utvendig tilbygg på 23 m² med tak over terrasse til en enebolig på Utsiktsvegen 11. Tilbygget plasseres i henhold ti…

πŸ“ Utsiktsvegen 11 Klepp