Enebolig 2117 treff

Tegning som viser fasadeopprikk for en bygning sett fra to ulike sider (sør-øst og nord-øst).
NewConstruction Enebolig

Ny enebolig med garasje i Vipevegen 21, Hå

Ny enebolig med tilhørende garasje oppført på eiendommen Vipevegen 21 i Hå kommune. Boligen har et samlet bruksareal på…

πŸ“ Vipevegen 21
3D-visualisering av en villa med navn 'Preståsen 20', som viser fasade, balkonger og omgivelser.
NewConstruction Enebolig

Ny enebolig med garasje og basseng i Preståsen 20, Blommenholm

Ny frittliggende enebolig på totalt 462 m² BRA fordelt på underetasje, 1. og 2. etasje, med tradisjonell arkitektur ins…

πŸ“ Preståsen 20 Bærum
🏠
NewConstruction Enebolig

Ny enebolig og garasje på Skjepavikjo 153

Ny enebolig med tilhørende frittstående garasje planlegges oppført på eiendommen Skjepavikjo 153. Prosjektet inkluderer…

πŸ“ Skjepavikjo 123 Tysnes
🏠
Extension Enebolig

Tilbygg med garasje og trapperom i Ola Dahls gate 3B, Otta

Ny tilbygg på enebolig i Ola Dahls gate 3B bestående av en garasje på 128,2 m² og et trapperom på 16,3 m². Bygget er pl…

πŸ“ Ola Dahls gate 3B Sel
🏠
NewConstruction Enebolig

Ny enebolig på Grønåsen 11

Ny enebolig skal oppføres på eiendommen Grønåsen 11. Prosjektet omfatter bygging av en frittstående bolig med tilhørend…

πŸ“ Grønåsen 11 Tysnes
Byggemelding som viser fasadetegninger for Nord- og Østfasade med høydemål.
Extension Enebolig

Ombygging og tilbygg med garasje i Myrlandsvegen 8A, Ålesund

Prosjektet omfatter omfattende ombygging av en eksisterende enebolig fra 1969 på Myrlandsvegen 8A i Ålesund. Det bygges…

πŸ“ Myrlandsvegen 8A Ålesund
Fotografi av en grå villa med garasje og hage sett fra veien.
FacadeChange Enebolig

Fasadeendring og veranda på enebolig, Adamshaven 23

Ny veranda på ca. 25 m² med utkragning på 1,2 meter fra fasadelivet på en eksisterende enebolig i Adamshaven 23. Verand…

πŸ“ Adamshaven 23 Arendal
3D-visualisering (rendering) av en husfasade sett fra sørvest.
Extension Enebolig

Ny tilbygg med bad og vaskerom i Molladalsvegen 109

Ny tilbygg på ca. 17,6 m² BRA til eksisterende enebolig i Molladalsvegen 109. Tilbygget er plassert på østfasaden og in…

πŸ“ Molladalsvegen 109 Ørsta
🏠
NewConstruction Enebolig

Ny enebolig på Nordskogen 32

Ny enebolig oppføres på eiendommen Nordskogen 32. Prosjektet omfatter et frittstående boligbygg med tilhørende fasadeen…

πŸ“ Nordskogen 32 Nore og Uvdal
🏠
Extension Enebolig

Utvidelse av terrasse på Langesandveien 34, Tvedestrand

Utvidelse av eksisterende terrasse ved enebolig på Langesandveien 34 i Tvedestrand kommune. Terrassen er fysisk utvidet…

πŸ“ Langesandveien 34 Tvedestrand
Fotografi av en bygning som er sterkt innvokst med buskvekst.
Demolition Enebolig

Riving av våningshus i Bergsvegen 60, Volda

Eksisterende våningshus i Bergsvegen 60, Volda, oppført mellom 1875 og 1899, rives. Bygningen har stått til forfall sid…

πŸ“ Bergsvegen 60 Volda
Fotografi av en bygning som har blitt brent ned, med rester av takkonstruksjon og røykpipe.
Demolition Enebolig

Riving av bolig etter brann

Enebolig rives etter brannskade. Saken inkluderer søknad, tillatelse og ferdigattest for rivingstiltaket.

πŸ“ Vevangvegen 527 Hustadvika
Fotografi av en eksisterende eller ferdigstilt bolig med en terrasse og trapper.
ChangeOfUse Enebolig

Bruksendring og fasadeendring på enebolig, Melhusvegen 804

Enebolig på 240 m² BRA med omfattende bruksendring og fasadeendring. Bygget har tre etasjer inkludert garasje og vedbod…

πŸ“ Melhusvegen 804 Melhus
Bildet viser fire 3D-visualiseringer (renderinger) av en planlagt bygning sett fra ulike vinkler, inkludert fasade og hjørnevisning.
NewConstruction Enebolig

Ny enebolig med balkong på Lindvollheia 66, Gjerstad

Ny enebolig over to plan med totalt bruksareal på 178,6 m² ekskl. parkeringsareal, plassert på Lindvollheia 66 i Gjerst…

πŸ“ Lindvollheia 66 Gjerstad
3D-visualisering av en moderne hytte med trefasade og svart tak, sett fra en vinkel som viser både fasade og deler av innsiden.
Extension Enebolig

Endring av enebolig i Nedstrandsvegen 1416, Tysvær

Prosjektet omfatter omfattende endringer på en eksisterende enebolig med totalt bruksareal på 345 m² fordelt på tre eta…

πŸ“ Nedstrandsvegen 1416 Tysvær
Fotografi av en feilmontert tank i snø, illustrert som et eksempel på 'Resultat av feil avrenning'.
Extension Enebolig

Tilbygg, uthus og carport i Skjerkholtveien 209, Tvedestrand

Ny utvidelse av eksisterende laftet bolig med et tilbygg på 60 m² i grovt bindingsverk med perlestaffprofilert tømmerma…

πŸ“ Skjerkholtveien 209 Tvedestrand
Bildet viser fire fasadetegninger (nord, sør, vest, øst) av en eksisterende bygning med høydeangivelser.
Extension Enebolig

Tilbygg, vinterhage og fasadeendring på enebolig i Tommvegen 49

Eksisterende enebolig i Tommvegen 49 får et tilbygg bestående av en vinterhage og terrasse med samlet areal på ca. 50 m…

πŸ“ Tommvegen 49 Nesna
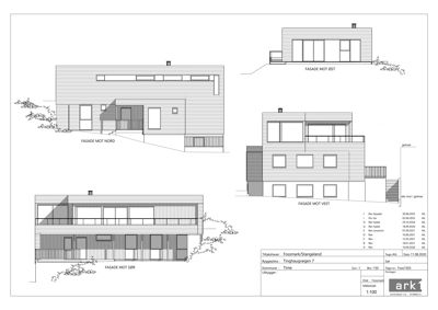
Fasadetegning som viser bygningens utseende fra fire ulike vinkler (Nord, Sør, Øst og Vest).
NewConstruction Enebolig

Ny enebolig med riving i Tinghaugvegen 7, Bryne

Ny enebolig på totalt 302,6 m² BRA fordelt på tre etasjer bygges på eiendommen i Tinghaugvegen 7, Bryne. Boligen har to…

πŸ“ Ny bustad, 1/150 Time
Bildet viser to 3D-visualiseringer (renderinger) av et byggeprosjekt: en perspektivtegning fra nord-aust og en situasjonsplan med bygningsplassering sett fra oven.
NewConstruction Enebolig

Ny enebolig med sokkelleilighet og støttemur på Bratteberg 7, Volda

Ny enebolig i tre etasjer med sokkelleilighet i underetasjen og frittstående garasje på 50 m² oppføres på en bratt og s…

πŸ“ Bratteberg 7 Volda
🏠
NewConstruction Enebolig

Oppføring av ny enebolig med tilhørende gravearbeid og naturmangfoldvurdering

Saken gjelder søknad om tillatelse til oppføring av ny enebolig på Eikemyrveien 86. Saken omfatter også behandling av k…

πŸ“ Eikemyrveien 9 Ringerike
🏠
Extension Enebolig

Riving og nybygg av fire eneboliger i Nils Collett Vogts vei 48 A

Prosjektet omfatter riving av et eksisterende bygg på eiendommen og oppføring av fire nye frittstående eneboliger. Hver…

πŸ“ Nils Collett Vogts vei 48A Oslo - Oslove
🏠
Extension Enebolig

Utskifting av balkonger på Nils Bays vei 68-70

Utskifting av eksisterende balkonger på en enebolig i Nils Bays vei 68-70. Prosjektet omfatter demontering av gamle bal…

πŸ“ Nils Bays vei 68-70 Oslo - Oslove
🏠
Extension Enebolig

Utskifting av balkonger på enebolig i Nils Bays vei 64-66

Eksisterende balkonger på eneboligen i Nils Bays vei 64-66 skal skiftes ut. Prosjektet omfatter demontering av gamle ba…

πŸ“ Nils Bays vei 64-66 Oslo - Oslove
🏠
Extension Enebolig

Utskifting av balkonger i Nils Bays vei 52-58

Prosjektet omfatter utskifting av eksisterende balkonger på en enebolig i Nils Bays vei 52-58. Arbeidet inkluderer demo…

πŸ“ Nils Bays vei 52-58 Oslo - Oslove