Alle byggesaker 7545 treff

🏡
VerticalExtension Fritidsbolig

Påbygg av anneks til hytte på Blekapynten 37

Påbygg av eksisterende anneks til hytte på eiendommen Blekapynten 37. Prosjektet innebærer en vertikal utvidelse av ann…

πŸ“ Sølia 25 Drangedal
🏠
Extension Enebolig

Oppføring av anneks ved Grasmyrvegen 33

Ny frittstående anneks oppføres på eiendommen Grasmyrvegen 33. Bygget vil fungere som et mindre tilleggsbygg til eksist…

πŸ“ Grasmyrvegen 33 Evje og Hornnes
Fasadetegning som viser bygningens utseende fra øst og sør, inkludert takform, vinduer og materialvalg.
Extension Enebolig

Tilbygg og bruksendring i enebolig, Tuesgate 10B, Fredrikstad

Ny tilbygg på inntil 50 m² inkludert utvidelse av eksisterende balkong på vestfasade, samt bruksendring av kjellerareal…

πŸ“ Tuesgate 10B Fredrikstad
Fasadetegning som viser bygningens utside med vinduer og fasadepaneler.
Extension Naeringsbygg

Tilbygg og nytt industribygg i Storburusjøveien 1, Singsås

Ny utvendig tilbygg på ca. 81,3 m² til eksisterende industribygg i Storburusjøveien 1, Singsås, som skal fungere som la…

πŸ“ Storburusjøveien 1 Midtre Gauldal
Tre 3D-visualiseringer av en planlagt bolig (fra ulike vinkler) med tegningsinformasjon i bunnen.
Extension Enebolig

Tilbygg og ny terrasse på enebolig i Gluppeveien 25

Ny enebolig med et tilbygg på 43,5 m² i én etasje og en ny terrasse på 23,6 m², som erstatter en eksisterende terrasse …

πŸ“ Gluppeveien 25 Fredrikstad
🏡
FacadeChange Fritidsbolig

Fasadeendring, påbygg og anneks på hytte, Gnr 148 Bnr 26

Prosjektet omfatter omfattende bygningsarbeider på en eksisterende hytte, inkludert fasadeendring og påbygg for å utvid…

πŸ“ Bruvikvegen 609 Osterøy
Fasadetegning som viser bygningens utsyn fra fire ulike vinkler (to frontaler og to sider), med mål på takhelling, bredde og vindusoppsett.
NewConstruction Garasje

Ny garasje med loft i Kjøpmannsveien 4, Arendal

Ny frittstående garasje med loft på ca. 49,6 m² oppføres på eiendommen i Kjøpmannsveien 4. Garasjen har flatt tak med t…

πŸ“ Kjøpmannsveien 4 Arendal
🏗️
NewConstruction Other

Oppføring av utebod i Tjeldøyveien 667

Ny frittstående utebod på eiendommen i Tjeldøyveien 667. Bygget er et mindre uthus beregnet for lagring og hageutstyr. …

πŸ“ Tjeldøyveien 667 Dielddanuorri - Tjeldsund
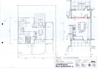
Etasjeplan (1. etasje) med romfordeling, mål og utvendige områder.
Extension Enebolig

Utvidelse av kjøkken ved flytting av vegg i Thorsholmen 12

Kjøkkenet i eneboligen på Thorsholmen 12 utvides ved å flytte ytterveggen ca. 1,5 meter ut slik at den flukter med gara…

πŸ“ Thorsholmen 12 Sandefjord
🏠
Extension Enebolig

Utvidelse av veranda på enebolig i Sam Eydes gate 164

Verandaen på eneboligen i Sam Eydes gate 164 skal utvides. Prosjektet innebærer en fysisk endring av eksisterende bygni…

πŸ“ Sam Eydes gate 164 Tinn
🏡
Extension Fritidsbolig

Riving og oppsetting av nytt seterhus på Huseby nedre

Prosjektet omfatter riving av eksisterende bygg og oppføring av et nytt seterhus eller husmannsstue på eiendommen Huseb…

πŸ“ Uvdalsvegen 688 Nore og Uvdal
🏗️
NewConstruction Other

Riving og nytt boligbygg i Stasjonsveien 37

Prosjektet omfatter riving av en eksisterende bygning på eiendommen Stasjonsveien 37, etterfulgt av oppføring av et nyt…

πŸ“ Stasjonsveien 37 Iveland
Dette dokumentet viser en fasadetegning (utsnitt) og to illustrasjoner av et bygningss utseende.
Rehabilitation Naeringsbygg

Ombygging, bruksendring og fasadeendring

Søknad om rammeløyve for ombygging, endring av bruksform og fasade på eiendom ved Bandadalsplassen 7.

πŸ“ Bandadalsplassen 5 Stord
🏗️
Rehabilitation Other

Innvendig reparasjon av brannskille i Bekkefaret 12

Innvendig reparasjon av eksisterende brannskille i bygget på Bekkefaret 12. Prosjektet omfatter tiltak for å gjenoppret…

πŸ“ Bekkefaret 12A Oslo - Oslove
🏡
Extension Fritidsbolig

Tilbygg til fritidsbolig på Veslegjerde 26

Ny tilbygg på fritidsbolig på Veslegjerde 26 med et areal over 50 m². Tilbygget utvider eksisterende fritidsbolig og vi…

πŸ“ Veslegjerde 26 Hemsedal
🏗️
Rehabilitation Other

Rehabilitering av skorstein på Vesterøyveien 283

Rehabilitering av eksisterende skorstein i enebolig på Vesterøyveien 283 ved innsetting av stålrør med diameter 150 mm …

πŸ“ Vesterøyveien 283 Sandefjord
🏡
NewConstruction Fritidsbolig

Ny fritidsbolig i Jomåsveien 1070, Froland

Ny fritidsbolig skal oppføres på eiendommen i Jomåsveien 1070, Froland kommune. Prosjektet omfatter et frittstående byg…

πŸ“ Jomåsveien 1070 Froland
3D-visualisering av en planlagt bygning med fasade og inngangsdetaljer.
NewConstruction Naeringsbygg

Nytt næringsbygg med lager og kontor på Hofstadvegen, Melhus

Nytt næringsbygg på totalt 1194,4 m² fordelt på en etasje med vaskehall, lager, verksted, kontor, møterom, kjøkken og t…

πŸ“ Hofstadvegen 4 Melhus
🏡
NewConstruction Fritidsbolig

Ny hytte på Fjåbutjønn, Froland kommune

Ny frittstående hytte planlegges oppført på eiendommen Fjåbutjønn, Gnr 54, Bnr 45 i Froland kommune. Detaljer om hytten…

πŸ“ Fjåbutjønn Froland
🏠
Extension Enebolig

Tilbygg på enebolig i Vestersidveien 60

Ny tilbygg på eksisterende enebolig i Vestersidveien 60. Prosjektet innebærer en fysisk utvidelse av boligens areal, me…

πŸ“ Laksvollen, Vestersivegen 60 Grane
🏗️
Other Other

Rehabilitering av boliger på Maurstien 8

Rehabiliteringsprosjekt for eksisterende boliger på adressen Maurstien 8. Prosjektet omfatter oppgradering og forbedrin…

πŸ“ Markstien 11 Hustadvika
En håndtegnet fasadetegning (opprikk) av en hytte sett fra sørøst, med mål og tekst 'FASADE MOT AUST'.
Extension Other

Tilbygg terrasse med integrert basseng på Ås 24, Stord

Ny utvidelse av eksisterende terrasse på ca. 60 m² med høyde ca. 1,2 meter over terreng, integrert basseng på ca. 5,5 x…

πŸ“ Ås 24 Stord
🏡
Extension Fritidsbolig

Oppføring av badstue ved hytte, Gaupefaret 26

Ny frittstående badstue oppføres på eiendommen ved Gaupefaret 26. Badstuen vil være et mindre tilbygg eller frittståend…

πŸ“ Gaupefaret 26 Nore og Uvdal
Fasadetegning som viser bygningens utseende fra utsiden, inkludert takform og vinduer.
NewConstruction Garasje

Ny redskapshus i Vasskorvegen 478

Ny frittstående redskapshus på ca. 162 m² oppføres på eiendommen i Vasskorvegen 478. Bygget skal ha en etasje og bygges…

πŸ“ Vasskorvegen 478 Hustadvika