Alle byggesaker 7495 treff

Etasjeplan (AR) som viser romfordeling, arealer og funksjoner i et hus.
NewConstruction Garasje

Ny garasje og bruksendring på Slettevegen 35, Bremnes

Prosjektet omfatter oppføring av en frittliggende garasje for traktor og landbruksutstyr på en landbrukseiendom som lig…

Bømlo
🏡
NewConstruction Fritidsbolig

Ny fritidsbolig på Gnr 5, Bnr 16

Ny fritidsbolig skal oppføres på eiendommen Gnr 5, Bnr 16. Prosjektet omfatter et frittstående bygg beregnet for fritid…

πŸ“ Krikmyrvegen 16 Flesberg
🏠
Extension Enebolig

Tilbygg og fasadeendring på enebolig i Tornesvegen 407

Tilbygg og fasadeendring på en eksisterende enebolig i Tornesvegen 407. Prosjektet omfatter konstruksjonsarbeider i bet…

πŸ“ Tornesvegen 407 Hustadvika
🏠
VerticalExtension Enebolig

Påbygg og fasadeendring på enebolig i Tornesvegen 407

Påbygg og fasadeendring på eksisterende enebolig i Tornesvegen 407, Hustadvika kommune. Prosjektet inkluderer endringer…

πŸ“ Tornesvegen 407 Hustadvika
🏬
NewConstruction Naeringsbygg

Nybygg datasenter med parkeringsplass på Gnr 29 Bnr 313

Nybygg av et datasenter som næringsbygg på eiendommen Gnr 29 Bnr 313, inkludert opparbeidelse av tilhørende parkeringsp…

πŸ“ Industriveien 11 Balsfjord
3D-visualisering av Stord Brannstasjon med omgivelsene.
NewConstruction Offentlig

Ny brannstasjon med dekklager og carport i Bandadalen 108, Stord

Ny brannstasjon på ca. 1693,5 m² BRA fordelt på to etasjer med funksjoner som vognhall, vaskehall, kontorer, møterom, g…

πŸ“ Bandadalen 108 Stord
En tegning som viser etasjeplaner (PLAN 1, PLAN 2), fasadeopprikk og snitt for en bygning.
Demolition Other

Riving av brakkerigg i Gardermovegen 95C, Nannestad

Riving av en modulbasert brakkerigg på 373 m² BRA og 252 m² bebygd areal, bestående av 16 prefabrikkerte trehusmoduler …

πŸ“ Gardermovegen 95C Nannestad
🏗️
NewConstruction Other

Anlegg av renseanlegg med infiltrasjonsanlegg på Lagveien 392

Ny etablering av renseanlegg med tilhørende infiltrasjonsanlegg på eiendommen Lagveien 392. Prosjektet omfatter teknisk…

πŸ“ Lagveien 392 Risør
Fasadetegning som viser bygningens utseende sett fra nord og vest, inkludert detaljer om materialer og dimensjoner.
NewConstruction Enebolig

Ny enebolig med carport på Grunnavågen 22, Bømlo

Ny enebolig i to etasjer med totalt 142,5 m² BRA, inkludert carport på 24,7 m² og sportsbod på 6,5 m². Boligen har salt…

πŸ“ Grunnavågen 22 Bømlo
3D-visualisering av en husfasade sett fra to ulike vinkler.
Extension Enebolig

Ombygging og tilbygg til våningshus i Uthaugsveien 175, Brekstad

Tiltaket omfatter omfattende ombygging og oppføring av et nytt tilbygg i to etasjer til et eldre SEFRAK-registrert våni…

πŸ“ Uthaugsveien 175 Ørland
Bildet viser en side fra en rapport med tekst om vurdering av arealbruk og byggesaker. Det inneholder to innleverte bilder: en kommuneplan med byggegrense (kart) og et flyfoto av et område med bygninger ved vann.
NewConstruction Other

Flytebrygge og kaiplatting ved Sundsvegen 34, Sunde

Ny flytebrygge på 1 meter bredde og 3 meter lengde med tilhørende landgang, samt en kaiplatting på ca. 16 m², skal plas…

πŸ“ Sundsvegen 34 Kvinnherad
🏗️
NewConstruction Other

Oppføring av nytt anlegg/konstruksjon på Gnr 37 Bnr 11

Nytt anlegg eller konstruksjon er oppført på eiendommen Gnr 37 Bnr 11. Prosjektet omfatter bygging av en struktur som i…

Trysil
3D-visualisering (rendering) av en planlagt bygning på vannet sett fra vest. Bildet viser både eksisterende infrastruktur og den nye konstruksjonen.
NewConstruction Other

Flytebrygge med badstue på Lille Brønnøya, Brønnøy

Ny flytebrygge med badstue på 54,5 m² plassert på nordsiden av Lille Brønnøya i Brønnøy kommune. Anlegget består av en …

πŸ“ Lille Brønnøya Brønnøy
🏡
Extension Fritidsbolig

Tilbygg på hytte ved Ustaosvegen 567, Ustaoset

Ny tilbygg på 16,2 m² til eksisterende hytte på 66,5 m² ved Ustaosvegen 567, Ustaoset. Tilbygget skal inneholde en skib…

πŸ“ Ustaosvegen 567 Hol
Fotografi av en gassmåler og tilhørende rørleggerutstyr (ventiler, kobber- og plastrør) montert på en vegg.
NewConstruction Fritidsbolig

Ny fritidsbolig med tekniske installasjoner i Rytterveien 121

Ny fritidsbolig oppført på eiendommen Rytterveien 121, Drangedal, med komplett byggteknisk installasjon inkludert funda…

πŸ“ Rytterveien 121 Drangedal
Fotografier av et naturområde med bekker og berg i dagens terreng, inkludert en ravine med stillestående vann.
Extension Naeringsbygg

Tilbygg til driftsbygning i Låkedalsvegen 35, Nannestad

Ny tilbygg på ca. 100 m² BRA og 104 m² bebygd areal til eksisterende låve i Låkedalsvegen 35. Tilbygget skal fungere so…

πŸ“ Låkedalsvegen 33 Nannestad
Fotografi av en hvit utvendig fasade med en åpen hvit dør og en vindu under. Bildet viser også en steinlagt terrasse med planter og utemøbler.
NewConstruction Other

Ny treplatting på terreng i Vestegårdsveien 152, Vestre Sandøya

Ny treplatting på ca. 42 m² anlegges på terreng på eiendommen Vestegårdsveien 152, Vestre Sandøya. Plattingen bygges på…

πŸ“ Vestegårdsveien 152 Tvedestrand
Fotografi av en hvit hytte med rødt tak, plassert i et grønt landskap med en stor fjellformasjon i bakgrunnen.
Extension Enebolig

Påbygg av veranda og overbygg ved inngang, Søbergsveien 66

Ny liten veranda med utgang fra stue og et lite overbygg over inngangsdør på enebolig i Søbergsveien 66. Verandaen erst…

πŸ“ Søbergsveien 66
🏗️
NewConstruction Other

Oppføring av renseanlegg på Risøya 34, Risør

Ny oppføring av et renseanlegg på eiendommen Risøya 34 i Risør kommune. Anlegget skal etableres for behandling av avløp…

πŸ“ Risøya 34 Risør
En 3D-visualisering (perspektivtegning) av en planlagt bolig med omgivelser, inkludert terreng og trapper.
NewConstruction Enebolig

Ny enebolig med svømmebasseng på Ytterland 36, Giske

Ny frittliggende enebolig på 228 m² BRA fordelt på tre etasjer med flatt tak og fasade i betong. Boligen har sokkeletas…

πŸ“ Ytterland 36 Giske
Fotografi av en ferdig eller nesten ferdig bygning (hus) sett fra siden, med utsikt over vann og skog i bakgrunnen.
Extension Fritidsbolig

Tilbygg og flytting av fritidsbolig i Botenkollveien 4, Røros

Prosjektet omfatter flytting av eksisterende fritidsbolig på 48 m² og oppføring av et tilbygg på 19 m², totalt 67 m² BR…

πŸ“ Botnkollveien 4 Røros - Rosse
Fotografier av en eksisterende tomt og bygning (Moskusgrillen) samt et situasjonskart over området.
NewConstruction Other

Utvidelse av elbil-ladestasjoner og gangveg på Sentralplassen, Dombås

Prosjektet omfatter etablering av 16 nye ladeplasser for elbiler langs østsiden av bygningsrekken ved Sentralplassen i …

πŸ“ Sentralplassen 1A Dovre
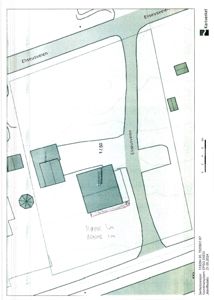
Situasjonsplan som viser tomtens beliggenhet i forhold til Eliseusveien, plassering av bygninger, og en skriftlig notat om høyde og bredde.
Extension Other

Ny veranda på Eliseusveien 6, Sortland

Ny veranda bygges på vestsiden av eksisterende bolig på Eliseusveien 6 i Sortland. Verandaen skal være inntil 1 meter b…

πŸ“ Eliseusveien 6 Sortland - Suortá
🏛️
Extension Offentlig

Utvidelse av kommune- og helsehus i Fånesvegen 1

Prosjektet omfatter en utvidelse av eksisterende kommune- og helsehus i Fånesvegen 1. Bygget er et offentlig bygg som s…

πŸ“ Fånesvegen 1 Frosta