Alle byggesaker 7615 treff

En håndtegnet fasadetegning av en enebolig, tegnet på rutenett.
Extension Enebolig

Tilbygg teknisk rom på enebolig i Skrøytnesveien 141

Ny tilbygg på enebolig i Skrøytnesveien 141 bestående av et teknisk rom for vannpumpe, med et bebygd areal på 18,25 m² …

πŸ“ Skrøytnesveien 141 Sør-Varanger
Plantegning av etasjen med romfordeling, dører, vinduer og dimensjoner.
Extension Naeringsbygg

Utvidelse av driftsbygning på Skailand 15

Utvidelse av eksisterende driftsbygning på eiendommen Skailand 15. Prosjektet innebærer en fysisk forstørrelse av nærin…

πŸ“ Skailand 14 Flekkefjord
Fasadetegning som viser bygningens utseende fra sør-vest og sør-øst
NewConstruction Offentlig

Ny brannstasjon i Storgata 1, Høyanger

Ny brannstasjon på Storgata 1 i Høyanger med et samlet areal på ca. 650 m² i én etasje. Bygget inneholder vaskerom, gar…

πŸ“ Storgata 1B Høyanger
Fasadetegning som viser bygningens utsyn fra fire sider (Nord, Sør, Øst, Vest) med detaljer om takform, vinduer og fasadepanel.
ChangeOfUse Enebolig

Bruksendring og fasadeendring på enebolig i Hauvegen 36

Prosjektet omfatter bruksendring og fasadeendring av en eksisterende enebolig på Hauvegen 36. Bygget har et totalt area…

πŸ“ Hauvegen 36 Giske
Fotografier av en hytte med markerte plasseringer (forrige og ny) og en tegnet grunnplan overlappet på et av bildene.
NewConstruction Other

Oppføring av pumpehus for felles vannpost i Rallarvegen 2559, Finse

Ny felles vannpost med pumpehus på totalt 5,2 m² fordelt på to etasjer, plassert på Statskog sin grunn ved Rallarvegen …

πŸ“ Vestre Rallarvegen 104 Ulvik
Fotografier som viser observasjoner av grunnforhold ved sjaktgraving på tomtene, inkludert lag av organisk toppjord, morene, sand-silt og leire.
NewConstruction Tomannsbolig

Ny to-mannsbustad med carport på Skjongneset, Giske

To nye tomannsboliger oppføres på Skjongneset i Giske kommune, på eiendom Gnr 186, Bnr 394. Byggene er i trekonstruksjo…

πŸ“ Skjongneset 10 Giske
Fotografier av prøvegravinger (PG 1-4) med målestokk og markører på stedet.
NewConstruction Enebolig

Ny mikrohus med lekeplass i Åkresundvegen, Godøya

Ny frittliggende mikrohus på 30,7 m² BRA oppført i bindingsverk av tre med saltak og stående kledning. Bygget har ett p…

πŸ“ Åkresundvegen 11 Giske
Fotografier av en havn med skip og båthammer, inkludert tekster om vedlikehold og allmeningskai.
NewConstruction Other

Ny offentlig fiskerikai og industrikai ved Gjøsund havn, Giske

Ny offentlig fiskerikai og industrikai på til sammen ca. 165 meter kai ved Gjøsund havn i Giske kommune. Kaia består av…

πŸ“ Gjøsundneset 39 Giske
3D-visualisering av en bygning med fasade, vinduer, hekk og omgivelser
VerticalExtension Offentlig

Påbygg og fasadeendring på Akrobaten barnehage, Handelsbakken 11

Utvidelse av Akrobaten barnehage i 2. etasje med et nytt påbygg på ca. 114 m² BRA, samt oppføring av en ny frittstående…

πŸ“ Handelsbakken 11 Indre Fosen
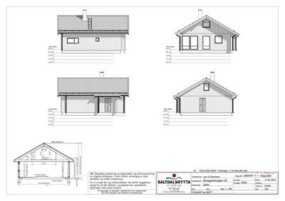
Fasadetegning med oppriss av bygning sett fra fire ulike vinkler, samt en snittegning (Mål på topp av) som viser tverrsnittet av huset.
NewConstruction Fritidsbolig

Ny fritidsbolig med dispensasjon i Øvragardsvegen 52/66, Ulvik

Ny fritidsbolig på 71,9 m² BYA (bruksareal 58,6 m²) med hems og saltak oppføres på eiendom Gnr 52, Bnr 66 i Øvragardsve…

Ulvik
3D-visualisering av en bygning med to varianter: 'Lukkede skodder' og 'Åpne skodder'.
NewConstruction Other

Riving og nytt driftsbygg på Siksjølia 172, Os

Prosjektet omfatter riving av en eksisterende låve/fjøs oppført i 1849 med hovedombygging i 1962, som har en grunnflate…

πŸ“ Holla, Siksjølia 172 Os
Kart over et område i Oslo (Soffibakken, Flotene) med bygningstegninger og gatenavn.
Rehabilitation Enebolig

Renovering av skorstein på enebolig i Soffibakken 26

Renovering av eksisterende skorstein på enebolig i Soffibakken 26 med installasjon av stive stålrør i syrefast AISI 316…

πŸ“ Soffibakken 26 Hareid
Tegning som viser fasadeopprikk (Fasade Sør og Fasade Aust) med mål og konstruksjonsdetaljer.
NewConstruction Garasje

Ny garasjebygning med bakkemur i Espelandsvegen 20, Ulvik

Ny garasjebygning på totalt ca. 482,5 m² BRA, inkludert eksisterende lagerhall på 65 m², oppføres på eiendom Espelandsv…

πŸ“ Vambheimsvegen 25 Ulvik
🏡
NewConstruction Fritidsbolig

Oppføring av fritidsbolig og garasje i Nipelivegen 116

Ny fritidsbolig med tilhørende garasje og bod oppføres på eiendommen Nipelivegen 116, Gnr 64 Bnr 461. Bygget omfatter e…

πŸ“ Nipelivegen 116 Evje og Hornnes
🏠
Extension Enebolig

Utvendig tilbygg under 50 m² på Dåsnesvegen 7

Ny utvendig tilbygg på enebolig i Dåsnesvegen 7 med et areal mindre enn 50 m². Tilbygget vil utvide boligens bruksareal…

πŸ“ Dåsnesvegen 7 Evje og Hornnes
🏬
NewConstruction Naeringsbygg

Oppføring av forretningsbygg i Verksvegen

Ny oppføring av et forretningsbygg på eiendommen Gnr 49, Bnr 170 i Verksvegen. Bygget skal benyttes til næringsformål o…

πŸ“ Verksvegen 40 Evje og Hornnes
🏗️
NewConstruction Other

Nytt bygg under 70 m² til ikke-boligformål på Verksvegen 8

Ny oppføring av et bygg under 70 m² til ikke-boligformål på eiendommen Verksvegen 8. Bygget er planlagt som et mindre n…

πŸ“ Verksvegen 8 Evje og Hornnes
🏘️
NewConstruction Tomannsbolig

Ny tomannsbolig i Rådyrvegen 15/183

Ny tomannsbolig oppføres på eiendommen i Rådyrvegen 15/183. Prosjektet inkluderer grunnarbeid for opparbeidelse av boli…

πŸ“ Rådyrvegen 6A Evje og Hornnes
🏗️
Rehabilitation Other

Rehabilitering av pipe på Botneheia 10

Rehabilitering av eksisterende pipe på eiendommen Botneheia 10. Arbeidet omfatter reparasjon og oppgradering av pipekon…

πŸ“ Botneheia 10 Evje og Hornnes
Fasadetegning som viser bygningens utsyn fra nord, vest og øst.
Extension Garasje

Oppføring av carport og fasadeendring i Geilhaugveien 16

Ny carport på 23 m² plassert som en forlengelse av eksisterende enebolig mot nord med en bredde på 3,2 meter. Tiltaket …

πŸ“ Geilhaugveien 16 Indre Fosen
Håndtegnet fasadeopprikk (fra front) med mål og detaljer for dører og vinduer.
NewConstruction Garasje

Riving og ny garasjeoppføring på Flakk 142

Ny frittstående garasje oppføres på eiendommen Flakk 142 med flatt tak og tre som fasademateriale. Garasjen har en gesi…

πŸ“ Flakk 142 Birkenes
🏛️
NewConstruction Offentlig

Nytt renseanlegg og administrasjonsbygg på Birkeland

Nytt renseanlegg med tilhørende administrasjonsbygg oppføres på Birkeland. Prosjektet omfatter bygging av tekniske anle…

Birkenes
🏗️
NewConstruction Other

Oppføring av levegg og pergola på Flakk 24

Ny levegg og pergola skal oppføres på eiendommen Flakk 24. Prosjektet omfatter utendørs konstruksjoner som gir skjermin…

πŸ“ Flakk 24 Birkenes
🏠
NewConstruction Enebolig

Ny enebolig med carport på Tingsakeråsen 51

Ny enebolig med tilhørende carport oppføres på eiendommen Tingsakeråsen 51. Prosjektet omfatter boligbygg med tilhørend…

πŸ“ Tingsakeråsen 51 Birkenes