Alle byggesaker 7734 treff

🏗️
NewConstruction Other

Oppføring av lavvo i Nordlysveien 5655

Ny frittstående lavvo på eiendommen i Nordlysveien 5655. Lavvoen er et tradisjonelt teltlignende bygg med konisk form, …

πŸ“ Nordlysveien 5581 Storfjord - Omasvuotna - Omasvuono
🏠
Rehabilitation Enebolig

Ombygging av enebolig i Movegen 2

Ombygging av eksisterende enebolig i Movegen 2, Gnr 68 Bnr 125. Prosjektet omfatter rehabilitering og oppgradering av b…

πŸ“ Movegen 2 Søndre Land
🏡
Extension Fritidsbolig

Tilbygg til hytte i Liavegen 13

Tilbygg til eksisterende hytte på eiendommen Liavegen 13. Prosjektet omfatter en fysisk utvidelse av hytten, som øker d…

πŸ“ Liavegen 13 Søndre Land
Fotografi av en slamavskiller i en byggesak.
NewConstruction Other

Ny rorbu med 3 overnattingsenheter i Moskenesveien 178, Reine

Ny rorbu på 159,2 m² grunnflate med 1 etasje, bestående av 3 separate overnattingsenheter med egen inngang. Bygget oppf…

Vestvågøy
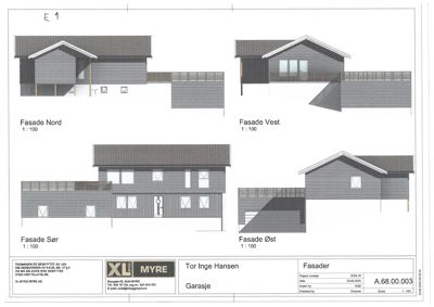
Situasjonsplan (tomtekart) som viser eiendomsnummer, bygninger, vegnett og høydemål.
NewConstruction Garasje

Oppføring av frittliggende garasje på gnr 133 bnr 20

Ny frittliggende garasje oppføres på eiendommen gnr 133 bnr 20. Garasjen er mindre enn 50 m² og benyttes til oppbevarin…

πŸ“ Torvhaugveien 10 Vestvågøy
Fasadetegning som viser bygningens utseende fra fire sider: Nord, Sør, Vest og Øst.
Extension Enebolig

Tilbygg og garasje ved Fjellveien 16, Øksnes

Ny tilbygg til eksisterende enebolig i Fjellveien 16 med tilhørende frittstående garasje på ca. 56 m². Tilbygget vil bl…

πŸ“ Fjellveien 16A Øksnes
Fotografier av en eksisterende bygning (Havnveien 10) som viser fasader og etasjeoppdeling.
ChangeOfUse Other

Bruksendring til bolig med brannsikring i Havneveien 10, Værøy

Byggets 2. etasje endres fra tidligere bruk til boligformål med en boenhet for inntil 4 personer, mens 1. etasje fortsa…

πŸ“ Havneveien 10 Værøy
🏠
NewConstruction Enebolig

Ny enebolig på Leinebakkane 11, Herøy

Ny enebolig oppført på eiendommen Leinebakkane 11 i Herøy kommune. Boligen er prosjektert og bygget med ansvarlige fore…

πŸ“ Leinebakkane 11 Herøy (Møre og Romsdal)
Tegning som viser fasadeopprikk for bygningen sett fra sør og øst.
NewConstruction Rekkehus

Ny 4-mannsbolig med carport på Elsebøvegen, Herøy

Ny 4-mannsbolig på totalt ca. 355 m² BRA fordelt på to etasjer med flatt tak og tre som fasademateriale. Bygget innehol…

πŸ“ Elsebøvegen 10 Herøy (Møre og Romsdal)
Fasadetegning som viser oppriss av en carport sett fra ulike vinkler (front, side og perspektiv), inkludert detaljer om dører og takhøyde.
NewConstruction Tomannsbolig

Ny 2-mannsbolig med carport og bod i Elsebøvegen, Fosnavåg

Ny 2-mannsbolig på totalt 253 m² BRA fordelt på to etasjer med separate boenheter. Hver boenhet har 3 soverom, bad/vask…

πŸ“ Elsebøvegen 10 Herøy (Møre og Romsdal)
🏗️
NewConstruction Other

Bygging av kombinert tilkomstveg og rettbane på Nyveg 27

Prosjektet omfatter bygging av en kombinert tilkomstveg og rettbane på eiendommen Nyveg 27. Veganlegget skal fungere bå…

πŸ“ Nyveg 27 Seljord
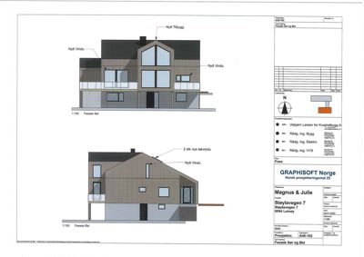
Fasadetegning som viser front- og sideoppsettet av en bolig med merking av nye vinduer og materialer.
Other Enebolig

Ny isolert stålpipe på Støylavegen 7, Leinøy

Ny isolert stålpipe med dimensjon 130/230 mm fra Nordpeis AS montert på en eksisterende enebolig i Støylavegen 7, Leinø…

πŸ“ Støylavegen 7 Herøy (Møre og Romsdal)
Tegning som viser fasadeopprikk for bygningen 'UN' 4MB, med utsnitt av FASADE SØR og FASADE ØST.
NewConstruction Rekkehus

Ny 4-mannsbolig med carport i Elsebøvegen, Fosnavåg

Ny 4-mannsbolig i to etasjer med totalt bruksareal på ca. 332 m² fordelt på fire leiligheter, hver med kjøkken/stue, to…

πŸ“ Elsebøvegen 10 Herøy (Møre og Romsdal)
Fotografi av en eksisterende bygning med overlagte målinger (3.8m, 2.7m) og en grønn linje som indikerer en grense eller avstand.
Extension Other

Ny altan på bolig i Sævik Nedre 17, Leinøy

Ny altan på til sammen 49,4 m² bygges som tilbygg til eksisterende bolig på eiendommen Sævik Nedre 17 i Leinøy. Altanen…

πŸ“ Sævik Nedre 17 Herøy (Møre og Romsdal)
Perspektivtegning (3D-visualisering) av bygningens utvendige fasader og inngangsparti.
Extension Offentlig

Tilbygg til Møre barne- og ungdomsskule, Dragsundvegen 1

Nybygg av tilbygg på 430 m² til Møre barne- og ungdomsskule i Dragsundvegen 1, Gurskøy. Tilbygget består av tre nye kla…

πŸ“ Dragsundvegen 1 Herøy (Møre og Romsdal)
Fotografi av en moderne, grå beleggset bolig sett fra gaten. Bildet viser fasaden, balkonger, vinduer og en hekk.
Extension Enebolig

Utvidelse av altan på Bergslibakken 3, Fosnavåg

Ny utvidelse av eksisterende altan på enebolig i Bergslibakken 3, Fosnavåg. Tillegget består av en sammenbygging av to …

πŸ“ Bergslibakken 3 Herøy (Møre og Romsdal)
3D-perspektivtegning av en planlagt bygning (FOSNOT AS) med arkitektoniske detaljer.
NewConstruction Naeringsbygg

Nytt næringsbygg med lager og kontor i Mjølstadnesvegen, Fosnavåg

Nytt næringsbygg på totalt ca. 2892 m² BRA fordelt på to etasjer, med hovedsakelig lager- og kontorfunksjoner. Bygget h…

πŸ“ Mjølstadnesvegen 25 Herøy (Møre og Romsdal)
Fotografi av Håkonsholmen med bygninger og vann, samt en situasjonsplan under.
NewConstruction Other

Ny flytebrygge ved Håkonsholmen, Ulstein

Ny flytebrygge på 1,5 x 14 meter av standard Ørsta marina fabrikat skal etableres i Holmesundet ved Håkonsholmen, plass…

πŸ“ Håkonsholmen Herøy (Møre og Romsdal)
🏗️
Extension Other

Oppføring av brannførebygg i Flusundvegen 86

Ny oppføring av et brannførebygg ved eiendommen i Flusundvegen 86. Bygget skal fungere som et fysisk tiltak for å forhi…

πŸ“ Flusundvegen 86 Herøy (Møre og Romsdal)
🏗️
Extension Other

Oppføring av brannførebygg på Nedre Berge 18

Ny oppføring av et brannførebygg ved eiendommen Nedre Berge 18. Brannførebygget skal fungere som en fysisk barriere for…

πŸ“ Nedre Berge 18 Herøy (Møre og Romsdal)
Situasjonsplan som viser bygningers plassering i forhold til 'Rundavegen' og 'Runde hamn', samt vannkvaliteter og dimensjoner.
NewConstruction Other

Utlegging av flytebrygge i Runde hamn, Herøy

Ny flytebrygge skal legges ut i Runde hamn ved eiendommen Gnr 9, Bnr 120 i Herøy kommune. Flytebrygga prosjekteres og u…

πŸ“ Runde hamn Herøy (Møre og Romsdal)
Fotografi av en eksisterende eller nybygd veggholdning med steinmur, asfaltert vei og en betongmur i bakgrunnen. Bildet inneholder håndtegnede pil og tekst som angir høydemål (A og B).
Extension Other

Forlengelse av støttemur ved Mikkelhaugen 2, Fosnavåg

Ny forlengelse av eksisterende støttemur mot nabogrense på eiendommen Mikkelhaugen 2 i Fosnavåg. Muren bygges i grense …

πŸ“ Mikkelhaugen 2 Herøy (Møre og Romsdal)
Situasjonsplan som viser tomtene (30/96, 30/97, 30/99, 30/3), bygningers plassering, vegnett (Kvæstadsvegen) og terrengforhold.
Rehabilitation Enebolig

Endring av innvendige bærekonstruksjoner i enebolig, Kviehaugen 8B

Endring av innvendige bærekonstruksjoner i en eksisterende enebolig på Kviehaugen 8B. Prosjektet omfatter utsparing i e…

πŸ“ Kviehaugen 8B Herøy (Møre og Romsdal)
3D-visualisering av et hus med omgivende landskap og nabohus
Extension Enebolig

Tilbygg med garasje og terrasse på Jøssangvegen 146, Jørpeland

Ny garasje på 36,7 m² med påbygg over som utvider stue og kjøkken i eksisterende enebolig på Jøssangvegen 146. Tilbygge…

πŸ“ Jøssangvegen 146 Strand