Enebolig 2126 treff

🏠
FacadeChange Enebolig

Fasadeendring og påbygg på enebolig i Rosveien 509

Prosjektet omfatter fasadeendring og påbygg på en eksisterende enebolig i Rosveien 509. Tiltaket inkluderer ettergodkje…

πŸ“ Rosveien 509 Våler (Østfold)
🏠
Extension Enebolig

Enkle tiltak på enebolig

Søknad om ferdigattest for enebolig med utførte enkle tiltak.

πŸ“ Kåtorpgrenda 68 Hamar
Bildet viser fire fasadetegninger av en bolig, inkludert front- og sideutsikter.
ChangeOfUse Enebolig

Bruksendring og fasadeendring på enebolig i Bukkene Bruses vei 9

Prosjektet omfatter bruksendring av kjellerrom fra tilleggsdel til hoveddel med et samlet areal på ca. 34,5 m², inklude…

πŸ“ Bukkene Bruses vei 9 Asker
🏠
Rehabilitation Enebolig

Piperehabilitering med isolert stålpipe i Skjærvik E6 83

Etablering av ny isolert stålpipe i en enebolig på eiendommen Skjærvik E6 83. Prosjektet omfatter montering av en isole…

πŸ“ Skjærvik-E6 83 Narvik
🏠
FacadeChange Enebolig

Fasadeendring på enebolig, Gnr 6 Bnr 2

Fasadeendring på en eksisterende enebolig som innebærer endringer i byggets ytre utseende. Prosjektet omfatter oppdater…

πŸ“ Ukshøvdvegen 15 Øystre Slidre
Fotografi av en bygning under oppføring eller renovering, sett gjennom et vindu. Bildet viser fasaden med rødt tak, vinduer og deler av konstruksjonen.
ChangeOfUse Enebolig

Bruksendring og fasadeendring på enebolig, Trettestykket 66

Eksisterende enebolig på Trettestykket 66 gjennomgår bruksendring hvor underetasjen endres fra tilleggsdel til hoveddel…

πŸ“ Trettestykket 66 Asker
Fasadetegning av bygning sett fra vest, med mål og terrenglinjer
NewConstruction Enebolig

Ny enebolig med garasje i Hofstadåsen 19A, Asker

Ny enebolig med sekundær boenhet og dobbel garasje oppføres på Hofstadåsen 19A i Asker. Boligen har underetasje, første…

πŸ“ Hofstadåsen 19A Asker
Fasadetegninger som viser bygningens utsyn mot nordøst, sørvest, nordvest og sørøst, samt 3D-visualiseringer av fasadene.
VerticalExtension Enebolig

Oppføring av arker på enebolig i Kullhusbakken 25

To nye arker bygges på eksisterende saltak på enebolig i Kullhusbakken 25. Arkene plasseres på takflatene mot nordøst o…

πŸ“ Kullhusbakken 25 Nome
🏠
Rehabilitation Enebolig

Rehabilitering av enebolig

Rehabilitering av eksisterende enebolig som innebærer oppgradering og forbedring av bygningsstruktur og innvendige og/e…

Narvik
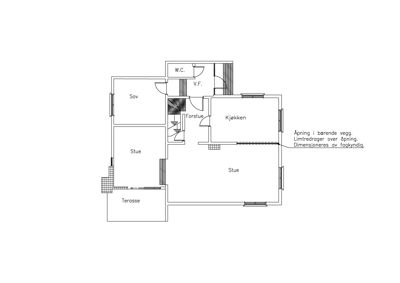
Etasjeplan som viser romfordeling (stue, soverom, kjøkken, W.C.) og utvendige områder (terrasse).
Rehabilitation Enebolig

Åpning i bærevegg i enebolig, Kullhusbakken 36

Åpning i eksisterende bærevegg mellom kjøkken og stue i eneboligens 1. etasje. En ca. 3 meter bred del av veggen fjerne…

πŸ“ Kullhusbakken 36 Nome
Et fotografi av en liten hytte eller barnehage i en snødekt skog.
ChangeOfUse Enebolig

Bruksendring fra barnehage til enebolig i Einar Bergs vei 17, Svolvær

Eksisterende bygning på 141 m² BRA, tidligere brukt som barnehage, er omgjort til enebolig uten endringer i planløsning…

πŸ“ Einar Bergs vei 17 Vågan
🏠
Extension Enebolig

Tilbygg til våningshus i Bygdinvegen 1394

Ny tilbygg til eksisterende våningshus på eiendommen Bygdinvegen 1394. Tilbygget vil utvide boligens areal og funksjona…

πŸ“ Rabalen 71 Øystre Slidre
🏠
NewConstruction Enebolig

Ny enebolig i Postbergvegen 1

Ny enebolig skal oppføres på eiendommen i Postbergvegen 1. Prosjektet omfatter et frittstående boligbygg beregnet for e…

πŸ“ Postbergvegen 1 Øystre Slidre
Fasadetegning som viser oppriss av bygningen sett fra to sider (sør-øst og nord-vest) med mål og koter.
VerticalExtension Enebolig

Innbygging av terrasse til uisolert vinterhage i Nordbyhagaveien 63

Innbygging av en delvis overbygget terrasse på eksisterende enebolig i Nordbyhagaveien 63 til en uisolert vinterhage på…

πŸ“ Nordbyhagaveien 63 Lørenskog
Fasadetegning som viser bygningens utseende fra øst (Fasade est) med oppgitt mål og detaljer.
NewConstruction Enebolig

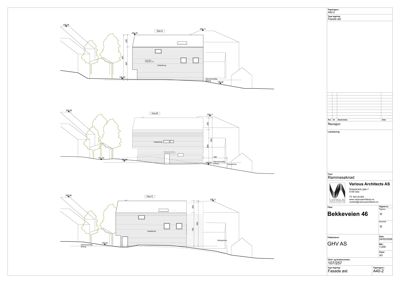
Oppføring av tre eneboliger med heis i Bekkeveien 46, Fjellhamar

Tre nye frittstående eneboliger oppføres på eiendommen Bekkeveien 46B, 46C og 46D i Fjellhamar, med riving av eksistere…

πŸ“ Bekkeveien 46 Lørenskog
3D-visualisering av en moderne villa sett fra et vinklet utsnitt, med grønt terreng og tilhørende uteplasser.
NewConstruction Enebolig

Hovedombygging med påbygg og tilbygg i Viggo Hansteens vei 29

Eksisterende tomannsbolig fra 1958 i Viggo Hansteens vei 29 ombygges til en enebolig med full 2. etasje, påbygg av en 3…

πŸ“ Viggo Hansteens vei 29 Lørenskog
🏠
ChangeOfUse Enebolig

Bruksendring av tilleggsdel til hoveddel i underetasje

Saken gjelder søknad og utstedelse av tillatelse for å endre bruksform av en tilleggsdel til hoveddel i underetasje, sa…

πŸ“ Kobbervegen 13 Hamar
Fasadetegning av en toetasjes bygning sett fra sør, med oppgitt høyder, mål og konstruksjonsdetaljer.
Extension Enebolig

Tilbygg og fasadeendring på enebolig i Ringveien 21, Fjellhamar

Ny tilbygg på 25 m² på boligens sørside med underordnet takform og tilpassede gesims- og mønehøyder, slik at tilbygget …

πŸ“ Ringveien 21 Lørenskog
🏠
Extension Enebolig

Tilbygg, påbygg og fasadeendring på enebolig i Holenveien 2

Tiltaket omfatter tilbygg, påbygg, bruksendring og fasadeendring på en eksisterende enebolig i Holenveien 2. Prosjektet…

πŸ“ Holenveien 2A Lørenskog
3D-visualisering (rendering) av et husprosjekt sett fra ulike vinkler, med tilhørende tegningshode som bekrefter at det er en illustrasjon.
VerticalExtension Enebolig

Påbygg og fasadeendring på enebolig i Tors vei 23, Fjellhamar

Påbygg på eksisterende enebolig i Tors vei 23 med gesimshøyde på 5,9 meter og to etasjer. Påbygget inkluderer takoppbyg…

πŸ“ Tors vei 13 Lørenskog
🏠
Extension Enebolig

Tilbygg med fasadeendring og bruksendring på Løkenåsringen 22

Tilbygg på eksisterende enebolig på Løkenåsringen 22 i Lørenskog med tilhørende fasadeendring og endring av bruk. Prosj…

πŸ“ Løkenåsringen 22 Lørenskog
🏠
Extension Enebolig

Tilbygg med takterrasse og riving på Kurlandsåsen 1, Lørenskog

Tiltaket omfatter ombygging, tilbygg og påbygg på en eksisterende enebolig på Kurlandsåsen 1 i Lørenskog. Prosjektet in…

πŸ“ Kurlandsåsen 1 Lørenskog
🏠
ChangeOfUse Enebolig

Bruksendring, fasadeendring og tilbygg under 50 m² i Marcus Thranes vei 82

Prosjektet omfatter bruksendring fra tilleggsdel til hoveddel i en enebolig med sekundærleilighet, inkludert fasadeendr…

πŸ“ Marcus Thranes vei 82 Lørenskog
🏠
Extension Enebolig

Endring av enebolig med tilbygg og garasje

Søknad om endring av enebolig med tilbygg og garasje.

πŸ“ Håkon Håkonsons gate 5C Hamar