Enebolig 2124 treff

3D-visualisering (rendering) av en planlagt eller ombygd enebolig, som viser fasade, materialvalg og romoppdeling.
Extension Enebolig

Tilbygg, riving og fasadeendring på enebolig i Thore Bjerkes veg 23

Prosjektet omfatter riving av eksisterende tilbygg og garasje på til sammen 55 m² BRA, samt oppføring av nye tilbygg me…

πŸ“ Thore Bjerkes veg 23 Ringsaker
3D-visualisering av en planlagt eller ombygd bygning sett fra utsiden, med omgivende natur.
Extension Enebolig

Tilbygg og innbygging av veranda til spisestue, Nordre Ringsveg 279

Ny tilbygg på ca. 9,7 m² ved inngangspartiet for å etablere et mer romslig inngangsparti/gang, samt innbygging av eksis…

πŸ“ Nordre Ringsveg 279 Ringsaker
3D-perspektivtegning av en bolig med visuell fremstilling av fasade, tak og materialvalg.
NewConstruction Enebolig

Ny enebolig med riving på Ringsvegen 342, Moelv

Ny enebolig på 140,4 m² BRA oppføres på eiendommen Ringsvegen 342 i Moelv, med saltak og tilpasset eksisterende terreng…

πŸ“ Ringsvegen 342 Ringsaker
Fasadetegning (opprikk) som viser bygningens utsyn fra fire ulike vinkler.
Extension Enebolig

Tilbygg bolig i Mengsholvegen 18, Stavsjø

Ny tilbygg på eksisterende enebolig i Mengsholvegen 18, Stavsjø. Tilbygget vil bli integrert med boligens hovedstruktur…

πŸ“ Mengsholvegen 18 Ringsaker
Fotografi av en fasade med trepanel, et vindu og en vegglampe.
ChangeOfUse Enebolig

Bruksendring fra bod til soverom med fasadeendring i Åbyfaret 12B

Bruksendring av et rom i en enebolig fra bod til soverom med et nytt rømningsvindu som oppfyller krav til størrelse og …

πŸ“ Åbyfaret 12A Asker
En 3D-visualisering (linjetegning) av en enebolig sett fra en vinkel som viser fasade og takform.
Extension Enebolig

Tilbygg med nytt soverom på enebolig i Herregårdsvegen 15, Ulefoss

Ny påbygging av et tilbygg på ca. 10 m² BRA på en enebolig i Herregårdsvegen 15, Ulefoss. Tilbygget bygges som en innby…

πŸ“ Herregårdsvegen 15 Nome
Fotografier av et tomt eller byggefelt med gress, hekk, trær og nabolag i bakgrunnen.
NewConstruction Enebolig

Ny enebolig med fradeling i Barstrandveien, Gimsøysand

Ny enebolig på 68 m² BRA med saltak og trekledning oppføres på en fradelt tomt på 2715 m² i Barstrandveien, Gimsøysand.…

πŸ“ Barstrandveien 101 Vågan
Fotografi av en rød enebolig sett fra siden, med en skogkledde bakke i bakgrunnen.
ChangeOfUse Enebolig

Bruksendring og fasadeendring på enebolig i Hyggenveien 61

Eksisterende enebolig fra 1940 med totalt 150 m² BRA gjennomgår bruksendring av kjelleretasjen fra tilleggsdel til hove…

πŸ“ Hyggenveien 61 Asker
🏠
Extension Enebolig

Tilbygg og riving på enebolig i Feldbergkroken 5

Tilbygg og riving på eksisterende enebolig i Feldbergkroken 5. Prosjektet omfatter oppføring av nytt tilbygg samt rivin…

πŸ“ Feldbergkroken 5 Jevnaker
🏠
FacadeChange Enebolig

Fasadeendring med nye vinduer på Sanglundvegen 14A

Fasadeendring på enebolig i Sanglundvegen 14A som innebærer utskifting eller montering av nye vinduer i eksisterende fa…

πŸ“ Sanglundvegen 14A Hamar
🏠
FacadeChange Enebolig

Fasadeendring i enebolig

Søknad om tillatelse uten ansvarsrett for en fasadeendring i enebolig på Sæbyåsen 2. Detaljer om tiltaket er ikke tilgj…

πŸ“ Sæbyåsen 2 Våler (Østfold)
🏠
Extension Enebolig

Utvidelse av stue i enebolig

Søknad om tillatelse uten ansvarsrett for utvidelse av stue i enebolig på Turulia 37.

πŸ“ Turulia 37 Våler (Østfold)
🏠
FacadeChange Enebolig

Fasadeendring og carport med bod på Sirius 39

Prosjektet omfatter fasadeendring og ny planløsning i en eksisterende enebolig på Sirius 39. Den eksisterende garasjen …

πŸ“ Sirius 39 Hamar
3D-visualisering av en hytte sett fra ulike høyder (kl. 1200, 1500, 1800) for solstudie.
NewConstruction Enebolig

Ny enebolig med integrert garasje i Fagertunveien, Asker

Ny enebolig på 120,2 m² BRA med integrert garasje på totalt 37,8 m², oppført i ett plan med saltak tekket med teglstein…

πŸ“ Fagertunveien 1 Asker
Fotografier av en eksisterende rød trebolig (kårboll) sett fra to ulike vinkler, med tilhørende tekstbeskrivelse av tiltaket.
Extension Enebolig

Renovering og tilbygg av kårbolig i Nordre Gomnesvei 55

Eksisterende kårbolig på eiendommen Nordre Gomnesvei 55 gjennomgår omfattende rehabilitering og ombygging for å oppnå u…

πŸ“ Nordre Gomnesvei 55 Hole
🏠
FacadeChange Enebolig

Fasadeendring og terrassebygging på Kroken 9A

Fasadeendring og bygging av terrasse på en eksisterende enebolig på Kroken 9A. Prosjektet omfatter endring av fasadens …

πŸ“ Kroken 9A Hamar
Fotografier av en eksisterende enebolig sett fra to ulike vinkler (fra siden og fra fronten).
ChangeOfUse Enebolig

Bruksendring i enebolig på Bråtavegen 9, Flisa

Bruksendringen omfatter omgjøring av rom i en eksisterende enebolig, hvor treningsrom gjøres om til kjøkken/stue, gang …

πŸ“ Bråtavegen 9 Åsnes
🏠
Extension Enebolig

Tilbygg på utstikker vestvegg og bruksendring av bad

Saken gjelder søknad om å bygge tilbygg på utstikker i vestvegg samt en bruksendring hvor boden ved siden av badet skal…

πŸ“ Vestlia 23 Våler (Østfold)
Et 3D-modellert bilde (rendering) som viser et utomhusplan med en tomte (markert med blå linje) og omgivende bebyggelse.
NewConstruction Enebolig

Ny enebolig med sokkeletasje i Otto Valstads vei 37

Ny frittliggende enebolig over to plan med underetasje og hovedetasje på totalt 221 m² BRA bygges i Otto Valstads vei 3…

πŸ“ Otto Valstads vei 37 Asker
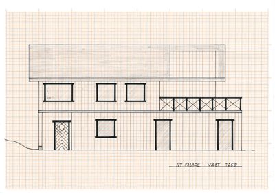
Tegning av en fasade (vest) med vinduer, dører og balkong.
Extension Enebolig

Tilbygg av bolig og garasje

Saken gjelder søknad om tillatelse til tilbygg av bolig og garasje på eiendom med Gbnr 427/31. Prosjektet inkluderer om…

πŸ“ Holtevegen 420 Ringsaker
Fasadetegning av en bygning med tekstbeskrivelse av høyder og avvik fra godkjente tegninger.
NewConstruction Enebolig

Ny enebolig med fasadeendringer i Strandveien 4

Ny enebolig i to etasjer med saltak oppført i tre, med fasade mot sør som har 10 vinduer, 2 dører og 2 balkonger. Bygge…

πŸ“ Strandveien 4 Asker
🏠
ChangeOfUse Enebolig

Bruksendring fra tilleggsdel til hoveddel

Søknad om å endre brukskarakter fra tilleggsdel til hoveddel i enebolig ved Leirvegen 10.

πŸ“ Leirvegen 10 Hamar
🏠
FacadeChange Enebolig

Fasadeendring og påbygg på enebolig i Rosveien 509

Prosjektet omfatter fasadeendring og påbygg på en eksisterende enebolig i Rosveien 509. Tiltaket inkluderer ettergodkje…

πŸ“ Rosveien 509 Våler (Østfold)
🏠
Extension Enebolig

Enkle tiltak på enebolig

Søknad om ferdigattest for enebolig med utførte enkle tiltak.

πŸ“ Kåtorpgrenda 68 Hamar