Enebolig 2124 treff

Fasadetegning av en eksisterende bygning sett fra øst, med tegninger og tekst om endringer.
FacadeChange Enebolig

Fasadeendring og ny vinterhage på Guiveien 80, Heggedal

Prosjektet omfatter fasadeendringer på en eksisterende enebolig fra tidlig 1900-tall, inkludert utskifting og endring a…

πŸ“ Guiveien 80 Asker
3D-visualisering av en moderne villa sett fra sørvest, inkludert biloppstilling og omgivelser.
NewConstruction Enebolig

Ny enebolig med sekundærleilighet på Torstadåsen 39C, Asker

Ny frittliggende enebolig med integrert sekundærleilighet på eiendommen Torstadåsen 39C i Asker kommune. Boligen er pla…

πŸ“ Torstadåsen 39C Asker
Fotografi av en hvit, tobygget bygning (en med skrått tak og en med flatt tak) på en grønn tomt med fjell i bakgrunnen.
FacadeChange Enebolig

Fasadeendring og rehabilitering av enebolig

Saken gjelder søknad om tillatelse til fasadeendring, rehabilitering og endring av vinduer i enebolig på Unstadveien 11…

πŸ“ Unstadveien 119 Sør-Odal
Situasjonsplan som viser tomtens beliggenhet, naboeiendommer og bygningers plassering i forhold til veier.
NewConstruction Enebolig

Oppføring av to eneboliger i Tronstadveien 3 og 5

Prosjektet omfatter oppføring av to nye eneboliger på eiendommene Tronstadveien 3 og Tronstadveien 5 i Asker kommune. D…

πŸ“ Tronstadveien 16 Asker
Situasjonsplan (kartutsnitt) som viser plassering av bygninger, veier og tomtegrenser i forhold til omgivelsene.
Extension Enebolig

Tilbygg til våningshus i Gomnesveien 458, Røyse

Ny tilbygg på 101 m² grunnflate til eksisterende våningshus i LNF-område ved Gomnesveien 458. Tilbygget kobles sammen m…

πŸ“ Gomnesveien 458 Hole
Fargefasadevisualiseringer (renderinger) av en planlagt bygning sett fra fire ulike retninger (Nord-øst, Sør-vest, Nord og Sør).
NewConstruction Enebolig

Ny enebolig med terrasse i Hjellveien 16, Henningsvær

Ny enebolig på 149,9 m² BRA med sokkel på 14,7 m², totalt ca. 164,6 m², oppføres på tomt i Hjellveien 16, Henningsvær. …

πŸ“ Hjellveien 16 Vågan
Fotografi av et snødekt terreng med trær og steiner, sannsynligvis en del av en byggesaks dokumentasjon.
Extension Enebolig

Montering av takvindu i enebolig, Kapellveien 4

Ett nytt takvindu på 94 x 118 cm monteres i takflaten på et baderom i en enebolig fra ca. 1975. Takflaten er ca. 30 m²,…

πŸ“ Kapellveien 4 Hole
🏠
Extension Enebolig

Tilbygg over inngangsparti og fasadeendring i Moavegen 5

Tilbygg over eksisterende inngangsparti på en enebolig i Moavegen 5, med tilhørende fasadeendring. Prosjektet innebærer…

πŸ“ Moavegen 5 Nord-Aurdal
🏠
Extension Enebolig

Tilbygg og fasadeendring på enebolig i Venevassvegen 48

Tilbygg og endring av fasade på en eksisterende enebolig i Venevassvegen 48. Prosjektet omfatter fysisk utvidelse av bo…

πŸ“ Venevassvegen 48 Nord-Aurdal
Fire perspektivtegninger (renderinger) av en planlagt bygning sett fra ulike vinkler (Nord-øst, Sør-vest, Nord og Sør).
Extension Enebolig

Tilbygg på bolig i Knutvikveien 53, Svolvær

To-etasjes tilbygg på eksisterende bolig i Knutvikveien 53, Svolvær, med utvidelse mot sør. Tilbygget inkluderer to sov…

πŸ“ Knutvikveien 53 Vågan
En 3D-visualisering (rendering) av en bygning sett fra siden, som viser fasade, vinduer og takform.
Extension Enebolig

Tilbygg til enebolig i Laukvikveien 152, Laukvik

Ny tilbygg på 49,2 m² BRA fordelt over to eiendommer (gnr./bnr. 66/75 og 66/229) til en eksisterende enebolig i Laukvik…

πŸ“ Laukvikveien 152 Vågan
3D-visualisering (rendering) av et hus sett fra en vinkel som viser tak, fasade og omgivelser. Bildet inneholder også mindre detaljerte utsnitt av samme bygning.
Extension Enebolig

Tilbygg, ny garasje og støttemur på Ralph Tambs vei 1

Prosjektet omfatter oppføring av et tilbygg til eksisterende enebolig, ny frittstående dobbelgarasje med underetasje, s…

πŸ“ Ralph Tambs vei 1 Asker
Bildet viser tre 3D-perspektivtegninger (renderinger) av en planlagt villa, inkludert front, side og bakside. Tegningene er en del av en byggeomelding.
VerticalExtension Enebolig

Påbygg, tilbygg og fasadeendring av våningshus i Tinghaugvegen 79

Eksisterende enebolig med kjeller og én etasje bygges om til to etasjer med påbygg og tilbygg. Påbygg i 2. etasje på ca…

πŸ“ Tinghaugvegen 78 Midt-Telemark
Tre foton som viser entreprenør som utfører drenering rundt et bygg i en morene med fjell og stein.
FacadeChange Enebolig

Fasadeendring og tilbygg på enebolig, Flakstadveien 297

Eksisterende enebolig i to etasjer med saltak og trekledning får fasadeendringer som inkluderer ny kledning, utskifting…

πŸ“ Flakstadveien 297 Flakstad
Penselt tegning som viser fasaden (fra vest) til en planlagt bygning.
Extension Enebolig

Tilbygg til enebolig i Tjønnåsvegen 4, Bø

Ny tilbygg i to etasjer på eksisterende enebolig i Tjønnåsvegen 4, Bø. Tilbygget har et bruksareal på 36,4 m² og et beb…

πŸ“ Tjønnåsvegen 4 Midt-Telemark
🏠
Extension Enebolig

Tilbygg og fasadeendring på enebolig, Sørmessenvegen 89

Tilbygg og fasadeendring på en eksisterende enebolig i Sørmessenvegen 89. Prosjektet innebærer utvidelse av boligens ar…

πŸ“ Sørmessenvegen 87 Ringsaker
Fasadetegning som viser bygningens utseende sett fra front og side.
ChangeOfUse Enebolig

Bruksendring fra bod til oppholdsrom i Vettrelia 34

Bruksendring av et rom på 22.96 m² i en enebolig i Vettrelia 34 fra bod til oppholdsrom. Rommet har en innvendig takhøy…

πŸ“ Vettrekollen 24 Asker
Fotografi av en gul, trepanelt hytte med steinfundament, sett fra en vinkel som viser både fasade og sidevegg. Hytta er plassert på en grønn hage med skog i bakgrunnen.
Extension Enebolig

Tilbygg til enebolig i Vatnarvegen 903

Ny tilbygg på 43,6 m² til eksisterende enebolig i Vatnarvegen 903. Tilbygget består av en etasje med stue på 35,2 m² og…

πŸ“ Vatnarvegen 903 Midt-Telemark
Et svart-hvitt fotografi av en gravhaug på Vollemoen i Bø kommune, tatt i 19445.
Extension Enebolig

Tilbygg med garasje til enebolig i Friheimvegen 1, Bø

Ny tilbygg på 76,25 m² med garasje på eiendommen Friheimvegen 1 i Bø. Tilbygget er planlagt som en forlengelse av eksis…

πŸ“ Friheimvegen 1 Midt-Telemark
Fasadetegning som viser fire utsnitt (Fasade 1-4) av en bygning med takform, vinduer og detaljer.
NewConstruction Enebolig

Ny enebolig med garasje på Nordbøflåtin 9, Bø

Ny enebolig på 139,8 m² BRA med saltak og trekledning oppføres på Nordbøflåtin 9 i Bø. Boligen har to etasjer, innehold…

πŸ“ Nordbøflåtin 9 Midt-Telemark
🏠
NewConstruction Enebolig

Ny enebolig på fradelt tomt i Børkesvevegen 81, Brumunddal

Ny enebolig planlegges oppført på en fradelt tomt fra eiendommen Børkesvevegen 81 i Brumunddal. Tomten er ca. 700 m² et…

πŸ“ Børkesvevegen 81 Ringsaker
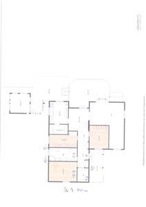
Etasjeplan (plantegning) som viser romfordeling, arealer og funksjoner i et hus.
Extension Enebolig

Tilbygg bolig på Åsetvegen 15, Åsmarka

Ny tilbygg på eksisterende enebolig på Åsetvegen 15 i Åsmarka med et bruttoareal på ca. 37 m². Tilbygget inkluderer bla…

πŸ“ Åsetvegen 15 Ringsaker
Bildet viser en tegning med fasadeopprikk (fra front og side) samt etasjeplaner for en bolig.
Extension Enebolig

Bruksendring, fasadeendring og tilbygg på enebolig i Nedre Brøholtlia 4

Eksisterende enebolig på Nedre Brøholtlia 4 gjennomgår en bruksendring i underetasjen fra tilleggsdel til hoveddel, med…

πŸ“ Nedre Brøholtlia 4 Asker
🏠
Extension Enebolig

Tilbygg på enebolig i Tingnesvegen 12

Ny tilbygg på eksisterende enebolig i Tingnesvegen 12. Prosjektet innebærer en fysisk utvidelse av boligens areal, med …

πŸ“ Tingnesvegen 12 Nord-Aurdal