Enebolig 2123 treff

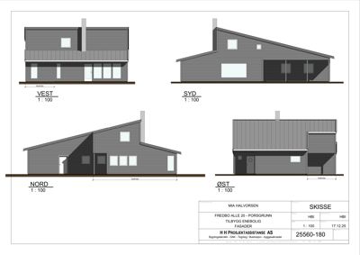
Fasadetegning som viser bygningens utseende fra fire sider: Vest, Syd, Nord og Øst.
Extension Enebolig

Tilbygg til enebolig i Fredbo alle 20, Porsgrunn

Ny tilbygg på 32 m² til eksisterende enebolig i Fredbo alle 20, Porsgrunn, med to nye rom som skal benyttes til stue/kj…

πŸ“ Fredbo alle 20 Porsgrunn
🏠
Extension Enebolig

Tilbygg på enebolig i Preståsvegen 11

Tilbygg til eksisterende enebolig på eiendommen i Preståsvegen 11. Tilbygget plasseres nær eiendomsgrensen, omtrent 1-2…

πŸ“ Preståsvegen 11 Porsgrunn
Fotografier av en balkong og en utvendig trapp som er inkludert i en tilstandsrapport.
ChangeOfUse Enebolig

Bruksendring og fasadeendring på enebolig, Gamle Kongeveg 11

Prosjektet omfatter bruksendring av kjellerareal på 73,2 m² fra tilleggsdel til hoveddel i en enebolig oppført i 1975, …

πŸ“ Gamle Kongeveg 11 Nes
Fotografier av tekniske rom (himling og rekkverk) som viser avvik i en byggesak.
NewConstruction Enebolig

Ny enebolig med integrert garasje i Lupinsvingen 22, Årnes

Ny enebolig på 193,4 m² BRA fordelt på to etasjer med integrert garasje på 60 m². Boligen inneholder fire soverom, to b…

πŸ“ Lupinsvingen 22 Nes
3D-visualisering av en toetasjes bolig med mørk trepaneling, store vinduer og en utvendig trapp.
NewConstruction Enebolig

Ny enebolig med garasje på Snegebekk, Ullensvang

Ny enebolig med tilhørende garasje oppføres på tomt 5 i boligfeltet Snegebekk i Ullensvang kommune. Boligen har et saml…

πŸ“ Snegebekk Ullensvang
Fasadetegning som viser oppriss av eksisterende og nytt hus sett fra fire sider (NV, SV, SØ, NØ) med mål og høyder.
Extension Enebolig

Tilbygg til enebolig på Kysnesvegen 612, Kysnesstrand

Ny tilbygg på 67 m² BYA (56 m² oppvarmet BRA) til eksisterende enebolig på Kysnesvegen 612. Tilbygget er 16 meter langt…

πŸ“ Kysnesvegen 612 Ullensvang
Fasadetegning som viser bygningens utseende fra nord og sør.
NewConstruction Enebolig

Ny enebolig og garasje på Kalhagen 22, Ullensvang

Ny enebolig i to etasjer med totalt 120,5 m² BRA i 2. etasje, inkludert stue/kjøkken, tre soverom, bad, WC, vaskerom, g…

πŸ“ Kalhagen 22 Ullensvang
En 3D-visualisering (rendering) av en påbygg til en hytteeiendom, som viser fasade, tak, trapp og garasje.
ChangeOfUse Enebolig

Bruksendring av garasje til bolig og utvidelse av avkjørsel, Ullensvangvegen 240

Bruksendring av eksisterende garasje på 40 m² til boligformål i underetasjen av en enebolig på Ullensvangvegen 240. Gar…

πŸ“ Ystanes, Ullensvangvegen 240 Ullensvang
Fotografi av et byggeplassområde med store steinblokker i forgrunnen, en person i sikkerhetsutstyr i bakgrunnen og bebyggelse i distansen.
NewConstruction Enebolig

Ny enebolig med garasje i Pjåkaveien 2A, Tyristrand

Ny enebolig i to etasjer med integrert garasje på eiendommen Pjåkaveien 2A i Tyristrand. Boligen har et bebygd areal på…

πŸ“ Pjåkaveien 2A Ringerike
Fasadetegning som viser bygningens utsyn mot de fire hovedretningene (Nord, Sør, Øst, Vest).
FacadeChange Enebolig

Fasadeendring og bruksendring i enebolig, Camilla Colletts veg 5

Prosjektet omfatter fasadeendring og bruksendring i en enebolig fra 1959 på Camilla Colletts veg 5. Fasadeendringene in…

πŸ“ Camilla Colletts veg 5 Eidsvoll
🏠
Extension Enebolig

Fasadeendring, tilbygg og takombygging på Bekkeliveien 112

Prosjektet omfatter fasadeendring, oppføring av tilbygg og ombygging av tak på en eksisterende enebolig. Endringene vil…

πŸ“ Bekkeliveien 112 Nordre Follo
🏠
ChangeOfUse Enebolig

Bruksendring med fasadeendring og trapp i Ellingsrudveien 25B

Endring av bruk av eksisterende enebolig med tilhørende mindre fasadeendring og oppføring av en utvendig trapp. Prosjek…

πŸ“ Ellingsrudveien 25B Nordre Follo
Dokumentet inneholder en søknad med tekster og fire historiske kart/flyfoto som viser eiendommen og området.
Extension Enebolig

Tilbygg, ombygging og påbygg av enebolig med sjøbod og brygge i Vaterlands gate…

Prosjektet omfatter en omfattende utvidelse og ombygging av en eksisterende enebolig i Vaterlands gate 58, Langesund. D…

πŸ“ Vaterlands gate 58 Bamble
En håndtegnet fasadevisning (opprikk) av en bygning, sannsynligvis en uthus eller garasje, med angitte mål på vinduer og dør.
Extension Enebolig

Tilbygg og fasadeendring i enebolig med carport

Saken gjelder søknad om tilbygg, fasadeendringer og endret planløsning i enebolig på Kopperveien 6, samt vurdering av c…

πŸ“ Kopperveien 6 Kvæfjord
🏠
FacadeChange Enebolig

Endringer i bærekonstruksjoner og fasade på Breimyra 90

Endringer i bærekonstruksjoner og fasade på en eksisterende enebolig på Breimyra 90. Prosjektet innebærer modifikasjone…

πŸ“ Breimyra 90 Bergen
🏠
Extension Enebolig

Tilbygg til enebolig i Fjellveien 121, Bergen

Tilbygg til eksisterende enebolig i Fjellveien 121 i Bergen kommune. Prosjektet innebærer en fysisk utvidelse av bolige…

πŸ“ Fjellveien 121 Bergen
🏠
NewConstruction Enebolig

Ny enebolig på Gnr 43 Bnr 33, Bergen

Ny enebolig skal oppføres på eiendommen Gnr 43 Bnr 33 i Bergen kommune. Detaljer om boligens størrelse, materialer og r…

Bergen
🏠
Extension Enebolig

Tilbygg til enebolig i Vardesvingen 14, Bergen

Tilbygg til eksisterende enebolig i Vardesvingen 14 i Bergen kommune. Prosjektet omfatter en fysisk utvidelse av bolige…

πŸ“ Vardesvingen 14 Bergen
🏠
Extension Enebolig

Ombygging og tilbygg på enebolig, Øvre Kråkenes 49

Prosjektet omfatter ombygging og tilbygg på en eksisterende enebolig på Øvre Kråkenes 49. Det inkluderer også oppføring…

πŸ“ Øvre Kråkenes 49 Bergen
🏠
Extension Enebolig

Tilbygg til enebolig på Søre Tuft 31, Bergen

Tilbygg til eksisterende enebolig på Søre Tuft 31 i Bergen kommune. Prosjektet innebærer en fysisk utvidelse av boligen…

πŸ“ Søre Tuft 31 Bergen
🏠
Extension Enebolig

Tilbygg til enebolig i Nordlia 5, Bergen

Ny tilbygg til eksisterende enebolig på eiendommen Nordlia 5 i Bergen. Tilbygget vil utvide boligens areal og kan inklu…

πŸ“ Nordlia 5 Bergen
🏠
FacadeChange Enebolig

Fasadeendring og bruksendring på enebolig i Breimyra 34

Endring av fasade og bruksendring i en eksisterende enebolig på adressen Breimyra 34. Prosjektet innebærer modifikasjon…

πŸ“ Breimyra 34 Bergen
Bildet viser en tegning med to deler: øverst en grunnplan (5,8 m x 3,9 m) og nederst en utsjåning mot Haindalsveien (2,1 m bred).
Extension Enebolig

Fasadeendring, terrasse og garasjeutvidelse i Haukedalsveien 17

Prosjektet omfatter en fasadeendring på eksisterende enebolig i tre med saltak og teglstein, inkludert fornyelse av fas…

πŸ“ Haukedalsveien 17 Bergen
🏠
VerticalExtension Enebolig

Påbygg på enebolig i Markaneset 36, Bergen

Påbygg på eksisterende enebolig i Markaneset 36 i Bergen kommune. Prosjektet innebærer en vertikal utvidelse av boligen…

πŸ“ Markaneset 36 Bergen