Enebolig 2126 treff

🏠
Rehabilitation Enebolig

Rehabilitering av enebolig

Rehabilitering av eksisterende enebolig som innebærer oppgradering og forbedring av bygningskroppen. Prosjektet kan ink…

Narvik
🏠
NewConstruction Enebolig

Ferdigattest for enebolig på Steinfotstigen 2

Ferdigattest er utstedt for en ny enebolig på Steinfotstigen 2. Prosjektet omfatter oppføring av en frittstående bolig,…

πŸ“ Steinfotstigen 2 Etnedal
Fasadetegning med oppriss av en bygning sett fra utsiden, inkludert detaljer om vinduer og takform.
FacadeChange Enebolig

Fasadeendring, tilbygg og bruksendring i enebolig på Øvre Valland 19

Eksisterende enebolig på Øvre Valland 19 gjennomgår fasadeendring med fjerning av eksisterende balkong og oppføring av …

πŸ“ Øvre Valland 19 Kvam
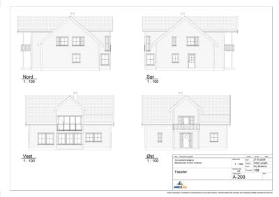
Fasadetegning som viser bygningens utsyn fra alle fire sider (Nord, Sør, Vest, Øst).
FacadeChange Enebolig

Innbygging av altan og fasadeendring på Bjønnesmoen 23

Innbygging av tidligere altan på fasade vest i både 1. og 2. etasje på eksisterende enebolig med totalt 197 m². Innbygg…

πŸ“ Bjønnesmoen 23 Narvik
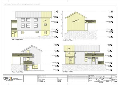
Fasadetegning som viser utsiden av en bygning med tiltak for restaurering og tilbygg, inkludert detaljer om vinduer, dører og materialer.
Extension Enebolig

Tilbygg og ombygging av enebolig i Furuveien 19, Narvik

Ny tilbygg på ca. 33 m² til eksisterende enebolig i Furuveien 19, med ombygging av carport/biloppstillingsplass. Tilbyg…

πŸ“ Furuveien 19 Narvik
Tegning som viser fasader (oppsett) av en bygning sett fra øst og vest, inkludert detaljer om terrasser og trapper.
Extension Enebolig

Tilbygg og fasadeendring på enebolig i Ekornveien 12

Ny veranda rundt eksisterende enebolig med samlet tilleggsareal på ca. 112 m², inkludert heving og reetablering av støt…

πŸ“ Ekornveien 12 Narvik
Bildet viser to fotografier av en vei og et terreng med markerte områder for berggrunn, samt en situasjonskart under.
NewConstruction Enebolig

Ny enebolig med garasje i underetasje, Røykenveien 284

Ny enebolig på totalt 428,6 m² fordelt på tre etasjer med garasje i underetasjen på 38,3 m². Bygget har betongfasader o…

πŸ“ Røykenveien 284A Asker
🏠
Extension Enebolig

Riving av utbygg og carport samt oppføring av tilbygg med garasje i kjeller

Prosjektet innebærer riving av eksisterende utbygg og carport, etterfulgt av oppføring av et større tilbygg med garasje…

πŸ“ General Bangs veg 28A Trondheim - Tråante
Fasadetegning som viser bygningens utsyn fra alle fire sider (Nord, Vest, Syd, Øst).
Rehabilitation Enebolig

Endring av innvendig bærekonstruksjon i Fjellstadveien 13A

Prosjektet omfatter fjerning av en eksisterende bærende vegg i en bolig og etablering av ny bærekonstruksjon bestående …

πŸ“ Fjellstadveien 13A Asker
Tegning som viser snitt (Snitt A-A) og fasade (Tegning ny fasade øst) for en bygning med ny skorstein.
Extension Enebolig

Oppføring av stålpipe på enebolig, Astrid Skares vei 98

Ny stålpipe monteres på eksisterende enebolig i Astrid Skares vei 98. Pipa er en Jøtul NVI 2000 stålpipesystem, hel- og…

πŸ“ Astrid Skares vei 98 Asker
🏠
VerticalExtension Enebolig

Påbygg og bruksendring fra tilleggsdel til hoveddel med dispensasjon fra byggeg…

Søknad om påbygg og bruksendring fra tilleggsdel til hoveddel med dispensasjon fra byggegrense mot veg.

πŸ“ Kometvegen 28 Trondheim - Tråante
🏠
Extension Enebolig

Tilbygg med kjellergarasje og riving i General Bangs veg 28

Riving av eksisterende utbygg og carport på eiendommen, samt oppføring av et større tilbygg til en enebolig. Tilbygget …

πŸ“ General Bangs veg 28A Trondheim - Tråante
🏠
Extension Enebolig

Tilbygg med kjellergarasje i General Bangs veg 28

Riving av eksisterende utbygg og carport på eiendommen, etterfulgt av oppføring av et større tilbygg til en enebolig. T…

πŸ“ General Bangs veg 28A Trondheim - Tråante
🏠
NewConstruction Enebolig

Ny enebolig i Sverresdalsveien 26

Ny enebolig skal oppføres på eiendommen i Sverresdalsveien 26. Prosjektet omfatter bygging av en frittstående bolig med…

πŸ“ Sverresdalsveien 26 Trondheim - Tråante
Fasadetegning som viser oppriss av bygningen sett fra vest og syd.
FacadeChange Enebolig

Fasadeendring med nye vinduer på Thomasløkken 4A

Fasadeendring på en eksisterende to-etasjes enebolig i tre med saltak tekket med tegl. Endringen omfatter utskifting av…

πŸ“ Thomasløkken 4 Asker
Tegning som viser fasadeoppsett for en bygning sett fra to ulike vinkler (Vest og Nord).
NewConstruction Enebolig

Ferdigattest for enebolig på Østhagen 11

Enebolig på 120,5 m² med saltak og trekledning, fordelt på ett plan med flere rom inkludert stue, kjøkken, bad, vaskero…

πŸ“ Østhagen 11 Asker
Fasadetegning som viser bygningens utseende fra syd-vest og nord-øst, inkludert takvinduer og balkonger.
Extension Enebolig

Montering av takvinduer i enebolig, Blakstadlia 26

Montering av to nye takvinduer i saltak på en eksisterende enebolig i Blakstadlia 26. Arbeidet inkluderer utskifting og…

πŸ“ Blakstadlia 1 Asker
🏠
NewConstruction Enebolig

Ferdigattest for enebolig i Baskerudveien 12

Enebolig oppført på eiendommen i Baskerudveien 12, Krokkleiva, med tilhørende piperehabilitering. Bygget har et biobren…

πŸ“ Baskerudveien 12 Hole
Fotografi av en mørk, trepanelt bygning med hvite vinduer og steinfundament, sett fra siden med skog i bakgrunnen.
Extension Enebolig

Tilbygg på enebolig i Utstranda 98

Ny tilbygg på ca. 5 m² over bakken som utvider stuearealet på en eksisterende enebolig i Utstranda 98. Tilbygget er fer…

πŸ“ Utstranda 98 Hole
Bildet viser en fasadetegning av en gul hytte med en tilhørende fotografi av den ferdigbygde fasaden for sammenligning.
Extension Enebolig

Tilbygg til enebolig i Dalslia 33, Nesbru

Ny to-etasjes tilbygg til eksisterende enebolig på Dalslia 33 med totalt areal på 216,8 m². Tilbygget er oppført i peri…

πŸ“ Dalslia 33 Asker
3D-visualisering av en husmodell i etasje med omgivende terreng.
NewConstruction Enebolig

Ny enebolig med garasje i Rauhaugvegen 36, Ulefoss

Ny frittliggende enebolig med tilhørende garasje på eiendommen Rauhaugvegen 36 i Ulefoss. Boligen har et samlet bruksar…

πŸ“ Rauhaugvegen 36 Nome
🏠
Extension Enebolig

Tilbygg på enebolig i Dragonveien 42, Billingstad

Tilbygg på en eksisterende enebolig i Dragonveien 42, Billingstad, oppført i 2010. Prosjektet omfatter en fysisk utvide…

πŸ“ Dragonveien 42 Asker
Bildet viser to fasadetegninger av en bygning. Øverste tegning er merket 'FASADE NYE VINDUER' og nederste 'FASADE OPPRINNELIG'. Begge viser fasaden sett mot sør.
ChangeOfUse Enebolig

Bruksendring og nye vinduer i enebolig, Åsakerveien 1

Bruksendring av to rom i underetasjen i en eksisterende enebolig, hvor et tidligere fyrrom og tilstøtende boder er slåt…

πŸ“ Åsakerveien 1 Asker
Fotografi av en byggeplass med en nybygd trehus i Asker kommune.
ChangeOfUse Enebolig

Påbygg, bruksendring og fasadeendring på enebolig i Tåjeveien 12, Slemmestad

Eneboligen i Tåjeveien 12 på ca. 190 m² totalareal gjennomgår bruksendring av garasje og deler av underetasjen fra till…

πŸ“ Tåjeveien 12 Asker