Alle byggesaker 7506 treff

🅿️
NewConstruction Garasje

Ny utebod på Korsvika 55, Ålesund

Ny utebod på 27 m² skal oppføres på eiendommen Korsvika 55 i Ålesund, som er regulert til boligformål. Uteboden skal er…

πŸ“ Korsvika 55 Ålesund
🏠
NewConstruction Enebolig

Ny enebolig i Grønnbekkvegen 55

Ny enebolig oppføres på eiendommen Grønnbekkvegen 55. Bygget er et frittstående boligbygg beregnet for en familie, med …

πŸ“ Grønnbekkvegen 55 Nes
🏡
NewConstruction Fritidsbolig

Ny fritidsbolig på Gåttstøyllii 93, Hovden

Ny fritidsbolig oppføres på eiendommen Gnr 2, Bnr 2153, beliggende på Gåttstøyllii 93 i Hovden. Prosjektet omfatter opp…

πŸ“ Gåttstøyllii 93 Bykle
🏠
FacadeChange Enebolig

Fasadeendring fra veranda til balkong i Frostveien 7

Endring av fasaden på en enebolig i Frostveien 7 ved å erstatte en eksisterende veranda med en mindre utkraget balkong.…

πŸ“ Frostveien 5C Oslo - Oslove
🏡
NewConstruction Fritidsbolig

Ny fritidsbolig på Gåttstøylii, Gnr 2 Bnr 2152

Ny fritidsbolig oppføres på eiendommen Gnr 2, Bnr 2152 på Gåttstøylii. Prosjektet omfatter oppføring av en frittliggend…

πŸ“ Gåttstøyllii 89 Bykle
Et samling av 8 fotografier som viser eksisterende forhold, fasader og detaljer på en liten hytte ved vannet.
Extension Garasje

Ombygging og utvidelse av båthus i Vrangesundveien 115, Arendal

Prosjektet omfatter ombygging og moderat utvidelse av et eksisterende båthus på 27,5 m² ved Vrangesundveien 115 i Arend…

πŸ“ Vrangesundveien 115 Arendal
🏛️
Extension Offentlig

Tilbygg med treningsbane og parkering ved KFUM Familiearena, Ekebergveien 109

Tilbygg til eksisterende bygg ved KFUM Familiearena i Ekebergveien 109, inkludert anlegg av treningsbane og parkeringsp…

πŸ“ Ekebergveien 109 Oslo - Oslove
En håndtegnet illustrasjon (rendering) av en bygning sett fra utsiden, sannsynligvis en fasade eller situasjonsvisning, med farger som viser terreng og vann.
NewConstruction Garasje

Oppføring av carport og redskapsbod i Lokes vei 30, Arendal

Ny carport på 15 m² og frittstående redskapsbod på 17 m² oppføres på eiendommen Lokes vei 30 i Arendal. Carporten skal …

πŸ“ Lokes vei 30 Arendal
🏠
Extension Enebolig

Oppføring av utvendig kjellertrapp og inngang på Nordengstubben 14

Ny utvendig kjellertrapp med tilhørende inngang, flere vinduer og en baldakin bygges på en eksisterende enebolig. Prosj…

πŸ“ Nordengstubben 14 Oslo - Oslove
Vannmaleri-skisser som viser konseptuelle utforminger av benker og grillplasser i et parkmiljø.
Unknown Other

Oppføring av benker, bålpanne, sitteplasser og skjermvegg

Saken gjelder søknad om dispensasjon for friluftstiltak (tilrettelegging) i 100-metersbeltet ved Storesand, inkludert v…

πŸ“ Storesandveien 88 Hvaler
🏗️
NewConstruction Other

Ny pumpestasjon og avløpsledning på Gnr 26 Bnr 129

Ny pumpestasjon med tilhørende avløpsledning etableres på eiendommen Gnr 26 Bnr 129. Prosjektet omfatter bygging av tek…

Balsfjord
🏬
Extension Naeringsbygg

Fasadeendring, tilbygg og påbygg på næringsbygg i Nedre Prinsdals vei 48

Prosjektet omfatter omfattende endringer på et eksisterende næringsbygg, inkludert fasadeendring, tilbygg og påbygg. De…

πŸ“ Nedre Prinsdals vei 48 Oslo - Oslove
🏠
Extension Enebolig

Tilbygg til enebolig i Jomåsveien 550

Tilbygg til eksisterende enebolig på Jomåsveien 550. Prosjektet innebærer en fysisk utvidelse av boligens areal, med ny…

πŸ“ Jomåsveien 550 Froland
Et flyfoto av eiendom med markerte eksisterende og planlagte bygninger (lagerhall, redskapshus) samt riveområder.
NewConstruction Naeringsbygg

Ny driftsbygning på landbrukseiendom, Aunvegen 76

Ny driftsbygning på 836 m² grunnflate og 800 m² bruksareal oppføres i én etasje med gesimshøyde 7,5 meter over planert …

πŸ“ Aunvegen 76 Levanger - Levangke
🏢
NewConstruction Leilighetsbygg

Oppføring og endring av boligblokk med næringsarealer i Ekebergveien 231

Boligblokken i Ekebergveien 231 består av flere etasjer med både bolig- og næringsarealer. Prosjektet inkluderer endrin…

πŸ“ Nordstrandveien 38 Oslo - Oslove
🏢
Extension Leilighetsbygg

Endring av boligblokk med næringsarealer i Ekebergveien 231

Endring av eksisterende tillatelse for oppføring av en boligblokk med tilhørende næringsarealer i Ekebergveien 231. Pro…

πŸ“ Nordstrandveien 38 Oslo - Oslove
🏠
Extension Enebolig

Tilbygg og påbygg på enebolig i Kronprinsens gate 9

Prosjektet omfatter tilbygg og påbygg på en eksisterende enebolig i Kronprinsens gate 9. Det innebærer en fysisk utvide…

πŸ“ Kronprinsens gate 9 Oslo - Oslove
Bildet viser to fotografier av en brygge og et naust ved vannet, samt en situasjonsplan som viser plasseringen av naustet.
NewConstruction Other

Riving og nybygg av naust i Tyssevegen 691, Fjaler

Ny naustbygning på 24 m² (6x4 m) med høyde 4,2 m oppføres på eksisterende brygge i Tyssevegen 691, Fjaler. Det nye naus…

πŸ“ Tyssevegen 691 Fjaler
🏘️
NewConstruction Tomannsbolig

Ny tomannsbolig på Bussvegen 4

Ny tomannsbolig planlegges oppført på eiendommen Bussvegen 4. Prosjektet omfatter et boligbygg med to separate boenhete…

πŸ“ Bussvegen 4 Nordreisa - Ráisa - Raisi
🏗️
Other Other

Teknisk installasjon av stålpipe i Jeppedalsvegen 121

Installasjon av en stålpipe i eksisterende bygg på Jeppedalsvegen 121. Prosjektet omfatter montering av en teknisk pipe…

πŸ“ Jeppedalsvegen 121 Hurdal
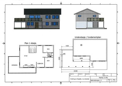
Bildet viser en tegning med fasadeopprikk (utsnitt av bygningen sett fra siden) og etasjeplaner for 1. etasje og underetasje.
Extension Enebolig

Tilbygg, riving av garasje og fasadeendring på Bøskredvegen 11

Tiltaket omfatter riving av eksisterende garasje, innbygging av eksisterende altan, oppføring av ny terrasse mot vest o…

πŸ“ Bøskredvegen 11 Årdal
Sort-hvitt fotografi av en toetasjes bygning med skifer- eller trepanel på øvre etasje og hvit fasade på nederste etasje, sett fra siden.
NewConstruction Fritidsbolig

Riving og nybygg av bolig i Lønnevågvegen 110, Bjørnafjorden

Prosjektet omfatter riving av hovedsakelig deler av en eksisterende fritidsbolig fra 1947 på ca. 135 m² BRA, og oppføri…

πŸ“ Lønnevågvegen 110 Bjørnafjorden
🏛️
NewConstruction Offentlig

Nytt museumsbygg for Vikingtidsmuseet, Huk aveny 35

Nytt museumsbygg oppføres på Huk aveny 35, planlagt som et offentlig bygg for Vikingtidsmuseet. Prosjektet omfatter gru…

πŸ“ Langviksveien 5 Oslo - Oslove
Fasadetegning som viser bygningens utseende sett fra nord-øst, inkludert takform, vinduer, balkong og trapp.
FacadeChange Leilighetsbygg

Fasadeendring og sammenføyning av boenheter i Trondhjemsvegen 31B, Gjøvik

Prosjektet omfatter fasadeendring og sammenføyning av to boenheter i en horisontaldelt tomannsbolig som endres til en e…

πŸ“ Trondhjemsvegen 31B Gjøvik