Enebolig 2123 treff

🏠
Extension Enebolig

Tilbygg og fasadeendring på enebolig i Tornesvegen 407

Tilbygg og fasadeendring på en eksisterende enebolig i Tornesvegen 407. Prosjektet omfatter konstruksjonsarbeider i bet…

πŸ“ Tornesvegen 407 Hustadvika
🏠
VerticalExtension Enebolig

Påbygg og fasadeendring på enebolig i Tornesvegen 407

Påbygg og fasadeendring på eksisterende enebolig i Tornesvegen 407, Hustadvika kommune. Prosjektet inkluderer endringer…

πŸ“ Tornesvegen 407 Hustadvika
Fasadetegning som viser bygningens utseende sett fra nord og vest, inkludert detaljer om materialer og dimensjoner.
NewConstruction Enebolig

Ny enebolig med carport på Grunnavågen 22, Bømlo

Ny enebolig i to etasjer med totalt 142,5 m² BRA, inkludert carport på 24,7 m² og sportsbod på 6,5 m². Boligen har salt…

πŸ“ Grunnavågen 22 Bømlo
3D-visualisering av en husfasade sett fra to ulike vinkler.
Extension Enebolig

Ombygging og tilbygg til våningshus i Uthaugsveien 175, Brekstad

Tiltaket omfatter omfattende ombygging og oppføring av et nytt tilbygg i to etasjer til et eldre SEFRAK-registrert våni…

πŸ“ Uthaugsveien 175 Ørland
Fotografi av en hvit hytte med rødt tak, plassert i et grønt landskap med en stor fjellformasjon i bakgrunnen.
Extension Enebolig

Påbygg av veranda og overbygg ved inngang, Søbergsveien 66

Ny liten veranda med utgang fra stue og et lite overbygg over inngangsdør på enebolig i Søbergsveien 66. Verandaen erst…

πŸ“ Søbergsveien 66
En 3D-visualisering (perspektivtegning) av en planlagt bolig med omgivelser, inkludert terreng og trapper.
NewConstruction Enebolig

Ny enebolig med svømmebasseng på Ytterland 36, Giske

Ny frittliggende enebolig på 228 m² BRA fordelt på tre etasjer med flatt tak og fasade i betong. Boligen har sokkeletas…

πŸ“ Ytterland 36 Giske
🏠
Demolition Enebolig

Riving av bygg og oppføring av enebolig

Saken omhandler riving av eksisterende bygg og etterfølgende oppføring av en ny enebolig på Holtervegen 94. Prosjektet …

πŸ“ Holtervegen 94 Nannestad
🏠
Extension Enebolig

Endring av tilbygg på enebolig, Homledalsvegen 32

Endring av tidligere godkjent tilbygg på enebolig i Homledalsvegen 32. Prosjektet innebærer modifikasjoner av et eksist…

πŸ“ Homledalsvegen 32 Nannestad
🏠
NewConstruction Enebolig

Ny enebolig med garasje på Selstadgrendi 18

Ny enebolig med tilhørende garasje planlegges oppført på eiendommen Selstadgrendi 18. Prosjektet omfatter boligbygging …

πŸ“ Selstadgrendi 18 Seljord
Fotografier av skader på tømmerkonstruksjoner i krypkjeller og gavlvegger, inkludert fuktighet og mønet.
NewConstruction Enebolig

Ny enebolig med garasje og fradeling i Ringfjellet 2, Hvaler

Ny enebolig i to etasjer med samlet bruksareal på ca. 113 m² oppføres på Ringfjellet 2, Hvaler. Boligen får saltak med …

πŸ“ Ringfjellet 1 Hvaler
3D-visualisering (rendering) av en husmodell sett fra ulike vinkler, inkludert et utsnitt av fasaden og et utsnitt av tomten.
NewConstruction Enebolig

Ny enebolig med garasje og anneks i Tongavegen 64, Hatlestrand

Prosjektet omfatter oppføring av en moderne enebolig med flatt tak på totalt ca. 285 m² BRA fordelt på to etasjer, med …

πŸ“ Tongavegen 64 Kvinnherad
🏠
Extension Enebolig

Tilbygg til enebolig, adresse ukjent

Ny tilbygg til eksisterende enebolig som skal utvide boligens areal. Tilbygget vil være en integrert del av boligen og …

Grane
3D-visualisering (perspektivtegning) av et hus på tomt med omgivende bebyggelse og terreng.
Demolition Enebolig

Riving av eksisterende fritidsbolig og oppføring av ny enebolig

Saken gjelder søknad om tillatelse til å rive en eksisterende fritidsbolig og oppføre en ny enebolig på samme tomt, ink…

πŸ“ Hermelinveien 29 Tønsberg
3D-visualisering av en husmodell sett fra en vinkel som viser både fasade og deler av taket, plassert på et terreng med høydelinjer.
Extension Enebolig

Tilbygg, påbygg og bruksendring på enebolig i Nadderudveien 73

Prosjektet omfatter tilbygg og påbygg til eksisterende enebolig i Nadderudveien 73, samt bruksendring i kjeller og oppf…

πŸ“ Nadderudveien 73B Bærum
3D-visualisering av to boliger (1A og 1B) sett fra front ved kveldstid.
NewConstruction Enebolig

Riving og nybygg av to eneboliger med garasjer i Frøyas vei 1

Prosjektet omfatter riving av eksisterende enebolig og oppføring av to nye eneboliger over to plan med flate tak og mod…

πŸ“ Frøyas vei 1 Færder
🏠
Extension Enebolig

Utvendig tilbygg mindre enn 50 m² på Gnr 22 Bnr 101

Ny utvendig tilbygg på enebolig med et areal mindre enn 50 m². Tilbygget vil utvide boligens bruksareal og kan inkluder…

Tokke
Fasadetegning som viser bygningens utsyn mot nord og vest.
Extension Enebolig

Tilbygg på enebolig i Hessvikevegen 267, Ullensvang

Ny påbygg på 21,2 m² til eksisterende enebolig i Hessvikevegen 267, Ullensvang kommune. Tilbygget omfatter blant annet …

πŸ“ Hessvikevegen 267 Ullensvang
🏠
NewConstruction Enebolig

Ny enebolig i Sollivegen 115

Ny enebolig oppført på eiendommen Sollivegen 115. Bygget er en frittstående bolig beregnet for en familie, med standard…

πŸ“ Sollivegen 115 Nissedal
Fotografi av en moderne, mørk bygning sett fra siden, med en steinmur i forgrunnen og en skogkledde bakke i bakgrunnen.
NewConstruction Enebolig

Ny enebolig med garasje i Fauskelia, Sykkylven

Ny enebolig i ett plan med flatt tak og integrert garasje i sokkel under sørøstlig del, oppført på eiendom gnr. 3, bnr.…

πŸ“ Fauskelia 30 Sykkylven
Fasadetegninger som viser bygningens utseende fra fire ulike retninger (Sørøst, Sørvest, Nordvest, Nordøst).
Extension Enebolig

Tilbygg og fasadeendring på enebolig i Sveåsen 39

Ny utvidelse av eksisterende enebolig på Sveåsen 39 med en tilbygg på ca. 14 m², som øker boligens totale bruksareal ti…

πŸ“ Sveåsen 39 Alver
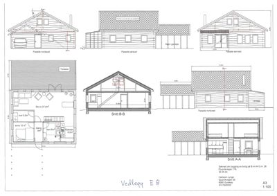
Bildet viser en arkitekttegning med etasjeplan (Stue, soverom, bad) og snittegninger (Snitt A-A og B-B) av en bolig.
NewConstruction Enebolig

Ny enebolig med tilkomstveg i Djupvikvegen 116

Ny enebolig på 143 m² BRA fordelt på to etasjer med mønehøyde 5,8 meter, plassert på eiendom 44/28 i Djupvikvegen 116. …

πŸ“ Djupvikvegen 116A Herøy (Møre og Romsdal)
🏠
Extension Enebolig

Tilbygg til enebolig i Stormyrliveien 25, Vegårshei

Tilbygg til eksisterende enebolig i Stormyrliveien 25 i Vegårshei kommune. Prosjektet omfatter en fysisk utvidelse av b…

πŸ“ Stormyrliveien 25 Vegårshei
To fotografier av en bygning eller konstruksjon, inkludert i en kommunal anmodning om redegjørelse etter brann.
NewConstruction Enebolig

Ny enebolig etter brann i Heimsommarøyveien 26, Øksnes

Ny enebolig på ca. 246 m² BYA oppføres etter totalbrann som ødela store deler av den tidligere boligen. Kjeller og mur …

πŸ“ Heimsommarøyveien 26 Øksnes
🏠
NewConstruction Enebolig

Ny erstatningsbolig i Bekkedalsveien 25, Kragerø

Ny enebolig som erstatning for tidligere bolig på eiendommen Bekkedalsveien 25, Gnr 35 Bnr 79 i Kragerø. Boligen har en…

πŸ“ Bekkedalsveien 25 Kragerø