Fritidsbolig 640 treff

Fotografi av en hytte som er inkludert i en e-post om byggesak.
NewConstruction Fritidsbolig

Ny fritidsbolig med garasje i Friarfjordveien 44, Lebesby

Ny frittstående fritidsbolig på 53,2 m² BRA og 71 m² BYA oppføres på eiendommen Friarfjordveien 44 i Lebesby kommune. B…

πŸ“ Friarfjordveien 44 Lebesby
Fotografi av en eksisterende hytte i tre med steinfundament, tatt som del av en takst- og lånetakstrapport.
Extension Fritidsbolig

Tilbygg til fritidsbolig på Dalen 47, Kvamskogen

Ny tilbygg på ca. 28,5 m² BRA til eksisterende fritidsbolig på Dalen 47, Kvamskogen. Tilbygget skal inneholde stue og t…

πŸ“ Dalen 47 Kvam
Bildet viser to fotografier (Figur 4 og Figur 5) som dokumenterer et prosjektområde. Figur 4 er en 3D-visualisering (rendering) av et terreng med overlagte bygningstegninger, mens Figur 5 er et fotografi av det faktiske området. Begge bildene er brukt til å illustrere plassering av tiltaket.
NewConstruction Fritidsbolig

Ny utleiehytte for gardsturisme på Suldalsvegen 3023

Ny frittstående utleiehytte på ca. 27 m² BRA, med mål ca. 3 x 9 meter, plassert på en holme innenfor eiendommen gnr. 45…

πŸ“ Suldalsvegen 2897 Suldal
Håndtegnet fasadebølgning som viser bygningens utsyn fra fire sider (Øst, Vest, Nord, Sør) med merking av tilbygg og mål.
Extension Fritidsbolig

Tilbygg på 24 m² til fritidsbolig i Dølplassveien 3

Ny tilbygg på ca. 24 m² på fritidsbolig i Dølplassveien 3, med forlengelse av hyttas kortside mot sør med ca. 3 meter i…

πŸ“ Dølplassveien 3 Rendalen
Gårdsplan (ARS 7 Masser) som viser arealdata, markslag og eiendomsgrenser for eiendommen 1112-542/0.
PropertyDivision Fritidsbolig

Fradeling av to hyttetomter og landbruksveg på Birkemoveien 265, Lund

Prosjektet omfatter fradeling av to nye hyttetomter på ca. ett dekar hver, beliggende inntil et eksisterende lite hytte…

πŸ“ Birkemoveien 265 Lund
3D-visualiseringer (renderinger) av en planlagt bygning sett fra to ulike vinkler (P1 og P2).
NewConstruction Fritidsbolig

Ny fritidsbolig med tomteopparbeidelse på Tripperåsen 14

Ny fritidsbolig i to etasjer med totalt bruttoareal på ca. 172 m² og bebygd areal på 95,4 m² oppføres på Tripperåsen 14…

πŸ“ Tripperåsen 14 Lund
Fasadetegning av en bygning sett fra nord, med angitt eksisterende deler og et tilbygg i rødt.
Extension Fritidsbolig

Tilbygg med to soverom på fritidsbolig i Saudavegen 2921

Ny tilbygg på ca. 17 m² til eksisterende fritidsbolig i Saudavegen 2921, bestående av to nye soverom. Tilbygget plasser…

πŸ“ Saudavegen 2921 Vindafjord
3D-visualisering av en husfasade med omgivelser
NewConstruction Fritidsbolig

Ny fritidsbolig med terrasse på Haukenesodden 24, Moi

Ny fritidsbolig i to etasjer på totalt 157,2 m² med saltak og trekledning oppføres på Haukenesodden 24 i Moi. Bygget ha…

πŸ“ Haukenesodden 24 Lund
🏡
NewConstruction Fritidsbolig

Ny fritidsbolig på Alveberget 141, Arendal

Ny fritidsbolig oppført på eiendommen Alveberget 141 i Arendal kommune. Bygget er et anneks/fritidsbolig som er selvbyg…

πŸ“ Alveberget 141 Arendal
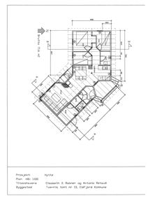
Etasjeplan (brutto 71,6 m²) for en hytte med romfordeling, dimensjoner og orientering.
NewConstruction Fritidsbolig

Ny fritidsbolig på Burtnalia 8, Eidfjord

Ny fritidsbolig på 71,6 m² med en etasje, oppført i tre med trelags konstruksjoner. Boligen inneholder to soverom på 12…

πŸ“ Burtnalia 8 Eidfjord
🏡
NewConstruction Fritidsbolig

Ny hytte i Remestøylflotti hyttegrend 47

Ny frittstående hytte oppføres i Remestøylflotti hyttegrend 47. Prosjektet omfatter bygging av en fritidsbolig med tilh…

πŸ“ Remestøylflotti hyttegrend 47 Bykle
3D-visualisering (rendering) av en bygning i et landskap, inkludert omgivende trær og terreng.
Extension Fritidsbolig

Tilbygg, rivning og garasje på fritidsbolig, Rundtjønna 20

Prosjektet omfatter rivning av en eldre del av en fritidsbolig på 48,4 m², oppføring av et nytt tilbygg på 104,5 m² i s…

πŸ“ Rundtjønna 20 Røros - Rosse
Fasadetegning som viser bygningens utseende fra fire sider: Nord, Vest, Sør og Øst.
NewConstruction Fritidsbolig

Ny fritidsbolig med riving på Skjomenveien 20, Forså

Ny fritidsbolig på 78,5 m² BRA oppføres på samme tomt og plassering som eksisterende fritidsbolig som rives. Bygget har…

πŸ“ Skjomenveien - Forså 20 Narvik
🏡
NewConstruction Fritidsbolig

Oppføring av fritidsbolig på Furuheim tomt 4

Ny fritidsbolig oppføres på Furuheim tomt 4. Detaljer om byggets størrelse, materialer og romfordeling er ikke tilgjeng…

πŸ“ Furuheim tomt 4 Nissedal
Flyfoto av et område i Hyllestad kommune som viser plassering av eiendommen gbnr. 29/45 og naboeiendommer.
NewConstruction Fritidsbolig

Ny fritidsbolig med hems i Salbu Grend, Sørbøvåg

Ny fritidsbolig på 105,2 m² BRA med en hems på ca. 22,7 m² (ikke måleverdig areal) oppføres på en tomt i Salbu Grend, S…

πŸ“ Salbu Grend, 6958 Sørbøvåg Hyllestad
Fotografi av et terreng med en bygning i bakgrunnen, inkludert tekst og signatur over bildet.
NewConstruction Fritidsbolig

Ny fritidsbolig med infrastruktur på Hellesmoveien 25, Tjøme

Ny fritidsbolig på 49 m² BYA (39,75 m² BRA) oppføres i én etasje med loft/hems på ubebygd tomt i Hellesmoveien 25, Tjøm…

πŸ“ Hellesmoveien 25 Færder
🏡
Rehabilitation Fritidsbolig

Rehabilitering og montering av skorstein på Reset 62, Stordal

Rehabilitering av skorstein på fritidsbolig ved Reset 62 i Stordal omfatter riving og fjerning av gammel Leca-pipe og m…

πŸ“ Reset 62 Fjord
Fasadetegning for eksisterende bygning med oppriss og mål.
Extension Fritidsbolig

Tilbygg til fritidsbolig i Vetadalen 45, Larvik

Ny tilbygg på 58,5 m² til eksisterende fritidsbolig i Vetadalen 45, Larvik, med en samlet bebygd areal på 127 m² inklud…

πŸ“ Vetadalen 45 Larvik
🏡
NewConstruction Fritidsbolig

Ny hytte med rivning på Mølleveien 62, Risør

Ny hytte oppføres på eiendommen Mølleveien 62 i Risør kommune etter rivning av eksisterende hytte. Prosjektet omfatter …

πŸ“ Mølleveien 62 Risør
Fotografier av en rød fritidsbolig som viser inngangsdør, vinduer og fasade. Bildene illustrerer tiltakene nevnt i teksten (innbygging under tak og fasadeendringer).
Extension Fritidsbolig

Etterhåndsgodkjenning av anneks og tiltak i Barkevikveien 60

Eksisterende anneks på 25,6 m² til fritidsbolig i Barkevikveien 60 har gjennomgått flere tiltak: innbygging av tidliger…

πŸ“ Barkevikveien 60 Færder
3D-visualisering (rendering) av etasjeplanen for en hytte, vist på en situasjonsplan.
Extension Fritidsbolig

Tilbygg til hytte i Repparfjorddalen 16

Ny tilbygg på mindre enn 50 m² til eksisterende hytte i Repparfjorddalen 16. Tilbygget bygges i tre med saltak, og vil …

πŸ“ Trekanten 11 Hammerfest - Hámmerfeasta
Fotografi av fasaden på en bygning med brun panelvegg, hvite vinduer og lysarmaturer.
Rehabilitation Fritidsbolig

Rehabilitering av fritidsbolig med fasade- og takvinduendring på Bukkeliodden 1…

Rehabilitering av eksisterende fritidsbolig på 117,6 m² med oppgradering av fasade og takvinduer. Bygget får ny stående…

πŸ“ Bukkeliodden 108 Færder
3D-visualisering (perspektivtegning) av et tomt med flere bygninger, parkering og omgivelser.
NewConstruction Fritidsbolig

Oppføring av tre utleiehytter med dispensasjon fra arealdel og veglov

Saken gjelder søknad om dispensasjon fra arealdelen i kommuneplanen og veglovens byggegrense for oppføring av tre utlei…

πŸ“ Valbergsveien 2985 Vestvågøy
Fotografi av et landskap med en bygd i bakgrunnen, som er brukt som illustrasjon på forsiden av en kommuneplan.
Extension Fritidsbolig

Tilbygg med bad og pumpehus på hytte, Helgerød 17, Råde

Ny tilbygg på ca. 5,4 m² bruttoareal (2,9 m² netto etter riving av eksisterende utedo) til eksisterende hytte på Helger…

πŸ“ Helgerød 17 Råde