Fritidsbolig 640 treff

3D-perspektivtegning (rendering) som viser et forslag til nybygging av et hotell på en tomt ved kysten.
NewConstruction Fritidsbolig

Oppføring av to fritidsboliger i Vågaveien 49, Leknes

To frittstående fritidsboliger i en etasje med samlet bebygd areal på 50 m² oppføres på to nye tomter i Vågaveien 49, L…

📍 Vågaveien 47 Vestvågøy
Bildet viser en sammenligning av eldre og nyere bilde av en bygning, samt fasadetegninger for den omsøkte bygningen.
Demolition Fritidsbolig

Riving og ny firemannsbolig med VA-anlegg i Bakeriveien, Stamsund

Prosjektet omfatter riving av en eksisterende driftsbygning på ca. 395 m² BRA, oppført rundt 1940 og modernisert på 198…

📍 Steineveien 41 Vestvågøy
En håndskrevet tegning som viser et utkast til etasjeplan eller romfordeling, med dimensjoner (440x330) og en skisse av en bygning.
Extension Fritidsbolig

Tilbygg bod på fritidsbolig i Sætavegen 30

Ny tilbyggsdel i form av en bod på ca. 14,5 m² oppføres som en naturlig utvidelse av eksisterende fritidsbolig på eiend…

📍 Sætavegen 23 Stryn
Fotografi av en carport med bil parkert under, sett fra bak. Bildet viser også en del av en bygning til høyre og en steinmur til venstre.
Extension Fritidsbolig

Tilbygg av carport til hytte i Tenden hyttegrend

Ny carport som tilbygg til eksisterende hytte i Tenden hyttegrend. Tilbygget er en frittliggende konstruksjon med tak o…

📍 Tenna 45 Stryn
Situasjonsplan som viser tomtens geometri, nabotomter, eiendomsnummer (86/154) og bygningers plassering i forhold til hverandre.
Extension Fritidsbolig

Fritidsbolig med midlertidig bruksløyve i Solstrandvegen 1, Olden

Prosjektet omfatter oppføring av to fritidsboliger på eiendommen Solstrandvegen 1 i Olden. Den første fritidsboligen, p…

📍 Solstrandvegen 1 Stryn
Et skråfoto (satellittbilde) som viser et eksisterende fritidsboligområde langs kysten, inkludert hus, båthavn og omgivende natur.
Extension Fritidsbolig

Tilbygg, innbygging og VA-anlegg på fritidsbolig, Skåtøyveien 4

Tiltaket omfatter oppgradering av eksisterende fritidsbolig på Skåtøyveien 4 med et tilbygg på ca. 5,8 m² som skal inne…

📍 Skåtøyveien 4 Kragerø
3D-visualisering av en husfasade med skygger og detaljer som trapper og vinduer.
NewConstruction Fritidsbolig

Ny fritidsbolig med terrasse på Aulisætervegen 97, Sagstua

Ny frittstående fritidsbolig på ca. 72 m² BRA med hems og saltak oppføres på samme sted som tidligere hytte som ble tot…

📍 Aulisætervegen 106 Nord-Odal
Fasadetegning som viser bygningens utseende fra nord og sør.
Extension Fritidsbolig

Tilbygg til fritidsbolig i Søndre Bærøyveien 42, Kragerø

Tilbygg til eksisterende fritidsbolig på Søndre Bærøyveien 42 i Kragerø kommune. Prosjektet omfatter to tilbygg med sam…

📍 Søndre Bærøyveien 42 Kragerø
Fasadetegning (Sør-Vest) av en hytte med høydeangivelser og terrengforhold.
NewConstruction Fritidsbolig

Ny fritidsbolig i Sandvikvegen 17, Austvatn

Ny fritidsbolig på 126,6 m² BRA med ett plan oppføres på tomt i Sandvikvegen 17, Austvatn. Bygget har to soverom, bod, …

📍 Sandvikvegen 17 Nord-Odal
Sort-hvitt fotografi av en liten, moderne hytte eller uthus sett fra siden, med en hage i bakgrunnen.
NewConstruction Fritidsbolig

Ny erstatningshytte med VA-anlegg i Lindtvedtveien 10B, Kragerø

Ny erstatningshytte på ca. 28 m² BRA oppføres på samme sted som eksisterende sammenraste hytte på Lindtvedtveien 10B i …

📍 Lindtvedtveien 10B Kragerø
En samling av flere fotografier som viser et kystlandskap med klipper, vann og en båt.
NewConstruction Fritidsbolig

Ny fritidsbolig og driftsbygg på Såsteinsundet 130, Bamble

Ny fritidsbolig på 99 m² BRA med saltak og tradisjonelt arkitektonisk formspråk, inkludert hems, oppføres som erstatnin…

📍 Såsteinsundet 130 Bamble
3D-visualisering (perspektivtegning) av en planlagt hytte sett fra to ulike vinkler.
ChangeOfUse Fritidsbolig

Bruksendring og fasadeendring på fritidsbolig, Varpet 33

Eksisterende fritidsbolig på ca. 53 m² isolert bruksareal fra 1984 får innbygget overdekket veranda på ca. 13,5 m², som…

📍 Varpet 33 Bamble
Fasadetegning for et hus i Jernheiaugen 30, Oslo, som viser utsiden sett fra nord og vest med mål.
Extension Fritidsbolig

Tilbygg på hytte i Jarenhaugen 39, Modum

Ny tilbygg på 42,2 m² til eksisterende hytte på Jarenhaugen 39 i Modum. Tilbygget er i én etasje med saltak og trekledn…

📍 Jarenhaugen 39 Modum
Fasadetegning som viser front- og sideopprikk av en hytte (Aursunden Hellerud).
NewConstruction Fritidsbolig

Ny laftet visnings- og utleiehytte i Siksjølia 174

Ny laftet tømmerhytte på 130 m² BRA med hems, tradisjonelt saltak med torvtekking og takvinkler på 22 og 24 grader. Byg…

📍 Holla, Siksjølia 172 Os
3D-visualisering av en stålpipe (Tolmer Vision) montert på et tak med papp/shingel/torv.
Rehabilitation Fritidsbolig

Piperehabilitering og ovnmontering i fritidsbolig, Skårrveien 114

Prosjektet omfatter riving av eksisterende elementpipe og installasjon av en ny Tolmer Vision stålpipe på 3,5 meter med…

📍 Skårrveien 114 Os
Bildet viser en 3D-visualisering av en hytte i skogen, samt en oversiktsplan over innvendig romfordeling.
Demolition Fritidsbolig

Riving og nyoppføring av utleiehytter i Stavedalsveien 517

Prosjektet omfatter riving av to eldre utleiehytter og oppføring av to nye utleiehytter tilknyttet campingplassen på ei…

📍 Stavedalsveien 517 Andøy
3D-visualisering (rendering) av et byggeprosjekt med to bygninger, parkeringsplasser og omgivende terreng.
NewConstruction Fritidsbolig

Oppføring av to fritidsboliger og badstue i Hundeidvik

To frittliggende fritidsboliger med tilhørende utearealer og parkeringsplasser bygges på en skrånende tomt i Hundeidvik…

Sykkylven
Fotografi av en bekke i skog, som er en del av en rapport om skredfare.
NewConstruction Fritidsbolig

Ny fritidsbolig i Engeskardet, Hareid

Ny fritidsbolig (hytte) på 100 m² BRA med overbygd areal på 27,2 m² oppføres på eiendommen Gnr 65 Bnr 13 i Engeskardet,…

📍 Almestranda 56 Hareid
3D-perspektivtegning (rendering) av en planlagt bygning (Sanitær) sett fra utsiden, inkludert omgivende terreng og vegetasjon.
NewConstruction Fritidsbolig

Ny dagsturhytte med uthus på Tverrfjellet, Osen

Ny dagsturhytte på 48 m² med saltak og takvinkel på 45°, plassert på et platå nedenfor toppen av Tverrfjellet for å red…

📍 Tverrfjellet Osen
3D-visualisering av et vannrenseanlegg (GVR-mini) under en hytte med innbært vann.
Extension Fritidsbolig

Tilbygg og VA-anlegg til hytte på Nesveien 632, Moss

Prosjektet omfatter et tilbygg på ca. 10,4 m² bebygd areal (7,8 m² bruksareal) til en eksisterende fritidsbolig fra 194…

📍 Nesveien 632 Moss
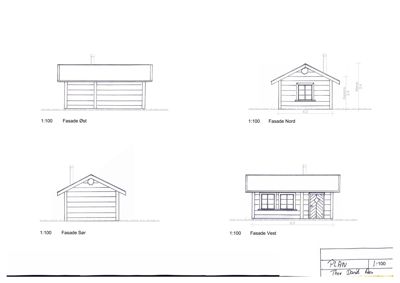
Fasadetegninger for en bygning, vist fra fire sider (Øst, Nord, Sør, Vest) med mål og detaljer.
Extension Fritidsbolig

Ny frittstående anneks til fritidsbolig i Vegusdalveien 1402

Ny frittstående anneks på 24 m² BYA (20,2 m² BRA) oppføres som et laftet bygg tilknyttet eksisterende fritidsbolig i Ve…

📍 Vegusdalveien 1402 Birkenes
Tre fotografier som viser en eksisterende bygning, en utvendig trapp og en steinete bakke.
Extension Fritidsbolig

Tilbygg til fritidsbolig i Kongshavnveien 44, Moss

Ny tilbygg på 32,5 m² til eksisterende fritidsbolig på Kongshavnveien 44 i Moss, plassert på vestsiden av bygningen og …

📍 Kongshavnveien 44 Moss
Fotografi av en hvit hytte med mørk tak og terrasse, plassert på en steinete bakke i skog. En person i sikkerhetsvest står i forgrunnen.
NewConstruction Fritidsbolig

Ny fritidsbolig med sjøbod og terrasse i Justøyveien 97

Ny fritidsbolig på ca. 65 m² BYA med saltak og tradisjonell sørlandsk byggeskikk oppføres lavere i terrenget for bedre …

📍 Skalle, Justøyveien 97 Lillesand
Et fotografi som viser en luftfoto eller flyfoto av et boligområde med hus plassert på en kystlinje eller fjellside.
Demolition Fritidsbolig

Riving og gjenoppføring av del av fritidsbolig på Nesseheia 17

Del av eksisterende fritidsbolig på 54 m² rives og gjenoppføres på samme plassering med tilsvarende form og volum, men …

📍 Nesseheia 17 Lillesand