Enebolig 2137 treff

Fotografi av en moderne utvendig fasade med glassdører og en terrasse, med håndtegnede mål på 4,55m, 2,1m og 2,55m.
Extension Enebolig

Tilbygg med vinterhage på Lunden 19, Kleppe

Ny tilbygg/vinterhage på 20 m² til en eksisterende enebolig på Lunden 19 i Kleppe. Tilbygget er en uisolert hagestue so…

πŸ“ Lunden 19 Klepp
🏠
NewConstruction Enebolig

Ny bolig og garasje med bod i Stasjonsvegen 265

Ny enebolig oppføres på eiendommen i Stasjonsvegen 265 etter riving av eksisterende bolig. Prosjektet inkluderer også o…

πŸ“ Stasjonsvegen 265 Klepp
En håndtegnet fasadetekning som viser fronten av en bygning med to dører og et tak, inkludert mål.
NewConstruction Enebolig

Ny enebolig med garasje i Heggevikveien 25, Aurskog

Ny tømmerhytte som en enebolig på totalt 332 m² fordelt på to etasjer med ett trappetrinn. Første etasje på 166 m² inne…

πŸ“ Heggevikveien 25 Aurskog-Høland
Fotografi av en utvendig del av en bygning, inkludert en dør, vinduer og en takkonstruksjon.
Extension Enebolig

Tilbygg og ombygging av enebolig med garasje, Øvre Ustigbakken 13

Prosjektet omfatter tilbygg og ombygging av en eksisterende enebolig med hybel på Øvre Ustigbakken 13 i Oltedal. Det by…

πŸ“ Øvre Ustigbakken 13 Gjesdal
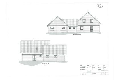
Fasadetegning som viser bygningens utseende fra to ulike vinkler (mot SØst og mot Sør).
NewConstruction Enebolig

Ny enebolig med garasje på Ingebjørgsmyra 26, Vanse

Ny enebolig med garasje på totalt 425,3 m² BRA fordelt på flere etasjer. Boligen har to trapper, teknisk rom, vaskerom,…

πŸ“ Ingebjørgsmyra 26 Farsund
Fasadetegning som viser bygningens utseende fra en side, inkludert takhelling, vinduer, dør og mål.
NewConstruction Enebolig

Ny enebolig i Brustøgguvegen 13, Rindal

Ny enebolig på 77,7 m² BRA med valmtak og pulttak i tre, oppført i én etasje med pipe. Boligen inneholder to soverom, b…

πŸ“ Brustøgguvegen 13 Rindal
🏠
NewConstruction Enebolig

Ny enebolig i Rådyrveien 5

Ny enebolig oppføres på eiendommen i Rådyrveien 5. Prosjektet omfatter et frittstående boligbygg med tilhørende teknisk…

πŸ“ Rådyrveien 5 Vestby
🏠
Extension Enebolig

Tilbygg under 50 m² på enebolig, Åsprongmyran 74

Ny tilbygg på enebolig med samlet areal mindre enn 50 m² på eiendommen Åsprongmyran 74. Tilbygget vil utvide boligens b…

πŸ“ Åsprongmyran 74 Tingvoll
Fotografi av en moderne villa med trepanel og store vinduer, sett fra gaten.
VerticalExtension Enebolig

Påbygg og takvinkelendring på enebolig i Husafjellbakken 2, Ålgård

Ny påbygging av loftet på en eksisterende enebolig i Husafjellbakken 2, Ålgård, med endring av takvinkel fra 35 til 10 …

πŸ“ Husafjellbakken 2 Gjesdal
🏠
NewConstruction Enebolig

Oppføring av ny bolig

Saken gjelder søknad om ferdigattest for en ny oppført bolig på Solbakken 24. Ingen detaljer om de fysiske byggearbeide…

πŸ“ Solbakken 24 Aukra
3D-visualisering av et interiør (stue/kjøkken) med detaljerte mål for vinduene og gulvbelegg.
ChangeOfUse Enebolig

Bruksendring av kjeller til utleiedel i Einerveien 4, Ålgård

Bruksendring av kjeller i en enebolig på Einerveien 4, Ålgård, fra tilleggsdel til hoveddel med innredning av bad, sove…

πŸ“ Einerveien 4 Gjesdal
Fotografi av en hytte eller hus i snø, sett fra siden med fjell i bakgrunnen.
Extension Enebolig

Tilbygg med garasje og altan på Solheimsdalen 38

Ny tilbygg på eksisterende enebolig på Solheimsdalen 38 med totalt 203 m² BRA tilbygg inkludert dobbel garasje på 40 m²…

πŸ“ Karstad, 73/4 Sunnfjord
3D-visualisering (perspektiv) av en planlagt bolig med omgivelser.
NewConstruction Enebolig

Ny enebolig med carport i Volleveien 17, Borhaug

Ny to-etasjes enebolig på totalt 375 m² BRA oppføres på Volleveien 17, Borhaug, etter riving av eksisterende bolig og g…

πŸ“ 33/425 Farsund
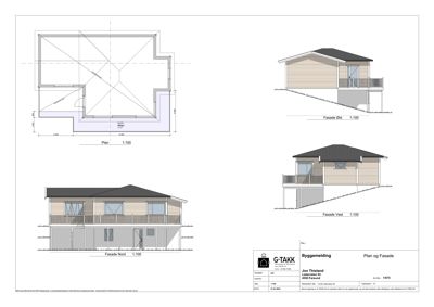
Bildet viser en tegning med et etasjeplan (Plan) og tre fasadeoppvisninger (Nord, Vest, Øst) for en bolig.
Extension Enebolig

Utvidelse av eksisterende altan i Listerveien 63, Farsund

Utvidelse av eksisterende altan på enebolig i Listerveien 63, Farsund. Den nye altanen har et bebygd areal på 19,4 m² o…

πŸ“ Listerveien 63 Farsund
🏠
NewConstruction Enebolig

Ny enebolig på Seljebrekka 50

Ny enebolig planlegges oppført på eiendommen Seljebrekka 50. Prosjektet omfatter oppføring av en frittstående bolig med…

πŸ“ Seljebrekka 50 Rindal
Tegning som viser fasader (Øst og Vest) for en bygning med vinduer, balkonger og trapper.
ChangeOfUse Enebolig

Bruksendring til utleiedel i kjeller, Austadveien 25, Drammen

Bruksendring av kjelleretasjen i eksisterende enebolig til en sekundær boenhet/utleiedel på 43,6 m² med rom for stue, k…

πŸ“ Austadveien 25 Drammen
3D-visualisering (rendering) av en planlagt bolig med omgivende terreng og fasade.
Extension Enebolig

Tilbygg med garasje og terrasser i Gabriel Lunds gate 11, Farsund

Ny utvidelse av enebolig i Gabriel Lunds gate 11 med et tilbygg på 186 m² som inkluderer garasje, carport, boder i kjel…

πŸ“ Gabriel Lunds gate 11 Farsund
Fasadetegninger som viser bygningens utseende fra fire ulike vinkler (vest, sør, øst og nord). Tegningen inneholder også en liten situasjonsplan i bunnen.
NewConstruction Enebolig

Ny enebolig på ett plan i Engøy 5, Farsund

Ny enebolig på ett plan med et bruttoareal på 143,6 m² oppført på eiendommen Engøy 5 i Farsund. Boligen har saltak med …

Farsund
Bildet viser en samling av etasjeplaner (floor plans) for en bolig, inkludert romfordeling og arealoppsett.
NewConstruction Enebolig

Ny bolig med naust og næringsdel på Andabeløy 163C

Ny bolig på tre plan med samlet bruksareal på 439,5 m² og bebygd areal på 245,5 m² oppføres på Andabeløy 163C. Bygget i…

πŸ“ Andabeløy 163C Flekkefjord
3D-visualisering (rendering) av en planlagt bygning med omgivende terreng, bilplass og heis.
Extension Enebolig

Tilbygg, støttemurer og bruksendring på Gamle Foldnesvegen 96, Øygarden

Prosjektet omfatter oppføring av et tilbygg på 92 m² BYA til en eksisterende enebolig på Gamle Foldnesvegen 96, med sam…

πŸ“ Gamle Foldnesvegen 96 Øygarden
🏠
NewConstruction Enebolig

Søknad om ferdigattest for oppføring av enebolig

Saken gjelder søknad om ferdigattest for et ferdigstilt bygg på adressen Just Brochs gate 14, med tilhørende korrespond…

πŸ“ Just Brochs gate 14A Hamar
3D-visualisering av en bolig med to fasader (sør-øst og vest) inkludert landskap.
Extension Enebolig

Tilbygg og bruksendring på enebolig i Strandengveien 16, Vollen

Prosjektet omfatter et tilbygg i ett plan på eksisterende enebolig i Strandengveien 16, som inkluderer nytt kjøkken og …

πŸ“ Strandengveien 16 Asker
Perspektivtegning (rendering) av en bolig med tre ulike vinkler (nordøst, nordvest, sørvest).
NewConstruction Enebolig

Ny enebolig med avløpsanlegg i Flakstadveien, Ramberg

Ny enebolig på 138 m² BRA oppføres på Flakstadveien 395 i Ramberg, med en etasje og saltak på øst- og sørfasade, flatt …

πŸ“ Flakstadveien 100 Flakstad
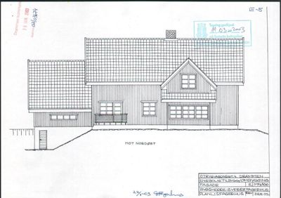
Fasadetegning av et hus sett fra nordøst, med tegningstittel 'FASADE' i bunnteksten.
FacadeChange Enebolig

Fasadeendring og ny innvendig trapp i Olav Trygvasons gate 4

Prosjektet omfatter fasadeendring ved innsetting av ny dør og vindu i 2. etasje på sørøstfasaden, samt fjerning av eksi…

πŸ“ Olav Trygvasons gate 4 Drammen