Enebolig 2137 treff

Fotografier av vegetasjon og planter i naturen, inkludert asketørr, selje, gravmyrt og vinterkarse.
NewConstruction Enebolig

Ny enebolig med garasje i Plankedalsveien 73, Asker

Ny enebolig på ca. 190,6 m² BRA med to etasjer og mønehøyde på ca. 8,6 meter, oppført på eiendom i Plankedalsveien 73, …

πŸ“ Plankedalsveien 73 Asker
Tegning som viser fasadeoppsett for bygningen sett fra vest og øst.
ChangeOfUse Enebolig

Bruksendring av kjeller i enebolig, Korvaldveien 51

Bruksendring av kjelleretasjen i en eksisterende enebolig på Korvaldveien 51, hvor kjelleren omgjøres fra tilleggsdel t…

πŸ“ Korvaldveien 51 Drammen
Fasadetegning som viser bygningens utseende fra fire sider (Nord, Sør, Vest, Øst) med mål og detaljer.
ChangeOfUse Enebolig

Bruksendring, tilbygg og fasadeendring på Kobbervikdalen 144

Prosjektet omfatter bruksendring av underetasjen i en enebolig til en hybelenhet med eget bolignummer, samt tilbygg og …

πŸ“ Kobbervikdalen 144 Drammen
Fasadetegning (oppriks) av en bolig sett fra sør, inkludert snitt og detaljer.
NewConstruction Enebolig

Ny enebolig med garasje i Hønsveien 144, Asker

Ny enebolig med underetasje og hovedetasje på til sammen ca. 278 m² BRA bygges på tomt i Hønsveien 144, Asker. Boligen …

πŸ“ Hønsveien 144 Asker
🏠
Extension Enebolig

Tilbygg og fasadeendring på enebolig i Tveitavegen 8

Ny tilbygg på enebolig i Tveitavegen 8 med tilhørende endring av fasade. Prosjektet inkluderer utskifting av vinduer og…

πŸ“ Tveitavegen 8 Nord-Aurdal
3D-visualisering av en planlagt bolig med garasje, hage, hekk og bil.
NewConstruction Enebolig

Ny enebolig med garasje i Stornesveien 314, Narvik

Ny enebolig i to etasjer med totalt bruksareal på ca. 159 m² og bebygd areal på ca. 338 m² oppføres på eiendommen Storn…

πŸ“ Stornesveien 44 Narvik
Fotografi av en byggeplass med et rødt og hvitt containerbygg, en flaggstang med norsk flagg, og materialer på bakken.
FacadeChange Enebolig

Fasadeendring og brakkemodul ved enebolig i Andopsveien 39

Nybygg med kafé på 68,3 m² BRA og 79,3 m² BYA oppføres på eiendommen Andopsveien 39, inkludert tilhørende parkeringspla…

πŸ“ Andopsveien 39 Flakstad
Fasadetegning som viser bygningens utseende fra fire ulike vinkler (vest, øst, sør og nord).
Extension Enebolig

Ombygging og tilbygg til enebolig i Jacob Jentofts vei 59

Ombygging og tilbygg til en eksisterende enebolig med totalt bruttoareal på 396,4 m² fordelt på to etasjer. Prosjektet …

πŸ“ Jacob Jentofts vei 59 Vestvågøy
Fasadetegning som viser fronten av en bolig sett fra øst og nord.
VerticalExtension Enebolig

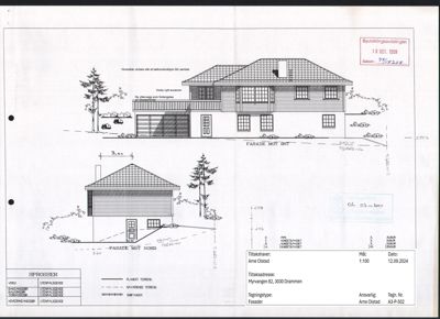
Mindre påbygg på eksisterende terrassedekke i Myrvangen 82, Drammen

Mindre påbygg på ca. 10 m² på eksisterende terrassedekke i enebolig på Myrvangen 82. Påbygget består av forlengelse av …

πŸ“ Myrvangen 82 Drammen
🏠
FacadeChange Enebolig

Fasadeendring på tilbygg i Nybrottsgutua 9

Fasadeendringen gjelder et tilbygg til en enebolig på Nybrottsgutua 9. Detaljer om endringene er ikke spesifisert i dok…

πŸ“ Nybrottsgutua 9 Hamar
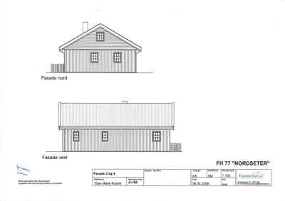
Fasadetegning som viser bygningens utseende fra nord og vest.
ChangeOfUse Enebolig

Bruksendring fra fritidsbolig til helårsbolig i Gjerrudveien 3, Drammen

Eksisterende enebolig oppført i 2010/2011 som fritidsbolig i et boligområde, med et samlet areal på 241,2 m² fordelt på…

πŸ“ Gjerrudveien 1 Drammen
3D-visualisering av en planlagt bolig med tekst om estetisk redegjørelse.
NewConstruction Enebolig

Ny enebolig med støttemur i Rødsåslia 67, Asker

Ny enebolig i to etasjer med totalt 242,9 m² BRA og 229 m² BYA på tomt på 1400,9 m² i Rødsåslia 67, Asker. Boligen har …

πŸ“ Rødsåslia 67 Asker
En håndtegnet fasadetegning (fra nord) av en bygning, tegnet på miller-papir.
FacadeChange Enebolig

Bytte kledning og utvendig etterisolering på Båstadryggen 20

Eksisterende enebolig på Båstadryggen 20 skal gjennomgå bytte av utvendig kledning og utvendig etterisolering med 5-10 …

πŸ“ Båstadryggen 20 Asker
En 3D-linjegrafisk visualisering (rendering) av en planlagt bygning sett fra en vinkel som viser både fasade og tomteforhold.
Extension Enebolig

Tilbygg og ny garasje på Bergshaven 27 A og B, Lillesand

Prosjektet omfatter oppføring av to tilbygg på en eksisterende enebolig på Bergshaven 27 A og B. Det ene tilbygget på 2…

πŸ“ Bergshaven 27A Lillesand
Fotografi av en bygning med en tilhørende hagebod.
Extension Enebolig

Tilbygg og ny boenhet i enebolig, Gamle Riksvei 263

Prosjektet omfatter ombygging, tilbygg og bruksendring av en eksisterende enebolig på Gamle Riksvei 263, Drammen. Det b…

πŸ“ Gamle Riksvei 263 Drammen
Fotografi av en innendørs trapp og gang i en bolig, med utsikt mot et rom med treningsutstyr.
Extension Enebolig

Tilbygg og påbygg til enebolig i Trondheimsveien 130

Ny tilbygg og påbygg i to etasjer til eksisterende enebolig i Trondheimsveien 130 med totalt bruttoareal på 321 m². Pro…

πŸ“ Trondheimsveien 130 Lillestrøm
3D-visualiseringer av et planlagt hus med beregning av gjennomsnittlig terrengnivå
Rehabilitation Enebolig

Rehabilitering, fasadeendring og støttemur på enebolig i Styrmoes vei 49, Dramm…

Prosjektet omfatter omfattende rehabilitering og fasadeendringer på en eksisterende enebolig med tilhørende næringsloka…

πŸ“ Styrmoes vei 49 Drammen
3D-visualisering av en planlagt eller endret fasade med utvidet terrasse og trapp.
NewConstruction Enebolig

Ny enebolig med sekundærbolig og garasje i Krillåsveien 11B, Asker

Ny enebolig med sekundær boenhet og frittstående garasje oppføres på Krillåsveien 11B i Asker. Boligen er på totalt ca.…

πŸ“ Krillåsveien 11B Asker
🏠
Extension Enebolig

Tilbygg med kjøkkenutvidelse på Sloratoppen 170

Ny tilbygg på enebolig med utvidelse av kjøkkenarealet på eiendommen Sloratoppen 170. Prosjektet innebærer fysisk øknin…

πŸ“ Kløversvingen 48 Nordre Follo
3D-visualisering av en moderne, fleretasjers bygning med trepanel og betongelementer, plassert i et terreng med store trapper.
Extension Enebolig

Tilbygg og ombygging med bruksendring til bolig, Arefjordvegen 267

Tiltaket omfatter totalombygging og tilbygg av eksisterende bolig på Arefjordvegen 267, tidligere hytte regulert til fr…

πŸ“ Arefjordvegen 267 Øygarden
🏠
NewConstruction Enebolig

Ny enebolig med garasje i Nadabergveien 2B

Ny enebolig med tilhørende garasje oppført på eiendommen i Nadabergveien 2B. Prosjektet omfatter boligbygg med tilhøren…

πŸ“ Nadabergveien 2B Sandnes
🏠
NewConstruction Enebolig

Ny enebolig og garasje i Heigreveien 81B

Ny enebolig med tilhørende frittstående garasje oppført på eiendommen i Heigreveien 81B. Prosjektet omfatter boligbygg …

πŸ“ Heigreveien 81B Sandnes
🏠
Extension Enebolig

Oppføring av carport på Harahaugane 44

Ny frittstående carport oppføres på eiendommen Harahaugane 44. Carporten skal fungere som overdekket parkeringsplass ti…

πŸ“ Harahaugane 40 Sandnes
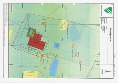
Situasjonskart som viser tomtens beliggenhet, nabolag, veier og bygningsplasseringer.
NewConstruction Enebolig

Riving og ny enebolig i Askveien 97, Nittedal

Prosjektet omfatter riving av eksisterende våningshus og oppføring av ny enebolig på eiendommen Askveien 97 i Nittedal.…

πŸ“ Askveien 97 Nittedal