Enebolig 2134 treff

🏠
NewConstruction Enebolig

Ny bolig med riving og naustombygging i Ytstebrødveien 138

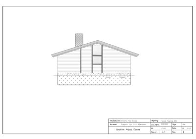
Ny enebolig skal oppføres på eiendommen i Ytstebrødveien 138, samtidig som det eksisterende huset rives. I tillegg skal…

πŸ“ Ytstebrødveien 138 Eigersund
Håndtegnet oppriss (fasade) av en bygning med høydemål, takform og plassering av ovner.
NewConstruction Enebolig

Rehabilitering av skorstein og ildstad på Skutevik 16

Rehabilitering av en teglskorstein med ett løp på en enebolig på Skutevik 16. Skorsteinen er 177 cm høy og tilknyttet t…

πŸ“ Skutevik 16 Kvam
En samling av 3D-visualiseringer (renderinger) av en planlagt bolig, vist fra ulike vinkler (Sør, Vest, Nord, Øst) samt fasade- og snittutsnitt.
NewConstruction Enebolig

Ny enebolig med utleiedel i Hjellveien 20, Henningsvær

Ny enebolig på 301,6 m² BRA fordelt på to etasjer med en utleiedel i deler av 1. etasje, plassert på en tomt på 294 m² …

πŸ“ Hjellveien 20 Vågan
Fasadetegning som viser bygningens utsyn fra flere vinkler (f.eks. front, side og bakside) med detaljer om takform, vinduer og fasadepanel.
Extension Enebolig

Tilbygg og bruksendring i kjeller, Vestfoldveien 92

Ny veranda på 13 m² med tilhørende trappenedløp til kjelleretasje på fasade nord, samt takoverbygg på 27,3 m² over eksi…

πŸ“ Vestfoldveien 92 Drammen
Fasadetegning som viser bygningens utseende fra fronten, inkludert takform, vinduer, veggmønster og skorstein.
ChangeOfUse Enebolig

Bruksendring og fasadeendring i enebolig, Evjegata 25A, Mjøndalen

Bruksendring av kjellerareal i en eksisterende enebolig på Evjegata 25A i Mjøndalen, hvor kjelleren på ca. 115 m² omgjø…

πŸ“ Evjegata 25A Drammen
3D-visualisering av en planlagt eller eksisterende bolig med en utvidelse eller tilbygg.
ChangeOfUse Enebolig

Bruksendring, tilbygg og fasadeendring på Gamle Drammensvei 425A

Prosjektet omfatter bruksendring av kjellerareal fra tilleggsdel til hoveddel, inkludert etablering av en sekundær boen…

πŸ“ Gamle Drammensvei 425A Asker
🏠
Extension Enebolig

Bruksendring og to tilbygg til enebolig i Mørkveien 169

Prosjektet omfatter bruksendring og oppføring av to utvendige tilbygg til en eksisterende enebolig på Mørkveien 169. Ti…

πŸ“ Mørkveien 169 Våler (Østfold)
Fasadetegning (opprikk) av en bygning sett fra syd og nord, med mål og detaljer om tak og uteplass.
Extension Enebolig

Tilbygg med delvis overbygd terrasse på Røyskattlia 1

Ny tilbygg på eksisterende enebolig bestående av en delvis overbygd terrasse og utvidelse av terrasse med et bebygd are…

πŸ“ Røyskattlia 1 Drammen
Bildet viser 3D-visualiseringer (renderinger) av en boligbebyggelse, inkludert et etasjeplan og en fasadevisning.
Extension Enebolig

Tilbygg, påbygg og bruksendring av bolig med garasje i Buskerudveien 1, Drammen

Prosjektet omfatter sammenslåing av tomannsbolig til enebolig med sokkelleilighet, bruksendring av loft og kjeller, fas…

πŸ“ Buskerudveien 1 Drammen
En arkitekttegning som viser fire ulike perspektiv (3D View 1-4) av en planlagt bolig i etasjeplan.
Extension Enebolig

Tilbygg og ny garasje på Landrovågen 26C, Ågotnes

Ny garasje på 45,1 m² med flatt tak og tilbygg til eksisterende enebolig på Landrovågen 26C. Tilbygget er på 66 m² BYA,…

πŸ“ Landrovågen 26C Øygarden
Bildet viser fire 3D-visualiseringer (renderinger) av et byggeprosjekt fra ulike vinkler (nord, sørøst, øst, vest).
NewConstruction Enebolig

Ny enebolig med garasje og tomtedeling i Skadbergveien 11, Sola

Ny enebolig på ca. 201,7 m² BRA fordelt på underetasje, 1. etasje og loft bygges på en tomt som deles i to. Boligen har…

πŸ“ Skadbergveien 11 Sola
Fasadetegning som viser front- og sideopprikk av en bygning med håndskrevne notater om adresse og tegner.
ChangeOfUse Enebolig

Midlertidig bruksendring til bolig i enebolig, Arbeidergata 19

Eksisterende enebolig på 63 m² i Arbeidergata 19, Mjøndalen, benyttes midlertidig som bolig i inntil 2 år uten bygnings…

πŸ“ Arbeidergata 19 Drammen
🏠
NewConstruction Enebolig

Igangsetting og ferdigattest for enebolig i Aslak Bolts gate 40D

Prosjektet omfatter oppføring av en enebolig på eiendommen i Aslak Bolts gate 40D. Bygget er en frittstående bolig med …

πŸ“ Aslak Bolts gate 40D Hamar
Etasjeplan eller romfordeling med merknader om veggfjerning og bjelker.
Rehabilitation Enebolig

Endring av innvendig bærekonstruksjon i enebolig på Reistadjordet 27

Prosjektet omfatter endring av den innvendige bærekonstruksjonen i en eksisterende enebolig på Reistadjordet 27, Nesbru…

πŸ“ Reistadjordet 27 Asker
3D-visualisering av en moderne bygning med terrasse og utemøbler.
Extension Enebolig

Tilbygg, garasje og takendring på Askåsen 46, Nesbru

Tiltaket omfatter hovedombygging av enebolig med tilbygg på ca. 35 m², inkludert utvidelse av taket med flatt tak, ette…

πŸ“ Askåsen 46 Asker
Bildet viser fasadetegninger for en bygning, med utsnitt av fasadene vest, nord, øst og sør.
Extension Enebolig

Tilbygg med dispensasjon ved Bjørkelia 2, Drammen

Ny to-etasjes tilbygg på 16 m² til enebolig på Bjørkelia 2 i Drammen, inkludert utvidelse av sekundær boenhet til total…

πŸ“ Bjørkelia 2 Drammen
Fasadetegning (opprikk) av en bygning sett fra nord, med angivelse av terreng og vindusposisjon.
Extension Enebolig

Tilbygg til enebolig i Haldenveien 343, Lillestrøm

Ny tilbygg til eksisterende enebolig i Haldenveien 343, Lillestrøm, med to etasjer og saltak. Tilbygget inkluderer blan…

πŸ“ Haldenveien 343 Lillestrøm
Fasadetegning som viser bygningens utseende fra fire sider (Vest, Nord, Øst og Sør).
ChangeOfUse Enebolig

Bruksendring med fasadeendring og terrasse på Kjushagen 10

Tiltaket omfatter bruksendring av kjellerarealer i en eksisterende enebolig, med etablering av ny utvendig trappeadkoms…

πŸ“ Kjushagen 10 Lillestrøm
🏠
VerticalExtension Enebolig

Påbygg og terrasseutvidelse på enebolig, Prestegårdsvegen 1

Påbygg på eksisterende enebolig med tilhørende utvidelse av terrasse. Tiltaket innebærer en vertikal utvidelse av bolig…

πŸ“ Prestegårdsvegen 1 Hamar
Fasadetegning (opprikk) av bygningens vestside med detaljer om tak, vinduer og fasadematerialer.
Extension Enebolig

Tilbygg til enebolig i Nordåsvegen 2, Gardvik

Ny tilbygg på 65 m² BRA (81 m² BYA) til eksisterende enebolig i Nordåsvegen 2, Gardvik. Tilbygget er i én etasje med sa…

πŸ“ Nordåsvegen 2 Nord-Odal
To foton som viser en vinterhage sett fra innsiden og en ny mur ved eiendom Gamle Leangvei 2.
Extension Enebolig

Tilbygg med vinterhage og garasje under terreng i Gamle Leangvei 2

Tiltaket omfatter en vinterhage oppført rundt 1999-2000 med glasskonstruksjon og høy isolasjonsevne, en ny støttemur op…

πŸ“ Gamle Leangvei 2 Asker
3D-visualisering (rendering) av en snittgjenstand som viser sol- og skyggeforhold for en eiendom.
NewConstruction Enebolig

Riving og nybygg av to eneboliger i Myrullvegen 12, Tananger

Prosjektet omfatter riving av en eksisterende bolig og garasje på Myrullvegen 12, og oppføring av to nye frittstående e…

πŸ“ Myrullvegen 12 Sola
Fotografi av en takutspringende vinduslukke (døme) med hvit ramme og mørk tegletak.
VerticalExtension Enebolig

Påbygg, fasadeendring og bruksendring på enebolig i Anchersens vei 99

Prosjektet omfatter påbygg av en ark på en eksisterende enebolig med to boenheter i Anchersens vei 99. Det inkluderer b…

πŸ“ Anchersens vei 99 Drammen
Fasadetegning som viser bygningens utseende sett fra nordøst, inkludert terrassering og detaljeringsnotater.
Extension Enebolig

Tilbygg, fasadeendring og ombygging på Garntangen, Holeveien 1669

Prosjektet omfatter oppføring av tre tilbygg på eiendommen Garntangen, Holeveien 1669, bestående av et tilbygg på 19,4 …

πŸ“ Holeveien 1669 Hole