Enebolig 2134 treff

Fasadetegning (lengdeprofil) som viser bygningens utseende sett fra siden, med gulvkote og skala.
NewConstruction Enebolig

Ny enebolig med utleiedel på Slepphaugen 81, Oppdal

Ny enebolig med utleiedel på totalt 288 m² fordelt på to etasjer. Bygget har saltak og trekledning, med flere fasader u…

πŸ“ Slepphaugen 81 Oppdal
🏠
NewConstruction Enebolig

Ferdigattest for enebolig på Haugås 130

Ferdigattest for en nyoppført enebolig på eiendommen Haugås 130. Bygget er en frittstående bolig beregnet for en famili…

πŸ“ Haugås 128 Froland
En tegning som viser fasaden på en hytte sett fra siden. Tegningen illustrerer takform, vinduer, en skorstein og en veranda. Det er også en rød linje og tekst som viser 'Original plassering vinduer i dag'.
FacadeChange Enebolig

Fasadeendring og bruksendring på enebolig i Spinellveien 29B

Eneboligen på Spinellveien 29B gjennomgår fasadeendringer med utskifting og forstørrelse av flere vinduer på fasadene n…

πŸ“ Spinellveien 29B Fredrikstad
Utsnitt av situasjonskart som viser bygningens plassering i forhold til vegen og nabobygg.
Extension Enebolig

Tilbygg på enebolig i Håvundvegen 198, Skien

Ny oppføring av tilbygg til eksisterende enebolig på eiendommen Håvundvegen 198 i Skien. Tiltaket innebærer en fysisk u…

πŸ“ Håvundvegen 198 Skien
3D-visualisering (rendering) av et snitt gjennom 1. etasje i en bolig, som viser romfordeling, vinduer og trapp.
Rehabilitation Enebolig

Ombygging og fasadeendring av enebolig på Bakklandet 33

Eksisterende enebolig på 120,5 m² med saltak og trekledning gjennomgår ombygging og fasadeendring. Tiltaket inkluderer …

πŸ“ Bakklandet 33 Ørland
Bildet viser to 3D-visualiseringer (renderinger) av en eksisterende bygning sett fra ulike vinkler (nord-øst og sør-vest).
Rehabilitation Enebolig

Rehabilitering av enebolig i Tingstveitveien 206, Arendal

Rehabilitering av enebolig på 95,3 m² fordelt på to etasjer med tre soverom i 2. etasje og stue, kjøkken, bad, gang og …

πŸ“ Tingstveitveien 206 Arendal
3D-visualisering (rendering) av en husfasade sett fra foran, inkludert terreng og omgivende trær.
Extension Enebolig

Tilbygg med vinterhage på Vraktangen 5, Fredrikstad

Ny frittliggende vinterhage på 25 m² BYA og 20,6 m² BRA tilknyttet en eksisterende enebolig på Vraktangen 5. Tilbygget …

πŸ“ Vraktangen 5 Fredrikstad
🏠
VerticalExtension Enebolig

Påbygg i enebolig på Osensjøen Vest 1359

Påbygg på eksisterende enebolig på Osensjøen Vest 1359. Prosjektet innebærer en vertikal utvidelse av boligen, som vil …

πŸ“ Osensjøen vest 1359 Trysil
Fotografi av en boligbebyggelse i vinterlandskap med snødekte hus og trær.
Demolition Enebolig

Riving av brannskadet enebolig

Saken gjelder søknad om tillatelse til riving av en enebolig som er skadet av brann. Det er gitt tillatelse til riving,…

πŸ“ Magnus Hamlanders veg 13 Elverum
Fasadetegning (opprikk) av en bygning sett fra nord.
FacadeChange Enebolig

Fasadeendring og påbygg av inngangsparti i Drangedalsveien 3301

Ny påbygging av inngangsparti på 12,5 m² på en eksisterende enebolig i Drangedalsveien 3301. Påbygget er 2,5 x 5 meter …

πŸ“ Drangedalsveien 3301 Drangedal
🏠
Extension Enebolig

Tilbygg under 50 m² på enebolig i Løvåsvegen 377

Ny tilbygg på mindre enn 50 m² til en eksisterende enebolig i Løvåsvegen 377. Tilbygget vil utvide boligens areal og fu…

πŸ“ Løvåsvegen 377 Trysil
3D-visualisering av en bygning sett fra siden (side-elevasjon) med synlig fasadebehandling og vinduer.
Extension Enebolig

Tilbygg og fasadeendring på enebolig i Grytdalsvegen 388, Oppdal

Ny tilbygg på 71 m² BRA og 67,5 m² BYA i en etasje med tilhørende terrasse bygges på en eksisterende enebolig i Grytdal…

πŸ“ Grytdalsvegen 388 Oppdal
3D-visualisering (rendering) av et forprosjekt som viser bygningers volum, form og plassering i forhold til terrenget og nabolaget.
NewConstruction Enebolig

Ny enebolig med garasje og anneks i Strandgata 16, Sandnessjøen

Ny enebolig over tre plan med sokkel på totalt ca. 207 m² BRA oppføres på Strandgata 16 i Sandnessjøen. Boligen inklude…

πŸ“ Strandgata 16 Alstahaug
Fotografi av en situasjonsplan (tomteplan) som viser et byggefelt med to røde bygninger, omgitt av gress og trær. Bildet er tatt med en mobiltelefon og viser også e-posthøvelen over.
NewConstruction Enebolig

Ny enebolig med garasje og atkomstveg i Lausgardsvegen 382

Ny enebolig i to etasjer med saltak og trekledning, totalt 216,2 m² BRA og 243,5 m² BYA, oppføres på eiendommen Lausgar…

πŸ“ Lausgardsvegen 382 Søndre Land
Et kart som viser eiendommen med en markert byggegrense (rød sirkel) og omgivelsene.
NewConstruction Enebolig

Ny mindre bolig for eldre på Tromøy Kirkevei 172, Arendal

Ny mindre frittstående bolig tilpasset eldre på eiendommen Tromøy Kirkevei 172 i Arendal kommune. Boligen planlegges so…

πŸ“ Tromøy kirkevei 172 Arendal
Fasadetegning som viser oppriss av en bolig sett fra tre ulike vinkler (Nord, Sør og Vest).
Extension Enebolig

Tilbygg, garasje og bruksendring i enebolig på Vikdalsgutua 5

Ny enebolig med tilbygg på ca. 25 m², ny frittstående garasje på ca. 107 m² fordelt på to etasjer, og bruksendring av k…

πŸ“ Vikdalsgutua 5 Elverum
Bildet viser en tegning med en snittegning (opprikk) av en bygning til venstre, og fire fasadetegninger (opprikk) av bygningen sett fra ulike vinkler (vest, nord, øst, syd) til høyre.
ChangeOfUse Enebolig

Bruksendring av kjeller i enebolig, Ametystveien 8

Bruksendring av kjeller i en enebolig på 132 m² med 2,45 meter takhøyde. Kjelleren innredes til hoveddel med stue, kjøk…

πŸ“ Ametystveien 8 Fredrikstad
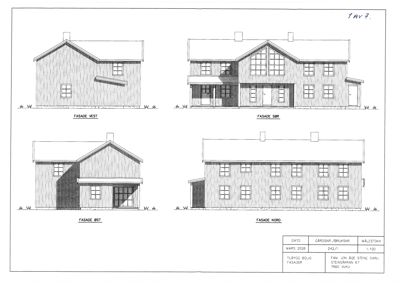
Fasadetegninger som viser oppriss av bygningens fire sider (vest, sør, øst og nord).
Extension Enebolig

Tilbygg til enebolig på Steinsåkran 67, Vuku

Ny tilbygg på enebolig på Steinsåkran 67 med et samlet areal på under 50 m². Tilbygget inkluderer blant annet vaskerom,…

πŸ“ Steinsåkran 67 Verdal
Håndtegnet fasadetegning som viser oppriss av carport sett fra nord- og sørsiden av huset, med angitte mål.
Extension Enebolig

Oppføring av carport som tilbygg til bolig på Blommen 64

Ny carport som tilbygg til eksisterende enebolig på Blommen 64. Carporten bygges i tre med saltak og har en gesimshøyde…

πŸ“ Blommen 64 Verdal
Fasadetegning som viser bygningens utseende fra fire sider (Nord, Vest, Sør, Øst).
Extension Enebolig

Utvendig tilbygg med bod og garasje på Stekke 9F

Ny utvendig tilbygg på enebolig på Stekke 9F bestående av en bod og garasje med et bruttoareal på ca. 48,5 m². Tilbygge…

πŸ“ Stekke 9F Verdal
Et arkivblad som inneholder en kombinasjon av eksisterende fotografier (venstre kolonne) og 3D-renderinger (høyre kolonne) av en bygning i en kystmiljø.
Extension Enebolig

Tilbygg og fasadeendring på enebolig i Kyrpingsvegen 173

Ny terrasse/altan på ca. 41 m² oppføres i to plan som erstatning for en eksisterende altan på ca. 10 m², med en netto ø…

πŸ“ Kyrpingsvegen 173 Etne
Bildet viser fasadetegninger av en bolig, inkludert utsnitt av fasaden sett fra nord, øst og vest.
Extension Enebolig

Ettergodkjenning av tilbygg til enebolig på Øvre Brannanveg 15

Ny ettergodkjent utvendig tilbygg på 16 m² BRA til enebolig på Øvre Brannanveg 15. Tilbygget er oppført på 1980-tallet …

πŸ“ Øvre Brannanveg 15 Verdal
🏠
Extension Enebolig

Tilbygg til våningshus på Haugås 130

Ny tilbyggsdel til eksisterende våningshus på eiendommen Haugås 130. Tilbygget vil utvide boligens areal og funksjonali…

πŸ“ Haugås 128 Froland
🏠
Extension Enebolig

Tilbygg under 50 m² på Rislandsveien 22

Ny tilbygg på enebolig med samlet areal mindre enn 50 m² på Rislandsveien 22. Tilbygget vil utvide boligens bruksareal,…

πŸ“ Rislandsveien 22 Froland