Enebolig 2134 treff

Fotografi av en lyskassa med målelinjer og tekstbeskrivelse under.
ChangeOfUse Enebolig

Bruksendring av kjellerareal i Marie Lilleseths vei 9, Heggedal

Bruksendring av 31 m² kjellerareal i en enebolig bestående av en kjellerstue på 22,9 m² og et kontor/trimrom på 8,1 m².…

πŸ“ Marie Lilleseths vei 9 Asker
Fasadetegning som viser fronten på en toetasjes hytte med tak, vinduer, balkong og grunnmur.
ChangeOfUse Enebolig

Bruksendring og fasadeendring på enebolig i Breivikvegen 46

Bruksendring av kjelleretasjens rom fra tilleggsdel til hoveddel, hvor rommer 'Hobby' og 'Bod' omgjøres til soverom på …

πŸ“ Breivikvegen 46 Ålesund
Fasadetegning som viser bygningens utseende fra flere vinkler (mot nordøst, nordvest, sydvest, syvest).
Extension Enebolig

Tilbygg med utvidelse og sammenslåing av terrasse i Krystallveien 21, Nærsnes

Ny utvidet terrasse på ca. 33 m² som sammenslår eksisterende terrasse og balkong på en enebolig i Krystallveien 21, Nær…

πŸ“ Krystallveien 21 Asker
Tegning som viser fasaden mot øst for en bygning med et tilbygg, inkludert mål og adresse.
Extension Enebolig

Tilbygg carport/veranda og innvendig bruksendring

Søknad om tillatelse og dispensasjon for oppføring av carport/veranda samt innvendig bruksendring i enebolig.

πŸ“ Devikveien 15 Asker
Fasadetegning som viser bygningens utseende fra alle fire sider (Nord, Sør, Vest, Øst) med terrengforhold og planter.
Extension Enebolig

Tilbygg med sekundærleilighet på Ånnerudjordet 43, Asker

Ny tilbygg på eksisterende enebolig på Ånnerudjordet 43 i Asker med et samlet areal på ca. 295 m². Tilbygget inkluderer…

πŸ“ Ånnerudjordet 43 Asker
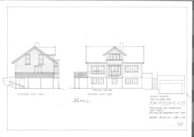
Bildet viser to fasadetegninger av en bolig, merket 'FASEDE MOT VEST' og 'FASEDE MOT SØR'.
Extension Enebolig

Tilbygg veranda på enebolig, Jon Fossums vei 23, Hvalstad

Ny tilbygg av veranda på ca. 8 m² på vestfasaden av en eksisterende enebolig i Jon Fossums vei 23. Tilbygget utvider ve…

πŸ“ Jon Fossums vei 23 Asker
Snittegning som viser detaljer for møne og gesims med mål og konstruksjonsdetaljer.
VerticalExtension Enebolig

Endring av bærende takkonstruksjon på enebolig i Vervenveien 2

Endring av bærende takkonstruksjon på en eksisterende enebolig i Vervenveien 2, Åros. Eksisterende takstoler erstattes …

πŸ“ Vervenveien 2 Asker
Bildet viser tre fasadetegninger av en bygning sett fra ulike vinkler (Nordvest, Nordøst, Sørøst).
Extension Enebolig

Tilbygg og ombygging av enebolig med ny garasje i Greverudveien 16

Prosjektet omfatter omfattende tilbygg og ombygging av en eksisterende enebolig på 141 m² i Greverudveien 16. Det inklu…

πŸ“ Greverudveien 16 Asker
Tegning som viser fasader av en hytte sett fra utsiden
Extension Enebolig

Montering av 2 vedovner med stålpiper i Christian Lingsoms vei 24

Montering av to vedovner med tilhørende isolerte stålpiper i en eksisterende enebolig på Christian Lingsoms vei 24. Pip…

πŸ“ Christian Lingsoms vei 24 Asker
🏠
Extension Enebolig

Tilbygg til enebolig på Frøtvedtveien 30B

Ny utvidelse av eksisterende tilbygg på enebolig i to etasjer med et samlet bruksareal på 43 m². Tilbygget inkluderer e…

πŸ“ Frøtvedtveien 30A Asker
🏠
Extension Enebolig

Oppføring av carport i enebolig

Saken gjelder søknad om igangsettingstillatelse for oppføring av carport i enebolig, med senere endring av tillatelsen.…

πŸ“ Gauselvågen 62B Stavanger
3D-visualisering av takstolkonstruksjon med gjennomsiktige plan for å vise innvendig struktur.
VerticalExtension Enebolig

Påbygg og bruksendring i enebolig, Dalveien 68, Vollen

Enebolig på Dalveien 68 i Vollen med totalt 188 m² BRA over to plan og underetasje. Prosjektet omfatter påbygg med ny 2…

πŸ“ Dalveien 68 Asker
Fasadetegning som viser en eksisterende bygning og en planlagt endring (nytt), med fokus på vinduer og inngang.
FacadeChange Enebolig

Fasadeendring med veranda og vindusskifte i Rosenkrantz vei 5E

Fasadeendring på en eksisterende enebolig fra 1986 med et samlet areal på 105 m². Prosjektet inkluderer innbygging av v…

πŸ“ Rosenkrantz vei 5E Asker
Fasadetegning som viser bygningens utseende fra fire ulike retninger (nordøst, nordvest, sørøst og sørvest).
ChangeOfUse Enebolig

Bruksendring av sportsbod og bod til soverom i Søndre vei 42

Bruksendring av eksisterende sportsbod og bod på til sammen ca. 9,5 m² i en enebolig til et soverom. Veggen mellom spor…

πŸ“ Søndre vei 42 Asker
Bildet viser to fasadetegninger av en bygning, sett fra ulike vinkler (f.eks. nord og øst).
Extension Enebolig

Tilbygg og bruksendring på enebolig, Bondistranda 45, Asker

Ny veranda med utvidet saltak og tilbygg på ca. 30 m² BYA til en eksisterende enebolig. Bruksendring av kjeller fra til…

πŸ“ Bondistranda 45 Asker
3D-visualisering av en fasadeendring med merking av nye takvinduer, hevet tak og ny levegg.
Extension Enebolig

Takoppløft og fasadeendring på enebolig, Gunnaråstoppen 6, Sætre

Takoppløftet består i en heving av eksisterende tak med ca. 75 cm i overgangen mellom bolig og garasje, uten endring av…

πŸ“ Gunnaråstoppen 6 Asker
Fotografi av en moderne villa sett fra siden, plassert på en skråning.
NewConstruction Enebolig

Ny enebolig med garasje i Sjølystveien 41, Sætre

Ny enebolig med totalt bruttoareal på ca. 218,8 m² fordelt på underetasje (120,5 m²) og 1. etasje (98,3 m²). Boligen ha…

πŸ“ Sjølystveien 41 Asker
Bildet viser en samling av 3D-perspektivtegninger (renderinger) av et hus, samt et fotografi av eksisterende hus i nabolaget.
VerticalExtension Enebolig

Påbygg med valmet tak på enebolig i Haldensvingen 39, Asker

Påbygget er et to-etasjes tilbygg over et eksisterende stuetilbygg på eneboligen i Haldensvingen 39. Påbygget har en gr…

πŸ“ Haldensvingen 39 Asker
🏠
Extension Enebolig

Tilbygg med veranda på enebolig i Astrid Skares vei 15

Ny understøttet veranda med underliggende terrasse på 29 m² etableres på vestside av eneboligen i Astrid Skares vei 15.…

πŸ“ Astrid Skares vei 15 Asker
3D-visualisering (rendering) av et utendørs aktivitetsområde med lekeplass og uteoppholdsareal.
VerticalExtension Enebolig

Endring av rekkverk og sportsbod på enebolig, Gjellumlia 3C, Asker

Ny enebolig med integrert garasje og sekundærleilighet på totalt ca. 332 m² BRA, oppført i tre med saltak teglstein. Bo…

πŸ“ Gjellumlia 3C Asker
3D-visualisering av en planlagt bygning med trepanel og svart tak sett fra et vinklet utsyn.
Extension Enebolig

Tilbygg og bruksendring av bolig med garasje i Busebakken 7, Hyggen

Ny bolig med tilbygg og bruksendring av eksisterende fritidsbolig til bolig på eiendommen Busebakken 7 i Hyggen. Tilbyg…

πŸ“ Busebakken 7 Asker
3D-visualisering (rendering) av en bolig sett fra sørøst, inkludert takform, fasade og beliggenhet på tomten.
Extension Enebolig

Tilbygg og fasadeendring på enebolig i Rauds Gate 8, Bodø

Prosjektet omfatter et tilbygg på eksisterende enebolig i Rauds Gate 8, Bodø, med en utvidelse av kjøkken, spisestue, b…

πŸ“ Rauds gate 8 Bodø
🏠
VerticalExtension Enebolig

Innbygging balkonger og tilbygg

Ferdigattest utstedt for innbygging av balkonger og et tilbygg på eiendom i Nabbetorpveien 157.

πŸ“ Nabbetorpveien 157A Fredrikstad
Fotografier av eksisterende fasade mot vest på en bygning.
FacadeChange Enebolig

Fasadeendring, vinterhage og basseng på Brekkestien 11

Eksisterende enebolig på 136,9 m² med tre etasjer og saltak i tre, skal gjennomgå fasadeendringer og tilbygg. Planene i…

πŸ“ Brekkestien 11 Skien