Enebolig 2123 treff

Fasadetegning som viser bygningens utseende fra vest og øst, inkludert terrasser og takform.
Extension Enebolig

Tilbygg og fasadeendring på enebolig, Evenrudvegen 9

Ny tilbygg med garasje på plan 1 og boligdel i kjeller på østsiden av eksisterende enebolig. Heving av tak på eksistere…

πŸ“ Evenrudvegen 9 Østre Toten
Fotografi av en liten, hvitfarget trehytte med snø på bakken og taket.
Demolition Enebolig

Riving av enebolig i Holtegutua 26A, Jessheim

Eksisterende enebolig på 98,27 m² fordelt på to etasjer skal rives. Boligen har en etasje med stue, kjøkken, gang, entr…

πŸ“ Holtegutua 26A Ullensaker
Et 3D-modellert perspektivbilde som viser en bygning i forhold til omgivelsene.
NewConstruction Enebolig

Ny enebolig med fradeling på Foren 4, Time kommune

Ny enebolig i to etasjer med totalt bruksareal på ca. 168,5 m² fordelt på 1. etasje (68,6 m²) og 2. etasje (99,9 m²). B…

πŸ“ Foren 4 Time
Fasadetegning som viser bygningens utseende fra en bestemt vinkel, inkludert takform, vinduer og fasademateriale.
Extension Enebolig

Tilbygg med soverom og garasje på Jektløpet 30, Rørvik

Ny tilbygg på eksisterende enebolig bestående av et soverom på 11,6 m², gang på 4,9 m² og en integrert garasje på 28,2 …

πŸ“ Jektløpet 30 Nærøysund
En håndtegnet illustrasjon (rendering) av en rødbrun villa sett fra siden, med omgivende trær og terreng.
Extension Enebolig

Tilbygg til enebolig i Storevarveien 308

Ny to-etasjes tilbygg på eksisterende enebolig i Storevarveien 308 med et bebygd areal på ca. 45 m² og et samlet bruksa…

πŸ“ Storevarveien 308 Sandefjord
🏠
NewConstruction Enebolig

Ny enebolig i Lillevannsveien 2C

Ny enebolig planlegges oppført på eiendommen Lillevannsveien 2C. Prosjektet omfatter et frittstående boligbygg beregnet…

πŸ“ Lillevannsveien 2C Oslo - Oslove
🏠
Extension Enebolig

Tilbygg og bruksendring av kjeller i Rosendalsveien 45

Prosjektet omfatter et tilbygg til en eksisterende enebolig samt bruksendring av kjellerarealet. Tilbygget vil utvide b…

πŸ“ Rosendalsveien 45 Oslo - Oslove
Fotografi av en bygning sett fra siden, som viser fasade, vinduer og etasjer.
Extension Enebolig

Innglassing av veranda på Grønnliflata 3, Bodø

Ny innglasset veranda som tilbygg til stue i enebolig på Grønnliflata 3 i Bodø. Tilbygget har et bruksareal på 8,1 m² o…

πŸ“ Grønnliflata 3 Bodø
Tegning som viser to nye fasader (Sør og Nord) for en bygning, inkludert detaljer om vinduer, balkong og takform.
FacadeChange Enebolig

Innglassing av balkong på enebolig i Sneveien 16, Bodø

Innglassing av eksisterende balkong på en enebolig i Sneveien 16, Bodø. Balkongen på vestfasaden bygges inn med 4 mm he…

πŸ“ Sneveien 16 Bodø
Fasadetegninger som viser bygningens utsyn fra fire sider (N, V, S, Ø) med detaljer om vinduer, dører og takform.
Extension Enebolig

Utvidelse av altan og pergola i Svennengveien 2B, Bodø

Utvidelse av eksisterende altan i andre etasje med 9,5 m² og oppføring av en pergola med tak, glassvegger og skyvedør p…

πŸ“ Svennengveien 2A Bodø
Fasadetegning som viser bygningens utseende fra fire ulike retninger (Sørøst, Nordøst, Nordvest og Sørvest).
FacadeChange Enebolig

Fasadeendring og nytt VA-anlegg på Munarvollveien 1, Bodø

Prosjektet omfatter fasadeendring på en eksisterende enebolig med totalt 120,5 m² fordelt på to etasjer, samt etablerin…

πŸ“ Munarvollveien 1 Bodø
🏠
Demolition Enebolig

Riving av enebolig i Arnebråtveien 15

Eksisterende enebolig i Arnebråtveien 15 skal rives. Prosjektet omfatter fullstendig demontering og fjerning av bygning…

πŸ“ Arnebråtveien 15 Oslo - Oslove
Fasadetegning som viser bygningens utside med vinduer, taklinje og trappetrinn.
FacadeChange Enebolig

Fasadeendring på enebolig i Børsingveien 2B, Bodø

Fasadeendring på en eksisterende to-etasjes enebolig med saltak i Børsingveien 2B, Bodø. Endringen omfatter utvendig et…

πŸ“ Børsingveien 2B Bodø
🏠
FacadeChange Enebolig

Fasadeendring og utvendig tilbygg på Nonshaugen 58, Bodø

Prosjektet omfatter fasadeendring og oppføring av et utvendig tilbygg på en enebolig med hybelleilighet på Nonshaugen 5…

πŸ“ Nonshaugen 58 Bodø
Illustrasjon av et nytt hus i eksisterende omgivelser
VerticalExtension Enebolig

Påbygg, tilbygg og garasje på Bakkevei 18, Tvedestrand

Ny påbygg over hele boligens grunnplan med én ny etasje på 132,8 m² BRA, samt et mindre tilbygg/utestue på 15,7 m². Det…

πŸ“ Bakkevei 18 Tvedestrand
3D-visualiseringer (renderinger) av en planlagt bygning sett fra ulike vinkler, inkludert omgivelser.
Extension Enebolig

Påbygg, tilbygg og ny garasje i Selhaugvegen 18, Florø

Prosjektet omfatter påbygg av en ekstra etasje og tilbygg til en eksisterende enebolig fra 1960-tallet i Selhaugvegen 1…

πŸ“ Selhaugvegen 18 Kinn
Penselt tegning av fasade (Nord) på en eksisterende enebolig med tilbygg.
Extension Enebolig

Tilbygg og fasadeendring på enebolig i Gjerivegen 116

Ny enebolig med tilbygg på 35,5 m² BRA og 38,5 m² BYA med saltak og store vindusflater. Tilbygget er en vinterstue i én…

πŸ“ Gjerivegen 114 Gjerdrum
🏠
ChangeOfUse Enebolig

Bruksendring og fasadeendringer i Lyngveien 17

Underetasjen i en enebolig i Lyngveien 17 skal endres til boligformål, noe som innebærer tilpasning av rom og tekniske …

πŸ“ Lyngveien 17 Oslo - Oslove
🏠
ChangeOfUse Enebolig

Ombygging til enebolig med hybelleiligheter i Junkerveien 113, Bodø

Prosjektet omfatter ombygging av en eksisterende enebolig til en enebolig med to hybelleiligheter, inkludert sokkelleil…

πŸ“ Junkerveien 113 Bodø
🏠
Extension Enebolig

Tilbygg og ny garasje på Rauds gate 1, Bodø

Tilbygg til eksisterende enebolig samt oppføring av ny frittstående garasje etter riving av tidligere garasje på eiendo…

πŸ“ Rauds gate 1 Bodø
Tegning som viser fasadeopprikk for bygningens vest- og østsider.
ChangeOfUse Enebolig

Bruksendring og tilbygg til enebolig på Åsvegen 359

Prosjektet omfatter bruksendring fra tilleggsdel til hoveddel i en eksisterende enebolig på Åsvegen 359. Det inkluderer…

πŸ“ Åsvegen 359 Nannestad
Fotografi av en hvit vegg i et rom, med en liten kvadratisk uttak i veggen og en del av en mørk TV-skjerm i forgrunnen.
ChangeOfUse Enebolig

Bruksendring og ferdigattest for enebolig i Fredensborgveien 116, Bodø

Prosjektet omfatter en bruksendring av en eksisterende enebolig med totalt 53,2 m² bruksareal, inkludert kjeller. Kjell…

πŸ“ Fredensborgveien 116 Bodø
3D-visualisering av fasade og pergola for en boligprosjekt.
VerticalExtension Enebolig

Påbygg og bruksendring på enebolig i Storeteigane 6, Godøya

På Storeteigane 6 på Godøya gjennomføres et byggeprosjekt som omfatter påbygg, bruksendring og fasadeendringer på en ek…

πŸ“ Storeteigane 6 Giske
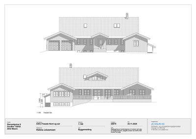
Fasadetegning som viser bygningens utseende fra nord og sør.
ChangeOfUse Enebolig

Bruksendring og fasadeendring på Stensetgutua 9

Bruksendring av kjellerareal på 21,3 m² fra tilleggsdel til hoveddel i en enebolig med to etasjer og saltak med teglste…

πŸ“ Stensetgutua 9 Nannestad