Enebolig 2122 treff

Fotografi av en eksisterende boligbebyggelse på en skråning, sett fra nede.
FacadeChange Enebolig

Fasadeendring med nye vinduer på Bjoavegen 106

Eksisterende enebolig med saltak og én etasje får en fasadeendring som inkluderer utskifting og endring av vinduer med …

πŸ“ Bjoavegen 106 Vindafjord
Fotografi av en hvit villa sett fra bakken, med en nybygd terrasse, en svart metallkonstruksjon (gazebo) og en tilhenger foran.
Extension Enebolig

Tilbygg med tak over veranda på Liabakken 7

Ny tilbyggskonstruksjon over eksisterende veranda på enebolig i Liabakken 7. Tilbygget består av et tak med 14,5 grader…

πŸ“ Liabakken 7 Vindafjord
Fasadetegning som viser bygningens utseende fra alle fire sider (Nord, Øst, Sør, Vest).
Extension Enebolig

Tilbygg, fasadeendring og garasje på Trollhaugane 6, Valderøya

Ny enebolig med tilbygg på 59,3 m², veranda på 42,1 m² og frittstående garasje på 48,4 m². Tilbygget inkluderer utvidel…

πŸ“ Trollhaugane 6 Giske
3D-visualisering (rendering) av en husfasade sett fra en vinkel, med grønt gress og blå himmel.
Extension Enebolig

Tilbygg under 50 m² på enebolig i Eidet 2, Bodø

Ny tilbygg på under 50 m² til eksisterende enebolig på Eidet 2 i Bodø. Tilbygget er en fysisk utvidelse av boligen med …

πŸ“ Eidet 2 Bodø
Tegning som viser fasadeoppsett for en hytte, med to varianter: eksisterende og ny.
FacadeChange Enebolig

Fasadeendring med nye vinduer i Vikveien 65, Horten

Fasadeendring på eksisterende enebolig i Vikveien 65, Horten, består av innsetting av to nye vinduer i byggets østgavl.…

πŸ“ Vikveien 65 Horten
Snittegning (Snitt A-A) som viser tverrsnittet av et rom med angitte mål og vindusdimensjoner.
ChangeOfUse Enebolig

Bruksendring av kjellerstue til kjellerstue og soverom, Halvdan Svartes gate 24

Bruksendring av et disponibelt kjellerrom på 27 m² i en enebolig, hvor rommet deles opp i to separate rom: en kjellerst…

πŸ“ Halvdan Svartes gate 24 Horten
Fasadetegning av en bygning sett fra øst, med tegningstittel 'Fasade øst' og informasjon om nye terrasser.
Extension Enebolig

Oppføring av to nye terrasser i Svalestien 8, Horten

To nye terrasser med samlet areal på 30,38 m² bygges på eiendommen Svalestien 8 i Horten. Terrassene skal utvide utepla…

πŸ“ Svalestien 8 Horten
3D-visualisering (rendering) av en bolig med to perspektivvisninger (Perspektiv 3 og 4).
VerticalExtension Enebolig

Påbygg og ombygging av enebolig på Lefdal 28, Kjølsdalen

Påbygg og begrenset ombygging av eksisterende enebolig på Lefdal 28 i Kjølsdalen. Prosjektet omfatter påbygg av ark mot…

πŸ“ Lefdal 28 Stad
Fasadetegning som viser bygningens utseende fra ulike vinkler (f.eks. syd, vest, nord, øst) med angitte høyder og terrassering.
NewConstruction Enebolig

Ny enebolig med garasje og støttemur på Langesandheia 15

Ny enebolig på 145,6 m² BRA med saltak og tegltakmateriale, inneholder blant annet tre soverom, tre bad, vaskerom, tv-s…

πŸ“ Langesandheia 15 Tvedestrand
Tegning som viser fasadeoppsett for en bygning, inkludert vinduer, dører og trapp. Under tegningene står det 'FASADE 2' og 'FASADE 1'.
ChangeOfUse Enebolig

Bruksendring boligbrakke i Høgåsveien 42, Bodø

Bruksendring av eksisterende boligbrakke på eiendommen Høgåsveien 42 i Bodø kommune fra tilleggsdel til hoveddel. Bygni…

πŸ“ Høgåsveien 42 Bodø
Fasadetegning som viser bygningens utseende fra fire sider (Syd, Nord, Øst, Vest) samt et snitt (Snitt) med mål og romfordeling.
Extension Enebolig

Tilbygg, påbygg, fasadeendring og garasje i Olav Westeraas gate 4

Prosjektet omfatter oppføring av et tilbygg i to etasjer og påbygg på eksisterende enebolig i Olav Westeraas gate 4, Ho…

πŸ“ Olav Westeraas gate 4 Horten
🏠
Extension Enebolig

Tilbygg på enebolig i Arendal kommune

Tilbygg på eksisterende enebolig i Arendal kommune med godkjent byggehøyde. Prosjektet innebærer en fysisk utvidelse av…

πŸ“ Prestehaugen 5 Arendal
3D-visualisering av en eksisterende bolig og en planlagt ny tilleggsbygning (garasje).
FacadeChange Enebolig

Fasadeendring og integrert garasje på Løddesølveien 469, Arendal

Prosjektet omfatter oppføring av en integrert garasje på ca. 40 m² i tilknytning til en eksisterende enebolig fra 1987 …

πŸ“ Løddesølveien 469 Arendal
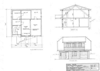
Bildet viser en tegning med etasjeplan for første etasje (PLAN FØRSTE ETASJE), et snitt (SNITT A) og en fasade (FASADE ØST).
ChangeOfUse Enebolig

Innredning av garasje til soverom i Solbakken 27C, Arendal

Del av dobbel garasje på 15 m² i første etasje bygges om til et soverom for leiligheten i andre etasje. Ombyggingen ink…

πŸ“ Solbakken 27C Arendal
Et sammensatt bilde som viser en blanding av foton av eksisterende bygninger og terreng, samt 3D-renderinger som illustrerer planlagt utforming av veier og bygninger.
NewConstruction Enebolig

Ny enebolig med dispensasjon for avkjørsel i Fløvegen, Ulsteinvik

Ny enebolig planlegges oppført på eiendom regulert til tomannsbolig i Fløvegen, Ulsteinvik. Bygget vil erstatte reguler…

πŸ“ Fløvegen 122 Ulstein
Fasadetegning (opprikk) av bygningens østside, som viser detaljer om fasadematerialer, vinduer og trappetrinn.
ChangeOfUse Enebolig

Bruksendring fra fritidsbolig til enebolig på Niemi 25, Vadsø

Eksisterende fritidsbolig oppført i 1947 på 217,5 m² fordelt på kjeller, 1. og 2. etasje endres til enebolig uten bygni…

πŸ“ Skallelv, Niemi 25 Vadsø
En håndtegnet fasadeopprikk (fra front) av en bygning med mål og skriftlig notat om 'FRONT ELEVATION'.
Extension Enebolig

Tilbygg til enebolig på Gnr 70 Bnr 2

Ny tilbygg på eksisterende enebolig med totalt areal på 126 m² fordelt på to etasjer. Bygget har saltak og trekledning,…

πŸ“ Berleneset 593 Bremanger
Fire ulike vinklinger (perspektivtegninger) av en planlagt toetasjes bolig sett fra utsiden.
Extension Enebolig

Tilbygg til enebolig på Erikstadveien 29, Fauske

Ny tilbygg på totalt 50 m² fordelt på to etasjer til eksisterende enebolig på Erikstadveien 29. Tilbygget inkluderer bl…

πŸ“ Erikstadveien 29 Fauske - Fuossko
🏠
Extension Enebolig

Oppføring av veranda og fasadeendring på Sponheimveien 5

Ny veranda bygges på en eksisterende enebolig i Sponheimveien 5, med tilhørende endringer på fasaden. Prosjektet omfatt…

πŸ“ Sponheimveien 5 Fredrikstad
Bildet viser to skjermbilder fra Google Street View som illustrerer eksisterende situasjon i området, inkludert en tidligere garasje og eiendomsgrenser.
NewConstruction Enebolig

Gjenoppbygging av enebolig med garasje i Kleivagjerdet 13, Kleppestø

Ny enebolig på 223,4 m² BRA fordelt på to etasjer med saltak i tegl, oppført i tre, med tilhørende garasje på 40,1 m². …

πŸ“ Kleivagjerdet 13 Askøy
3D-visualisering (rendering) av en bygning sett fra sør-aust.
ChangeOfUse Enebolig

Bruksendring og utvendig spiraltrapp på Holsekervegen 11

Bruksendring av to rom i eneboligen på Holsekervegen 11, hvor rommene på ca. 9,6 og 11,9 m² gjøres om til kontor/sovero…

πŸ“ Holsekervegen 11 Ulstein
3D-visualisering av en planlagt bolig med omgivende tomteforhold, nabolag og vegger.
NewConstruction Enebolig

Ny enebolig med integrert garasje på Morenen 74, Moss

Ny enebolig med integrert garasje oppføres på en nylig utskilt tomt på Morenen 74 i Moss. Boligen har et samlet bruksar…

πŸ“ Morenen 74 Moss
🏠
Extension Enebolig

Utvendig tilbygg større enn 50 m² på Hannåsfeltet 10

Ny utvendig tilbygg på over 50 m² til en eksisterende enebolig på adressen Hannåsfeltet 10. Tilbygget vil utvide bolige…

πŸ“ Hannåsfeltet 10 Evje og Hornnes
Fasadetegning som viser bygningens utsyn mot vest og nord-øst, med håndskrevne notater om rekkverk og trapp.
Extension Enebolig

Utviding av terrasse på Holevegen 4

Utviding av eksisterende terrasse tilknyttet en enebolig på Holevegen 4. Terrassen vil bli større og tilpasset boligens…

πŸ“ Holevegen 4 Stord