Enebolig 2122 treff

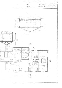
Etasjeplan (Plan U01) med romfordeling, dimensjoner og snittlinjer, samt en tilhørende snittegning (Snitt A).
ChangeOfUse Enebolig

Bruksendring og brannskilleendring i enebolig, Anisveien 3

Bruksendring av bassengrom til oppholdsrom i underetasjen i en enebolig på 120,5 m² i Anisveien 3. Prosjektet inkludere…

πŸ“ Anisveien 3 Fredrikstad
Fasadetegning som viser bygningens utseende fra fire sider (Nord, Vest, Sør, Øst).
VerticalExtension Enebolig

Påbygg av soverom i enebolig på Århaugbakken 56

Påbygg av eksisterende soverom i 2. etasje i enebolig på Århaugbakken 56, med utvidelse fra 8,9 m² til 13,2 m². Tiltake…

πŸ“ Århaugbakken 56 Karmøy
🏠
Rehabilitation Enebolig

Rehabilitering av bad i enebolig, Frysjaveien 17

Rehabilitering av bad i en enebolig på Frysjaveien 17. Prosjektet omfatter oppgradering og modernisering av baderommet,…

πŸ“ Frysjaveien 17A Oslo - Oslove
Fasadetegninger for en garasje med oppriss av Nord, Vest, Sør og Øst-fasaden.
NewConstruction Enebolig

Eksisterende enebolig med garasje og uthus på Mørkveien 171

Eksisterende enebolig oppført rundt år 2000 med totalt 154,9 m² BRA, inkludert kjeller, 1 etasje med teknisk rom, bad, …

πŸ“ Mørkveien 171 Skiptvet
Fotografi av en vindusdetalj på en gulemalt fasade med hvit ramme og tak med mos.
Extension Enebolig

Tilbygg, vindusskifte og VA-ledninger på Ol-Klemmetsaveien 26, Røros

Ny tilbygg på 38 m² BYA med totalt 59 m² BRA fordelt på 24 m² i 1. etasje og 35 m² i kjeller, tilknyttet eksisterende e…

πŸ“ Ol-Klemmetsaveien 26 Røros - Rosse
🏠
NewConstruction Enebolig

Ny enebolig i ukjent adresse

Ny enebolig skal oppføres. Detaljer om boligens størrelse, materialer og romfordeling er ikke tilgjengelige. Prosjektet…

Sør-Varanger
3D-visualisering (rendering) av en fasade med skrivebordstegning 'NY FASADE' og SketchUp-logo.
FacadeChange Enebolig

Fasadeendring og innbygging av takoverbygg på enebolig i Hafstadvegen 42, Førde

Fasadeendring og innbygging av takoverbygg på en eksisterende enebolig med totalt 304,2 m² BRA i Hafstadvegen 42, Førde…

πŸ“ Vassvegen 2A Sunnfjord
Fotografi av en rot eller stamme i bakken, muligens ved graving.
NewConstruction Enebolig

Riving og ny enebolig med anlegg i Fjordveien 127, Bodø

Ny enebolig på 174 m² BRA fordelt på to etasjer med 4 soverom, 2 bad, kjøkken, stue, gang, vindfang og bod. Boligen har…

πŸ“ Fjordveien 127 Bodø
🏠
Extension Enebolig

Tilbygg og anneks på Sandsetvegen 241

Ny oppføring av tilbygg og anneks til eksisterende enebolig på Sandsetvegen 241. Prosjektet innebærer riving av et eldr…

πŸ“ Sandsetvegen 241 Seljord
Fasadetegning som viser bygningens utseende fra to sider (sør-øst og sør-vest), inkludert detaljer som tak, vinduer, balkonger og påbygg.
VerticalExtension Enebolig

Påbygg og bruksendring av enebolig i Mortveien 1, Moss

Påbygg over eksisterende kjeller/garasje og utvidelse av stue i enebolig på Mortveien 1 i Moss. Påbygget omfatter innby…

πŸ“ Mortveien 1 Moss
🏠
FacadeChange Enebolig

Fasadeendring på enebolig i Grånhagavegen 2A

Endring av fasade på en eksisterende enebolig i Grånhagavegen 2A. Prosjektet omfatter modifikasjoner av ytterveggens ut…

πŸ“ Grånhagavegen 2A Ål
🏠
Extension Enebolig

Utvendig tilbygg større enn 50 m² på Stavevegen 4

Ny utvendig tilbygg på over 50 m² til en eksisterende enebolig på Stavevegen 4. Tilbygget vil utvide boligens areal bet…

πŸ“ Stavevegen 4 Ål
Fotografier av lysgrav utenfor et soveromsvindu og utsikt inn i lysgraven.
ChangeOfUse Enebolig

Bruksendring av bod til soverom i Innlegda 7B, Førde

Bruksendring av en bod i underetasjen i rekkehus Innlegda 7B til et godkjent soverom. Rommet har fått etablert et nytt …

πŸ“ Innlegda 10A Sunnfjord
Etasjeplan (1. etasje) med romfordeling, dimensjoner og snitt A-A.
Extension Enebolig

Tilbygg på 15 m² til enebolig på Klatran 125

Ny utvidelse av eksisterende enebolig på Klatran 125 med et tilbygg på 15 m² plassert på sørsiden av boligen. Tilbygget…

πŸ“ Klatran 125 Harstad - Hárstták
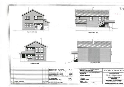
Fasadetegning som viser alle sider av en enebolig (Nord, Vest, Sør, Øst).
NewConstruction Enebolig

Ny enebolig med saltak i Alvdal, Gbnr 7/804

Ny enebolig på ett plan med totalt bruksareal på 132,2 m² og bebygd areal på 152,4 m² oppføres på eiendom Gnr 7, Bnr 80…

Alvdal
Flyfoto av et bygganlegg med overlagte merkelinjer og tekst (Inngangsparti, Norgebilder-logo).
ChangeOfUse Enebolig

Bruksendring og fasadeendring på enebolig i Klundbyvegen 262

Bruksendring av kjeller i eksisterende enebolig fra tilleggsdel til hoveddel med etablering av hybel med eget inngangsp…

πŸ“ Klundbyvegen 262 Gjøvik
3D-visualisering av et enebolig påbygg og takendring, vist fra ulike vinkler.
FacadeChange Enebolig

Fasadeendring, takløft og påbygg på enebolig i Kroksundveien 924

Eksisterende enebolig i Kroksundveien 924 får en moderat fasadeendring med nytt takløft på den ene siden av huset, som …

πŸ“ Kroksundveien 924 Indre Østfold
🏠
FacadeChange Enebolig

Fasadeendring på enebolig, Bjørnmyra 15

Endring av farge på fasaden til en eksisterende enebolig på Bjørnmyra 15. Prosjektet omfatter kun overflatebehandling a…

πŸ“ Bjørnmyra 15 Malvik
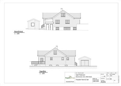
Fasadetegning som viser bygningens utseende fra Nordvest og Sørøst.
ChangeOfUse Enebolig

Bruksendring og fasadeendring på enebolig i Breivikveien 22A, Bodø

Prosjektet omfatter bruksendring av kjellerareal i en eksisterende enebolig fra tilleggsdel til hoveddel, inkludert eta…

πŸ“ Breivikveien 22A Bodø
Fasadetegning som viser eksisterende og nytt tilbygg sett fra nord og vest.
Extension Enebolig

Tilbygg til enebolig i Svingenveien 141, Elverum

Ny tilbygg på ca. 50 m² til eksisterende enebolig i Svingenveien 141. Tilbygget er i én etasje med trekledning og salta…

πŸ“ Svingenvegen 139 Elverum
🏠
NewConstruction Enebolig

Ny enebolig med dispensasjon på Austad 159

Ny enebolig skal oppføres på eiendommen Austad 159, Gnr 14, Bnr 6. Prosjektet krever dispensasjon fra kommuneplanens ar…

πŸ“ 14/6-1 Bygland
🏠
Demolition Enebolig

Delvis riving og ombygging av enebolig i Vardeveien 18

Delvis riving og ombygging av eksisterende enebolig i Vardeveien 18. Prosjektet innebærer fjerning av deler av bygnings…

πŸ“ Vardeveien 18 Oslo - Oslove
Dokumentet inneholder en situasjonsplan med en markert bygning, samt tre fotografier av en eksisterende bolig i snø.
Demolition Enebolig

Riving av eksisterende enebolig i Øvre Nordbergveien 8, Hønefoss

Eksisterende enebolig på eiendommen Øvre Nordbergveien 8 i Hønefoss skal rives. Boligen er ikke bebodd og rives for å t…

Ringerike
Fasadetegning som viser bygningens utseende fra vest og øst, inkludert terrasser og takform.
Extension Enebolig

Tilbygg og fasadeendring på enebolig, Evenrudvegen 9

Ny tilbygg med garasje på plan 1 og boligdel i kjeller på østsiden av eksisterende enebolig. Heving av tak på eksistere…

πŸ“ Evenrudvegen 9 Østre Toten