Leilighetsbygg 512 treff

🏢
ChangeOfUse Leilighetsbygg

Etablering av utleiedel og vindusinnsetting i Odins gate 14

Etablering av en ny boenhet i kjelleretasjen i et eksisterende leilighetsbygg, samt bruksendring av en bod til soverom …

πŸ“ Odins gate 14 Sandnes
🏢
Extension Leilighetsbygg

Bruksendring og mindre tilbygg i Luramyrveien 79

Prosjektet omfatter bruksendring av deler av arealet i 1. etasje i et leilighetsbygg, samt oppføring av et mindre tilby…

πŸ“ Luramyrveien 79 Sandnes
🏢
NewConstruction Leilighetsbygg

Oppføring av rekkehus og leilighetsbygg i Øykjabakken

Ny boligutvikling bestående av rekkehus og leilighetsbygg i Øykjabakken på eiendommen Gnr 47, Bnr 81. Prosjektet inklud…

πŸ“ Øykjabakken 11 Sandnes
Etasjeplan eller plantegning som viser romfordeling (Bod 1, Bod 2, Vaskerom, Gang, Kjellerstue, Bad) og trappeløsninger.
ChangeOfUse Leilighetsbygg

Bruksendring av bod til soverom i kjeller, Bjørkevegen 8

Bruksendring av et kjellerrom på ca. 12,9 m² fra bod til soverom med varig opphold. Rommet har takhøyde på ca. 216 cm o…

πŸ“ Tollevegen 10 Molde
3D-visualisering (rendering) av en ny bebyggelse med etiketter for ulike deler (Engene 41, Bygg Del A, B, C, Sundgata 21F).
NewConstruction Leilighetsbygg

Ny leilighetsbygg med parkeringskjeller i Sundgata 13, Drammen

Ny boligbebyggelse i Sundgata 13-19, Drammen, bestående av 16 leiligheter fordelt på to fulle etasjer og en inntrukket …

πŸ“ Sundgata 13 Drammen
Bildet viser to tegninger: øverst et snitt av en hytte, og nederst et etasjeplan (kallede etasje) med romfordeling og mål.
ChangeOfUse Leilighetsbygg

Bruksendring av loft i leilighetsbygg på Mårskrenten 51

Bruksendring av loft på 24,5 m² i et leilighetsbygg på Mårskrenten 51, Molde, fra tilleggsdel til hoveddel. Loftet innr…

πŸ“ Mårskrenten 17 Molde
Fasadetegning som viser fasadeoppsettet til en bygning med vinduer og inngang.
ChangeOfUse Leilighetsbygg

Bruksendring, påbygg og altaner på Nedre Enggate 18, Kristiansund

Prosjektet omfatter bruksendring av loftsrom til boligformål, oppføring av takoppbygg på både øst- og vestfasade, samt …

πŸ“ Øvre Enggate 18 Kristiansund
Situasjonsplan som viser eiendomsinndeling, bygningsspor og gater i et område.
Extension Leilighetsbygg

Installasjon av trappeheis i leilighetsbygg, Nordre Strømmsgate 7

Installasjon av en trappeheis i et eksisterende leilighetsbygg i Nordre Strømmsgate 7, Svelvik. Trappeheisen monteres f…

πŸ“ Nordre Strømmsgate 7 Drammen
3D-visualisering av et planlagt interiør i stue.
NewConstruction Leilighetsbygg

Nybygg leilighetsbygg på Trillingen 6, Drammen

Nybygg av leilighetsbygg på eiendommen Trillingen 6 i Drammen med et samlet areal på ca. 347 m². Prosjektet omfatter op…

πŸ“ Trillingen 6 Drammen
Fasadeoppriss (opprikk) som viser bygningens utseende fra fire ulike vinkler.
NewConstruction Leilighetsbygg

Nytt leilighetsbygg, rekkehus og parkeringsanlegg i Orstadvegen 203

Prosjektet omfatter oppføring av fire leilighetsblokker (BBB1-4) med totalt 48 leiligheter, fire rekkehus (BKS4) og en …

πŸ“ Orstadvegen 203 Klepp
Illustrasjonsplan (rendering) som viser planlagt bebyggelse i et boligområde.
NewConstruction Leilighetsbygg

Nytt leilighetsbygg med 4 boenheter i Kulehagen, Bryne

Nytt leilighetsbygg i to etasjer med flatt tak, totalt 254,4 m² BRA, fordelt på 4 boenheter. Bygget har et bebygd areal…

πŸ“ Kulehagen 34 Klepp
Fasadetegning som viser bygningens utseende fra fronten, inkludert vinduer, balkonger og høydeangivelser.
FacadeChange Leilighetsbygg

Fasadeendring med innglassing av balkonger i Torgveien 20, Ålgård

Fasadeendring på leilighetsbygget Kanalhuset i Torgveien 20, Ålgård, omfatter utvidelse av glass i balkongrekkverk. Tet…

πŸ“ Torgveien 20 Gjesdal
🏢
VerticalExtension Leilighetsbygg

Innglassing av terrasse i leilighet, Barbros gate 60

Innglassing av eksisterende terrasse i en leilighet i Barbros gate 60. Prosjektet omfatter montering av glassfasader ru…

πŸ“ Barbros gate 56 Farsund
🏢
NewConstruction Leilighetsbygg

Oppføring av leilighetsbygg i Jøveien 177

Ny oppføring av et leilighetsbygg på eiendommen Jøveien 177. Prosjektet omfatter flere boenheter med tilhørende parkeri…

πŸ“ Jøveien 177A Smøla
🏢
Extension Leilighetsbygg

Oppføring av plattformheis i leilighetsbygg, Kirkegata 2

Ny plattformheis med tilhørende plattform installeres i eksisterende leilighetsbygg i Kirkegata 2. Heisen er tilpasset …

πŸ“ Kirkegata 2 Molde
🏢
Extension Leilighetsbygg

Ombygging med tilbygg og parkering på Solkjen 2, Ålgård

Ombygging av eksisterende leilighetsbygg på Solkjen 2 i Ålgård med tilbygg og ny parkeringsplass. Prosjektet inkluderer…

πŸ“ Solkjen 2 Gjesdal
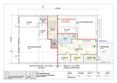
Etasjeplan for første etasje (Tegning: Plan UNDERETASJE) som viser romfordeling, arealer og funksjoner i en bygning.
ChangeOfUse Leilighetsbygg

Bruksendring av butikklokaler til leiligheter i Bøgata 78

Bruksendring av deler av underetasjen i et leilighetsbygg i Bøgata 78 fra butikklokaler til to leiligheter. Prosjektet …

πŸ“ Bøgata 78 Midt-Telemark
🏢
ChangeOfUse Leilighetsbygg

Installasjon av heis og bruksendring i Lienga 7

Prosjektet omfatter installasjon av heis i et eksisterende leilighetsbygg, kombinert med bruksendring og mindre endring…

πŸ“ Lienga 7 Nordre Follo
🏢
NewConstruction Leilighetsbygg

Ferdigattest for leilighetsbygg i St. Olavs gate 44

Leilighetsbygg i St. Olavs gate 44 er ferdigstilt og søker om ferdigattest. Bygget består av flere boenheter, og prosje…

πŸ“ St. Olavs gate 44 Hamar
3D-visualiseringer (renderinger) av en planlagt bygning, inkludert bakgård og gavlfasade.
Extension Leilighetsbygg

Tilbygg og rehabilitering av leilighetsbygg i Webergs gate 7-9, Drammen

Prosjektet omfatter riving av eksisterende leilighetsbygg og tilbygg, samt oppføring av nytt boligbygg med næringslokal…

πŸ“ Webergs gate 7-9 Drammen
3D-visualisering av romfordeling i et bygg, med innredning og møbler.
Extension Leilighetsbygg

Tilbygg og rehabilitering i leilighetsbygg, Tordenskiolds gate 101, Drammen

Prosjektet omfatter bruksendring og ombygging av en seksjon i et eksisterende leilighetsbygg i Tordenskiolds gate 101, …

πŸ“ Tordenskiolds gate 101 Drammen
🏢
NewConstruction Leilighetsbygg

Oppføring av to boligbygninger med 16 leiligheter, carporter og utomhusarealer

Tillatelse gitt til oppføring av to boligbygninger (Bygg A og B) med 16 leiligheter, carporter og utomhusarealer på Røe…

πŸ“ Røedkollen Våler (Østfold)
Etasjeplan (PLAN 02) som viser romfordeling, arealer og leilighetsnummer for et fleretasjes bygg.
Unknown Leilighetsbygg

Oppdeling og brannskille i leilighetsbygg, Gudes gate 2 A, Moss

Oppdeling av eksisterende leilighetsbygg fra 1903 i Moss med formell godkjenning av ny leilighetsinndeling på plan 2 og…

πŸ“ Gudes gate 2A Moss
Fasadetegning som viser byggets øst- og vestsider med vinduer, dører og trapper.
ChangeOfUse Leilighetsbygg

Etablering av to nye boenheter i Schwartz gate 36, Drammen

Tiltaket omfatter etablering av to nye selvstendige boenheter i første etasje av en eksisterende bygning oppført i 1958…

πŸ“ Schwartz gate 36 Drammen