Leilighetsbygg 509 treff

3D-visualisering av romfordeling i et bygg, med innredning og møbler.
Extension Leilighetsbygg

Tilbygg og rehabilitering i leilighetsbygg, Tordenskiolds gate 101, Drammen

Prosjektet omfatter bruksendring og ombygging av en seksjon i et eksisterende leilighetsbygg i Tordenskiolds gate 101, …

πŸ“ Tordenskiolds gate 101 Drammen
🏢
NewConstruction Leilighetsbygg

Oppføring av to boligbygninger med 16 leiligheter, carporter og utomhusarealer

Tillatelse gitt til oppføring av to boligbygninger (Bygg A og B) med 16 leiligheter, carporter og utomhusarealer på Røe…

πŸ“ Røedkollen Våler (Østfold)
Etasjeplan (PLAN 02) som viser romfordeling, arealer og leilighetsnummer for et fleretasjes bygg.
Unknown Leilighetsbygg

Oppdeling og brannskille i leilighetsbygg, Gudes gate 2 A, Moss

Oppdeling av eksisterende leilighetsbygg fra 1903 i Moss med formell godkjenning av ny leilighetsinndeling på plan 2 og…

πŸ“ Gudes gate 2A Moss
Fasadetegning som viser byggets øst- og vestsider med vinduer, dører og trapper.
ChangeOfUse Leilighetsbygg

Etablering av to nye boenheter i Schwartz gate 36, Drammen

Tiltaket omfatter etablering av to nye selvstendige boenheter i første etasje av en eksisterende bygning oppført i 1958…

πŸ“ Schwartz gate 36 Drammen
3D-visualisering av en bygning sett fra ulike vinkler, med overskrift '3D Fasader Cappelens gate 13, Drammen'.
FacadeChange Leilighetsbygg

Rehabilitering og etterisolering av fasader i Cappelens gate 13, Drammen

Rehabilitering av fasadene på en verneverdig boliggård fra 1880 i Cappelens gate 13, Drammen. Tiltaket omfatter demonte…

πŸ“ Cappelens gate 13 Drammen
3D-visualisering av fasader for flere hus (HUS 5-9) med instruksjoner om fargevalg.
NewConstruction Leilighetsbygg

Ny blokkbebyggelse med garasjekjeller i Bergerveien 12, Asker

Prosjektet omfatter oppføring av fem boligblokker i 4-8 etasjer med til sammen ca. 190 leiligheter, fordelt på et brutt…

πŸ“ Bergerveien 12 Asker
Bildet viser en tegningsside med to fasadetegninger (opp- og sideansikt) av en bygning, samt en mindre situasjonsplan eller grunnplan nederst.
FacadeChange Leilighetsbygg

Fasadeendring og bruksendring i leilighetsbygg, Hans Hansens vei 200

Eksisterende to-etasjes enebolig med hybel i 2. etasje gjennomgår fasadeendringer som inkluderer utskifting til husmorv…

πŸ“ Hans Hansens vei 200 Drammen
Fotografi av en eksisterende bygning (hus med butikker i bunnet og leiligheter ovenfor) som er omfattet av en byggesak.
ChangeOfUse Leilighetsbygg

Bruksendring av kontor til to leiligheter i Hardangerfjordvegen 640

Bruksendring av deler av 2. etasje i et eksisterende betongbygg fra kontor til to separate leiligheter. Bygget har 3-4 …

πŸ“ Hardangerfjordvegen 640 Kvam
Bildet viser en serie med 3D-visualiseringer (renderinger) av en bygning sett fra utsiden, med varierende lysforhold for å illustrere solfasetter.
NewConstruction Leilighetsbygg

Oppføring av boligblokker med garasje i Folabruveien, Asker

Prosjektet omfatter oppføring av fire boligblokker (B1-B4) med til sammen 147 leiligheter, fordelt på 5-7 etasjer, med …

πŸ“ Folabruveien 179 Asker
En serie med 3D-visualiseringer (renderinger) av bygningenes vestfaser, som viser solforholdene på ulike tidspunkt.
NewConstruction Leilighetsbygg

Oppføring av boligblokker med garasje i Folabruveien, Asker

Prosjektet omfatter oppføring av fire boligblokker (B1-B4) med til sammen 147 leiligheter i Folabruveien, Asker. Byggen…

πŸ“ Folabruveien 179 Asker
Bildet viser en serie 3D-visualiseringer (renderinger) av en bygning sett fra vest, med fokus på solstudier ved ulike tidspunkter.
NewConstruction Leilighetsbygg

Oppføring av boligblokker med garasje

Saken gjelder søknad om rammetillatelse og igangsettingstillatelse for oppføring av flere boligblokker (B1-B4) med gara…

πŸ“ Folabruveien 179 Asker
3D-visualisering av et utbyggingsområde med blokkbebyggelse og terrengarbeider.
NewConstruction Leilighetsbygg

Oppføring av boligblokker med garasje i Folabruveien 179, Asker

Prosjektet omfatter oppføring av fire boligblokker (B1-B4) med til sammen 147 leiligheter, fordelt på 5-7 etasjer, plas…

πŸ“ Folabruveien 179 Asker
Bildet viser fire 3D-visualiseringer (renderinger) av et boligprosjekt med fasadeanalyse overlagt. Det er en illustrasjon av hvordan bygningene vil se ut i forhold til omgivelsene.
NewConstruction Leilighetsbygg

Oppføring av boligblokker med garasje i Folabruveien, Asker

Prosjektet omfatter oppføring av fire boligblokker (B1-B4) med 5-6 etasjer og til sammen 147 leiligheter, plassert i sk…

πŸ“ Folabruveien 179 Asker
Fotografi av en gatekryssing med bygninger, trafikk og veimarkeringer.
FacadeChange Leilighetsbygg

Utskifting av balkonger på leilighetsbygg i Kongens gate 20, Narvik

Rehabilitering av balkonger på et 3-etasjers leilighetsbygg i Kongens gate 20, Narvik. Eksisterende betongbalkonger dem…

πŸ“ Kongens gate 20 Narvik
3D-visualisering av et planlagt boligkompleks med trefasade, beliggende ved vann.
NewConstruction Leilighetsbygg

Tre leilighetsbygg med parkeringskjeller i Havnegata 83, Drammen

Prosjektet omfatter oppføring av tre boligblokker i Havnegata 83, Drammen, med totalt 81 leiligheter fordelt på bygg A …

πŸ“ Havnegata 55 Drammen
🏢
ChangeOfUse Leilighetsbygg

Sammenslåing av boenheter, fasadeendring og ny bod i Trondheim

Prosjektet omfatter sammenslåing av eksisterende boenheter i et leilighetsbygg, gjennomføring av fasadeendringer på byg…

Trondheim - Tråante
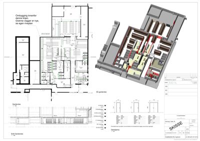
Bildet viser en kombinasjon av etasjeplaner (2D) og en 3D-visualisering (rendering) av en garderobe. Det inkluderer også snittegninger og tekniske detaljer for møblering.
NewConstruction Leilighetsbygg

Innvendig garderobe og midlertidig brakkebygg i Vesterveien 51

Prosjektet omfatter oppgradering og ombygging av eksisterende lagerlokaler til garderobeanlegg med nye våtrom, ventilas…

πŸ“ Vesterveien 45 Kristiansand
3D-visualisering av et bebyggelsesforslag med bygninger, balkonger og utemiljø.
NewConstruction Leilighetsbygg

Nytt leilighetsbygg med p-kjeller i Konnerudgata 324, Drammen

Nytt boligprosjekt bestående av et leilighetsbygg med 13 boenheter og parkeringskjeller på eiendommen Konnerudgata 324 …

πŸ“ Konnerudgata 324 Drammen
🏢
Extension Leilighetsbygg

Tilbygg på eksisterende leilighetsbygg

Søknad om rammetillatelse for tilbygg på eksisterende leilighetsbygg ved Horns gate 13. Dokumentet inneholder høringsut…

πŸ“ Horns gate 13 Hamar
🏢
Extension Leilighetsbygg

Installasjon av ny heis i leilighetsbygg, Langgata 102D

Ny heis installeres i eksisterende leilighetsbygg på Langgata 102D. Prosjektet omfatter montering av heismaskineri, sja…

πŸ“ Langgata 102A Sandnes
🏢
NewConstruction Leilighetsbygg

Nye boliger i flerfamiliehus på Fløyvegen 1A-C

Tre nye flerfamiliehus med boliger er oppført på adressene Fløyvegen 1A, 1B og 1C. Byggene består av flere boenheter i …

πŸ“ Fløyvegen 1A Tromsø
🏢
Demolition Leilighetsbygg

Riving av eksisterende bebyggelse og oppføring av nytt boligbygg

Saken gjelder søknad om igangsettingstillatelse for riving av eksisterende bebyggelse og oppføring av nytt boligbygg (a…

πŸ“ Storgata 21 Sarpsborg
🏢
NewConstruction Leilighetsbygg

Oppføring av lavblokk-bebyggelse i Nygata 41A

Prosjektet omfatter oppføring av en lavblokk-bebyggelse på Nygata 41A. Bygget vil bestå av flere leiligheter og vil bli…

πŸ“ Nygata 41A Hamar
🏢
Rehabilitation Leilighetsbygg

Ombygging av boligenhet med tilbygg og veranda

Saken gjelder ombygging av en boligenhet i et flerboligbygg, inkludert oppføring av tilbygg, ny fasade og veranda. Det …

πŸ“ Øvreveien 19 Narvik