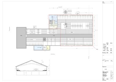
Naeringsbygg 641 treff

Fasadetegninger (oppriss) av et takoverbygg sett fra fire sider (Vest, Aust, Nord, Sør) samt en 3D-visualisering av eksisterende haller og det nye takoverbygget.
Extension Naeringsbygg

Nytt takoverbygg (hall) på Hardingsmolt, Lysevegen 20

Ny hall som takoverbygg over eksisterende lagerbygg og konstruksjoner på Hardingsmolt industriområde i Tørvikbygd. Bygg…

📍 Lysevegen 20 Kvam
3D-visualisering (rendering) som viser etasjeplaner og fasader av en bygning i et landskap.
NewConstruction Naeringsbygg

Nytt klubbhus med lager i Busdalen, Øystese

Ny to-etasjes klubbhus for Øystese Fotballklubb med tilhørende lagerbygg i Busdalen, Øystese. Klubbhuset har et samlet …

📍 Busdalen Kvam
Etasjeplan (3. PLAN) med romfordeling, dører, vinduer og en snittegning (TYPISK SNITT) som viser konstruksjonen.
ChangeOfUse Naeringsbygg

Bruksendring og sammenslåing av boenheter i Øystese næringsbygg

Prosjektet omfatter bruksendring og sammenslåing av to boenheter til én boenhet samt sammenslåing av felles oppholdsrom…

📍 Sjusetevegen 24 Kvam
Fotografi av et eksisterende eller planlagt anlegg med flere bygninger, sett fra luften (flyfoto eller dronefoto).
NewConstruction Naeringsbygg

Midlertidig kantine- og boligrigger i Undheimsvegen, Time

Prosjektet omfatter oppføring av en midlertidig kantinerigg og 14 boligrigger over to etasjer, med totalt 616 boenheter…

📍 Undheimsvegen 667 Time
Situasjonskart (tomtekart) som viser eiendomsgranser, høydemålerlinjer, eksisterende bygninger (kontorsbygg) og infrastruktur (veier, slurrytanker) i området.
NewConstruction Naeringsbygg

Nytt kontorbygg med avløpsanlegg på Åsvegen, Østre Toten

Ny administrasjonsbygning/kontorbygg på 76 m² BRA med tilhørende utvendig avløpsanlegg på eiendommen Gnr 309 Bnr 1 i Øs…

📍 Vålsjøen 10 Østre Toten
Fasadetegning som viser bygningens utsyn mot de fire hovedretningene (N, S, E, V) samt en 3D-visualisering av fasaden.
NewConstruction Naeringsbygg

Ny lagerhall på 360 m² i Vindafjord, gnr 119 bnr 6

Ny frittstående lagerhall på 360 m² med flatt tak og betongfasader, plassert på opparbeidet industriområde i Vindafjord…

Vindafjord
Etasjeplan (1. ETG eksisterende) som viser romfordeling, vegger og dører for en bygning.
ChangeOfUse Naeringsbygg

Bruksendring og ombygging i næringsbygg, Tollbodgaten 5, Arendal

Bruksendring og ombygging av del av 2. etasje i eksisterende næringsbygg på totalt 874,7 m² fordelt på tre etasjer. Pro…

📍 Tollbodgaten 5 Arendal
Plantegning som viser romfordeling, vegger, dører og innredning for et bygg.
ChangeOfUse Naeringsbygg

Bruksendring og innvendig ombygging i Biltema, Sagvannsveien 20

Bruksendring og innvendig ombygging i eksisterende næringsbygg på Sagvannsveien 20 i Arendal. Omfatter 480 m² BRA med f…

📍 Sagvannsveien 20 Arendal
Fotografi av en bygning med utendørs serveringsområde (terrasse med bord og stoler) sett fra front.
Extension Naeringsbygg

Ny pergola og platting ved Nidelv Restaurant, Vesterveien 250

Ny pergola/utestue på ca. 8 x 6 meter med sort aluminium-/stålramme, glass tak og skyvedører i glass på tre sider er op…

📍 Vesterveien 250 Arendal
Etasjeplan med romfordeling, mål og oppriss av takkonstruksjon.
Extension Naeringsbygg

Tilbygg og ombygging av driftsbygning i Hallrøstveien 24, Vingelen

Ny tilbygg på 1024 m² og ombygging av eksisterende driftsbygning i landbruket på Hallrøstveien 24 i Vingelen. Tiltaket …

📍 Londalsveien 320 Tolga
Satellittbilde (flyfoto) av Røros Hotell og omgivelser, inkludert veier og tomteforhold.
FacadeChange Naeringsbygg

Nytt tak på Røros Hotell, An-Magritt-veien 120

Taktekking på Nordfløya av Røros Hotell endres fra eksisterende skifer til svart papptekking. Totalt omfatter prosjekte…

📍 Ol-Klemmetsaveien 54 Røros - Rosse
Fotografi av et snødekt industriområde (Ballangen) med flere bygninger merket med tall og en oversiktsliste over funksjonene til bygningene.
NewConstruction Naeringsbygg

Ny vaskehall og parkeringsanlegg på Fornes-E6 82, Ballangen

Ny vaskehall og parkeringsanlegg for kjøretøy oppføres på eiendommen Fornes-E6 82 i Ballangen. Bygget er en lagerhall m…

📍 Fornes-E6 82 Narvik
Fasadetegning med oppriss av bygning sett utenfra, inkludert detaljer og snitt.
ChangeOfUse Naeringsbygg

Bruksendring og fasadeendring i Syltegata 2, Valldal

Ny boenhet på 62,1 m² etableres i 2. etasje av eksisterende næringsbygg i Syltegata 2, Valldal. Prosjektet omfatter inn…

📍 Syltegata 2 Fjord
Etasjeplan (Plan 1) med symbolforklaring for brannsikring, utganger og nødsted.
Extension Naeringsbygg

Oppgradering av ledelys og nødlys i næringsbygg, Bedriftsvegen 21

Oppgradering og nyetablering av ledelys og nødlys i eksisterende næringsbygg på 1250 m² i Bedriftsvegen 21. Tiltaket om…

📍 Bedriftsvegen 21 Skien
Etasjeplan (2. etasje) med romfordeling, dører, vinduer og mål for en bygning.
Demolition Naeringsbygg

Riving av lager/verksted/kontorbygg i Kanalgata 39, Larvik

Riving av eksisterende næringsbygg på 400 m² i Kanalgata 39, Larvik. Bygget består av to etasjer med funksjoner som stu…

📍 Kanalgata 39 Larvik
Fotografi av et byggplass under arbeid med betongelementer og en kran.
ChangeOfUse Naeringsbygg

Bruksendring og rehabilitering av næringsbygg i Stockfleths gate 1B, Sandefjord

Bygget i Stockfleths gate 1B er et tidligere produksjonsbygg som er ombygget og rehabilitert til treningssenter over to…

📍 Stockfleths gate 1B Sandefjord
3D-visualisering (rendering) av en bygning sett fra to ulike vinkler. Bildet viser fasade, vinduer og materialvalg.
Extension Naeringsbygg

To tilbygg på næringsbygg, Ramstadløkka 1, Mysen

To nye tilbygg på til sammen 535,8 m² oppføres på eksisterende næringsbygg på Ramstadløkka 1 i Mysen. Tilbyggene er i t…

📍 Ramstadløkka 1 Indre Østfold
3D-visualisering av et nytt bygg (garasje/lager) sett fra lufta, inkludert omgivende tomt, veier og nabolag.
ChangeOfUse Naeringsbygg

Bruks- og fasadeendringer på næringsbygg i Sponesveien 1, Mysen

Tiltaket omfatter modernisering og ombygging av eksisterende næringsbygg på eiendommen Sponesveien 1 i Mysen, med total…

📍 Sponesveien 1 Indre Østfold
🏬
NewConstruction Naeringsbygg

Oppføring av garasje og lagerbygg i Jomåsveien 465

Ny frittstående garasje og lagerbygg på eiendommen i Jomåsveien 465. Byggene skal benyttes til næringsformål og vil omf…

📍 Jomåsveien 465 Froland
🏬
NewConstruction Naeringsbygg

Ny lagerhall i Åkvågveien 784, Risør

Ny lagerhall oppføres på eiendommen i Åkvågveien 784 i Risør kommune. Bygget er et næringsbygg beregnet for lagring, me…

📍 Valåsen 21 Risør
3D-visualisering av en bygning med fire fasadeutsnitt og en helhetsvisning.
NewConstruction Naeringsbygg

Ny melkekufjøs med riving i Snertingdalsvegen 1982B, Snertingdal

Ny driftsbygning for melkekuproduksjon på 791 m² oppføres på eiendommen Snertingdalsvegen 1982B i Snertingdal. Bygget s…

📍 Snertingdalsvegen 1982A Gjøvik
Fotografi av en bro ved Faleidsvegen 72 med en traktor på veien og en bekke under.
NewConstruction Naeringsbygg

Ny industrihall med administrasjonsbygg og VA-anlegg i Stryn

Prosjektet omfatter oppføring av en ny industrihall på ca. 765 m² og et tilhørende administrasjonsbygg på ca. 205 m² me…

Stryn
🏬
NewConstruction Naeringsbygg

Ny idrettsbygning med garderobe, lager og kiosk på Vikeså stadion

Ny idrettsbygning på Vikeså stadion med et bebygd areal på 428,2 m² og totalt bruksareal på 464,7 m². Bygget er i hoved…

📍 33/95 Bjerkreim
Fotografi av en kjøkkeninnredning med person og utstyr, samt illustrasjon av fettutskiller under gulvet.
ChangeOfUse Naeringsbygg

Bruksendring og ombygging til kafedrift i Nedre Enggate 14

Bygget er et eksisterende næringsbygg med totalt ca. 432 m² fordelt på kjeller, 1. og 2. etasje. Prosjektet omfatter br…

📍 Øvre Enggate 14 Kristiansund