Naeringsbygg 641 treff

3D-visualisering av en akustisk modellering som viser hvordan lydkilder (dieselgeneratorer i containere) er plassert i forhold til bygninger.
Rehabilitation Naeringsbygg

Ombygging av datasenter med fasadeendring i Handelandsvegen 140, Sauda

Ombygging av eksisterende kraftstasjon til datasenter for kunstig intelligens i Handelandsvegen 140, Sauda. Prosjektet …

πŸ“ Handelandsvegen 140 Sauda
Perspektivtegning (rendering) av en bygning, sannsynligvis en kajakklubben, med to ulike vinkler. Tegningen viser fasade, takform og fargevalg.
NewConstruction Naeringsbygg

Nytt klubbhus og lagerbygg med parkering og flytebrygge på Høyland

Ny en-etasjes bygning for Farsund Kajakklubb med et bebygd areal på 234 m², oppført i tre, tilpasset reguleringsplanens…

πŸ“ Høyland, 20/153 Farsund
Etasjeplan med romnummerering og flytetrekk (piltrekk) for en bygning.
ChangeOfUse Naeringsbygg

Bruksendring til hybelhus i næringsbygg, Strandaveien 264

Bruksendring av deler av 2. etasje i et eksisterende næringsbygg på ca. 240 m² BRA fra kontorlokaler til soverom/opphol…

πŸ“ Strandaveien 264 Osen
3D-visualisering (perspektiv) av en planlagt bygning med omgivelser.
NewConstruction Naeringsbygg

Ny forretningsbygning med parkering i Storevågen, Ålesund

Ny forretningsbygning i to etasjer med totalt 6009 m² BRA og 3097 m² BYA oppføres på eiendommen i Storevågen, Ålesund. …

πŸ“ 19/354 Ålesund
3D-visualisering (rendering) av et nytt bygg i et industriområde med berg i bakgrunnen.
NewConstruction Naeringsbygg

Ny lagerhall med kontordel på Digernes, Ålesund

Ny lagerhall på ca. 1773 m² i én etasje med tilhørende kontordel i to etasjer med totalt ca. 2097 m² BRA. Bygget har fl…

πŸ“ 533/17 Ålesund
3D-visualisering (rendering) av en bygning sett fra to ulike vinkler. Bildet viser fasadebehandling, vindusoppsett og inngang.
NewConstruction Naeringsbygg

Ny sorteringshall og miljøstasjon på Svolværveien 109, Svolvær

Ny sorteringshall på ca. 1500 m² grunnflate oppføres i stålkonstruksjon med sandwichelementer over betongramper for 11 …

πŸ“ Svolværveien 109 Vågan
Etasjeplan som viser romfordeling, møblering og dimensjoner for et kontorbygg.
Rehabilitation Naeringsbygg

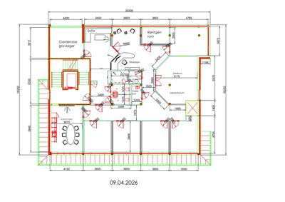
Ombygging av næringsbygg til tannlegekontor i Gate 1 112, Måløy

Ombygging av eksisterende kontorbygg på 184,4 m² til et moderne tannlegekontor med flere behandlingsrom, røntgenrom, st…

πŸ“ Gate 1 112 Kinn
Tegning som viser fasadeoppsett og snitt for en bygning (Lagerbrygning).
NewConstruction Naeringsbygg

Ny lagerhall på Voren 45, Sandsøya

Ny lagerhall på 450 m² oppføres på eiendommen Voren 45, gnr 68 bnr 37, Sandsøya. Bygget er en næringsbygning med saltak…

πŸ“ Voren 45 Sande
Fotografier av vinduer og ytterdører i en bygning, med tekster som beskriver materialer og leverandører.
FacadeChange Naeringsbygg

Fasadeendring og ombygging av næringsbygg i Sivert Nilsens gate 33, Svolvær

Prosjektet omfatter omfattende fasadeendringer og ombygging av butikkarealer i kjøpesenteret Alti i Sivert Nilsens gate…

πŸ“ Sivert Nilsens gate 31 Vågan
Fotografi av en eksisterende bygning (Vestfjordgata 28-30, Lofoten) som er brukt som illustrasjon i et brannkonsept-dokument.
Extension Naeringsbygg

Etablering av avtrekkskanal i næringsbygg, Vestfjordgata 28

Etablering av avtrekkskanal fra bad/vaskerom i 3. etasje i et næringsbygg med fire etasjer, via trapperom og ut gjennom…

πŸ“ Vestfjordgata 28 Vågan
Fasadetegning som viser bygningens utseende sett fra syd, inkludert vinduer, dører og fasadematerialer.
Extension Naeringsbygg

Tilbygg og ny avkjøring ved verksted, Gamle Dalsveg 160

Ny tilbygg på ca. 412 m² BYA til eksisterende verkstedbygning på næringseiendommen Gamle Dalsveg 160. Tilbygget har fla…

πŸ“ Gamle Dalsveg 160 Nannestad
3D-visualisering av en bygning (Tilbygg Moelv Næringspark) sett fra en vinkel.
Extension Naeringsbygg

Tilbygg næringsbygg på 1600 m² i Brugsvegen 11A, Moelv

Nybygg av tilbygg til eksisterende næringsbygg i Brugsvegen 11A, Moelv, med et bruksareal på 1600 m² på ett plan. Tilby…

πŸ“ Brugsvegen 11A Ringsaker
Fasadetegning som viser bygningens utseende sett fra sør (Sør), med dører og vinduer.
ChangeOfUse Naeringsbygg

Bruksendring og mesaninutvidelse i næringsbygg, Strandvegen 14

Ombygging og bruksendring av et næringsbygg på 817,5 m² i Strandvegen 14, Brumunddal, hvor tidligere lagerlokaler på 45…

πŸ“ Strandvegen 14 Ringsaker
Fasadetegning som viser bygningens utsyn fra flere vinkler (front, side, og vinkel), inkludert detaljer som vinduer, dører, takform og tilhørende siloer.
NewConstruction Naeringsbygg

Ny driftsbygning med hønehus og gjødsellager på Sjusjøvegen 1050

Ny driftsbygning bestående av et hønehus på 839 m² BRA med tilhørende overbygd gjødsellager på 132 m² BRA, totalt 971 m…

πŸ“ Sjusjøvegen 1050 Ringsaker
3D-visualisering av et byggprosjekt sett fra en vinkel som viser fasade og omgivelser.
ChangeOfUse Naeringsbygg

Bruksendring og fasadeendring på næringsbygg, Fløvegen 124, Ulstein

Eksisterende næringsbygg på 468 m² i Fløvegen 124, tidligere bilverksted, rehabiliteres med ny platekledning, utskiftin…

πŸ“ Fløvegen 124 Ulstein
3D-visualisering (rendering) av en ny bakbygning i et perspektiv.
ChangeOfUse Naeringsbygg

Bruksendring og ny bakbygning på Lindtruppbakken 2, Drøbak

Plan 1 i hovedhuset på Lindtruppbakken 2 endres fra forretning/frisørsalong til restaurant med kjøkken, serveringsområd…

πŸ“ Lindtruppbakken 2 Frogn
3D-visualisering av en planlagt næringsbygg med bil og omgivelser
NewConstruction Naeringsbygg

Nytt næringsbygg med mesanin på Gamle Hobølvei 13, Vestby

Nytt næringsbygg i to etasjer med mesanin oppføres på Gamle Hobølvei 13 i Vestby kommune. Bygget har et bebygd areal (B…

πŸ“ Gamle Hobølvei 13 Vestby
🏬
Extension Naeringsbygg

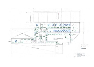
Tilbygg for renovasjon og søppelhåndtering ved Åsane Senter 43

Ny tilbyggsdel til eksisterende næringsbygg ved Åsane Senter 43, som skal inneholde fasiliteter for renovasjon og søppe…

πŸ“ Åsane Senter 43 Bergen
🏬
ChangeOfUse Naeringsbygg

Bruksendring og nytt betongdekke i fjellhall, Kanalveien 54

Prosjektet omfatter bruksendring av eksisterende bossugterminal og dagligvarelokale i næringsbygg ved Kanalveien 54. De…

πŸ“ Kanalveien 54 Bergen
🏬
Extension Naeringsbygg

Tilbygg av kontorbygg i Osvegen 539, Bergen

Ny tilbygg på eksisterende kontorbygg i Osvegen 539, Bergen kommune. Prosjektet omfatter utvidelse av bygningsarealet f…

πŸ“ Osvegen 539 Bergen
🏬
NewConstruction Naeringsbygg

Nybygg selvbetjeningslager i Jordalsveien 16, Bergen

Nybygg av et selvbetjeningslager i Jordalsveien 16, Bergen kommune. Bygget er et næringsbygg med flere etasjer, hvor de…

πŸ“ Jordalsveien 16 Bergen
🏬
NewConstruction Naeringsbygg

Nybygg næringsbygg med bolig og riving i Barliveien 21

Nybygg bestående av et kombinert næringsbygg og bolig på eiendommen Barliveien 21 i Bergen kommune. Prosjektet inkluder…

πŸ“ Barliveien 101 Bergen
🏬
NewConstruction Naeringsbygg

Nybygg næringsbygg med bolig og riving i Barliveien 21, Bergen

Nybygg i Barliveien 21 består av et kombinert næringsbygg med boligfunksjoner. Prosjektet inkluderer også riving av eks…

πŸ“ Barliveien 101 Bergen
🏬
NewConstruction Naeringsbygg

Nybygg næring og bolig med riving i Barliveien 21, Bergen

Prosjektet omfatter oppføring av et nytt bygg med både næringsarealer og boliger på eiendommen Barliveien 21 i Bergen. …

πŸ“ Barliveien 101 Bergen